ラ・グランデ菊名 菊名駅 貸店舗(建物一部)
79.04m2 / 菊名駅
- 情報提供元
- アットホーム
賃料48.4万円 / 管理費等16,500円
-
外観
-
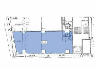
間取り
-
外観
-
外観
-
外観
-
室内
-
室内
-
この物件が気になりましたか? 最新の空室状況は
問合せをすることで確認できます
- お問い合わせ先
- (株)アメニティーハウジング
-
交通東急東横線 菊名駅 徒歩2分
東急東横線 大倉山駅 徒歩15分
JR横浜線 新横浜駅 徒歩19分
| 物件タイプ | 貸店舗(建物一部) |
|---|---|
| 敷引・償却 | 1ヶ月 |
| 坪単価 | 2.03万円 |
| その他一時金 | |
| 権利金 | - |
| その他費用 | |
| 維持費等 | |
| 都市計画 | |
| 用途地域 | |
| 接道状況 | |
| 地目 | |
| 建物名 | ラ・グランデ菊名 |
| 条件等 | |
| 現況 | 空 |
| 情報提供元 | アットホーム [1171031207] |
| 情報公開日 | |
| 情報更新日 | - |
| 次回更新予定日 | 随時 |
地図
設備など
-
駐車場有り
(近隣含) - 飲食店可
- 1階
- エレベーター
- 貸主
設備
備考
電気料?は本物件の計算式により算出されたものを管理会社から借主に請求する場合がございます。車をお持ちの方にお勧め、只今1台分空きスペースがあります。周辺には、徒歩2分で利用できる駅があります。飲食店としても利用可能です。条件等はご相談ください。駐車場が空いているので、車をお持ちの方も安心です。店を構えるだけで高い宣伝効果を期待できる、路面店。お気軽にお問い合わせください。・集客力で優位に立てる、路面店です。軽飲食入居可能。お気軽にお問い合わせ下さい。 駐車場:有 22000円 築年月:1989/05築
続きを見る
特記事項
飲食店可・スケルトン
- お問い合わせ先
- (株)アメニティーハウジング
アピールポイント
「ラ・グランデ菊名」のここがイチオシ。飲食店としても利用可能です。駐車場に空きがあるので、是非ご利用ください。1台分駐車場に空きがあります。飲食入居可能なので、是非ご相談下さい。便利な場所の魅力をそのまま感じる事ができる好立地。
不動産会社情報
お問い合わせ先
| 商号 | (株)アメニティーハウジング |
|---|---|
| 免許番号 | 神奈川県知事免許(3)第28105号 |
| 所在地 | 厚木市旭町1丁目22-20 |
| TEL | 046-280-6120 |
| 取引態様 | 仲介 |
| 管理コード | 161990001919004 |
| 所属協会など | (公社)神奈川県宅地建物取引業協会会員、(公社)首都圏不動産公正取引協議会加盟 |
この地域の暮らしデータ
横浜市の人口などの統計情報
| 世帯数 | 1744208世帯 |
|---|---|
| 人口総数 | 3752969人 |
| 転入者数 |
217258人 転入率(人口1000人当たり) 57.89人 |
| 転出者数 |
201570人 転出率(人口1000人当たり) 53.71人 |
| 土地平均価格 |
住宅地 254434円/m2 商業地 1043863円/m2 |
横浜市の治安・ごみ収集情報
| 公共料金・インフラ | |
|---|---|
| ガス料金(22m3使用した場合の月額) | 東京瓦斯株式会社(東京地区等)3926円 |
| 水道料金(口径20mmで20m3の月額) | 横浜市3017円 |
| 下水道料金(20m3を使用した場合の月額) | 横浜市2035円 |
| 下水道普及率 | 100.0% |
| 安心・安全 | |
| 建物火災出火件数 |
438件 人口10000人当たり 1.16件 |
| 刑法犯認知件数 |
16059件 人口1000人当たり 4.25件 |
| ハザード・防災マップ | あり |
| 医療 | |
| 一般病院総数 | 113ヶ所 |
| 一般診療所総数 | 3201ヶ所 |
| 小児科医師数 |
682人 小児人口10000人当たり 15.98人 |
| 産婦人科医師数 |
346人 15~49歳女性人口1万人当たり 4.58人 |
| 介護保険料基準額(月額) | 6620円 |
| ごみ | |
| 家庭ごみ収集(可燃ごみ) |
無料
|
| 家庭ごみの分別方式 | 7分別9種〔燃やすごみ 燃えないごみ スプレー缶 乾電池 プラスチック製容器包装 缶・びん・ペットボトル(缶、びん、ペットボトル) 小さな金属類〕 |
| 家庭ごみの戸別収集 | 一部実施(【ふれあい収集】家庭ごみ・粗大ごみを集積場所まで持ち出すことができない高齢者や障害のある方などを対象にごみ出しの支援を実施。【狭あい道路収集】道路が狭く収集車が通行することができないため、集積場所が自宅近くに設けられない地域において、軽四輪車でごみを収集) |
| 粗大ごみ収集 |
あり
|
| 生ごみ処理機助成金制度 |
なし 上限金額 - 上限比率 - |
暮らしデータ提供元:生活ガイド.com
※行政機関により公表していない地域及びデータがございます。東京23区以外の政令指定都市は、市全体のデータとして表示しています。
※提供データには細心の注意を払っておりますが、調査後に変更がある場合があります。 最新の情報につきましては各市区役所までお問い合わせいただくか、自治体HPなどをご確認ください。
※提供データには細心の注意を払っておりますが、調査後に変更がある場合があります。 最新の情報につきましては各市区役所までお問い合わせいただくか、自治体HPなどをご確認ください。



