東京都町田市下小山田町 唐木田駅 新築一戸建て・分譲住宅
4LDK / 唐木田駅
- 情報提供元
- LIFULL HOME'S
価格3580万円
-
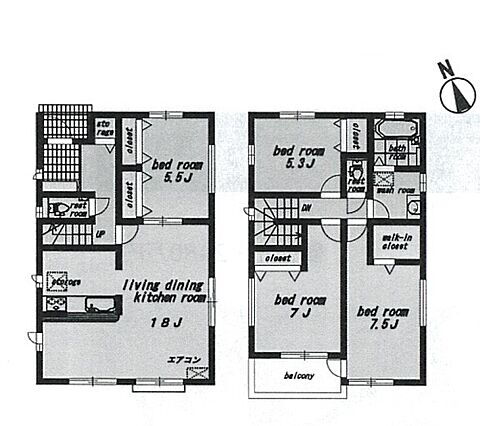
間取り
-
間取り
-
■まずは一度ご覧ください
-
■暮らしを彩る充実した設備仕様が備わった住まい
-
■家族とのお出かけが楽しくなる環境です
-
■新しい暮らしが始まる場所で、家族の絆を深める
-
■家族の笑顔があふれる、くつろぎの空間
-
■静かな洋室で読書や趣味に集中できる場所
-
■清潔感あふれるお部屋で毎日を快適に過ごせます
-
■ シンプルで美しく、快適な暮らしの入り口
-
■自然と会話が生まれる、心地よいひととき
-
■お気に入りの場所で、のんびりとした時間を
-
■家族の時間を彩る、快適で癒される空間
-
■シンプルで美しく心地よい時間を生むキッチン空間
-
■おしゃれで実用的、心ときめくキッチンデザイン
-
■シンプルで機能的、毎日使いやすいキッチン
-
■穏やかな空間で自分の時間を大切に
-
■プライベート空間として静かで落ち着いた環境を提供してくれます
-
■落ち着いた色合いの壁面、ゆっくり寛げるバスルーム
-
■毎日使う場所だからこそ、清潔感溢れる空間
-
■明るい洗面所は毎朝の歯磨きも楽しくできちゃいそうです♪
-
■手洗いや顔を洗う時も快適に使える便利なシャワー
-
■訪問者を確認できて安心感が増します
-
■温水洗浄で快適、清潔感が保たれるシャワートイレ
-
■調理時の蒸気や匂いが換気扇に誘導され、効率的に排煙ができます。
-
■お手入れが楽なIHクッキングヒーターです♪
-
■冬でも温かく、快適乾燥機能で湿気対策もバッチリ
-
■家族の入浴時間がバラバラでも、いつでも温かいお風呂に入れます。
-
■時間短縮でき家事が楽になる便利な必需品
-
■ 心地よい風と光を感じる、くつろぎのバルコニー
-
この物件が気になりましたか? 物件や周辺施設などの詳しい情報は
問合せをすることで確認できます
- お問い合わせ先
- MEgroup エムイーPLUS町田株式会社
暮らしと住まいに価値をPLUSするーエムイーPLUS町田ー
-
価格返済シミュレーション 3580万円
-
土地面積129.29m2
-
建物面積103.09m2
-
間取り4LDK
-
建物構造・規模木造2階建
-
築年月2026年1月
(-)新築 -
駐車場空有 (1台) 無料
-
物件
タイプ新築一戸建て -
住所東京都町田市下小山田町 地図
-
交通小田急電鉄多摩線 唐木田駅 バス8分/「山の端」バス停 停歩1分
| 私道面積 | - |
|---|---|
| 接道状況 | 北5m公道 西6.2m公道 角地 |
| セットバック | 無 |
| 用途地域 | 1種低層 |
| 建ぺい率 / 容積率 | 40% / 80% |
| 地目 | 宅地 |
| 土地権利 | 所有権 |
| 借地期間・地代 | - |
| 都市計画 | - |
| 現況 | 未完成 |
| 引渡可能時期 | 2026年1月下旬 |
| 情報提供元 | LIFULL HOME'S [1284750062107] |
| 情報公開日 | |
| 情報更新日 | |
| 次回更新予定日 | 2025年12月21日 |
地図
設備など
設備
| バス・トイレ | 浴室乾燥機、温水洗浄便座 |
|---|---|
| キッチン | システムキッチン、カウンターキッチン、食器洗浄乾燥機 |
| 収納 | ウォークインクローゼット、床下収納、シューズボックス |
| セキュリティ | モニタ付インターホン |
| 室内設備 | エアコン、照明器具、シャンプードレッサ |
| 建物設備 | 給湯、バルコニー、太陽光システム |
| その他 | 上水道、本下水 |
備考
【設備・特記事項備考】耐震構造・全居室収納・フラット35・S適合証明書・BELS/省エネ基準適合認定建築物
建築確認:有/NO.第R06SHC125418号
国土法届出:不要
販売戸数:1戸
法令等制限:第一種高度地区
続きを見る
建築確認:有/NO.第R06SHC125418号
国土法届出:不要
販売戸数:1戸
法令等制限:第一種高度地区
特記事項
オール電化・設計住宅性能評価取得・建設住宅性能評価取得・瑕疵保険(国交省指定法人)・角地
省エネ性能
| エネルギー消費性能 | - |
|---|---|
| 断熱性能 | - |
| 目安光熱費 | - |
- お問い合わせ先
- MEgroup エムイーPLUS町田株式会社
※0037で始まる電話番号に携帯電話からお問合せいただいた方には、ショートメッセージ(SMS)によるお問合せ完了通知をお届けする場合があります。
不動産会社情報
お問い合わせ先
| 商号 | MEgroup エムイーPLUS町田株式会社 |
|---|---|
| 免許番号 | 東京都知事(2)第98324号 |
| 所在地 | 東京都町田市旭町1丁目4-1 |
| 取引態様 | 媒介 |
| 管理コード | 62107 |
| 所属協会など | (公社)首都圏不動産公正取引協議会、(公社)全日本不動産協会東京都本部 |
この地域の暮らしデータ
町田市の人口などの統計情報
| 世帯数 | 191703世帯 |
|---|---|
| 人口総数 | 430380人 |
| 転入者数 |
18835人 転入率(人口1000人当たり) 43.76人 |
| 転出者数 |
16447人 転出率(人口1000人当たり) 38.22人 |
| 土地平均価格 |
住宅地 153542円/m2 商業地 593091円/m2 |
町田市の結婚・育児の助成金
| 出産・子育て | |
|---|---|
| 子育て関連の独自の取り組み | (1)子育て家庭が気軽に相談等を行える場所として、身近な保育園を利用登録する「マイ保育園事業」を実施。(2)認可外幼児教育施設に通う児童(4・5歳児)の保護者に対し、経済的負担軽減のために補助金を交付。(3)市内の待機児童解消と利用者の選択肢拡充のため、2017年度から駅近くに送迎保育ステーションを開設。(4)2021年度から学童保育クラブで高学年児童の受け入れを開始。(5)保育園や幼稚園等の余裕スペースを活用して、小学生を一時的に預かる「学童一時預かり事業」を実施。(6)ひとり親家庭への宅食事業では、ふるさと納税やガバメントクラウドファンディングによる寄附を活用。 |
| 出産祝い |
あり
|
| 公立保育所数 |
5ヶ所 0歳児保育を実施 5ヶ所 |
| 私立保育所数 |
71ヶ所 0歳児保育を実施 59ヶ所 |
| 保育所入所待機児童数 | 28人 |
| 認定こども園数 | 14園 |
| 預かり保育実施園数-公立 | - |
| 預かり保育実施園数-私立 | 24園 |
| 学校給食 | 【小学校】完全給食【中学校】完全給食(1校※小中一貫校) 家庭弁当等との選択制/デリバリー形式[運搬:ランチボックス、内容:完全給食](19校) 2025年度までに、中学校給食センター方式により、デリバリー形式[運搬:食缶、内容:完全給食]となります。 |
| 公立中学校の学校選択制 | 実施(自由選択制[受入枠の範囲で選択可能/受入枠のない場合は希望不可]) |
| 子ども・学生等医療費助成<通院>対象年齢 | 18歳3月末まで |
| 子ども・学生等医療費助成<入院>対象年齢 | 18歳3月末まで |
町田市の治安・ごみ収集情報
| 公共料金・インフラ | |
|---|---|
| ガス料金(22m3使用した場合の月額) | 東京瓦斯株式会社(東京地区等)3926円 |
| 水道料金(口径20mmで20m3の月額) | 東京都水道局2816円 |
| 下水道料金(20m3を使用した場合の月額) | 町田市2068円 |
| 下水道普及率 | 99.1% |
| 安心・安全 | |
| 建物火災出火件数 |
75件 人口10000人当たり 1.74件 |
| 刑法犯認知件数 |
2396件 人口1000人当たり 5.56件 |
| ハザード・防災マップ | あり |
| 医療 | |
| 一般病院総数 | 16ヶ所 |
| 一般診療所総数 | 341ヶ所 |
| 小児科医師数 |
55人 小児人口10000人当たり 11.11人 |
| 産婦人科医師数 |
21人 15~49歳女性人口1万人当たり 2.54人 |
| 介護保険料基準額(月額) | 6040円 |
| ごみ | |
| 家庭ごみ収集(可燃ごみ) |
有料
|
| 家庭ごみの分別方式 | 4分別17種〔可燃ごみ 不燃ごみ 有害ごみ(乾電池、蛍光管、水銀体温計、ライター) 資源(剪定枝、ビン、カン、ペットボトル、古紙[新聞、雑誌、ダンボール、雑がみ、シュレッダーにかけた紙、紙パック]、古着)〕【JR横浜線以南地域】5分別18種〔上記+容器包装プラスチック〕ただし、拠点回収は除く。 |
| 家庭ごみの戸別収集 | 実施(ただし集合住宅は集積所収集) |
| 粗大ごみ収集 |
あり
|
| 生ごみ処理機助成金制度 |
あり 上限金額 20000円 上限比率 50.0% |
暮らしデータ提供元:生活ガイド.com
※行政機関により公表していない地域及びデータがございます。東京23区以外の政令指定都市は、市全体のデータとして表示しています。
※提供データには細心の注意を払っておりますが、調査後に変更がある場合があります。 最新の情報につきましては各市区役所までお問い合わせいただくか、自治体HPなどをご確認ください。
※提供データには細心の注意を払っておりますが、調査後に変更がある場合があります。 最新の情報につきましては各市区役所までお問い合わせいただくか、自治体HPなどをご確認ください。
住宅ローンシミュレーション
月々の返済額からの購入額の計算と、購入額からの返済額の計算ができます。
住宅ローンをお考えの方へ
最もおトクであなたにぴったりな
住宅ローンをみてみよう!
お気に入りの物件を見逃さない!
プッシュ通知で最新の物件情報が届く






