東京都八王子市東浅川町 高尾駅 新築一戸建て・分譲住宅
4LDK / 高尾駅
- 情報提供元
- LIFULL HOME'S
価格4280万円
-
区画図
-
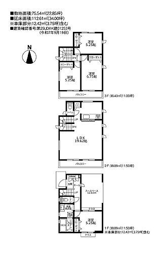
間取り
-
この物件が気になりましたか? 物件や周辺施設などの詳しい情報は
問合せをすることで確認できます
- お問い合わせ先
- ハウジングスカイ株式会社
ハウジングスカイの「諸費用節約対象物件」です。「高尾」駅徒歩13分。食洗機・浴室TV・浴室乾燥機等充実設備。
-
価格返済シミュレーション 4280万円
-
土地面積75.54m2(公簿)
-
建物面積112.61m2(壁芯)
-
間取り4LDK
-
建物構造・規模木造3階建
-
築年月2026年4月
(-)新築 -
駐車場空有 無料
-
物件
タイプ新築一戸建て -
住所東京都八王子市東浅川町 地図
-
交通中央本線 高尾駅 徒歩13分
京王電鉄高尾線 高尾駅 徒歩13分
| 私道面積 | - |
|---|---|
| 接道状況 | 北8m公道 西4.5m公道 角地 |
| セットバック | 無 |
| 用途地域 | 1種住居 |
| 建ぺい率 / 容積率 | 60% / 200% |
| 地目 | 宅地 |
| 土地権利 | 所有権 |
| 借地期間・地代 | - |
| 都市計画 | 市街化区域 |
| 現況 | 未完成 |
| 引渡可能時期 | 相談 |
| 情報提供元 | LIFULL HOME'S [1074240096355] |
| 情報公開日 | |
| 情報更新日 | |
| 次回更新予定日 | 2025年12月14日 |
地図
設備など
設備
| バス・トイレ | 追焚機能、浴室乾燥機、温水洗浄便座、オートバス |
|---|---|
| キッチン | システムキッチン、カウンターキッチン、食器洗浄乾燥機 |
| 収納 | クローゼット、床下収納、シューズボックス |
| セキュリティ | モニタ付インターホン |
| 室内設備 | 照明器具、シャンプードレッサ |
| 建物設備 | 都市ガス |
| その他 | 上水道、本下水 |
備考
諸費用(ローン代行手数料0円・火災保険料web契約の場合5%引)節約対象物件です。 また本物件は仲介手数料も無料で購入いただけます。 【設備・特記事項備考】浴室TV・全居室収納
建築確認:有/NO.第25UDI1K建01253号
国土法届出:不要
販売戸数:1戸/南
続きを見る
建築確認:有/NO.第25UDI1K建01253号
国土法届出:不要
販売戸数:1戸/南
特記事項
角地
省エネ性能
| エネルギー消費性能 | - |
|---|---|
| 断熱性能 | - |
| 目安光熱費 | - |
- お問い合わせ先
- ハウジングスカイ株式会社
※0037で始まる電話番号に携帯電話からお問合せいただいた方には、ショートメッセージ(SMS)によるお問合せ完了通知をお届けする場合があります。
不動産会社情報
お問い合わせ先
| 商号 | ハウジングスカイ株式会社 |
|---|---|
| 免許番号 | 国土交通大臣免許(3)第008572号 |
| 所在地 | 東京都武蔵野市西久保1丁目5-8 |
| 取引態様 | 媒介 |
| 管理コード | 96355 |
| 所属協会など | (公財)東日本不動産流通機構、(公社)首都圏不動産公正取引協議会、(公社)全日本不動産協会東京都本部 |
この地域の暮らしデータ
八王子市の人口などの統計情報
| 世帯数 | 266549世帯 |
|---|---|
| 人口総数 | 560692人 |
| 転入者数 |
26354人 転入率(人口1000人当たり) 47.00人 |
| 転出者数 |
23488人 転出率(人口1000人当たり) 41.89人 |
| 土地平均価格 |
住宅地 130545円/m2 商業地 405286円/m2 |
八王子市の結婚・育児の助成金
| 出産・子育て | |
|---|---|
| 子育て関連の独自の取り組み | (1)子育て応援サイト・妊娠・子育て支援LINE「すくすく☆メール」。(2)レンタルベビーカー。(3)学校サポーター認証制度・学校サポーター育成プログラム。(4)高尾山学園(不登校児童生徒のための小中一貫校)。(5)はちおうじっ子子育てほっとライン(妊娠出産子育て相談窓口)。(6)八王子版ネウボラ乳幼児手帳と保存のためのマイファイル配布。(7)子育て応援企業。(8)ベビーテント貸出。 |
| 出産祝い |
あり
|
| 公立保育所数 |
15ヶ所 0歳児保育を実施 4ヶ所 |
| 私立保育所数 |
73ヶ所 0歳児保育を実施 70ヶ所 |
| 保育所入所待機児童数 | 15人 |
| 認定こども園数 | 21園 |
| 預かり保育実施園数-公立 | - |
| 預かり保育実施園数-私立 | 25園 |
| 学校給食 | 【小学校】完全給食【中学校】完全給食 |
| 公立中学校の学校選択制 | 実施(新入学時、転入または転居により転校するとき) |
| 子ども・学生等医療費助成<通院>対象年齢 | 18歳3月末まで |
| 子ども・学生等医療費助成<入院>対象年齢 | 18歳3月末まで |
八王子市の治安・ごみ収集情報
| 公共料金・インフラ | |
|---|---|
| ガス料金(22m3使用した場合の月額) | 東京瓦斯株式会社(東京地区等)3926円 |
| 水道料金(口径20mmで20m3の月額) | 東京都水道局2816円 |
| 下水道料金(20m3を使用した場合の月額) | 八王子市2068円 |
| 下水道普及率 | 99.4% |
| 安心・安全 | |
| 建物火災出火件数 |
98件 人口10000人当たり 1.69件 |
| 刑法犯認知件数 |
3197件 人口1000人当たり 5.52件 |
| ハザード・防災マップ | あり |
| 医療 | |
| 一般病院総数 | 28ヶ所 |
| 一般診療所総数 | 392ヶ所 |
| 小児科医師数 |
85人 小児人口10000人当たり 14.40人 |
| 産婦人科医師数 |
30人 15~49歳女性人口1万人当たり 2.80人 |
| 介護保険料基準額(月額) | 5950円 |
| ごみ | |
| 家庭ごみ収集(可燃ごみ) |
有料
|
| 家庭ごみの分別方式 | 4分別13種〔可燃ごみ 不燃ごみ 有害ごみ 資源物(容器包装プラスチック、ペットボトル、びん、缶、紙類[新聞・チラシ、ダンボール、雑誌・雑紙、紙パック]、古着・古布、剪定枝)〕 |
| 家庭ごみの戸別収集 | 実施 |
| 粗大ごみ収集 |
あり
|
| 生ごみ処理機助成金制度 |
なし 上限金額 - 上限比率 - |
暮らしデータ提供元:生活ガイド.com
※行政機関により公表していない地域及びデータがございます。東京23区以外の政令指定都市は、市全体のデータとして表示しています。
※提供データには細心の注意を払っておりますが、調査後に変更がある場合があります。 最新の情報につきましては各市区役所までお問い合わせいただくか、自治体HPなどをご確認ください。
※提供データには細心の注意を払っておりますが、調査後に変更がある場合があります。 最新の情報につきましては各市区役所までお問い合わせいただくか、自治体HPなどをご確認ください。
住宅ローンシミュレーション
月々の返済額からの購入額の計算と、購入額からの返済額の計算ができます。
住宅ローンをお考えの方へ
最もおトクであなたにぴったりな
住宅ローンをみてみよう!
お気に入りの物件を見逃さない!
プッシュ通知で最新の物件情報が届く






