埼玉県狭山市笹井3丁目 狭山市駅 新築一戸建て・分譲住宅
4LDK / 狭山市駅
- 情報提供元
- LIFULL HOME'S
価格2790万円
-
区画図
-
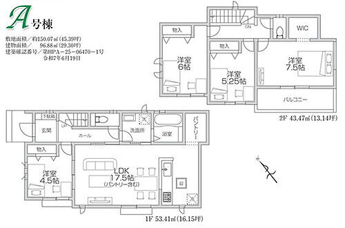
間取り
-
この物件が気になりましたか? 物件や周辺施設などの詳しい情報は
問合せをすることで確認できます
- お問い合わせ先
- ハウジングスカイ株式会社
ハウジングスカイの「諸費用節約対象物件」です。浴室乾燥機等設備。住宅性能評価書取得住宅。ZEH水準の省エネ住宅。
-
価格返済シミュレーション 2790万円
-
土地面積150.07m2(実測)
-
建物面積96.88m2(壁芯)
-
間取り4LDK
-
建物構造・規模木造2階建
-
築年月2025年9月
(-)新築 -
駐車場空有 無料
-
物件
タイプ新築一戸建て -
住所埼玉県狭山市笹井3丁目 地図
-
交通西武鉄道新宿線 狭山市駅 バス10分/「グリーンハイツ」バス停 停歩14分
| 私道面積 | - |
|---|---|
| 接道状況 | 北西4.2m公道 一方道路 |
| セットバック | 無 |
| 用途地域 | 1種低層 |
| 建ぺい率 / 容積率 | 50% / 80% |
| 地目 | 宅地 |
| 土地権利 | 所有権 |
| 借地期間・地代 | - |
| 都市計画 | 市街化区域 |
| 現況 | 空室 |
| 引渡可能時期 | 即時 |
| 情報提供元 | LIFULL HOME'S [1074240095907] |
| 情報公開日 | |
| 情報更新日 | |
| 次回更新予定日 | 2025年12月20日 |
地図
設備など
設備
| バス・トイレ | 追焚機能、浴室乾燥機、温水洗浄便座、オートバス |
|---|---|
| キッチン | システムキッチン、カウンターキッチン |
| 収納 | ウォークインクローゼット、クローゼット、床下収納、シューズボックス |
| セキュリティ | モニタ付インターホン |
| 室内設備 | シャンプードレッサ |
| 建物設備 | バルコニー、プロパンガス |
| その他 | 上水道、本下水 |
備考
諸費用(ローン代行手数料0円・火災保険料web契約の場合5%引)節約対象物件です。 また本物件は仲介手数料も無料で購入いただけます。 【設備・特記事項備考】専用バス・専用トイレ・全居室収納
建築確認:有/NO.第HPA-25-06470-1号
国土法届出:不要
販売戸数:1戸/南西
続きを見る
建築確認:有/NO.第HPA-25-06470-1号
国土法届出:不要
販売戸数:1戸/南西
特記事項
バリアフリー・設計住宅性能評価取得・建設住宅性能評価取得
省エネ性能
| エネルギー消費性能 | - |
|---|---|
| 断熱性能 | - |
| 目安光熱費 | - |
- お問い合わせ先
- ハウジングスカイ株式会社
※0037で始まる電話番号に携帯電話からお問合せいただいた方には、ショートメッセージ(SMS)によるお問合せ完了通知をお届けする場合があります。
不動産会社情報
お問い合わせ先
| 商号 | ハウジングスカイ株式会社 |
|---|---|
| 免許番号 | 国土交通大臣免許(3)第008572号 |
| 所在地 | 東京都武蔵野市西久保1丁目5-8 |
| 取引態様 | 媒介 |
| 管理コード | 95907 |
| 所属協会など | (公財)東日本不動産流通機構、(公社)首都圏不動産公正取引協議会、(公社)全日本不動産協会東京都本部 |
この地域の暮らしデータ
狭山市の人口などの統計情報
| 世帯数 | 63702世帯 |
|---|---|
| 人口総数 | 148872人 |
| 転入者数 |
6457人 転入率(人口1000人当たり) 43.37人 |
| 転出者数 |
5822人 転出率(人口1000人当たり) 39.11人 |
| 土地平均価格 |
住宅地 117127円/m2 商業地 246000円/m2 |
狭山市の結婚・育児の助成金
| 出産・子育て | |
|---|---|
| 子育て関連の独自の取り組み | (1)さやまし子育てガイドブックの配布。(2)子育てボランティア養成講座の実施。(3)さやま子育て支援ネットワーク事業補助金の支給。(4)狭山市地域子育て活動支援補助金の支給。 |
| 出産祝い |
あり
|
| 公立保育所数 |
8ヶ所 0歳児保育を実施 8ヶ所 |
| 私立保育所数 |
18ヶ所 0歳児保育を実施 17ヶ所 |
| 保育所入所待機児童数 | 16人 |
| 認定こども園数 | 5園 |
| 預かり保育実施園数-公立 | 2園 |
| 預かり保育実施園数-私立 | 7園 |
| 学校給食 | 【小学校】完全給食【中学校】完全給食 |
| 公立中学校の学校選択制 | 一部実施(一部の地域で選択制[要申請]) |
| 子ども・学生等医療費助成<通院>対象年齢 | 18歳3月末まで |
| 子ども・学生等医療費助成<入院>対象年齢 | 18歳3月末まで |
狭山市の治安・ごみ収集情報
| 公共料金・インフラ | |
|---|---|
| ガス料金(22m3使用した場合の月額) | 武州瓦斯株式会社4281円 入間ガス株式会社4384円 |
| 水道料金(口径20mmで20m3の月額) | 狭山市2420円 |
| 下水道料金(20m3を使用した場合の月額) | 狭山市1727円 |
| 下水道普及率 | 97.0% |
| 安心・安全 | |
| 建物火災出火件数 |
15件 人口10000人当たり 1.01件 |
| 刑法犯認知件数 |
724件 人口1000人当たり 4.87件 |
| ハザード・防災マップ | あり |
| 医療 | |
| 一般病院総数 | 9ヶ所 |
| 一般診療所総数 | 77ヶ所 |
| 小児科医師数 |
18人 小児人口10000人当たり 12.07人 |
| 産婦人科医師数 |
3人 15~49歳女性人口1万人当たり 1.15人 |
| 介護保険料基準額(月額) | 5625円 |
| ごみ | |
| 家庭ごみ収集(可燃ごみ) |
無料
|
| 家庭ごみの分別方式 | 4分別16種〔もやすごみ もやさないごみ 資源ごみ(古紙[新聞紙、ダンボール、雑誌・雑紙、牛乳パック]、古布、びん・缶、スプレー缶、プラスチック、ペットボトル、生ごみ) 有害ごみ(乾電池、ライター、水銀体温計・温度計、蛍光管等)〕 |
| 家庭ごみの戸別収集 | 一部実施(高齢者のみの世帯及び、身体障害者手帳1級または2級の交付を受けているひとり暮らし世帯で、自ら家庭ごみを集積所まで搬出することが困難で、身近な人などの協力も得られない世帯) |
| 粗大ごみ収集 |
あり
|
| 生ごみ処理機助成金制度 |
あり 上限金額 10000円 上限比率 50.0% |
暮らしデータ提供元:生活ガイド.com
※行政機関により公表していない地域及びデータがございます。東京23区以外の政令指定都市は、市全体のデータとして表示しています。
※提供データには細心の注意を払っておりますが、調査後に変更がある場合があります。 最新の情報につきましては各市区役所までお問い合わせいただくか、自治体HPなどをご確認ください。
※提供データには細心の注意を払っておりますが、調査後に変更がある場合があります。 最新の情報につきましては各市区役所までお問い合わせいただくか、自治体HPなどをご確認ください。
住宅ローンシミュレーション
月々の返済額からの購入額の計算と、購入額からの返済額の計算ができます。
住宅ローンをお考えの方へ
最もおトクであなたにぴったりな
住宅ローンをみてみよう!
お気に入りの物件を見逃さない!
プッシュ通知で最新の物件情報が届く






