大阪府河内長野市南花台5 三日市町駅 新築一戸建て・分譲住宅
3LDK / 三日市町駅
- 情報提供元
- SUUMO
価格3490万円
-
現地写真(外観)
限定1邸
駐車2台可能 -
3490万円、3LDK、土地面積182.26m2、建物面積107.11m2
-
現地写真(トイレ)
汚れてもサッとひと拭きでお手入れ簡単、エコ仕様の温水洗浄便座付きのトイレです。
バリアフリーにも配慮しています。 -
現地写真(外観)
雨で汚れを落とし、耐久性・耐候性に優れた外壁を使用しています。 -
現地写真(リビング)
フローリング材には、木目、色調など木材特有の風合いがあり、ナチュラルな美しさになっています。 -
現地写真(キッチン)
収納たっぷりのシステムキッチン、浄水器付水栓を標準装備しています。 -
現地写真(浴室)
浴室暖房乾燥機付き。1坪タイプで広々です。 -
現地写真(寝室)
木目の美しさを際立たせるシンプルデザインの建具を使用しています。 -
現地写真(洋室)
木目の美しさを際立たせるシンプルデザインの建具を使用しています。 -
現地写真(洋室)
木目の美しさを際立たせるシンプルデザインの建具を使用しています。 -
現地写真(玄関)
玄関には、大型のシューズ収納を設置しています。 -
現地写真(洗面台・洗面所)
鏡の両サイドは、必要なものを取出しやすく、大きな鏡面で朝の準備も快適。
使いやすいリフトアップ機能付きのシングルレバーシャワー水栓付です。 -
現地写真(収納)
大型収納で片付け安心、生活にゆとりができ、お部屋もスッキリします。 -
現地写真(バルコニー)
奥行きが広く、洗濯物をゆったりと干せる十分な広さで、家族の洗濯も捗ります。 -
現地写真(駐車場)
駐車スペースが広く、運転が苦手な方も安心です。 -
■食器洗い乾燥機■
食後の時間にゆとりを与えてくれる食器洗い乾燥機。
操作ボタンも上面にあるので、腰をかがめずに操作ができラクラクです。 -
■浴室暖房換気乾燥機■
寒い冬場はあたたかく、暑い夏場は扇風機のような心地よさです。
雨の日は、浴室が衣類乾燥スペースになります。 -
■浴室暖房換気乾燥機リモコン■
見やすいボタン配置で換気・暖房・乾燥・涼風が簡単操作可能です。 -
■給湯器リモコン■
温度調整機能はもちろん、見やすいボタン配置でお湯はり・追い炊きが簡単操作可能です。 -
■ビルトインコンロ■
フラットな構造で清掃性が高く、過熱防止センサー付3口タイプで日頃の家事も快適です。 -
前面道路含む現地写真
-
この物件が気になりましたか? 物件や周辺施設などの詳しい情報は
問合せをすることで確認できます
- お問い合わせ先
- 住まいのNATTOKU (株)NATTOKU本店
~人生100年時代に長く、安全・快適・健康に暮らしていただくために~住宅性能表示制度の5分野7項目において最高等級を取得!【物件ポイント】・耐震等級3(最高等級)!耐震+制震で繰り返す地震に強い♪・開放感溢れる南東角地!並列駐車2台可能で来客時も安心♪・南向きで陽当たり良好!ワイドバルコニーで洗濯も安心♪【周辺環境】・スーパー 徒歩11分♪・コンビニ 徒歩12分♪・ドラッグストア 徒歩11分♪
-
価格返済シミュレーション 3490万円
-
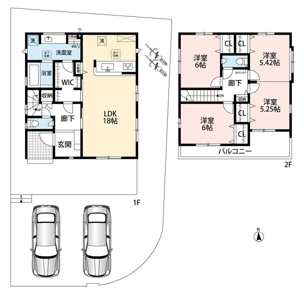
土地面積182.26m2(55.13坪)
-
建物面積107.11m2(32.40坪)
-
間取り3LDK
-
建物構造・規模木造2階建
-
築年月2025年8月
(-)新築 -
駐車場有
-
物件
タイプ新築一戸建て -
住所大阪府河内長野市南花台5 地図
-
交通南海高野線 三日市町駅 バス9分/「南花台4丁目」バス停 停歩7分
| 私道面積 | - |
|---|---|
| 接道状況 | 東9.3m 南6m 二方道路 |
| 用途地域 | 1種低層 |
| 建ぺい率 / 容積率 | 50% / 100% |
| 地目 | - |
| 土地権利 | 所有権 |
| 借地期間・地代 | - |
| 都市計画 | - |
| 現況 | - |
| 引渡可能時期 | 即時 |
| 情報提供元 | SUUMO [060Z78203585] |
| 情報公開日 | |
| 情報更新日 | |
| 次回更新予定日 | 随時 |
地図
設備など
設備
| バス・トイレ | トイレ、浴室乾燥機、温水洗浄便座、風呂、トイレ2ヶ所 |
|---|---|
| キッチン | システムキッチン、対面K、浄水器、食器洗浄乾燥機 |
| 収納 | 収納スペース、ウォークインクローゼット、床下収納 |
| セキュリティ | モニタ付インターホン |
| 室内設備 | 洗面所、フローリング、シャンプードレッサ、衣類乾燥機 |
| 建物設備 | バルコニー、都市ガス、ルーフバルコニー、複層ガラス |
| 駐車場・駐輪場 | 駐車場2台分 |
| その他 | 上水道、本下水 |
備考
<物件名>南花台5 3490万円/<駐車場>カースペース/<土地権利>所有権/<間取り>3LDK/<特徴>■自己資金0円で住宅ローン可能!■家具家電、車など、おまとめローン可能!、長期優良住宅認定通知書・設計住宅性能評価書・建設住宅性能評価書(新築時)・BELS/省エネ基準適合認定書あり・フラット35・S適合証明書
建築確認:有/NO.第R07SHC105714号
販売戸数:1戸
続きを見る
建築確認:有/NO.第R07SHC105714号
販売戸数:1戸
特記事項
日当り良好・バリアフリー・駐車場2台分・設計住宅性能評価取得・角地・整形地・長期優良住宅・建設住宅性能評価取得・浴室1坪以上・フラット35S適合
省エネ性能
| エネルギー消費性能 | - |
|---|---|
| 断熱性能 | - |
| 目安光熱費 | - |
- お問い合わせ先
- 住まいのNATTOKU (株)NATTOKU本店
不動産会社情報
お問い合わせ先
| 商号 | 住まいのNATTOKU (株)NATTOKU本店 |
|---|---|
| 免許番号 | 国土交通大臣(1)第011007号 |
| 所在地 | 大阪府枚方市山之上2-21-9 |
| TEL | 0120-928750 |
| 取引態様 | 媒介 |
| 管理コード | - |
| 所属協会など | - |
この地域の暮らしデータ
河内長野市の人口などの統計情報
| 世帯数 | 42308世帯 |
|---|---|
| 人口総数 | 99226人 |
| 転入者数 |
2675人 転入率(人口1000人当たり) 26.96人 |
| 転出者数 |
2951人 転出率(人口1000人当たり) 29.74人 |
| 土地平均価格 |
住宅地 68609円/m2 商業地 155000円/m2 |
河内長野市の結婚・育児の助成金
| 出産・子育て | |
|---|---|
| 子育て関連の独自の取り組み | (1)子ども・子育て総合センターあいっく(子育てに関する総合拠点)の運営。木のぬくもりを感じる遊び場の運営、出産前からの子育て支援や相談、一時預かり、ファミリー・サポート・センター、幼児健全発達支援、貸室等を実施。子育て家庭の孤立防止を目的に主任児童委員等と連携した訪問等の実施。 (2)サポートブック「は~と」を全出生児へ配布。(3)こどもファミリーセンター【ゆめっく(保健センター)、あいっく、こども相談総合窓口】を設置し、妊産婦・子育て世帯・子どもへの包括的支援を実施。こども相談総合窓口では、18歳までの子どもに関わる悩み、家族関係の不安や心配、ヤングケアラー、虐待相談等を受付。 |
| 出産祝い |
なし
|
| 公立保育所数 |
0ヶ所 0歳児保育を実施 - |
| 私立保育所数 |
7ヶ所 0歳児保育を実施 7ヶ所 |
| 保育所入所待機児童数 | 0人 |
| 認定こども園数 | 16園 |
| 預かり保育実施園数-公立 | - |
| 預かり保育実施園数-私立 | 1園 |
| 学校給食 | 【小学校】完全給食【中学校】家庭弁当等との選択制/デリバリー形式(運搬:ランチボックス、内容:完全給食※主食のみ副食のみなど選択可) |
| 公立中学校の学校選択制 | 未実施 |
| 子ども・学生等医療費助成<通院>対象年齢 | 18歳3月末まで |
| 子ども・学生等医療費助成<入院>対象年齢 | 18歳3月末まで |
河内長野市の治安・ごみ収集情報
| 公共料金・インフラ | |
|---|---|
| ガス料金(22m3使用した場合の月額) | 大阪瓦斯株式会社4544円 河内長野ガス株式会社5198円 |
| 水道料金(口径20mmで20m3の月額) | 河内長野市2975円 |
| 下水道料金(20m3を使用した場合の月額) | 河内長野市2796円 |
| 下水道普及率 | 94.9% |
| 安心・安全 | |
| 建物火災出火件数 |
11件 人口10000人当たり 1.08件 |
| 刑法犯認知件数 |
371件 人口1000人当たり 3.65件 |
| ハザード・防災マップ | あり |
| 医療 | |
| 一般病院総数 | 8ヶ所 |
| 一般診療所総数 | 76ヶ所 |
| 小児科医師数 |
13人 小児人口10000人当たり 13.56人 |
| 産婦人科医師数 |
8人 15~49歳女性人口1万人当たり 4.96人 |
| 介護保険料基準額(月額) | 5980円 |
| ごみ | |
| 家庭ごみ収集(可燃ごみ) |
一部有料
|
| 家庭ごみの分別方式 | 3分別11種〔もえるごみ もえないごみ 資源ごみ(ペットボトル、プラスチック製容器包装、カン・ビン・小型金属類、古布、古紙[新聞、雑誌、ダンボール、飲料用紙パック、雑紙])〕 |
| 家庭ごみの戸別収集 | 一部実施(【ふれあい収集】ごみ出し困難世帯への訪問収集 【もえるごみ臨時収集】もえるごみステーションに出せない世帯へのサポート) |
| 粗大ごみ収集 |
あり
|
| 生ごみ処理機助成金制度 |
なし 上限金額 - 上限比率 - |
暮らしデータ提供元:生活ガイド.com
※行政機関により公表していない地域及びデータがございます。東京23区以外の政令指定都市は、市全体のデータとして表示しています。
※提供データには細心の注意を払っておりますが、調査後に変更がある場合があります。 最新の情報につきましては各市区役所までお問い合わせいただくか、自治体HPなどをご確認ください。
※提供データには細心の注意を払っておりますが、調査後に変更がある場合があります。 最新の情報につきましては各市区役所までお問い合わせいただくか、自治体HPなどをご確認ください。
住宅ローンシミュレーション
月々の返済額からの購入額の計算と、購入額からの返済額の計算ができます。
住宅ローンをお考えの方へ
最もおトクであなたにぴったりな
住宅ローンをみてみよう!
お気に入りの物件を見逃さない!
プッシュ通知で最新の物件情報が届く






