栃木県日光市土沢 下野大沢駅 新築一戸建て・分譲住宅
4LDK / 下野大沢駅
- 情報提供元
- SUUMO
価格2390万円
-
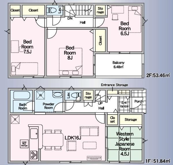
2390万円、4LDK、土地面積220.34m2、建物面積105.3m2 ●限定1棟●
車種によっては、4台駐車が可能です♪ -
2390万円、4LDK、土地面積220.34m2、建物面積105.3m2 ●限定1棟●
リビングは和室と続き間で開放的な室内!
インナーバルコニーがございます◎ -
【11月23日更新】本日モデルハウス内覧可!
モデルハウスにて実際の物件詳細をご説明いたします!
お電話でのお問合せがスムーズです!
028-688-0567
お気軽にお問合せ下さい(^^) -
建物の形状と建てる位置が決まってから調査を依頼し、複数のポイントで地下10mまでの地盤の固さを測定します。同じ土地でも、位置によって地盤の固さが異なる場合があるからです。
-
お買い物帰りで両手がふさがっていても、「ピッ」とするだけで、開錠できるスマートキー。
-
交通量もとても少ないので小さなお子様も安心ですし、苦手な駐車もストレスフリーです!
-
フードオアシスOTANI大沢店まで3164m
-
より丈夫な基礎を築く為、建物の荷重を地盤へ伝える「ベタ基礎」工法を採用しています。
シロアリ被害の対策になるのもメリット。 -
効率的にお料理ができる3口コンロ。
家事の時短になり、ご家族との楽しく過ごせる時間が増やせます。 -
セブンイレブン日光土沢店まで2259m
-
構造部材の接合部強化の為、性能認定金物を使用し、耐震性を高める工夫をしています。
地震等により強い引抜きの力がかかる柱は基礎に埋め込んだホールダウンアンカーを使用して基礎と軸組とを緊結しています -
玄関には宅配ボックス完備。
共働きの方でも安心してネットショッピングできます。 -
カワチ薬品大沢店まで2838m
-
耐力壁に使われる耐力面材ダイライト(壁の外に貼る板)は優れた性能を持ちますが、釘がめり込みすぎると強度が出ません。
その効果を最大限に引き出す方法を実験・研究を行い、強度が落ちない施工方法を開発。 -
三面鏡タイプ洗面台。
ミラー内はすべて収納となっており、中は可動棚で仕切られております。
ご自身に合った収納ができます。 -
日光市立大沢中学校まで3913m
-
グラスウール断熱材はキレイに貼れないと断熱効果が落ちます。時には結露で家にダメージを与えてしまう可能性も。そこで、当社では社員や職人さんにガラス繊維協会の実践するマイスター認定の取得を奨励しています。
-
湿気がたまりやすい浴室に浴室乾燥機つき!
雨が続く中でもお洗濯干しに困りません◎ -
日光市立南原小学校まで936m
-
保証期間中の修理の回数に制限はありません。
修理交換に関わる部品代、作業料、出張費など住宅設備延長保証サービス規定内であればすべて無料。 -
自動で開閉できるトイレ。
終始、手を触れずにできますので、衛生的です。
ふたの閉め忘れも防止できます。 -
この物件が気になりましたか? 物件や周辺施設などの詳しい情報は
問合せをすることで確認できます
- お問い合わせ先
- センチュリー21(株)Best You Housing
コチラの物件は…●ペアガラス採用! 断熱・遮音・強度に優れた、 2枚重ねの窓です!●駐車並列2台可能! 前面道路も狭くなく、 車庫入れ等も楽々!●地震に強い建物! 耐震等級 最 高ランク取得! 地震保険半額適応!\内覧されるお客様へ/最近特に気になる「ハザードマップ」をご説明+差し上げます!物件の事だけではなくそれに付随するお客様のご不安を全て解決致します!失敗の出来ない住宅購入はセンチュリー21BestYouHousingならではの提案にお任せ!
-
価格返済シミュレーション 2390万円
-
土地面積220.34m2(登記)
-
建物面積105.3m2
-
間取り4LDK
-
建物構造・規模木造2階建
-
築年月2025年12月
(-)新築 -
駐車場有
-
物件
タイプ新築一戸建て -
住所栃木県日光市土沢 地図
-
交通JR日光線 下野大沢駅 徒歩23分
東武日光線 明神駅 徒歩28分
JR日光線 今市駅 徒歩5.1km
| 私道面積 | - |
|---|---|
| 接道状況 | 南東4.6m |
| 用途地域 | 無指定 |
| 建ぺい率 / 容積率 | 60% / 200% |
| 地目 | - |
| 土地権利 | 所有権 |
| 借地期間・地代 | - |
| 都市計画 | - |
| 現況 | - |
| 引渡可能時期 | 相談 |
| 情報提供元 | SUUMO [030Z78867543] |
| 情報公開日 | |
| 情報更新日 | |
| 次回更新予定日 | 随時 |
地図
設備など
設備
| バス・トイレ | トイレ、浴室乾燥機、温水洗浄便座、風呂、トイレ2ヶ所 |
|---|---|
| キッチン | システムキッチン、対面K、浄水器 |
| 収納 | 収納スペース、床下収納 |
| セキュリティ | モニタ付インターホン |
| 室内設備 | 洗面所、シャンプードレッサ、衣類乾燥機 |
| 建物設備 | バルコニー、庭、LPガス、ルーフバルコニー、複層ガラス、省エネ給湯器 |
| その他 | 上水道、本下水 |
備考
<物件名>土沢(下野大沢駅) 2390万円/<駐車場>カースペース/<土地権利>所有権/<間取り>4LDK/<特徴>●限定1棟●モデルハウス内覧できます!風通しの良い住宅街♪駐車スペース広♪、設計住宅性能評価書・建設住宅性能評価書(新築時)・フラット35・S適合証明書・地盤調査済・年内引渡可
建築確認:有/NO.第HPA-25-10461-1号
販売戸数:1戸
続きを見る
建築確認:有/NO.第HPA-25-10461-1号
販売戸数:1戸
特記事項
日当り良好・閑静な住宅街・バリアフリー・駐車場3台分以上・設計住宅性能評価取得・整形地・建設住宅性能評価取得・浴室1坪以上・フラット35S適合
省エネ性能
| エネルギー消費性能 | - |
|---|---|
| 断熱性能 | - |
| 目安光熱費 | - |
- お問い合わせ先
- センチュリー21(株)Best You Housing
不動産会社情報
お問い合わせ先
| 商号 | センチュリー21(株)Best You Housing |
|---|---|
| 免許番号 | 栃木県知事(2)第005181号 |
| 所在地 | 栃木県宇都宮市越戸4-6-7 |
| TEL | 028-688-0567 |
| 取引態様 | 一般媒介 |
| 管理コード | 183401-2106 |
| 所属協会など | - |
この地域の暮らしデータ
日光市の人口などの統計情報
| 世帯数 | 32219世帯 |
|---|---|
| 人口総数 | 76413人 |
| 転入者数 |
2371人 転入率(人口1000人当たり) 31.03人 |
| 転出者数 |
2415人 転出率(人口1000人当たり) 31.60人 |
| 土地平均価格 |
住宅地 13678円/m2 商業地 32344円/m2 |
日光市の結婚・育児の助成金
| 出産・子育て | |
|---|---|
| 子育て関連の独自の取り組み | 放課後児童クラブに3人以上入会している世帯について、3人目以降の利用料金の軽減。3人目以降の利用料は無料。 |
| 出産祝い |
あり
|
| 公立保育所数 |
6ヶ所 0歳児保育を実施 4ヶ所 |
| 私立保育所数 |
8ヶ所 0歳児保育を実施 7ヶ所 |
| 保育所入所待機児童数 | 0人 |
| 認定こども園数 | 5園 |
| 預かり保育実施園数-公立 | - |
| 預かり保育実施園数-私立 | 3園 |
| 学校給食 | 【小学校】完全給食【中学校】完全給食 |
| 公立中学校の学校選択制 | 未実施 |
| 子ども・学生等医療費助成<通院>対象年齢 | 18歳3月末まで |
| 子ども・学生等医療費助成<入院>対象年齢 | 18歳3月末まで |
日光市の治安・ごみ収集情報
| 公共料金・インフラ | |
|---|---|
| ガス料金(22m3使用した場合の月額) | - |
| 水道料金(口径20mmで20m3の月額) | 日光市2667円 |
| 下水道料金(20m3を使用した場合の月額) | 日光市3062円 |
| 下水道普及率 | 66.0% |
| 安心・安全 | |
| 建物火災出火件数 |
20件 人口10000人当たり 2.58件 |
| 刑法犯認知件数 |
339件 人口1000人当たり 4.37件 |
| ハザード・防災マップ | あり |
| 医療 | |
| 一般病院総数 | 7ヶ所 |
| 一般診療所総数 | 54ヶ所 |
| 小児科医師数 |
7人 小児人口10000人当たり 10.45人 |
| 産婦人科医師数 |
1人 15~49歳女性人口1万人当たり 0.82人 |
| 介護保険料基準額(月額) | 5600円 |
| ごみ | |
| 家庭ごみ収集(可燃ごみ) |
有料
|
| 家庭ごみの分別方式 | 6分別19種〔燃えるごみ(剪定枝、刈草・落葉、紙おむつ、布団、その他) 燃えないごみ(電池、蛍光管等、水銀体温計等、スプレー缶・ライター、その他) びん 缶・ペットボトル 古紙類(新聞紙、雑誌、雑がみ、紙パック、段ボール、シュレッダーごみ) 衣類・古紙類〕 拠点回収:使用済小型家電 白色トレイ インクカートリッジ |
| 家庭ごみの戸別収集 | 一部実施(【ふれあい収集】高齢・障がい等の理由により、家庭ごみをごみステーションまで運ぶことが困難な世帯の方が対象) |
| 粗大ごみ収集 |
あり
|
| 生ごみ処理機助成金制度 |
あり 上限金額 30000円 上限比率 50.0% |
暮らしデータ提供元:生活ガイド.com
※行政機関により公表していない地域及びデータがございます。東京23区以外の政令指定都市は、市全体のデータとして表示しています。
※提供データには細心の注意を払っておりますが、調査後に変更がある場合があります。 最新の情報につきましては各市区役所までお問い合わせいただくか、自治体HPなどをご確認ください。
※提供データには細心の注意を払っておりますが、調査後に変更がある場合があります。 最新の情報につきましては各市区役所までお問い合わせいただくか、自治体HPなどをご確認ください。
住宅ローンシミュレーション
月々の返済額からの購入額の計算と、購入額からの返済額の計算ができます。
住宅ローンをお考えの方へ
最もおトクであなたにぴったりな
住宅ローンをみてみよう!
お気に入りの物件を見逃さない!
プッシュ通知で最新の物件情報が届く






