栃木県日光市板橋 下野大沢駅 新築一戸建て・分譲住宅
4LDK / 下野大沢駅
- 情報提供元
- SUUMO
価格2290万円
-
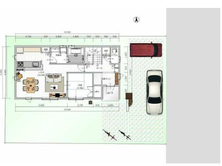
2290万円、4LDK、土地面積191.17m2、建物面積106.98m2 ◇土地57.82坪 建物32.36坪 WIC SIC ダブルインナーバルコニー リビング横和室◇
-
2290万円、4LDK、土地面積191.17m2、建物面積106.98m2 JR日光線「下野大沢」駅より徒歩14分で通勤通学に便利!駐車2台可能なほか、駐輪スペースもあります♪
-
◆本日のご案内も大歓迎です♪◆ 図面や写真では分からない部分を不動産のプロが丁寧にご説明いたします!! 年中無休のソルホームはいつでもお問い合わせをお待ちしております♪
-
完成予想パース図
-
閑静な住宅地で子育て家族にピッタリ。毎日のお散歩も快適な緑に恵まれたエリアで、自然に包まれた穏やかな暮らしを実現するための、ゆとりある住環境が整っています。
-
低層の一戸建てを中心とした街並みが整然と続き、周辺は高い建物が建っていないので、採光や開放性に恵まれ、空が広く緑の多い閑静な趣を感じる環境です。
-
内装例
-
内装例
-
フードオアシスOTANI(オータニ) 大沢店まで2494m
-
セブンイレブン 日光板橋店まで851m
-
ツルハドラッグ 日光板橋店まで719m
-
株式会社足利銀行 大沢出張所まで1165m
-
この物件が気になりましたか? 物件や周辺施設などの詳しい情報は
問合せをすることで確認できます
- お問い合わせ先
- (株)Sol Home宇都宮支店
《今から見たい、資料が欲しい、ローン相談をしたい、小さな疑問なども大歓迎です♪》画面オレンジ色の「資料請求(無料)」をクリック!お気軽にお問い合わせください!☆物件おすすめPOINT☆・下野大沢駅まで徒歩15分!周辺環境良好♪・WIC付きで満足の収納力♪・ダブルインナーバルコニーで急な雨でも安心♪☆周辺ロケーション☆南原小学校 約1.6km/徒歩21分大沢中学校 約3.5km/徒歩45分オータニ大沢店 約2.5km/車7分〇未掲載物件や、非公開物件などさらに物件を見たい方は下記リンクよりソルホームHPへお越しください(^^♪
-
価格返済シミュレーション 2290万円
-
土地面積191.17m2(57.82坪)(登記)
-
建物面積106.98m2(32.36坪)(登記)
-
間取り4LDK
-
建物構造・規模木造2階建
-
築年月2025年12月
(-)新築 -
駐車場有
-
物件
タイプ新築一戸建て -
住所栃木県日光市板橋 地図
-
交通JR日光線 下野大沢駅 徒歩15分
東武日光線 明神駅 徒歩32分
東武日光線 下小代駅 徒歩5.5km
| 私道面積 | - |
|---|---|
| 接道状況 | 東5.6m |
| 用途地域 | 無指定 |
| 建ぺい率 / 容積率 | 60% / 200% |
| 地目 | - |
| 土地権利 | 所有権 |
| 借地期間・地代 | - |
| 都市計画 | - |
| 現況 | - |
| 引渡可能時期 | 2025年12月 |
| 情報提供元 | SUUMO [030Z78501613] |
| 情報公開日 | |
| 情報更新日 | |
| 次回更新予定日 | 随時 |
地図
設備など
設備
| バス・トイレ | 浴室乾燥機、風呂 |
|---|---|
| キッチン | システムキッチン、対面K |
| 収納 | 収納スペース、床下収納 |
| 室内設備 | 洗面所、シャンプードレッサ、衣類乾燥機 |
| 建物設備 | バルコニー、LPガス、2面バルコニー、複層ガラス、省エネ給湯器 |
| 駐車場・駐輪場 | 駐車場2台分 |
| その他 | 上水道 |
備考
<物件名>板橋(下野大沢駅) 2290万円/<駐車場>カースペース/<土地権利>所有権/<間取り>4LDK/<特徴>12/7更新\12月末までの契約でエアコンサービス/本日案内も歓迎です♪、駐車2台可・土地50坪以上・年度内引渡可・省エネ給湯器・南向き
建築確認:有/NO.21UDI1S建03199
販売戸数:1戸
法令等制限:景観法、農地法届出要、宅地造成工事規制区域
続きを見る
建築確認:有/NO.21UDI1S建03199
販売戸数:1戸
法令等制限:景観法、農地法届出要、宅地造成工事規制区域
特記事項
閑静な住宅街・駐車場2台分・浴室1坪以上
省エネ性能
| エネルギー消費性能 | - |
|---|---|
| 断熱性能 | - |
| 目安光熱費 | - |
- お問い合わせ先
- (株)Sol Home宇都宮支店
不動産会社情報
お問い合わせ先
| 商号 | (株)Sol Home宇都宮支店 |
|---|---|
| 免許番号 | 国土交通大臣(1)第010994号 |
| 所在地 | 栃木県宇都宮市上戸祭町389ー7 シャトー2 |
| TEL | 028-611-1084 |
| 取引態様 | 媒介 |
| 管理コード | 11-259(183600) |
| 所属協会など | - |
この地域の暮らしデータ
日光市の人口などの統計情報
| 世帯数 | 32219世帯 |
|---|---|
| 人口総数 | 76413人 |
| 転入者数 |
2371人 転入率(人口1000人当たり) 31.03人 |
| 転出者数 |
2415人 転出率(人口1000人当たり) 31.60人 |
| 土地平均価格 |
住宅地 13678円/m2 商業地 32344円/m2 |
日光市の結婚・育児の助成金
| 出産・子育て | |
|---|---|
| 子育て関連の独自の取り組み | 放課後児童クラブに3人以上入会している世帯について、3人目以降の利用料金の軽減。3人目以降の利用料は無料。 |
| 出産祝い |
あり
|
| 公立保育所数 |
6ヶ所 0歳児保育を実施 4ヶ所 |
| 私立保育所数 |
8ヶ所 0歳児保育を実施 7ヶ所 |
| 保育所入所待機児童数 | 0人 |
| 認定こども園数 | 5園 |
| 預かり保育実施園数-公立 | - |
| 預かり保育実施園数-私立 | 3園 |
| 学校給食 | 【小学校】完全給食【中学校】完全給食 |
| 公立中学校の学校選択制 | 未実施 |
| 子ども・学生等医療費助成<通院>対象年齢 | 18歳3月末まで |
| 子ども・学生等医療費助成<入院>対象年齢 | 18歳3月末まで |
日光市の治安・ごみ収集情報
| 公共料金・インフラ | |
|---|---|
| ガス料金(22m3使用した場合の月額) | - |
| 水道料金(口径20mmで20m3の月額) | 日光市2667円 |
| 下水道料金(20m3を使用した場合の月額) | 日光市3062円 |
| 下水道普及率 | 66.0% |
| 安心・安全 | |
| 建物火災出火件数 |
20件 人口10000人当たり 2.58件 |
| 刑法犯認知件数 |
339件 人口1000人当たり 4.37件 |
| ハザード・防災マップ | あり |
| 医療 | |
| 一般病院総数 | 7ヶ所 |
| 一般診療所総数 | 54ヶ所 |
| 小児科医師数 |
7人 小児人口10000人当たり 10.45人 |
| 産婦人科医師数 |
1人 15~49歳女性人口1万人当たり 0.82人 |
| 介護保険料基準額(月額) | 5600円 |
| ごみ | |
| 家庭ごみ収集(可燃ごみ) |
有料
|
| 家庭ごみの分別方式 | 6分別19種〔燃えるごみ(剪定枝、刈草・落葉、紙おむつ、布団、その他) 燃えないごみ(電池、蛍光管等、水銀体温計等、スプレー缶・ライター、その他) びん 缶・ペットボトル 古紙類(新聞紙、雑誌、雑がみ、紙パック、段ボール、シュレッダーごみ) 衣類・古紙類〕 拠点回収:使用済小型家電 白色トレイ インクカートリッジ |
| 家庭ごみの戸別収集 | 一部実施(【ふれあい収集】高齢・障がい等の理由により、家庭ごみをごみステーションまで運ぶことが困難な世帯の方が対象) |
| 粗大ごみ収集 |
あり
|
| 生ごみ処理機助成金制度 |
あり 上限金額 30000円 上限比率 50.0% |
暮らしデータ提供元:生活ガイド.com
※行政機関により公表していない地域及びデータがございます。東京23区以外の政令指定都市は、市全体のデータとして表示しています。
※提供データには細心の注意を払っておりますが、調査後に変更がある場合があります。 最新の情報につきましては各市区役所までお問い合わせいただくか、自治体HPなどをご確認ください。
※提供データには細心の注意を払っておりますが、調査後に変更がある場合があります。 最新の情報につきましては各市区役所までお問い合わせいただくか、自治体HPなどをご確認ください。
住宅ローンシミュレーション
月々の返済額からの購入額の計算と、購入額からの返済額の計算ができます。
住宅ローンをお考えの方へ
最もおトクであなたにぴったりな
住宅ローンをみてみよう!
お気に入りの物件を見逃さない!
プッシュ通知で最新の物件情報が届く






