コーポ押上 8階 3SLDK
3SLDK / 押上駅
- 情報提供元
- LIFULL HOME'S
価格7999万円
-
現地外観
-
間取り図
-
現地外観
-
生鮮食品、惣菜、パン類も良質な品からお手頃な品まで幅広く、目新しく面白い商品も豊富だ。
-
スカイツリーから近く、品揃えも良いです。
-
売り場が広く買いやすいです。
-
ユニークな環境と、子供たちの成長を第一に考える温かい保育が魅力です。
-
運動会、学芸会、音楽会、展覧会、バザーなども各年でとり行われます。オーケストラやミュージカルの観劇、プラネタリウム鑑賞などもあります。
-
学校全体としてはとても良い学校です。先生方も良い先生が多くいます。部活動も盛んでとても充実した学校生活が送れます。
-
小児科、婦人科あり。周産期・小児医療、成人・老年期地域医療、終末期医療と生涯を通してお付き合いができる総合医院です。
-
押上駅前、浅草通り沿いにあります。駐車場はありません。
-
滑り台、ブランコ、砂場、広場、十分な遊具があります。
-
玄関
-
リビング
-
リビング
-
リビング
-
ダイニング
-
キッチン
-
キッチン
-
洋室
-
洋室
-
洋室
-
浴室
-
トイレ
-
洗面台
-
クローゼット
-
バルコニー
-
部屋からの眺望
-
部屋からの眺望
-
この物件が気になりましたか? 物件や周辺施設などの詳しい情報は
問合せをすることで確認できます
- お問い合わせ先
- 株式会社アドキャスト 錦糸町支店
角部屋につき開放感と日当たりが良好~周辺に買物施設が充実しており生活利便良好
-
価格返済シミュレーション 7999万円
-
管理費等23,800円
-
修繕
積立金21,200円 -
専有面積94m2(壁芯)
-
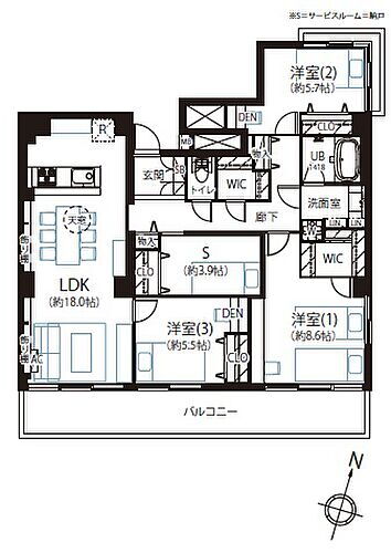
間取り3SLDK (LDK 18 洋 8.6・5.7・5.5 S 3.9)
-
バルコニー面積14.1m2
-
築年数1978年1月
(築47年12ヶ月) -
方位南東
-
駐車場無
-
総戸数28戸
-
所在階
階数8階
8階建 -
物件
タイプ中古マンション -
マンション名コーポ押上
-
住所東京都墨田区業平1丁目 地図
-
交通京成電鉄押上線 押上駅 徒歩3分
東京メトロ半蔵門線 押上駅 徒歩4分
| 借地期間・地代 | - |
|---|---|
| 建物構造 | SRC |
| 管理形態 | 一部委託 |
| 管理員の勤務形態 | 日勤 |
| 維持費等 | - |
| 土地権利 | 所有権 |
| 用途地域 | 商業地域 |
| 現況 | 空室 |
| 引渡可能年月 | 相談 |
| 情報提供元 | LIFULL HOME'S [1339690006427] |
| 情報公開日 | |
| 情報更新日 | |
| 次回更新予定日 | 2025年12月20日 |
地図
設備など
設備
| バス・トイレ | バス・トイレ別、追焚機能、浴室乾燥機 |
|---|---|
| キッチン | カウンターキッチン、食器洗浄乾燥機 |
| 収納 | ウォークインクローゼット、クローゼット、シューズボックス |
| 室内設備 | フローリング、照明器具、洗面所独立、室内洗濯機置き場 |
| 建物設備 | バルコニー、エレベーター、都市ガス |
| 特徴 | リフォーム |
| その他 | 上水道、本下水 |
リフォーム履歴
■水回り
2025年10月実施
キッチン/浴室/トイレ/洗面所
■内装
2025年10月実施
壁・天井(クロス・塗装等)/床(フローリング等)/建具(室内ドア等)
※実施年月は、施工箇所の中で最も古いものを表示しています
続きを見る
2025年10月実施
キッチン/浴室/トイレ/洗面所
■内装
2025年10月実施
壁・天井(クロス・塗装等)/床(フローリング等)/建具(室内ドア等)
※実施年月は、施工箇所の中で最も古いものを表示しています
備考
【物件周辺の生活情報】
・学校
墨田区立業平小学校(400m)、墨田区立本所中学校(1,100m)
・買い物
スーパー(350m)、コンビニ(150m)
・その他施設
総合病院(1,000m)
「ライフプランシミュレーションによる無理のない資金計画のご提案、近隣聞き込み調査や役所調査を含めた独自の物件調査報告書の作成など、不動産購入に関するお客様のあらゆる不安を解消いたします」~~~不動産の専門家があなたのマイホーム探しを徹底サポート~~~生活に必要な施設の充実さが特徴です~~~スーパーや公園、商業施設など生活利便性は良好です。
国土法届出:不要
販売戸数:1戸
続きを見る
・学校
墨田区立業平小学校(400m)、墨田区立本所中学校(1,100m)
・買い物
スーパー(350m)、コンビニ(150m)
・その他施設
総合病院(1,000m)
「ライフプランシミュレーションによる無理のない資金計画のご提案、近隣聞き込み調査や役所調査を含めた独自の物件調査報告書の作成など、不動産購入に関するお客様のあらゆる不安を解消いたします」~~~不動産の専門家があなたのマイホーム探しを徹底サポート~~~生活に必要な施設の充実さが特徴です~~~スーパーや公園、商業施設など生活利便性は良好です。
国土法届出:不要
販売戸数:1戸
特記事項
最上階
省エネ性能
| エネルギー消費性能 | - |
|---|---|
| 断熱性能 | - |
| 目安光熱費 | - |
- お問い合わせ先
- 株式会社アドキャスト 錦糸町支店
※0037で始まる電話番号に携帯電話からお問合せいただいた方には、ショートメッセージ(SMS)によるお問合せ完了通知をお届けする場合があります。
不動産会社情報
お問い合わせ先
| 商号 | 株式会社アドキャスト 錦糸町支店 |
|---|---|
| 免許番号 | 東京都知事(4)第086581号 |
| 所在地 | 東京都墨田区江東橋3丁目9-7 国宝ビル7F |
| 取引態様 | 媒介 |
| 管理コード | 6427 |
| 所属協会など | (公社)首都圏不動産公正取引協議会、(公社)東京都宅地建物取引業協会 |
この地域の暮らしデータ
墨田区の人口などの統計情報
| 世帯数 | 145609世帯 |
|---|---|
| 人口総数 | 284555人 |
| 転入者数 |
28109人 転入率(人口1000人当たり) 98.78人 |
| 転出者数 |
22671人 転出率(人口1000人当たり) 79.67人 |
| 土地平均価格 |
住宅地 501800円/m2 商業地 808000円/m2 |
墨田区の結婚・育児の助成金
| 出産・子育て | |
|---|---|
| 子育て関連の独自の取り組み | (1)保護者等の急な残業等の場合に、1時間単位で利用を承認する「スポット延長保育」を実施。(2)子育て安心ステーション事業の実施(地域の保育園等が、育児相談や保育園見学・体験等を行う)。(3)墨田区公式LINEから各種子育て情報を発信する。(4)MR定期接種の機会を逃した方へMR任意接種の費用を全額助成(高校3年生相当年齢まで)。(5)骨髄移植手術等により既に接種済みの定期予防接種の効果が期待できず再接種が必要と医師に判断され、再接種を受ける場合の再接種費用を助成。(6)1歳以上就学前の子へ、おたふくかぜ任意予防接種費用の一部(3,000円)を助成。(7)生後6ヶ月から15歳の子へ、インフルエンザ予防接種費用の一部(最大2,000円)を助成。 |
| 出産祝い |
あり
|
| 公立保育所数 |
23ヶ所 0歳児保育を実施 12ヶ所 |
| 私立保育所数 |
56ヶ所 0歳児保育を実施 52ヶ所 |
| 保育所入所待機児童数 | 8人 |
| 認定こども園数 | 4園 |
| 預かり保育実施園数-公立 | 0園 |
| 預かり保育実施園数-私立 | 8園 |
| 学校給食 | 【小学校】完全給食【中学校】完全給食 |
| 公立中学校の学校選択制 | 実施 |
| 子ども・学生等医療費助成<通院>対象年齢 | 18歳3月末まで |
| 子ども・学生等医療費助成<入院>対象年齢 | 18歳3月末まで |
墨田区の治安・ごみ収集情報
| 公共料金・インフラ | |
|---|---|
| ガス料金(22m3使用した場合の月額) | 東京瓦斯株式会社(東京地区等)3926円 |
| 水道料金(口径20mmで20m3の月額) | 東京都水道局2816円 |
| 下水道料金(20m3を使用した場合の月額) | 東京都下水道局2068円 |
| 下水道普及率 | 100.0% |
| 安心・安全 | |
| 建物火災出火件数 |
72件 人口10000人当たり 2.65件 |
| 刑法犯認知件数 |
2137件 人口1000人当たり 7.85件 |
| ハザード・防災マップ | あり |
| 医療 | |
| 一般病院総数 | 13ヶ所 |
| 一般診療所総数 | 245ヶ所 |
| 小児科医師数 |
85人 小児人口10000人当たり 30.84人 |
| 産婦人科医師数 |
40人 15~49歳女性人口1万人当たり 5.64人 |
| 介護保険料基準額(月額) | 6600円 |
| ごみ | |
| 家庭ごみ収集(可燃ごみ) |
無料
|
| 家庭ごみの分別方式 | 3分別11種〔可燃ごみ 不燃ごみ 資源物(新聞、段ボール、紙パック、雑誌、雑がみ、缶、びん、ペットボトル、プラスチック)〕 拠点回収:廃食油 乾電池 使用済小型家電 歯ブラシ ペットボトルキャップ |
| 家庭ごみの戸別収集 | 一部実施(【ふれあい収集】一部地域のみ実施) |
| 粗大ごみ収集 |
あり
|
| 生ごみ処理機助成金制度 |
なし 上限金額 - 上限比率 - |
墨田区の住まいの給付金
暮らしデータ提供元:生活ガイド.com
※行政機関により公表していない地域及びデータがございます。東京23区以外の政令指定都市は、市全体のデータとして表示しています。
※提供データには細心の注意を払っておりますが、調査後に変更がある場合があります。 最新の情報につきましては各市区役所までお問い合わせいただくか、自治体HPなどをご確認ください。
※提供データには細心の注意を払っておりますが、調査後に変更がある場合があります。 最新の情報につきましては各市区役所までお問い合わせいただくか、自治体HPなどをご確認ください。
住宅ローンシミュレーション
月々の返済額からの購入額の計算と、購入額からの返済額の計算ができます。
住宅ローンをお考えの方へ
最もおトクであなたにぴったりな
住宅ローンをみてみよう!
お気に入りの物件を見逃さない!
プッシュ通知で最新の物件情報が届く






