垂水アーバンコンフォートリアヒルズ 9階 4LDK
4LDK / 垂水駅
- 情報提供元
- LIFULL HOME'S
価格3490万円
-
高層階、南西向き、日当たり・通風・眺望良好、メゾネット、LDK20帖以上、対面式キッチン、IHコンロ、収納充実、床暖房、ルーフバルコニー、ペット飼育可能、最寄りバス停徒歩2分、近隣施設良好など魅力的♪
-
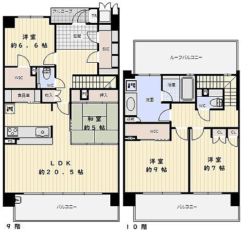
間取り
-
社会福祉法人みかり会 幼保連携型認定こども園上高丸 約280m
-
社会福祉法人親和福祉の会 幼保連携型認定こども園 千鳥が丘親和こども園 約410m
-
市立千鳥が丘小学校 約310m
-
コープこうべ高丸 約730m
-
神戸上高丸郵便局 約100m
-
階段(9階)
-
廊下(10階)
-
玄関
-
キッチン
-
風呂
-
9階
-
洗面
-
オートロック・案内図
-
宅配BOX
-
エレベーター
-
共用温浴施設
-
バルコニー
-
平成20年11月建築で、エレベーター・オートロック・防犯カメラ・宅配BOX有、ペット飼育可能(規約有)な地下1階付15階建てオール電化マンションです!敷地内駐車場は1世帯につき1台ございます!
-
共用部分の仕様設備も良好で、ゲストルーム・集会室・温浴施設・ロビーラウンジ・屋上テラス・24時間ゴミドラム・ペット足洗い場・来客用駐車場などがございます♪
-
ホール
-
敷地内駐車場
-
バイク置場
-
明石海峡大橋・淡路島・海が一望で、ステキな眺望です♪令和4年5月にIH・電気温水器交換をされております!
-
最寄バス停まで徒歩2分で、スーパー・コンビニ・ドラッグストア・郵便局・教育施設・児童館・公園が近隣にある生活便利な立地です!
-
約9帖
-
画像
-
管理人室
-
集合ポスト
-
この物件が気になりましたか? 物件や周辺施設などの詳しい情報は
問合せをすることで確認できます
- お問い合わせ先
- 株式会社Wing不動産流通
9階・10階フロアの南西向き・メゾネットタイプで、日当たり・通風・眺望良好な4LDKです!ペット飼育可能(規約有)で、大切なご家族も一緒にお住いいただけます♪敷地内駐車場は1世帯につき1台ございます!
-
価格返済シミュレーション 3490万円
-
管理費等21,730円
-
修繕
積立金25,230円 -
専有面積140.08m2(壁芯)
-
間取り4LDK
-
バルコニー面積24.8m2
-
築年数2008年11月
(築17年2ヶ月) -
方位南西
-
駐車場有 4,000円
-
総戸数235戸
-
所在階
階数9階
地上15階地下1階建 -
物件
タイプ中古マンション -
マンション名垂水アーバンコンフォートリアヒルズ
-
住所兵庫県神戸市垂水区上高丸3丁目 地図
-
交通山陽本線 垂水駅 バス7分/「上高丸団地」バス停 停歩2分
| 借地期間・地代 | - |
|---|---|
| 建物構造 | RC |
| 管理形態 | 全部委託 |
| 管理員の勤務形態 | 日勤 |
| 維持費等 | - |
| 土地権利 | 所有権 |
| 用途地域 | 1種中高 |
| 現況 | 居住中 |
| 引渡可能年月 | 相談 |
| 情報提供元 | LIFULL HOME'S [1335580004138] |
| 情報公開日 | |
| 情報更新日 | |
| 次回更新予定日 | 2025年12月19日 |
地図
設備など
設備
| バス・トイレ | バス・トイレ別、追焚機能、浴室乾燥機、温水洗浄便座、オートバス |
|---|---|
| キッチン | システムキッチン、カウンターキッチン、IHクッキングヒータ |
| 収納 | ウォークインクローゼット、クローゼット、トランクルーム、シューズインクローク |
| セキュリティ | オートロック、モニタ付インターホン、防犯カメラ |
| 室内設備 | シャンプードレッサ、床暖房、洗面所独立、室内洗濯機置き場 |
| 建物設備 | バルコニー、エレベーター、宅配BOX |
| 駐車場・駐輪場 | 駐輪場、バイク置き場 |
| 特徴 | リフォーム |
リフォーム履歴
■水回り
2022年05月実施
IH・電気温水器交換
※実施年月は、施工箇所の中で最も古いものを表示しています
続きを見る
2022年05月実施
IH・電気温水器交換
※実施年月は、施工箇所の中で最も古いものを表示しています
備考
【物件周辺の生活情報】
・学校
神戸市立千鳥が丘小学校(310m)、神戸市立福田中学校(1,540m)
・買い物
スーパー(730m)、コンビニ(340m)、ドラッグストア(860m)
・その他施設
総合病院(830m)、公園(1,280m)、銀行(1,290m)、郵便局(100m)
広々したバルコニーやルーフバルコニー(17.82平米)があります!LDK約20.5帖で広々しており、床暖房が設置されて寒い日は暖かく過ごせます♪キッチンに食品庫・廊下に物入・WIC2か所・全居室に収納・洗面室にリネン庫・SIC・トランクルームがあり、収納充実でマンションにいながら戸建て感覚をご堪能いただけます!10階に浴室・洗面室など水廻りがあり、プライベートスペースが確保されております♪ 【駐車場備考】~6,500円 【設備・特記事項備考】専用バス・専用トイレ・全居室収納
国土法届出:不要
ルーフバルコニー使用料(月額):360円
続きを見る
・学校
神戸市立千鳥が丘小学校(310m)、神戸市立福田中学校(1,540m)
・買い物
スーパー(730m)、コンビニ(340m)、ドラッグストア(860m)
・その他施設
総合病院(830m)、公園(1,280m)、銀行(1,290m)、郵便局(100m)
広々したバルコニーやルーフバルコニー(17.82平米)があります!LDK約20.5帖で広々しており、床暖房が設置されて寒い日は暖かく過ごせます♪キッチンに食品庫・廊下に物入・WIC2か所・全居室に収納・洗面室にリネン庫・SIC・トランクルームがあり、収納充実でマンションにいながら戸建て感覚をご堪能いただけます!10階に浴室・洗面室など水廻りがあり、プライベートスペースが確保されております♪ 【駐車場備考】~6,500円 【設備・特記事項備考】専用バス・専用トイレ・全居室収納
国土法届出:不要
ルーフバルコニー使用料(月額):360円
特記事項
ペット相談可・オール電化・24時間ゴミ出し可
省エネ性能
| エネルギー消費性能 | - |
|---|---|
| 断熱性能 | - |
| 目安光熱費 | - |
- お問い合わせ先
- 株式会社Wing不動産流通
※0037で始まる電話番号に携帯電話からお問合せいただいた方には、ショートメッセージ(SMS)によるお問合せ完了通知をお届けする場合があります。
不動産会社情報
お問い合わせ先
| 商号 | 株式会社Wing不動産流通 |
|---|---|
| 免許番号 | 兵庫県知事(03)第011519号 |
| 所在地 | 兵庫県神戸市垂水区西舞子2丁目13‐27 |
| 取引態様 | 専任媒介 |
| 管理コード | 4138 |
| 所属協会など | (公社)近畿地区不動産公正取引協議会、(一社)兵庫県宅地建物取引業協会 |
この地域の暮らしデータ
神戸市の人口などの統計情報
| 世帯数 | 734091世帯 |
|---|---|
| 人口総数 | 1500425人 |
| 転入者数 |
75773人 転入率(人口1000人当たり) 50.50人 |
| 転出者数 |
75052人 転出率(人口1000人当たり) 50.02人 |
| 土地平均価格 |
住宅地 196681円/m2 商業地 844842円/m2 |
神戸市の結婚・育児の助成金
| 出産・子育て | |
|---|---|
| 子育て関連の独自の取り組み | (1)妊産婦タクシー利用券。(2)産後ケア事業(32ヶ所)。(3)多胎児家庭支援の充実(多胎児家庭ホームヘルプサービス等)。(4)多様な保育施設で待機児童3年連続ゼロ(保育送迎ステーション等)。(5)病児保育(22ヶ所)。(6)夜間、休日に年中無休で診療する「神戸こども初期急病センター」。(7)天候関係なく無料で遊べる場所の充実(こべっこランド、こども本の森神戸、児童館120ヶ所等)。(8)学童保育希望者全員受入れ。(9)インフルエンザ予防接種費の一部助成(12歳まで)。(10)市民が市内高校に通う通学定期代無料化。(11)子連れ利用可能な無料コワーキングスペース(無料の一時保育付)。(12)大人同伴の小学生以下の市バス・地下鉄の料金が無料。(13)住み替え補助(「住みかえーる」で検索)。 |
| 出産祝い |
あり
|
| 公立保育所数 |
56ヶ所 0歳児保育を実施 45ヶ所 |
| 私立保育所数 |
70ヶ所 0歳児保育を実施 67ヶ所 |
| 保育所入所待機児童数 | 0人 |
| 認定こども園数 | 191園 |
| 預かり保育実施園数-公立 | 28園 |
| 預かり保育実施園数-私立 | 37園 |
| 学校給食 | 【小学校】完全給食【中学校】完全給食 デリバリー形式[運搬:ランチボックス、内容:完全給食]、但し家庭弁当等の持参も可(2024年9月から順次全員喫食制へ移行) |
| 公立中学校の学校選択制 | 一部実施(特定地域選択制) |
| 子ども・学生等医療費助成<通院>対象年齢 | 18歳3月末まで |
| 子ども・学生等医療費助成<入院>対象年齢 | 18歳3月末まで |
神戸市の治安・ごみ収集情報
| 公共料金・インフラ | |
|---|---|
| ガス料金(22m3使用した場合の月額) | 大阪瓦斯株式会社4544円 伊丹産業株式会社7185円 |
| 水道料金(口径20mmで20m3の月額) | 神戸市2926円 |
| 下水道料金(20m3を使用した場合の月額) | 神戸市1760円 |
| 下水道普及率 | 98.7% |
| 安心・安全 | |
| 建物火災出火件数 |
236件 人口10000人当たり 1.55件 |
| 刑法犯認知件数 |
12014件 人口1000人当たり 7.88件 |
| ハザード・防災マップ | あり |
| 医療 | |
| 一般病院総数 | 98ヶ所 |
| 一般診療所総数 | 1643ヶ所 |
| 小児科医師数 |
408人 小児人口10000人当たり 24.03人 |
| 産婦人科医師数 |
190人 15~49歳女性人口1万人当たり 6.47人 |
| 介護保険料基準額(月額) | 6580円 |
| ごみ | |
| 家庭ごみ収集(可燃ごみ) |
無料
|
| 家庭ごみの分別方式 | 5分別〔缶・びん・ペットボトル 容器包装プラスチック 燃えないごみ カセットボンベ・スプレー缶 燃えるごみ〕 拠点回収:使用済小型家電 カセットボンベ・スプレー缶 水銀体温計・温度計・血圧計 蛍光管 乾電池・充電式電池・ボタン電池 |
| 家庭ごみの戸別収集 | 一部実施(【ひまわり収集】クリーンステーションまで、ごみを持ち出すことが困難な高齢者または障害者など一部の対象者に実施) |
| 粗大ごみ収集 |
あり
|
| 生ごみ処理機助成金制度 |
なし 上限金額 - 上限比率 - |
神戸市の住まいの給付金
暮らしデータ提供元:生活ガイド.com
※行政機関により公表していない地域及びデータがございます。東京23区以外の政令指定都市は、市全体のデータとして表示しています。
※提供データには細心の注意を払っておりますが、調査後に変更がある場合があります。 最新の情報につきましては各市区役所までお問い合わせいただくか、自治体HPなどをご確認ください。
※提供データには細心の注意を払っておりますが、調査後に変更がある場合があります。 最新の情報につきましては各市区役所までお問い合わせいただくか、自治体HPなどをご確認ください。
住宅ローンシミュレーション
月々の返済額からの購入額の計算と、購入額からの返済額の計算ができます。
住宅ローンをお考えの方へ
最もおトクであなたにぴったりな
住宅ローンをみてみよう!
お気に入りの物件を見逃さない!
プッシュ通知で最新の物件情報が届く





