三愛シティライフ野間レイクビュー 2階 3LDK
3LDK / 高宮駅
- 情報提供元
- SUUMO
価格2180万円
-
☆三愛シティライフ野間レイクビュー☆
-
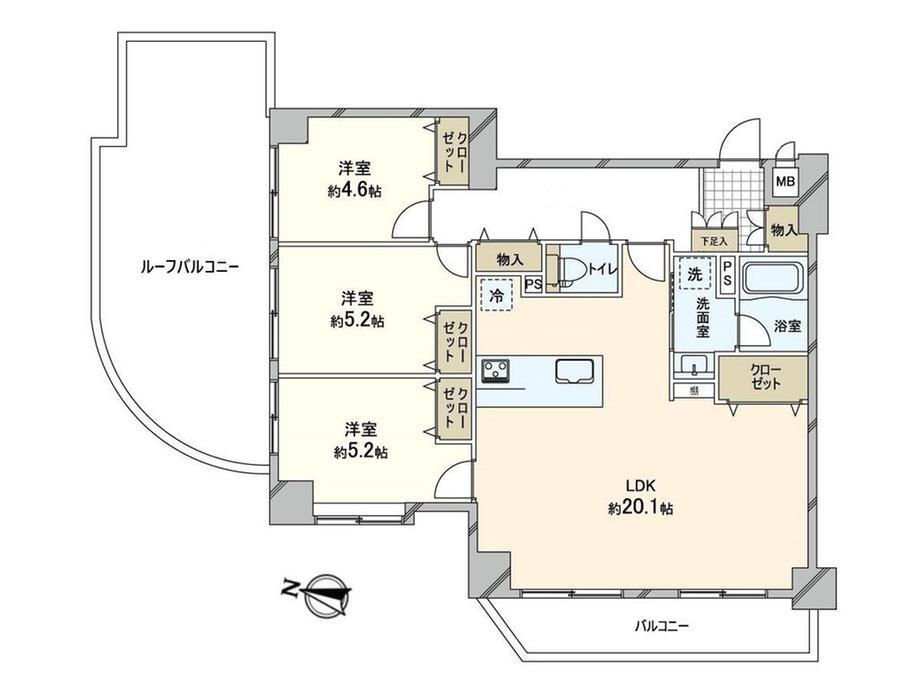
3LDK、価格2180万円、専有面積81.34m2、バルコニー面積7.9m2 南西・北西の角部屋住戸!約23平米のルーフバルコニー付きです!
-
ご家族やご友人ともゆったりとお過ごしいただける約20.1帖のLDK!
-
バルコニーから陽射しが入り、明るく温かい雰囲気♪
-
清潔感あふれる浴室で一日の疲れを癒せそうです♪
-
ご家族やお友達との会話が弾む対面キッチン
-
洋室約4.6帖
-
収納もたっぷりあるので、靴がたくさんあっても安心!
-
洗面室
-
画像
-
画像
-
パセオ野間大池まで290m 徒歩4分。
-
画像
-
洋室約5.2帖(中央)
-
画像
-
筑紫丘中学校まで1640m
-
お料理やお手入れがしやすいシステムキッチン!
-
洋室約5.2帖(出窓有り)
-
3口コンロでお料理も効率よく!
-
食器洗浄乾燥機
-
この物件が気になりましたか? 物件や周辺施設などの詳しい情報は
問合せをすることで確認できます
- お問い合わせ先
- 三井のリハウス大橋センター三井不動産リアルティ九州(株)
-物件のおすすめポイント-▼特徴・約20.1帖の広々としたLDK・ご家族との会話が弾む対面式キッチン・全居室・廊下に収納スペースを設置・キッチンと洗面室が近く、家事動線に配慮・2面バルコニーに全居室が面した設計▼設備・食器洗乾燥機・浴室換気乾燥暖房機・オートロック▼2024年9月室内リフォーム済【新品交換】キッチン、UB、洗面化粧台、トイレ、給湯器 等【張替】フローリング、クロス▼周辺環境・スーパー「フードウェイ野間大池店」徒歩4分(約290m)■ ご希望の住まい探しをお手伝いします ━━━━━・・・物件の詳細・ご相談はお気軽にお問い合わせください。
-
価格返済シミュレーション 2180万円
-
管理費等8300円/月(委託(巡回))
-
修繕
積立金10,400円 -
専有面積81.34m2(24.60坪)(壁芯)
-
間取り3LDK
-
バルコニー面積7.9m2
-
築年数1989年8月
(築36年5ヶ月) -
方位南西
-
駐車場空無
-
総戸数59戸
-
所在階
階数2階
6階建 -
物件
タイプ中古マンション -
マンション名三愛シティライフ野間レイクビュー
-
住所福岡県福岡市南区柳河内2 地図
-
交通西鉄天神大牟田線 高宮駅 バス11分/「野間大池公園前」バス停 停歩2分
| 借地期間・地代 | - |
|---|---|
| 建物構造 | RC |
| 管理形態 | 委託管理 |
| 維持費等 | 町内会費500円 |
| 土地権利 | 所有権 |
| 用途地域 | 1種住居 |
| 現況 | - |
| 引渡可能年月 | 相談 |
| 情報提供元 | SUUMO [090Z76026708] |
| 情報公開日 | |
| 情報更新日 | |
| 次回更新予定日 | 随時 |
地図
設備など
設備
| バス・トイレ | トイレ、浴室乾燥機、温水洗浄便座、風呂 |
|---|---|
| キッチン | システムキッチン、対面K、食器洗浄乾燥機 |
| 収納 | 収納スペース |
| 室内設備 | 衣類乾燥機 |
| 建物設備 | バルコニー、エレベーター、ルーフバルコニー、2面バルコニー |
| 特徴 | リフォーム |
リフォーム履歴
2024年9月完了
水回り設備交換:キッチン・浴室・トイレ
内装リフォーム:床
その他:全室クロス/建具/洗…
※年月は一番古いリフォーム箇所を表します
続きを見る
水回り設備交換:キッチン・浴室・トイレ
内装リフォーム:床
その他:全室クロス/建具/洗…
※年月は一番古いリフォーム箇所を表します
備考
<物件名>三愛シティライフ野間レイクビュー/<駐車場>空無/委託(巡回)/<土地権利>所有権/<間取り>3LDK/<リフォーム>●リフォーム:2024年9月完了(水回り設備交換:キッチン・浴室・トイレ、内装リフォーム:床、その他:全室クロス/建具/洗…)※年月は一番古いリフォーム箇所を表します/<特徴>【三井のリハウス大橋センター(FC:0120-977-831)】、LDK20畳以上・スーパー 徒歩10分以内・内装リフォーム・システムキッチン・浴室乾燥機
販売戸数:1戸/管理費等帯:8300円/修繕積立金帯:10400円
続きを見る
販売戸数:1戸/管理費等帯:8300円/修繕積立金帯:10400円
特記事項
角部屋・管理人巡回
省エネ性能
| エネルギー消費性能 | - |
|---|---|
| 断熱性能 | - |
| 目安光熱費 | - |
- お問い合わせ先
- 三井のリハウス大橋センター三井不動産リアルティ九州(株)
不動産会社情報
お問い合わせ先
| 商号 | 三井のリハウス大橋センター三井不動産リアルティ九州(株) |
|---|---|
| 免許番号 | 国土交通大臣(2)第009717号 |
| 所在地 | 福岡県福岡市南区大橋1-6-1 |
| TEL | 00786-01794410 |
| 取引態様 | 一般媒介 |
| 管理コード | FSM7SA05 |
| 所属協会など | - |
この地域の暮らしデータ
福岡市の人口などの統計情報
| 世帯数 | 830051世帯 |
|---|---|
| 人口総数 | 1593919人 |
| 転入者数 |
127071人 転入率(人口1000人当たり) 79.72人 |
| 転出者数 |
110617人 転出率(人口1000人当たり) 69.40人 |
| 土地平均価格 |
住宅地 202878円/m2 商業地 1465381円/m2 |
福岡市の結婚・育児の助成金
| 出産・子育て | |
|---|---|
| 子育て関連の独自の取り組み | (1)おむつと安心定期便(子育て家庭の孤立化や児童虐待を未然に防止するとともに、安心して子育てができる環境づくりをすすめるため、0~2歳の子育て家庭を定期的に見守りながらおむつ等をお届け)。(2)第2子以降の保育料無償化(保育所等に通う第2子以降の保育料を無償化)。(3)第3子優遇事業(18歳未満のお子さんを3人以上養育するご家庭に対し、第3子以降のお子さんが小学校入学前の3年間、保育所等における副食費[おかず・おやつ代]の免除・助成や手当を支給)。(4)障がい福祉サービスの利用者負担軽減(利用者負担上限月額を全員軽減)。(5)子育て世帯住替え助成事業(中古住宅購入費用や転居費用の一部を助成)。 |
| 出産祝い |
あり
|
| 公立保育所数 |
7ヶ所 0歳児保育を実施 7ヶ所 |
| 私立保育所数 |
250ヶ所 0歳児保育を実施 250ヶ所 |
| 保育所入所待機児童数 | 0人 |
| 認定こども園数 | 43園 |
| 預かり保育実施園数-公立 | - |
| 預かり保育実施園数-私立 | 114園 |
| 学校給食 | 【小学校】完全給食【中学校】完全給食 |
| 公立中学校の学校選択制 | 一部実施(特認校制[小規模校特別転入学制度]、特定地域選択制) |
| 子ども・学生等医療費助成<通院>対象年齢 | 18歳3月末まで |
| 子ども・学生等医療費助成<入院>対象年齢 | 18歳3月末まで |
福岡市の治安・ごみ収集情報
| 公共料金・インフラ | |
|---|---|
| ガス料金(22m3使用した場合の月額) | 西部瓦斯株式会社(福岡・北九州)6239円 |
| 水道料金(口径20mmで20m3の月額) | 福岡市3355円 福岡市(簡易水道)3355円 |
| 下水道料金(20m3を使用した場合の月額) | 福岡市2651円 |
| 下水道普及率 | 99.7% |
| 安心・安全 | |
| 建物火災出火件数 |
207件 人口10000人当たり 1.28件 |
| 刑法犯認知件数 |
12681件 人口1000人当たり 7.86件 |
| ハザード・防災マップ | あり |
| 医療 | |
| 一般病院総数 | 102ヶ所 |
| 一般診療所総数 | 1693ヶ所 |
| 小児科医師数 |
349人 小児人口10000人当たり 17.02人 |
| 産婦人科医師数 |
172人 15~49歳女性人口1万人当たり 4.60人 |
| 介護保険料基準額(月額) | 6899円 |
| ごみ | |
| 家庭ごみ収集(可燃ごみ) |
有料
|
| 家庭ごみの分別方式 | 3分別〔可燃ごみ 不燃ごみ 空きびん・ペットボトル〕 |
| 家庭ごみの戸別収集 | 実施 |
| 粗大ごみ収集 |
あり
|
| 生ごみ処理機助成金制度 |
あり 上限金額 20000円 上限比率 50.0% |
福岡市の住まいの給付金
暮らしデータ提供元:生活ガイド.com
※行政機関により公表していない地域及びデータがございます。東京23区以外の政令指定都市は、市全体のデータとして表示しています。
※提供データには細心の注意を払っておりますが、調査後に変更がある場合があります。 最新の情報につきましては各市区役所までお問い合わせいただくか、自治体HPなどをご確認ください。
※提供データには細心の注意を払っておりますが、調査後に変更がある場合があります。 最新の情報につきましては各市区役所までお問い合わせいただくか、自治体HPなどをご確認ください。
住宅ローンシミュレーション
月々の返済額からの購入額の計算と、購入額からの返済額の計算ができます。
住宅ローンをお考えの方へ
最もおトクであなたにぴったりな
住宅ローンをみてみよう!
お気に入りの物件を見逃さない!
プッシュ通知で最新の物件情報が届く






