【未入居物件】ザ・福井タワースカイレジデンス 14階 3LDK
3LDK / 福井駅駅
- 情報提供元
- SUUMO
価格6480万円
-
現地(2025年9月)撮影
-
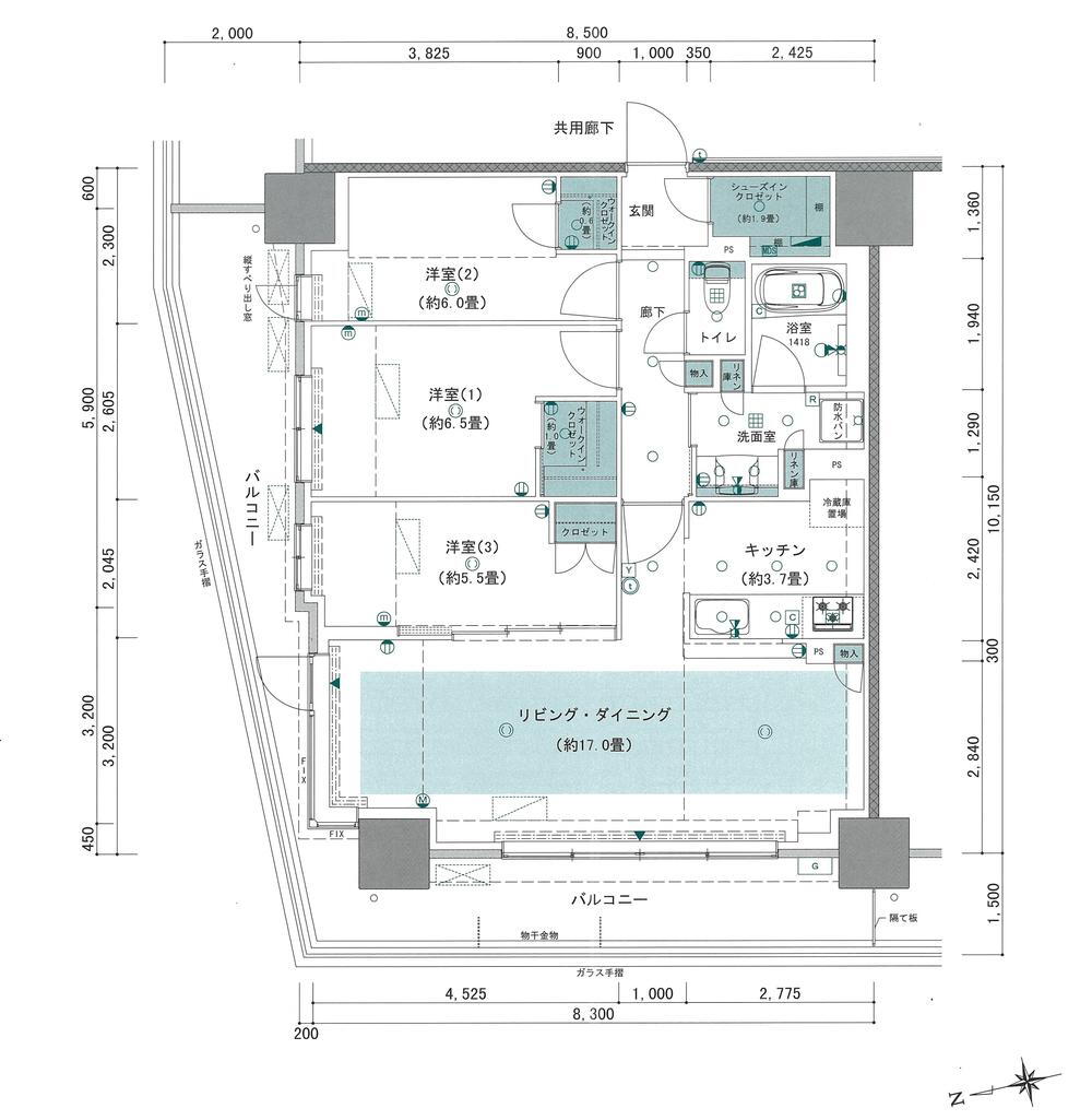
3LDK、価格6480万円、専有面積81.76m2、バルコニー面積25.81m2
-
室内(2025年9月)撮影
-
室内(2025年9月)撮影
-
室内(2025年9月)撮影
-
室内(2025年9月)撮影
-
室内(2025年9月)撮影
-
室内(2025年9月)撮影
-
室内(2025年9月)撮影
-
共用部
-
ハピリンまで228m
-
現地からの眺望(2025年9月)撮影
-
KAJIMART福井西武店まで202m
-
ファミリーマート福井中央一丁目店まで72m
-
マツモトキヨシくるふ福井駅店まで319m
-
福井市立順化小学校まで848m
-
医療法人慈豊会田中病院まで607m
-
福井中央郵便局まで368m
-
福井市中央公園まで517m
-
この物件が気になりましたか? 物件や周辺施設などの詳しい情報は
問合せをすることで確認できます
- お問い合わせ先
- 三谷不動産(株)
【未入居物件】福井駅まで徒歩5分!各種公共交通機関へのアクセスが良く、通勤・通学、お買い物に便利です。角部屋のバルコニーからは福井の街並みや足羽山、お天気が良いと日本海も見えます。人気の明道中学校エリアです。リビングダイニングには、床暖房設備があります。
-
価格返済シミュレーション 6480万円
-
管理費等3万102円/月(委託(通勤))
-
修繕
積立金11,900円 -
専有面積81.76m2(24.73坪)(登記)
-
間取り3LDK
-
バルコニー面積25.81m2
-
築年数2024年5月
(築1年8ヶ月) -
方位北西
-
駐車場無
-
総戸数118戸
-
所在階
階数14階
28階建 -
物件
タイプ中古マンション -
マンション名【未入居物件】ザ・福井タワースカイレジデンス
-
住所福井県福井市中央1 地図
-
交通福井鉄道福武線 福井駅駅 徒歩3分
ハピラインふくい 福井駅 徒歩5分
福井鉄道福武線 福井城址大名町駅 徒歩6分
| 借地期間・地代 | - |
|---|---|
| 建物構造 | RC |
| 管理形態 | 委託管理 |
| 維持費等 | インターネットに係る費用/定額費用880円 |
| 土地権利 | 所有権 |
| 用途地域 | 商業地域 |
| 現況 | - |
| 引渡可能年月 | 相談 |
| 情報提供元 | SUUMO [040Z78543196] |
| 情報公開日 | |
| 情報更新日 | |
| 次回更新予定日 | 随時 |
地図
設備など
設備
| バス・トイレ | トイレ、浴室乾燥機、温水洗浄便座、風呂 |
|---|---|
| キッチン | システムキッチン、対面K、浄水器、食器洗浄乾燥機 |
| 収納 | ウォークインクローゼット、シューズインクローク |
| セキュリティ | 管理人日勤、モニタ付インターホン |
| 室内設備 | 床暖房、衣類乾燥機 |
| 建物設備 | バルコニー、エレベーター、宅配BOX、2面バルコニー |
| 駐車場・駐輪場 | 駐輪場 |
備考
<物件名>【未入居物件】ザ・福井タワースカイレジデンス/<ランニング費用>インターネット定額料金:1430円/月/<駐車場>無/委託(日勤)/<土地権利>所有権/<間取り>3LDK/<特徴>【未入居物件】福井駅まで徒歩5分!角部屋のバルコニーからの眺めは壮観です、LDK20畳以上・山が見える・市街地が近い・システムキッチン・浴室乾燥機
販売戸数:1戸/管理費等帯:30102円/修繕積立金帯:11900円
続きを見る
販売戸数:1戸/管理費等帯:30102円/修繕積立金帯:11900円
特記事項
ペット相談可・角部屋・管理人日勤・24時間ゴミ出し可
省エネ性能
| エネルギー消費性能 | - |
|---|---|
| 断熱性能 | - |
| 目安光熱費 | - |
- お問い合わせ先
- 三谷不動産(株)
不動産会社情報
お問い合わせ先
| 商号 | 三谷不動産(株) |
|---|---|
| 免許番号 | 国土交通大臣(17)第000019号 |
| 所在地 | 福井県福井市中央3-1-5 |
| TEL | 0776-23-2300 |
| 取引態様 | 一般媒介 |
| 管理コード | - |
| 所属協会など | - |
この地域の暮らしデータ
福井市の人口などの統計情報
| 世帯数 | 104190世帯 |
|---|---|
| 人口総数 | 255949人 |
| 転入者数 |
7475人 転入率(人口1000人当たり) 29.21人 |
| 転出者数 |
7881人 転出率(人口1000人当たり) 30.79人 |
| 土地平均価格 |
住宅地 50059円/m2 商業地 105896円/m2 |
福井市の結婚・育児の助成金
| 出産・子育て | |
|---|---|
| 子育て関連の独自の取り組み | - |
| 出産祝い |
なし
|
| 公立保育所数 |
19ヶ所 0歳児保育を実施 19ヶ所 |
| 私立保育所数 |
5ヶ所 0歳児保育を実施 5ヶ所 |
| 保育所入所待機児童数 | 0人 |
| 認定こども園数 | 69園 |
| 預かり保育実施園数-公立 | - |
| 預かり保育実施園数-私立 | 4園 |
| 学校給食 | 【小学校】完全給食【中学校】完全給食 |
| 公立中学校の学校選択制 | 一部実施(特認校制。入学時のみ) |
| 子ども・学生等医療費助成<通院>対象年齢 | 18歳3月末まで |
| 子ども・学生等医療費助成<入院>対象年齢 | 18歳3月末まで |
福井市の治安・ごみ収集情報
| 公共料金・インフラ | |
|---|---|
| ガス料金(22m3使用した場合の月額) | 福井都市ガス株式会社5752円 |
| 水道料金(口径20mmで20m3の月額) | 福井市2277円 福井市(簡易水道)2277円 |
| 下水道料金(20m3を使用した場合の月額) | 福井市2618円 |
| 下水道普及率 | 90.8% |
| 安心・安全 | |
| 建物火災出火件数 |
19件 人口10000人当たり 0.72件 |
| 刑法犯認知件数 |
1281件 人口1000人当たり 4.88件 |
| ハザード・防災マップ | あり |
| 医療 | |
| 一般病院総数 | 23ヶ所 |
| 一般診療所総数 | 253ヶ所 |
| 小児科医師数 |
83人 小児人口10000人当たり 26.58人 |
| 産婦人科医師数 |
34人 15~49歳女性人口1万人当たり 7.20人 |
| 介護保険料基準額(月額) | 6600円 |
| ごみ | |
| 家庭ごみ収集(可燃ごみ) |
無料
|
| 家庭ごみの分別方式 | 3分別12種〔資源物(プラスチック製容器包装、空き缶、空きビン[無色、青・緑、茶色、黒]、ペットボトル、紙類[ダンボール、紙製容器]、紙パック、乾電池、スプレー缶、蛍光灯) 燃やせるごみ 燃やせないごみ〕 拠点回収:小型家電 集団資源回収:新聞 雑誌(雑がみ) |
| 家庭ごみの戸別収集 | 未実施 |
| 粗大ごみ収集 |
あり
|
| 生ごみ処理機助成金制度 |
なし 上限金額 - 上限比率 - |
福井市の住まいの給付金
暮らしデータ提供元:生活ガイド.com
※行政機関により公表していない地域及びデータがございます。東京23区以外の政令指定都市は、市全体のデータとして表示しています。
※提供データには細心の注意を払っておりますが、調査後に変更がある場合があります。 最新の情報につきましては各市区役所までお問い合わせいただくか、自治体HPなどをご確認ください。
※提供データには細心の注意を払っておりますが、調査後に変更がある場合があります。 最新の情報につきましては各市区役所までお問い合わせいただくか、自治体HPなどをご確認ください。
住宅ローンシミュレーション
月々の返済額からの購入額の計算と、購入額からの返済額の計算ができます。
住宅ローンをお考えの方へ
最もおトクであなたにぴったりな
住宅ローンをみてみよう!
お気に入りの物件を見逃さない!
プッシュ通知で最新の物件情報が届く






