グラン・ドムール松戸 1階 3LDK
3LDK / 松戸駅
- 情報提供元
- SUUMO
価格1980万円
-
松戸駅まで徒歩16分です
-
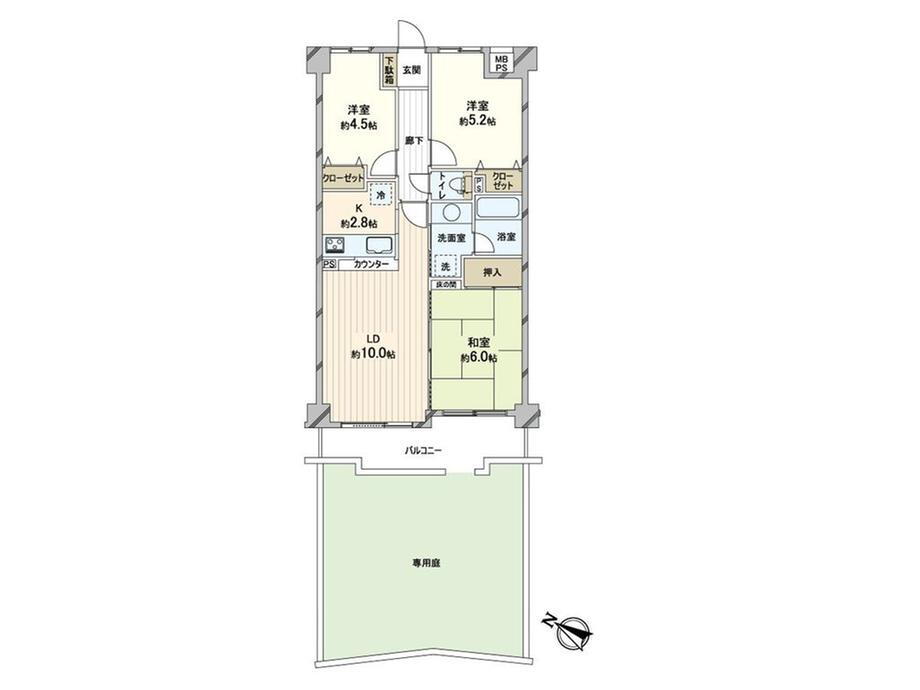
3LDK、価格1980万円、専有面積62.29m2、バルコニー面積8.44m2
-
1991年3月築
-
約10帖のリビングダイニング
-
ユニットバス(2018年7月交換)
-
カウンター付きの対面キッチン
-
約6帖の和室
-
トイレ(2018年7月交換)
-
エントランスの様子
-
エントランスの内の様子
-
プレイロット
-
画像
-
庭の様子
-
バルコニー、庭の様子
-
ライフ松戸二十世紀が丘店まで1060m 徒歩14分
-
約4.5帖の洋室
-
駐輪場
-
庭の様子
-
バルコニー、庭の様子
-
サンドラッグ二十世紀が丘店まで970m 徒歩13分
-
柿の木台クリニックまで710m 徒歩9分
-
この物件が気になりましたか? 物件や周辺施設などの詳しい情報は
問合せをすることで確認できます
- お問い合わせ先
- 三井のリハウス松戸センター三井不動産リアルティ(株)
-物件のおすすめポイント-▼立地・JR常磐線/JR千代田・常磐緩行線/京成電鉄松戸線「松戸」駅 徒歩16分▼特徴・階下を気にせず過ごせる1階部分・LDKに洗面室・和室が隣接する設計・会話を楽しめる対面式キッチン、カウンター付・29.5平米の専用庭付・プレイロット有▼設備・温水洗浄便座・オートロック▼2018年7月室内リフォーム履歴【交換】キッチン換気扇、UB、浴室換気乾燥機、トイレ▼周辺環境・ファミリーマート松戸東店 徒歩5分(約370m)■ ご希望の住まい探しをお手伝いします ━━━━━・・・物件の詳細・ご相談はお気軽にお問い合わせください。
-
価格返済シミュレーション 1980万円
-
管理費等1万2450円/月(委託(通勤))
-
修繕
積立金10,580円 -
専有面積62.29m2(18.84坪)(壁芯)
-
間取り3LDK
-
バルコニー面積8.44m2
-
築年数1991年3月
(築34年10ヶ月) -
方位南西
-
駐車場-
-
総戸数52戸
-
所在階
階数1階
地上6階地下1階建 -
物件
タイプ中古マンション -
マンション名グラン・ドムール松戸
-
住所千葉県松戸市松戸 地図
-
交通JR常磐線 松戸駅 徒歩16分
京成松戸線 松戸駅 徒歩16分
JR常磐線 松戸駅 徒歩16分
| 借地期間・地代 | - |
|---|---|
| 建物構造 | RC |
| 管理形態 | 委託管理 |
| 維持費等 | 専用庭面積 使用料1,500円 |
| 土地権利 | 所有権 |
| 用途地域 | 1種住居 |
| 現況 | - |
| 引渡可能年月 | 相談 |
| 情報提供元 | SUUMO [030Z78866701] |
| 情報公開日 | |
| 情報更新日 | |
| 次回更新予定日 | 随時 |
地図
設備など
設備
| バス・トイレ | トイレ、浴室乾燥機、温水洗浄便座、風呂 |
|---|---|
| キッチン | システムキッチン、対面K |
| セキュリティ | 管理人日勤 |
| 室内設備 | 衣類乾燥機 |
| 建物設備 | エレベーター、庭、専用庭 |
| 駐車場・駐輪場 | 駐輪場 |
| 特徴 | リフォーム |
備考
<物件名>グラン・ドムール松戸/委託(日勤)/<土地権利>所有権/<間取り>3LDK/<用途地域>2種住居あり/<特徴>■三井のリハウス■南西向きの専用庭付住戸家事動線に配慮された設計、2沿線以上利用可・内装リフォーム・システムキッチン・浴室乾燥機・和室
販売戸数:1戸/管理費等帯:12450円/修繕積立金帯:10580円
続きを見る
販売戸数:1戸/管理費等帯:12450円/修繕積立金帯:10580円
特記事項
管理人日勤
省エネ性能
| エネルギー消費性能 | - |
|---|---|
| 断熱性能 | - |
| 目安光熱費 | - |
- お問い合わせ先
- 三井のリハウス松戸センター三井不動産リアルティ(株)
不動産会社情報
お問い合わせ先
| 商号 | 三井のリハウス松戸センター三井不動産リアルティ(株) |
|---|---|
| 免許番号 | 国土交通大臣(15)第000777号 |
| 所在地 | 千葉県松戸市松戸1178 イセウビル5階 |
| TEL | 00786-01793993 |
| 取引態様 | 一般媒介 |
| 管理コード | F74AUA08 |
| 所属協会など | - |
この地域の暮らしデータ
松戸市の人口などの統計情報
| 世帯数 | 230931世帯 |
|---|---|
| 人口総数 | 498222人 |
| 転入者数 |
26880人 転入率(人口1000人当たり) 53.95人 |
| 転出者数 |
23303人 転出率(人口1000人当たり) 46.77人 |
| 土地平均価格 |
住宅地 151213円/m2 商業地 463125円/m2 |
松戸市の結婚・育児の助成金
| 出産・子育て | |
|---|---|
| 子育て関連の独自の取り組み | (1)全ての地域子育て支援拠点へ子育てコーディネーターを配置。(2)幼稚園の預かり保育での保育料助成及び人件費補助。(3)公立保育所での英語あそび・幼稚園等への補助金交付。(4)子育て世代包括支援センターにおける保健師・助産師・社会福祉士の3職種専任対応。(5)こども家庭センターの設置。(6)託児機能付きコワーキングスペースの設置。(7)「養育費をもらえていないひとり親家庭への給付金」の支給。(8)養育費確保支援・面会交流支援。(9)ひとり親家庭学習支援事業を利用している生徒の塾費用を助成。(10)幼児同乗用自転車等の購入費助成。(11)妊婦及び未就園児の0~2歳児がいる家庭への家事・育児ヘルパーの訪問。 |
| 出産祝い |
なし
|
| 公立保育所数 |
17ヶ所 0歳児保育を実施 14ヶ所 |
| 私立保育所数 |
50ヶ所 0歳児保育を実施 48ヶ所 |
| 保育所入所待機児童数 | 0人 |
| 認定こども園数 | 12園 |
| 預かり保育実施園数-公立 | - |
| 預かり保育実施園数-私立 | 34園 |
| 学校給食 | 【小学校】完全給食【中学校】完全給食 |
| 公立中学校の学校選択制 | 実施 |
| 子ども・学生等医療費助成<通院>対象年齢 | 18歳3月末まで |
| 子ども・学生等医療費助成<入院>対象年齢 | 18歳3月末まで |
松戸市の治安・ごみ収集情報
| 公共料金・インフラ | |
|---|---|
| ガス料金(22m3使用した場合の月額) | 京葉瓦斯株式会社4515円 |
| 水道料金(口径20mmで20m3の月額) | 千葉県営水道3250円 松戸市2761円 |
| 下水道料金(20m3を使用した場合の月額) | 松戸市2468円 |
| 下水道普及率 | 89.0% |
| 安心・安全 | |
| 建物火災出火件数 |
72件 人口10000人当たり 1.45件 |
| 刑法犯認知件数 |
2631件 人口1000人当たり 5.28件 |
| ハザード・防災マップ | あり |
| 医療 | |
| 一般病院総数 | 18ヶ所 |
| 一般診療所総数 | 277ヶ所 |
| 小児科医師数 |
64人 小児人口10000人当たり 11.69人 |
| 産婦人科医師数 |
28人 15~49歳女性人口1万人当たり 2.79人 |
| 介護保険料基準額(月額) | 6300円 |
| ごみ | |
| 家庭ごみ収集(可燃ごみ) |
無料
|
| 家庭ごみの分別方式 | 6分別22種〔可燃ごみ 不燃ごみ(スプレー缶等、金属製品類、陶磁器・ガラス製品類、小型家電製品類、普通自転車、30センチ以上50センチ未満プラスチック製品) リサイクルするプラスチック その他のプラスチックなどのごみ 資源ごみ(段ボール、新聞紙、折り込みチラシ、雑誌、本、紙パック、雑がみ、布類、ビン類、缶類) 有害ごみ(乾電池・コイン電池、蛍光灯等、体温計、使い捨てライター、珪藻土マット、30cm未満の小型充電式電池内蔵製品)〕 拠点回収:ペットボトル |
| 家庭ごみの戸別収集 | 一部実施(【松戸市家庭ごみ訪問収集事業】世帯員自ら排出することが困難である世帯に対して戸別収集を実施) |
| 粗大ごみ収集 |
あり
|
| 生ごみ処理機助成金制度 |
あり 上限金額 20000円 上限比率 33.3% |
松戸市の住まいの給付金
暮らしデータ提供元:生活ガイド.com
※行政機関により公表していない地域及びデータがございます。東京23区以外の政令指定都市は、市全体のデータとして表示しています。
※提供データには細心の注意を払っておりますが、調査後に変更がある場合があります。 最新の情報につきましては各市区役所までお問い合わせいただくか、自治体HPなどをご確認ください。
※提供データには細心の注意を払っておりますが、調査後に変更がある場合があります。 最新の情報につきましては各市区役所までお問い合わせいただくか、自治体HPなどをご確認ください。
住宅ローンシミュレーション
月々の返済額からの購入額の計算と、購入額からの返済額の計算ができます。
住宅ローンをお考えの方へ
最もおトクであなたにぴったりな
住宅ローンをみてみよう!
お気に入りの物件を見逃さない!
プッシュ通知で最新の物件情報が届く





