福岡県八女市黒木町桑原152-4 羽犬塚駅 中古一戸建て・中古住宅
3LDK / 羽犬塚駅
- 情報提供元
- LIFULL HOME'S
価格1150万円
-
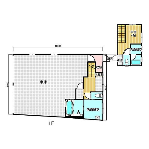
1階
-
間取り
-
2階
-
3階
-
外観
-
【コンビニエンスストア】セブンイレブン 八女中篭店まで1036m
-
居間
-
居間
-
キッチン
-
キッチン
-
風呂
-
トイレ
-
設備
-
駐車場
-
前面道路含む現地写真
-
その他
-
画像
-
その他
-
前面道路含む現地写真
-
前面道路含む現地写真
-
区画図
-
この物件が気になりましたか? 物件や周辺施設などの詳しい情報は
問合せをすることで確認できます
- お問い合わせ先
- 株式会社ヒトトイエ
スーパーやコンビニなどが揃っている立地です。お金のかかる水回りはリフォーム済み!設備も充実したオーナー様こだわりのお家を是非ご覧ください!
-
価格返済シミュレーション 1150万円
-
土地面積157.85m2(公簿)
-
建物面積326.42m2(内法)
-
間取り3LDK
-
建物構造・規模鉄骨3階建
-
築年月1986年6月
(築39年7ヶ月) -
駐車場空有 料金:価格・管理費に含む
-
物件
タイプ中古住宅 -
住所福岡県八女市黒木町桑原152-4 地図
-
交通鹿児島本線 羽犬塚駅 バス33分/「黒木(福岡県)」バス停 停歩4分
| 私道面積 | - |
|---|---|
| 接道状況 | 北11m公道接面10m 一方道路 |
| セットバック | 無 |
| 用途地域 | 商業地域 |
| 建ぺい率 / 容積率 | 80% / 400% |
| 地目 | 宅地 |
| 土地権利 | 所有権 |
| 借地期間・地代 | - |
| 都市計画 | 非線引区域 |
| 現況 | 居住中 |
| 引渡可能時期 | 相談 |
| 情報提供元 | LIFULL HOME'S [1399680000648] |
| 情報公開日 | |
| 情報更新日 | |
| 次回更新予定日 | 2025年12月18日 |
地図
設備など
設備
| バス・トイレ | バス・トイレ別、シャワー、追焚機能、温水洗浄便座 |
|---|---|
| キッチン | システムキッチン、カウンターキッチン、IHクッキングヒータ、食器洗浄乾燥機、コンロ2口以上 |
| 収納 | シューズボックス |
| セキュリティ | モニタ付インターホン |
| 室内設備 | フローリング、シャンプードレッサ、室内洗濯機置き場 |
| 建物設備 | 給湯、バルコニー、プロパンガス、浄化槽 |
| 特徴 | リフォーム |
リフォーム履歴
■水回り
2017年09月実施
キッチン/浴室/トイレ
■内装
2017年09月実施
内装全面(床・壁・天井・建具)/壁・天井(クロス・塗装等)/床(フローリング等)
※実施年月は、施工箇所の中で最も古いものを表示しています
続きを見る
2017年09月実施
キッチン/浴室/トイレ
■内装
2017年09月実施
内装全面(床・壁・天井・建具)/壁・天井(クロス・塗装等)/床(フローリング等)
※実施年月は、施工箇所の中で最も古いものを表示しています
備考
【物件周辺の生活情報】
・学校
八女市立黒木西小学校(2,023m)、八女市立黒木中学校(925m)
・買い物
スーパー(918m)、コンビニ(1,036m)
・その他施設
今村循環器内科(1,541m)
■オール電化 ※付属建物はプロパンガスです。 ■上水道:井戸 ■下水道:供給エリア外 浄化槽 ■占用:道路占用料が必要です。 【設備・特記事項備考】井戸・専用バス・専用トイレ
国土法届出:不要
述べ床面積:326.42m2
続きを見る
・学校
八女市立黒木西小学校(2,023m)、八女市立黒木中学校(925m)
・買い物
スーパー(918m)、コンビニ(1,036m)
・その他施設
今村循環器内科(1,541m)
■オール電化 ※付属建物はプロパンガスです。 ■上水道:井戸 ■下水道:供給エリア外 浄化槽 ■占用:道路占用料が必要です。 【設備・特記事項備考】井戸・専用バス・専用トイレ
国土法届出:不要
述べ床面積:326.42m2
特記事項
オール電化
省エネ性能
| エネルギー消費性能 | - |
|---|---|
| 断熱性能 | - |
| 目安光熱費 | - |
- お問い合わせ先
- 株式会社ヒトトイエ
※0037で始まる電話番号に携帯電話からお問合せいただいた方には、ショートメッセージ(SMS)によるお問合せ完了通知をお届けする場合があります。
不動産会社情報
お問い合わせ先
| 商号 | 株式会社ヒトトイエ |
|---|---|
| 免許番号 | 福岡県知事(02)第018903号 |
| 所在地 | 福岡県八女市蒲原933番地1 |
| 取引態様 | 専任媒介 |
| 管理コード | 648 |
| 所属協会など | (一社)九州不動産公正取引協議会、(公社)福岡県宅地建物取引業協会 |
この地域の暮らしデータ
八女市の人口などの統計情報
| 世帯数 | 22203世帯 |
|---|---|
| 人口総数 | 60103人 |
| 転入者数 |
2852人 転入率(人口1000人当たり) 47.45人 |
| 転出者数 |
2940人 転出率(人口1000人当たり) 48.92人 |
| 土地平均価格 |
住宅地 12068円/m2 商業地 20040円/m2 |
八女市の結婚・育児の助成金
| 出産・子育て | |
|---|---|
| 子育て関連の独自の取り組み | (1)ファミリー・サポート・センター事業利用負担金への軽減。(2)小・中学校等入学祝金支給事業(小学校3万円、中学校5万円)。(3)路線バス通学定期券補助(路線バス通学定期券について購入額の2割及び月額1.4万円を超える分について補助金を支給)。(4)保育所等に通う3歳以上児の主食を無償で提供し完全給食を実施している。 |
| 出産祝い |
なし
|
| 公立保育所数 |
3ヶ所 0歳児保育を実施 3ヶ所 |
| 私立保育所数 |
16ヶ所 0歳児保育を実施 16ヶ所 |
| 保育所入所待機児童数 | 0人 |
| 認定こども園数 | 5園 |
| 預かり保育実施園数-公立 | - |
| 預かり保育実施園数-私立 | 0園 |
| 学校給食 | 【小学校】完全給食【中学校】完全給食 |
| 公立中学校の学校選択制 | 実施(新入学時及び他市区町村からの転入時のみ) |
| 子ども・学生等医療費助成<通院>対象年齢 | 中学校卒業まで |
| 子ども・学生等医療費助成<入院>対象年齢 | 中学校卒業まで |
八女市の治安・ごみ収集情報
| 公共料金・インフラ | |
|---|---|
| ガス料金(22m3使用した場合の月額) | 西日本ガス株式会社6371円 |
| 水道料金(口径20mmで20m3の月額) | 八女市4598円 八女市(旧星野簡易水道区域)4598円 八女市(旧黒木簡易水道区域)4598円 |
| 下水道料金(20m3を使用した場合の月額) | 八女市3927円 |
| 下水道普及率 | 26.1% |
| 安心・安全 | |
| 建物火災出火件数 |
12件 人口10000人当たり 1.98件 |
| 刑法犯認知件数 |
324件 人口1000人当たり 5.35件 |
| ハザード・防災マップ | あり |
| 医療 | |
| 一般病院総数 | 7ヶ所 |
| 一般診療所総数 | 57ヶ所 |
| 小児科医師数 |
9人 小児人口10000人当たり 12.89人 |
| 産婦人科医師数 |
8人 15~49歳女性人口1万人当たり 8.29人 |
| 介護保険料基準額(月額) | 6200円 |
| ごみ | |
| 家庭ごみ収集(可燃ごみ) |
有料
|
| 家庭ごみの分別方式 | 4分別25種〔不燃性資源ごみ(缶類[アルミ缶、スチール缶]、びん類[透明、茶色、その他]、廃乾電池、廃蛍光管、使用済みスプレー缶、小金属類、小型廃家電、ガラス食器など、陶磁器類、レンガ色の植木鉢) 可燃性資源ごみ(ペットボトル、ペットボトルキャップ、紙パック、古布[綿70%以上のもの]、白色トレイ、有色トレイ、新聞紙、ダンボール、その他の紙類、食用廃油) 可燃ごみ 不燃ごみ〕 |
| 家庭ごみの戸別収集 | 一部実施(【八女市ごみ出しサポート事業】高齢者や障がいのある方など、ごみ出しが困難な世帯を対象に、市が委託する事業者が毎週1回指定した曜日に利用者の自宅までごみの収集に伺う事業) |
| 粗大ごみ収集 |
あり
|
| 生ごみ処理機助成金制度 |
あり 上限金額 20000円 上限比率 50.0% |
八女市の住まいの給付金
暮らしデータ提供元:生活ガイド.com
※行政機関により公表していない地域及びデータがございます。東京23区以外の政令指定都市は、市全体のデータとして表示しています。
※提供データには細心の注意を払っておりますが、調査後に変更がある場合があります。 最新の情報につきましては各市区役所までお問い合わせいただくか、自治体HPなどをご確認ください。
※提供データには細心の注意を払っておりますが、調査後に変更がある場合があります。 最新の情報につきましては各市区役所までお問い合わせいただくか、自治体HPなどをご確認ください。
住宅ローンシミュレーション
月々の返済額からの購入額の計算と、購入額からの返済額の計算ができます。
住宅ローンをお考えの方へ
最もおトクであなたにぴったりな
住宅ローンをみてみよう!
お気に入りの物件を見逃さない!
プッシュ通知で最新の物件情報が届く






