大阪府茨木市星見町 茨木市駅 中古一戸建て・中古住宅
5DK / 茨木市駅
- 情報提供元
- SUUMO
価格3000万円
-
西松屋茨木平田店まで251m
-
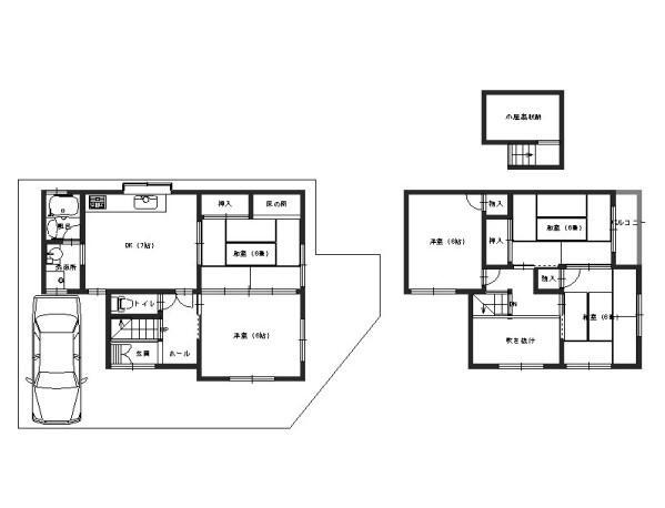
3000万円、5DK、土地面積100.79m2、建物面積90.92m2
-
スーパーマーケットまるとく市場平田店まで272m
-
セブンイレブン茨木目垣2丁目店まで653m
-
スギ薬局茨木平田店まで167m
-
ニトリ茨木南目垣店まで958m
-
茨木星見郵便局まで260m
-
JA茨木市南支店まで1595m
-
桑田公園まで857m
-
この物件が気になりましたか? 物件や周辺施設などの詳しい情報は
問合せをすることで確認できます
- お問い合わせ先
- (株)ヒルズホールディングス不動産購入の窓口
◆内覧予約は06-4255-3477へお問合せ下さい♪◆購入を諦めていたお客様も是非お問合せ下さい◆頭金0円より購入可◆物件の特徴・カースペース付きの戸建て物件!・部屋数豊富な5DK♪・全居室6帖以上あり・小屋裏収納あり、室内収納スペース多数!・スーパー近く買い物便利♪◆見るだけ大歓迎◆接客対応品質に自信があり◆夜間早朝もお気軽にご連絡ください!◆無料送迎可「購入するか分からないけど見るだけ見たい」「他社の物件もまとめて見てみたい」等ご購入をご検討中のお客様にとって、より良い条件でご購入頂く為に精一杯サポート致します不動産の事なら何でもお気軽にご相談下さい!
-
価格返済シミュレーション 3000万円
-
土地面積100.79m2
-
建物面積90.92m2
-
間取り5DK
-
建物構造・規模木造2階建
-
築年月1982年1月
(築43年11ヶ月) -
駐車場有
-
物件
タイプ中古住宅 -
住所大阪府茨木市星見町 地図
-
交通阪急京都線 茨木市駅 バス7分/「二階堂」バス停 停歩2分
| 私道面積 | - |
|---|---|
| 接道状況 | 西5m接面10m 南4.3m接面5.4m |
| 用途地域 | 2種中高 |
| 建ぺい率 / 容積率 | 60% / 200% |
| 地目 | - |
| 土地権利 | 所有権 |
| 借地期間・地代 | - |
| 都市計画 | - |
| 現況 | - |
| 引渡可能時期 | 即時 |
| 情報提供元 | SUUMO [060Z77751629] |
| 情報公開日 | |
| 情報更新日 | |
| 次回更新予定日 | 随時 |
地図
設備など
設備
| バス・トイレ | 風呂 |
|---|---|
| 収納 | 収納スペース、グルニエ |
| 建物設備 | 都市ガス |
| その他 | 上水道、本下水 |
備考
<物件名>星見町 3000万円/<駐車場>カースペース/<土地権利>所有権/<間取り>5DK/<特徴>◆当社は住宅ローンに強い不動産業者です◆24時間内覧予約受付中、即引渡可・スーパー 徒歩10分以内・陽当り良好・南側道路面す・和室
販売戸数:1戸
続きを見る
販売戸数:1戸
特記事項
日当り良好
省エネ性能
| エネルギー消費性能 | - |
|---|---|
| 断熱性能 | - |
| 目安光熱費 | - |
- お問い合わせ先
- (株)ヒルズホールディングス不動産購入の窓口
不動産会社情報
お問い合わせ先
商号: (株)ヒルズホールディングス不動産購入の窓口
免許番号:国土交通大臣(1)第010922号
所在地:大阪府大阪市城東区関目5-3-2
TEL:06-4255-3477
取引態様:一般媒介 この会社の他の物件情報を見る この不動産会社に相談したい
免許番号:国土交通大臣(1)第010922号
所在地:大阪府大阪市城東区関目5-3-2
TEL:06-4255-3477
取引態様:一般媒介 この会社の他の物件情報を見る この不動産会社に相談したい
この地域の暮らしデータ
茨木市の人口などの統計情報
| 世帯数 | 124953世帯 |
|---|---|
| 人口総数 | 285715人 |
| 転入者数 |
13394人 転入率(人口1000人当たり) 46.88人 |
| 転出者数 |
12067人 転出率(人口1000人当たり) 42.23人 |
| 土地平均価格 |
住宅地 212267円/m2 商業地 400400円/m2 |
茨木市の結婚・育児の助成金
| 出産・子育て | |
|---|---|
| 子育て関連の独自の取り組み | (1)出前型一時保育事業。(2)産前産後ホームヘルパー派遣事業。(3)中高生の乳児とのふれあいまなび事業。(4)障害児通学支援事業。(5)ユースプラザ事業。(6)子ども・若者自立支援事業。 |
| 出産祝い |
なし
|
| 公立保育所数 |
5ヶ所 0歳児保育を実施 5ヶ所 |
| 私立保育所数 |
13ヶ所 0歳児保育を実施 12ヶ所 |
| 保育所入所待機児童数 | 24人 |
| 認定こども園数 | 42園 |
| 預かり保育実施園数-公立 | 1園 |
| 預かり保育実施園数-私立 | 10園 |
| 学校給食 | 【小学校】完全給食【中学校】完全給食 |
| 公立中学校の学校選択制 | 未実施 |
| 子ども・学生等医療費助成<通院>対象年齢 | 18歳3月末まで |
| 子ども・学生等医療費助成<入院>対象年齢 | 18歳3月末まで |
茨木市の治安・ごみ収集情報
| 公共料金・インフラ | |
|---|---|
| ガス料金(22m3使用した場合の月額) | 大阪瓦斯株式会社4544円 |
| 水道料金(口径20mmで20m3の月額) | 茨木市2420円 |
| 下水道料金(20m3を使用した場合の月額) | 茨木市2035円 |
| 下水道普及率 | 99.5% |
| 安心・安全 | |
| 建物火災出火件数 |
20件 人口10000人当たり 0.70件 |
| 刑法犯認知件数 |
2062件 人口1000人当たり 7.17件 |
| ハザード・防災マップ | あり |
| 医療 | |
| 一般病院総数 | 12ヶ所 |
| 一般診療所総数 | 246ヶ所 |
| 小児科医師数 |
33人 小児人口10000人当たり 8.61人 |
| 産婦人科医師数 |
16人 15~49歳女性人口1万人当たり 2.63人 |
| 介護保険料基準額(月額) | 6480円 |
| ごみ | |
| 家庭ごみ収集(可燃ごみ) |
無料
|
| 家庭ごみの分別方式 | 2分別8種〔普通ごみ 資源物(缶、びん、ペットボトル、古紙[新聞、雑誌・雑がみ、段ボール]、古布)〕 拠点回収:古紙・牛乳パック 使用済み小型家電 水銀使用廃製品 |
| 家庭ごみの戸別収集 | 一部実施(【スマイル収集】対象要件は65歳以上で要介護3以上、身体障害者手帳1級または2級、療育手帳A、精神障害者保健福祉手帳1級のいずれかに該当する者の世帯。ただし、親族等の協力を得ることができる世帯は除く) |
| 粗大ごみ収集 |
あり
|
| 生ごみ処理機助成金制度 |
あり 上限金額 20000円 上限比率 50.0% |
茨木市の住まいの給付金
暮らしデータ提供元:生活ガイド.com
※行政機関により公表していない地域及びデータがございます。東京23区以外の政令指定都市は、市全体のデータとして表示しています。
※提供データには細心の注意を払っておりますが、調査後に変更がある場合があります。 最新の情報につきましては各市区役所までお問い合わせいただくか、自治体HPなどをご確認ください。
※提供データには細心の注意を払っておりますが、調査後に変更がある場合があります。 最新の情報につきましては各市区役所までお問い合わせいただくか、自治体HPなどをご確認ください。
この物件を見た人はこんな物件も
見ています
住宅ローンシミュレーション
月々の返済額からの購入額の計算と、購入額からの返済額の計算ができます。
住宅ローンをお考えの方へ
最もおトクであなたにぴったりな
住宅ローンをみてみよう!
お気に入りの物件を見逃さない!
プッシュ通知で最新の物件情報が届く






