滋賀県栗東市小柿4 草津駅 中古一戸建て・中古住宅
2SLDK / 草津駅
- 情報提供元
- SUUMO
価格3780万円
-
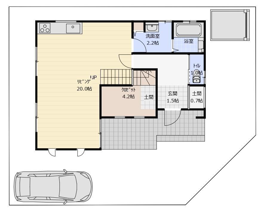
3780万円、2LDK+S(納戸)、土地面積151.15m2、建物面積96.88m2 各部屋1帖以上のクローゼットを備え付け、別途2帖の収納があります。1Fと併せてたっぷりの収納力♪
-
3780万円、2LDK+S(納戸)、土地面積151.15m2、建物面積96.88m2 LDKは20帖、ウォークインクローゼットは4.2帖と広々しており大変便利な間取りです♪
-
現地(2025年3月)撮影
白を基調とした外壁に、アクセントには木目調サイディングをあしらい落ち着きのあるスタイリッシュな外観♪ -
1坪タイプの浴室は白を基調とした落ち着いた雰囲気が魅力です。
-
足元までスライドキャビネットがあるので収納力は抜群、キッチンパネル・収納底板はホーローなのでお掃除もカンタン!
-
寝室は7帖と、1.5帖のウォークインクローゼットがあり広々お使い頂けます。またバルコニー2帖が併設されており日中は明るい自然光が取り入れられます。
-
玄関・ホールはゆったりした広さで、正面のアクセントクロスが特徴的です。
-
洗面・脱衣室は広めの2.2帖。天井には物干し竿を吊るせるユニットもあり部屋干しが可能です。ハイドアの収納が嬉しいですね!
-
タイル調の内装と、お掃除しやすい形状のお手洗いです。用具や予備のペーパー等は紙巻き器下の収納へ仕舞えます。
-
敷地である角地に接する道路は、2方とも幅員約6mありますので車の行き来も安心です。
-
フレンドマート・D小柿店まで899m 滋賀県おなじみのスーパーです。「D」はディスカウントショップ形態の店舗の意味で、住民に嬉しい生活便利店!
-
洋室6帖にはブルーのアクセントクロス♪1帖のクローゼットが備わっているので、お子様から大人までお使い頂けます。
-
玄関土間から4.2帖のウォークインクローゼットに繋がっています。外から帰ってきたら、上着やカバンはすぐに収納できます!
-
バロー栗東苅原店まで1469m 地元の人々に親しまれているお店です。多くの人が「品揃えが豊富」や「サービスが良い」と評価しています♪
-
ローソン栗東小柿六丁目店まで563m 24時間営業のコンビニまで徒歩8分。駐車場もゆったりしたしています!
-
ドラッグユタカ栗東小柿店まで831m 営業時間は9:00~24:00!徒歩11分の距離で遅い時間の買い忘れなどにも便利です♪
-
栗東市立治田西小学校まで494m 児童たちが学びやすい環境を提供し、自主性と協力精神を育むことを目指しています。また、地域の自然や文化を取り入れた教育も行っています。
-
栗東市立治田西幼稚園まで721m
-
この物件が気になりましたか? 物件や周辺施設などの詳しい情報は
問合せをすることで確認できます
- お問い合わせ先
- (株)栗東ハウジング
■築6年の築浅注文住宅!デザイン、断熱性能、耐震性能がポイントです!■治田西小学校まで徒歩5分で通勤も通学も便利な住環境♪■玄関脇に外部収納と、バイクも入るシャッター付き物置有り!■1Fのウォークインクローゼットは広々4.2帖!各部屋収納もしっかりあります♪
-
価格返済シミュレーション 3780万円
-
土地面積151.15m2(45.72坪)(登記)
-
建物面積96.88m2(29.30坪)(登記)
-
間取り2SLDK
-
建物構造・規模木造2階建
-
築年月2019年2月
(築6年10ヶ月) -
駐車場有
-
物件
タイプ中古住宅 -
住所滋賀県栗東市小柿4 地図
-
交通JR東海道本線 草津駅 徒歩20分
JR東海道本線 栗東駅 徒歩25分
| 私道面積 | - |
|---|---|
| 接道状況 | 北東6m接面7.3m 南東6m接面10m 二方道路 |
| 用途地域 | 1種住居 |
| 建ぺい率 / 容積率 | 60% / 200% |
| 地目 | - |
| 土地権利 | 所有権 |
| 借地期間・地代 | - |
| 都市計画 | - |
| 現況 | - |
| 引渡可能時期 | 相談 |
| 情報提供元 | SUUMO [060Z77173875] |
| 情報公開日 | |
| 情報更新日 | |
| 次回更新予定日 | 随時 |
地図
設備など
設備
| バス・トイレ | 風呂 |
|---|---|
| キッチン | システムキッチン、食器洗浄乾燥機 |
| 収納 | 収納スペース、ウォークインクローゼット |
| セキュリティ | モニタ付インターホン |
| 建物設備 | バルコニー、都市ガス、庭、省エネ給湯器 |
| 駐車場・駐輪場 | 駐車場2台分 |
| その他 | 上水道、本下水 |
備考
<物件名>小柿4(草津駅) 3780万円/<駐車場>カースペース/<土地権利>所有権/<間取り>2LDK+S(納戸)/<特徴>JR「草津駅」まで徒歩21分! 3780万円☆2025年4月以降 見学予約開始予定中☆、建築確認完了検査済証・新築時・増改築時の設計図・年内引渡可・駐車2台可・2沿線以上利用可
販売戸数:1戸
続きを見る
販売戸数:1戸
特記事項
日当り良好・閑静な住宅街・駐車場2台分・角地・整形地・浴室1坪以上
省エネ性能
| エネルギー消費性能 | - |
|---|---|
| 断熱性能 | - |
| 目安光熱費 | - |
- お問い合わせ先
- (株)栗東ハウジング
不動産会社情報
お問い合わせ先
商号: (株)栗東ハウジング
免許番号:滋賀県知事(6)第002467号
所在地:滋賀県栗東市小柿5-11-3-1
TEL:077-553-4466
取引態様:専任媒介 この会社の他の物件情報を見る この不動産会社に相談したい
免許番号:滋賀県知事(6)第002467号
所在地:滋賀県栗東市小柿5-11-3-1
TEL:077-553-4466
取引態様:専任媒介 この会社の他の物件情報を見る この不動産会社に相談したい
この地域の暮らしデータ
栗東市の人口などの統計情報
| 世帯数 | 26671世帯 |
|---|---|
| 人口総数 | 70469人 |
| 転入者数 |
3539人 転入率(人口1000人当たり) 50.22人 |
| 転出者数 |
3891人 転出率(人口1000人当たり) 55.22人 |
| 土地平均価格 |
住宅地 63100円/m2 商業地 118180円/m2 |
栗東市の結婚・育児の助成金
| 出産・子育て | |
|---|---|
| 子育て関連の独自の取り組み | (1)ふたご・みつご出産就学支援助成金制度。(2)赤ちゃんおむつ費用助成制度。 |
| 出産祝い |
なし
|
| 公立保育所数 |
7ヶ所 0歳児保育を実施 7ヶ所 |
| 私立保育所数 |
17ヶ所 0歳児保育を実施 17ヶ所 |
| 保育所入所待機児童数 | 26人 |
| 認定こども園数 | 3園 |
| 預かり保育実施園数-公立 | 6園 |
| 預かり保育実施園数-私立 | - |
| 学校給食 | 【小学校】完全給食【中学校】完全給食 |
| 公立中学校の学校選択制 | 未実施 |
| 子ども・学生等医療費助成<通院>対象年齢 | 18歳3月末まで |
| 子ども・学生等医療費助成<入院>対象年齢 | 18歳3月末まで |
栗東市の治安・ごみ収集情報
| 公共料金・インフラ | |
|---|---|
| ガス料金(22m3使用した場合の月額) | 大阪瓦斯株式会社4544円 |
| 水道料金(口径20mmで20m3の月額) | 栗東市2964円 |
| 下水道料金(20m3を使用した場合の月額) | 栗東市2510円 |
| 下水道普及率 | 99.7% |
| 安心・安全 | |
| 建物火災出火件数 |
10件 人口10000人当たり 1.45件 |
| 刑法犯認知件数 |
272件 人口1000人当たり 3.95件 |
| ハザード・防災マップ | あり |
| 医療 | |
| 一般病院総数 | 1ヶ所 |
| 一般診療所総数 | 58ヶ所 |
| 小児科医師数 |
15人 小児人口10000人当たり 14.09人 |
| 産婦人科医師数 |
8人 15~49歳女性人口1万人当たり 5.05人 |
| 介護保険料基準額(月額) | 6300円 |
| ごみ | |
| 家庭ごみ収集(可燃ごみ) |
有料
|
| 家庭ごみの分別方式 | 9分別16種〔可燃ごみ その他プラスチック 破砕ごみ びん(無色透明びん、茶色びん、黒色びん、青色・緑色びん) ペットボトル 古紙・古着(新聞類紙、紙パック、雑誌類、ダンボール類、古着) 乾電池 ガスライター 金属類〕 |
| 家庭ごみの戸別収集 | 未実施 |
| 粗大ごみ収集 |
あり
|
| 生ごみ処理機助成金制度 |
あり 上限金額 5000円 上限比率 50.0% |
栗東市の住まいの給付金
暮らしデータ提供元:生活ガイド.com
※行政機関により公表していない地域及びデータがございます。東京23区以外の政令指定都市は、市全体のデータとして表示しています。
※提供データには細心の注意を払っておりますが、調査後に変更がある場合があります。 最新の情報につきましては各市区役所までお問い合わせいただくか、自治体HPなどをご確認ください。
※提供データには細心の注意を払っておりますが、調査後に変更がある場合があります。 最新の情報につきましては各市区役所までお問い合わせいただくか、自治体HPなどをご確認ください。
この物件を見た人はこんな物件も
見ています
住宅ローンシミュレーション
月々の返済額からの購入額の計算と、購入額からの返済額の計算ができます。
住宅ローンをお考えの方へ
最もおトクであなたにぴったりな
住宅ローンをみてみよう!
お気に入りの物件を見逃さない!
プッシュ通知で最新の物件情報が届く






