愛知県春日井市押沢台6 高蔵寺駅 中古一戸建て・中古住宅
4SLDK / 高蔵寺駅
- 情報提供元
- SUUMO
価格2400万円
-
外観
-
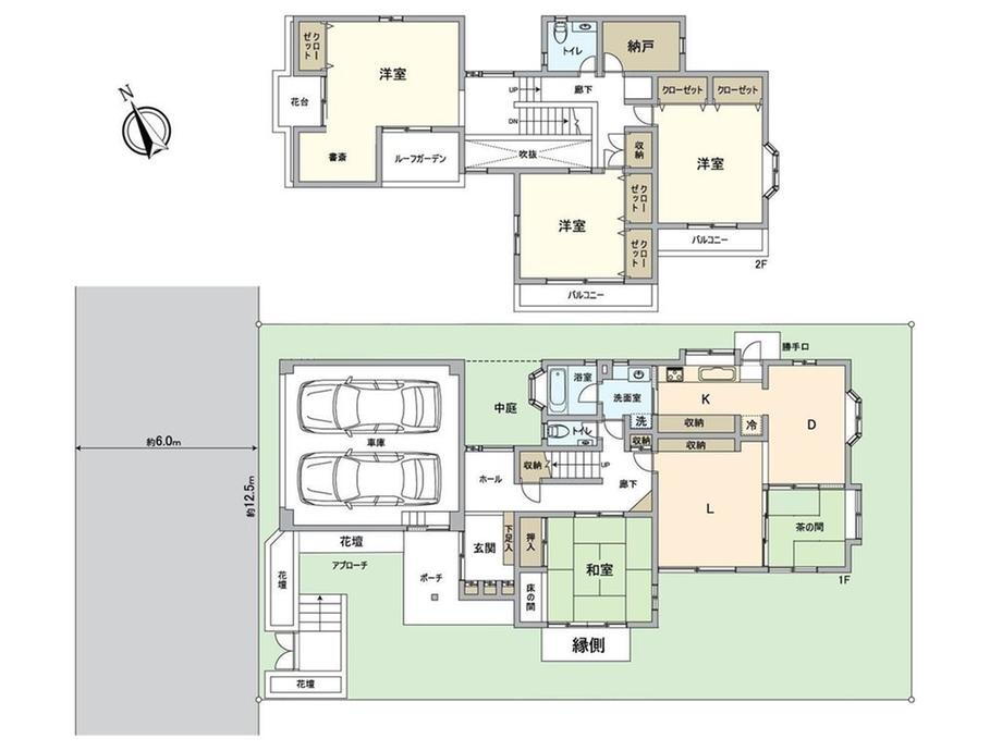
2400万円、4LDK+S、土地面積268.97m2、建物面積205.96m2 間取図
-
画像
-
リビング
-
バス
-
キッチン
-
ダイニング
-
玄関
-
洗面
-
駐車場
-
春日井市立押沢台小学校まで270m 徒歩4分。
-
キッチン
-
ダイニング
-
春日井市立石尾台中学校まで630m 徒歩8分。
-
室内
-
室内
-
室内
-
室内
-
室内
-
室内
-
室内
-
この物件が気になりましたか? 物件や周辺施設などの詳しい情報は
問合せをすることで確認できます
- お問い合わせ先
- 三井のリハウス春日井センター三井不動産リアルティ(株)
-物件のおすすめポイント-▼立地・第一種低層住居専用地域・前面道路は幅員約6m▼特徴・全居室2面以上の採光有・調理に集中しやすい壁付型キッチン、勝手口付・LDに茶の間が隣接・洗面室は2WAY、キッチン隣接で家事動線良好・開放的な吹抜け構造・中庭有・シャッター付車庫に並列2台駐車可(車種による)▼周辺環境・スーパー「ナフコ不二屋石尾台店」徒歩9分(約690m)・春日井市立押沢台小学校 徒歩4分(約270m)※車庫面積/30.80平米(約9.31坪)■ ご希望の住まい探しをお手伝いします ━━━━━・・・物件の詳細・ご相談はお気軽にお問い合わせください。
-
価格返済シミュレーション 2400万円
-
土地面積268.97m2(81.36坪)(登記)
-
建物面積205.96m2(62.30坪)(登記)
-
間取り4SLDK
-
建物構造・規模その他2階建
-
築年月1989年3月
(築36年9ヶ月) -
駐車場-
-
物件
タイプ中古住宅 -
住所愛知県春日井市押沢台6 地図
-
交通JR中央本線 高蔵寺駅 バス13分/「押沢台5丁目」バス停 停歩5分
| 私道面積 | - |
|---|---|
| 接道状況 | 北西6m接面12.5m |
| 用途地域 | 1種低層 |
| 建ぺい率 / 容積率 | 50% / 100% |
| 地目 | - |
| 土地権利 | 所有権 |
| 借地期間・地代 | - |
| 都市計画 | - |
| 現況 | - |
| 引渡可能時期 | 2026年2月 |
| 情報提供元 | SUUMO [050Z78056058] |
| 情報公開日 | |
| 情報更新日 | |
| 次回更新予定日 | 随時 |
地図
設備など
設備
| バス・トイレ | 風呂、トイレ2ヶ所 |
|---|---|
| キッチン | システムキッチン |
| 収納 | 収納スペース、床下収納 |
| 建物設備 | バルコニー、ルーフバルコニー |
| その他 | 上水道、本下水 |
備考
<物件名>押沢台6 2400万円/<土地権利>所有権/<間取り>4LDK+S(納戸)/<特徴>■三井のリハウス■陽当り良好なオール電化住宅南西向きルーフガーデン有、土地50坪以上・スーパー 徒歩10分以内・システムキッチン・陽当り良好・前道6m以上
販売戸数:1戸
続きを見る
販売戸数:1戸
特記事項
日当り良好・オール電化
省エネ性能
| エネルギー消費性能 | - |
|---|---|
| 断熱性能 | - |
| 目安光熱費 | - |
- お問い合わせ先
- 三井のリハウス春日井センター三井不動産リアルティ(株)
不動産会社情報
お問い合わせ先
商号: 三井のリハウス春日井センター三井不動産リアルティ(株)
免許番号:国土交通大臣(15)第000777号
所在地:愛知県春日井市六軒屋町1-3
TEL:00786-01794284
取引態様:専任媒介
管理コード:FA9APA0F この会社の他の物件情報を見る この不動産会社に相談したい
免許番号:国土交通大臣(15)第000777号
所在地:愛知県春日井市六軒屋町1-3
TEL:00786-01794284
取引態様:専任媒介
管理コード:FA9APA0F この会社の他の物件情報を見る この不動産会社に相談したい
この地域の暮らしデータ
春日井市の人口などの統計情報
| 世帯数 | 130809世帯 |
|---|---|
| 人口総数 | 307473人 |
| 転入者数 |
11823人 転入率(人口1000人当たり) 38.45人 |
| 転出者数 |
11950人 転出率(人口1000人当たり) 38.87人 |
| 土地平均価格 |
住宅地 115091円/m2 商業地 141000円/m2 |
春日井市の結婚・育児の助成金
| 出産・子育て | |
|---|---|
| 子育て関連の独自の取り組み | (1)妊産婦ケア事業(デイサービス)を専用施設で実施。妊娠中から1歳未満の子どもがいる母親が、育児で疲れた時等に利用し、専門職による相談も受けられる。(2)妊娠中から生後6ヶ月(多胎は3歳)未満の児童を養育している保護者に対して、家事や育児の援助を行う、産前・産後ヘルパー派遣事業を実施。(3)小児科医、産婦人科医、助産師が、LINEやウェブサイトを活用し、毎日24時間体制で、妊娠中から産後の悩み等の相談に応じる母子保健オンライン相談を実施。(4)市民病院では、産後2ヶ月までのお母さんと赤ちゃんを対象に、産後ケア入院を実施している。産後ケア入院では、育児に不安を持つ母親に対し、助産師が中心となり24時間体制で母子の健康チェックや授乳等の育児支援・相談が受けられる。 |
| 出産祝い |
なし
|
| 公立保育所数 |
29ヶ所 0歳児保育を実施 28ヶ所 |
| 私立保育所数 |
22ヶ所 0歳児保育を実施 20ヶ所 |
| 保育所入所待機児童数 | 0人 |
| 認定こども園数 | 8園 |
| 預かり保育実施園数-公立 | - |
| 預かり保育実施園数-私立 | 16園 |
| 学校給食 | 【小学校】完全給食【中学校】完全給食 |
| 公立中学校の学校選択制 | 未実施 |
| 子ども・学生等医療費助成<通院>対象年齢 | 18歳3月末まで |
| 子ども・学生等医療費助成<入院>対象年齢 | 18歳3月末まで(ただし、学生の場合は24歳3月末まで※学生については、市民税が課せられない者、地方税法に規定する扶養親族である者などの条件あり) |
春日井市の治安・ごみ収集情報
| 公共料金・インフラ | |
|---|---|
| ガス料金(22m3使用した場合の月額) | 東邦瓦斯株式会社5307円 |
| 水道料金(口径20mmで20m3の月額) | 春日井市2519円 |
| 下水道料金(20m3を使用した場合の月額) | 春日井市2915円 |
| 下水道普及率 | 69.8% |
| 安心・安全 | |
| 建物火災出火件数 |
45件 人口10000人当たり 1.46件 |
| 刑法犯認知件数 |
1694件 人口1000人当たり 5.49件 |
| ハザード・防災マップ | あり |
| 医療 | |
| 一般病院総数 | 11ヶ所 |
| 一般診療所総数 | 205ヶ所 |
| 小児科医師数 |
90人 小児人口10000人当たり 23.09人 |
| 産婦人科医師数 |
25人 15~49歳女性人口1万人当たり 4.14人 |
| 介護保険料基準額(月額) | 5580円 |
| ごみ | |
| 家庭ごみ収集(可燃ごみ) |
無料
|
| 家庭ごみの分別方式 | 3分別13種〔燃やせるごみ 燃やせないごみ 資源物(雑誌・雑がみ、新聞紙、段ボール、牛乳パック類、古着、飲料缶、ガラスびん、ペットボトル、プラスチック製容器包装、金属類[小型家電を含む金属類、発火性危険物])〕 拠点回収:廃食用油 使用済乾電池 蛍光管 |
| 家庭ごみの戸別収集 | 一部実施(さわやか収集) |
| 粗大ごみ収集 |
あり
|
| 生ごみ処理機助成金制度 |
あり 上限金額 20000円 上限比率 50.0% |
春日井市の住まいの給付金
暮らしデータ提供元:生活ガイド.com
※行政機関により公表していない地域及びデータがございます。東京23区以外の政令指定都市は、市全体のデータとして表示しています。
※提供データには細心の注意を払っておりますが、調査後に変更がある場合があります。 最新の情報につきましては各市区役所までお問い合わせいただくか、自治体HPなどをご確認ください。
※提供データには細心の注意を払っておりますが、調査後に変更がある場合があります。 最新の情報につきましては各市区役所までお問い合わせいただくか、自治体HPなどをご確認ください。
この物件を見た人はこんな物件も
見ています
住宅ローンシミュレーション
月々の返済額からの購入額の計算と、購入額からの返済額の計算ができます。
住宅ローンをお考えの方へ
最もおトクであなたにぴったりな
住宅ローンをみてみよう!
お気に入りの物件を見逃さない!
プッシュ通知で最新の物件情報が届く






