福井県鯖江市糺町 神明駅 中古一戸建て・中古住宅
4SLDK / 神明駅
- 情報提供元
- SUUMO
価格2799万円
-
価格には消費税、リフォーム費用を含みます。リフォーム中でもご案内可能。内覧希望の方はお電話ください。
-
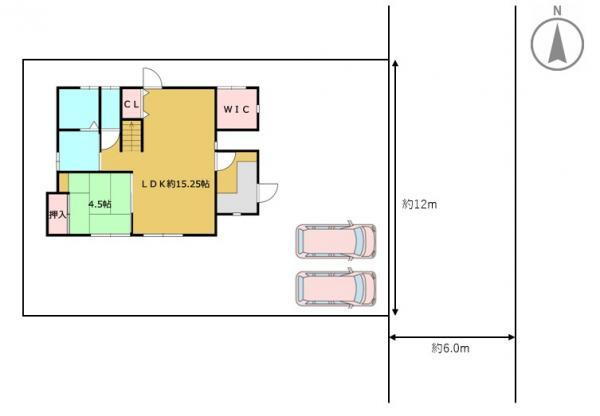
2799万円、4LDK+S、土地面積206.79m2、建物面積122m2 【間取り図】1階にリビングと和室、2階に洋室3部屋の4SLDKのおうちです。
-
【区画図】現状普通車2台駐車可能ですが、さらに1台分拡張工事を行い、並列3台駐車可能となります。
-
【リフォーム中】外観写真です。外壁は清掃しました。
-
【リフォーム中】普通車2台駐車可能なカーポートになります。
-
【リフォーム中】リビングになります。カーペットは処分してお渡しいたします。
-
【リフォーム中】リビングになります。
-
【リフォーム中】浴室です。
-
【リフォーム中】キッチンです。
-
【リフォーム中】1階和室になります。
-
【リフォーム中】玄関になります。鍵交換を行います。
-
【リフォーム中】洗面所です。
-
【リフォーム中】2階東側洋室横のウォークインクローゼットです。
-
【リフォーム中】1階トイレです。トイレ交換を行います。
-
小学校まで1400m 【小学校】立待小学校まで1400mです。
-
【リフォーム中】ベランダになります。
-
【リフォーム中】2階東側洋室になります。
-
【リフォーム中】玄関になります。鍵交換を行います。
-
中学校まで800m 【中学校】中央中学校まで800mです。
-
【リフォーム中】2階南西側洋室になります。清掃してお渡しいたします。
-
【リフォーム中】2階北西側洋室になります。
-
この物件が気になりましたか? 物件や周辺施設などの詳しい情報は
問合せをすることで確認できます
- お問い合わせ先
- (株)カチタス敦賀店
12/5(金)~12/8(月)予約制見学会開催※当日予約OK。ご希望日をお知らせください。自社売主物件につき随時内覧可能です。お電話かメールでご希望日をお知らせください。【リフォーム内容】●標準シロアリ防除工事、クリーニング、鍵交換、雨漏り点検、設備点検●外構・外装駐車場拡張●水回りトイレ交換【おすすめポイント】・本物件は条件により住宅ローン減税が適用されます。・雨漏り、構造上主要な部分の欠陥や・腐食、給排水管の故障や漏水についてお引渡しより2年間保証・シロアリ防除工事施工後5年間保証・お客様に合わせたローンの組み方や金融機関をご
-
価格返済シミュレーション 2799万円
-
土地面積206.79m2(登記)
-
建物面積122m2(登記)
-
間取り4SLDK
-
建物構造・規模木造2階建
-
築年月2016年3月
(築9年10ヶ月) -
駐車場有
-
物件
タイプ中古住宅 -
住所福井県鯖江市糺町 地図
-
交通福井鉄道福武線 神明駅 徒歩10分
| 私道面積 | - |
|---|---|
| 接道状況 | 南東6m |
| 用途地域 | 1種中高 |
| 建ぺい率 / 容積率 | 60% / 150% |
| 地目 | - |
| 土地権利 | 所有権 |
| 借地期間・地代 | - |
| 都市計画 | - |
| 現況 | - |
| 引渡可能時期 | 相談 |
| 情報提供元 | SUUMO [040Z78751036] |
| 情報公開日 | |
| 情報更新日 | |
| 次回更新予定日 | 随時 |
地図
設備など
設備
| バス・トイレ | トイレ、温水洗浄便座、風呂、トイレ2ヶ所 |
|---|---|
| キッチン | システムキッチン、対面K |
| 収納 | 収納スペース、ウォークインクローゼット |
| セキュリティ | モニタ付インターホン |
| 建物設備 | 庭 |
| 特徴 | リフォーム |
| その他 | 上水道、本下水 |
リフォーム履歴
2026年1月完了予定
水回り設備交換:トイレ
2026年1月完了予定
その他リフォーム:駐車場作成
続きを見る
水回り設備交換:トイレ
2026年1月完了予定
その他リフォーム:駐車場作成
備考
<物件名>糺町(神明駅) 2799万円/<駐車場>カースペース/<土地権利>所有権/<間取り>4LDK+S(納戸)/<リフォーム>●リフォーム:2026年1月完了予定(水回り設備交換:トイレ)、2026年1月完了予定(その他リフォーム:駐車場作成)/<特徴>【見学会開催】内外装リフォーム中/年度内入居可/総建ハウジング施工/新耐、瑕疵保証付(不動産会社独自)・年内引渡可・駐車3台以上可・即引渡可・土地50坪以上
販売戸数:1戸
続きを見る
販売戸数:1戸
特記事項
日当り良好・閑静な住宅街・リゾート向き・駐車場3台分以上・オール電化・整形地・浴室1坪以上・瑕疵保証(不動産会社独自)
省エネ性能
| エネルギー消費性能 | - |
|---|---|
| 断熱性能 | - |
| 目安光熱費 | - |
- お問い合わせ先
- (株)カチタス敦賀店
不動産会社情報
お問い合わせ先
| 商号 | (株)カチタス敦賀店 |
|---|---|
| 免許番号 | 国土交通大臣(7)第005475号 |
| 所在地 | 福井県敦賀市平和町37-6 山田ビル1階A |
| TEL | 0120-593000 |
| 取引態様 | 売主 |
| 管理コード | 635863 |
| 所属協会など | - |
この地域の暮らしデータ
鯖江市の人口などの統計情報
| 世帯数 | 23870世帯 |
|---|---|
| 人口総数 | 68402人 |
| 転入者数 |
1948人 転入率(人口1000人当たり) 28.48人 |
| 転出者数 |
2108人 転出率(人口1000人当たり) 30.82人 |
| 土地平均価格 |
住宅地 26480円/m2 商業地 38980円/m2 |
鯖江市の結婚・育児の助成金
| 出産・子育て | |
|---|---|
| 子育て関連の独自の取り組み | (1)ハーフバースデー事業(市内在住6ヶ月児対象に絵本、市内在住生後6ヶ月~未就園児対象に一時預かり無料券をプレゼント)。(2)入学おめでとう事業(入学式終了時に5,000円の商品券を贈呈)。(3)おむつ券配布事業(赤ちゃん訪問時[生後4ヶ月、7~8ヶ月]に各回2,000円分のおむつ券を配布)。(4)絵本購入補助事業(1歳6ヶ月児健診時に1,000円分の図書カードを配布)。(5)トイレトレーニング講座事業(市内各地区でトイレトレーニング講座開催)。(6)おもちゃレンタル事業(地域のイベント等におもちゃやマット等を貸し出す)。(7)育児用品3R事業(使わなくなった育児用品を回収し、無料で提供)。 |
| 出産祝い |
なし
|
| 公立保育所数 |
6ヶ所 0歳児保育を実施 6ヶ所 |
| 私立保育所数 |
10ヶ所 0歳児保育を実施 10ヶ所 |
| 保育所入所待機児童数 | 0人 |
| 認定こども園数 | 6園 |
| 預かり保育実施園数-公立 | 2園 |
| 預かり保育実施園数-私立 | - |
| 学校給食 | 【小学校】完全給食【中学校】牛乳及びおかず等[運搬:ランチボックス] |
| 公立中学校の学校選択制 | 未実施 |
| 子ども・学生等医療費助成<通院>対象年齢 | 18歳3月末まで |
| 子ども・学生等医療費助成<入院>対象年齢 | 18歳3月末まで |
鯖江市の治安・ごみ収集情報
| 公共料金・インフラ | |
|---|---|
| ガス料金(22m3使用した場合の月額) | - |
| 水道料金(口径20mmで20m3の月額) | 鯖江市2860円 |
| 下水道料金(20m3を使用した場合の月額) | 鯖江市2794円 |
| 下水道普及率 | 74.3% |
| 安心・安全 | |
| 建物火災出火件数 |
6件 人口10000人当たり 0.88件 |
| 刑法犯認知件数 |
207件 人口1000人当たり 3.03件 |
| ハザード・防災マップ | あり |
| 医療 | |
| 一般病院総数 | 6ヶ所 |
| 一般診療所総数 | 39ヶ所 |
| 小児科医師数 |
13人 小児人口10000人当たり 14.24人 |
| 産婦人科医師数 |
7人 15~49歳女性人口1万人当たり 5.28人 |
| 介護保険料基準額(月額) | 5650円 |
| ごみ | |
| 家庭ごみ収集(可燃ごみ) |
無料
|
| 家庭ごみの分別方式 | 4分別20種〔燃やすごみ 燃えないごみ 資源物(新聞紙、雑誌類、段ボール類、繊維類、牛乳パック、空き缶、空きびん[無色透明、茶色、生きびん、その他の色]、ペットボトル、白トレー、廃食用油、色トレー・プラスチック製容器包装、容器包装以外のプラスチック) 有害物(乾電池類、スプレー缶、蛍光灯)〕 |
| 家庭ごみの戸別収集 | 未実施 |
| 粗大ごみ収集 |
なし
|
| 生ごみ処理機助成金制度 |
なし 上限金額 - 上限比率 - |
鯖江市の住まいの給付金
暮らしデータ提供元:生活ガイド.com
※行政機関により公表していない地域及びデータがございます。東京23区以外の政令指定都市は、市全体のデータとして表示しています。
※提供データには細心の注意を払っておりますが、調査後に変更がある場合があります。 最新の情報につきましては各市区役所までお問い合わせいただくか、自治体HPなどをご確認ください。
※提供データには細心の注意を払っておりますが、調査後に変更がある場合があります。 最新の情報につきましては各市区役所までお問い合わせいただくか、自治体HPなどをご確認ください。
住宅ローンシミュレーション
月々の返済額からの購入額の計算と、購入額からの返済額の計算ができます。
住宅ローンをお考えの方へ
最もおトクであなたにぴったりな
住宅ローンをみてみよう!
お気に入りの物件を見逃さない!
プッシュ通知で最新の物件情報が届く






