東京都渋谷区東2 恵比寿駅 中古一戸建て・中古住宅
3SLDK / 恵比寿駅
- 情報提供元
- SUUMO
価格39800万円
-
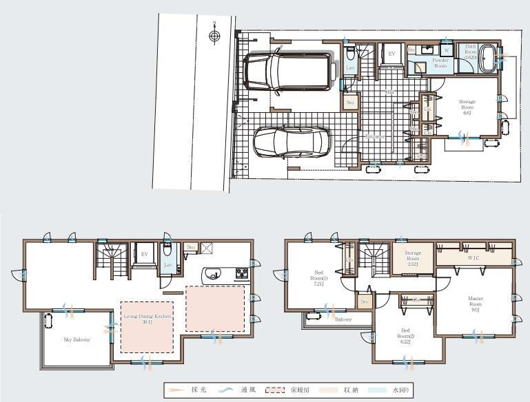
3億9800万円、3LDK+S(納戸)、土地面積119.48m2、建物面積160.63m2 綺麗な整形地で交通量も少ないため 車庫入れにストレスがかかりません
-
3億9800万円、3LDK+S(納戸)、土地面積119.48m2、建物面積160.63m2 大型LDKに大型バルコニーつきの4LDKになります
-
現地(2025年10月)撮影
外観になります -
室内(2025年10月)撮影
洗面室になります -
室内(2025年10月)撮影
LDKになります -
室内(2025年10月)撮影
お風呂になります -
室内(2025年10月)撮影
使い勝手よいカウンターキッチンです -
室内(2025年10月)撮影
主寝室になります -
現地(2025年10月)撮影
玄関になります -
室内(2025年10月)撮影
お部屋になります -
室内(2025年10月)撮影
お手洗いになります -
ライフ渋谷東店まで457m
-
ファミリーマート渋谷東二丁目店まで100m
-
セブンイレブン渋谷東3丁目店まで204m
-
ツルハドラッグ渋谷東店まで182m
-
東京都立広尾高校まで536m
-
渋谷区立広尾中学校まで496m
-
渋谷区立広尾小学校まで424m
-
渋谷区立広尾幼稚園まで379m
-
渋谷東二郵便局まで300m
-
この物件が気になりましたか? 物件や周辺施設などの詳しい情報は
問合せをすることで確認できます
- お問い合わせ先
- (株)マーベラス
□価格変更1204□年間賃料13582800円 固都税343655円□玄関には大理石を使用 ハイグレード美麗中古戸建になります□渋谷駅徒歩圏で並列車庫2台が可能な区画□大型リビングに大型バルコニー付き□お引渡し条件等ご相談ください□恵比寿駅 代官山駅も徒歩圏Always By Your Side ~いつもあなたのそばに~株式会社マーベラス 本店 TEL03-5790-5411
-
価格返済シミュレーション 39800万円
-
土地面積119.48m2(登記)
-
建物面積160.63m2(登記)
-
間取り3SLDK
-
建物構造・規模木造3階建
-
築年月2008年11月
(築17年2ヶ月) -
駐車場有
-
物件
タイプ中古住宅 -
住所東京都渋谷区東2 地図
-
交通JR山手線 恵比寿駅 徒歩9分
JR山手線 渋谷駅 徒歩10分
東急東横線 代官山駅 徒歩11分
| 私道面積 | - |
|---|---|
| 接道状況 | 西4m接面7m |
| 用途地域 | 1種住居 |
| 建ぺい率 / 容積率 | 60% / 160% |
| 地目 | - |
| 土地権利 | 所有権 |
| 借地期間・地代 | - |
| 都市計画 | - |
| 現況 | - |
| 引渡可能時期 | 相談 |
| 情報提供元 | SUUMO [030Z78680361] |
| 情報公開日 | |
| 情報更新日 | |
| 次回更新予定日 | 随時 |
地図
設備など
設備
| バス・トイレ | トイレ、浴室乾燥機、温水洗浄便座、風呂、トイレ2ヶ所 |
|---|---|
| キッチン | システムキッチン、対面K、浄水器、食器洗浄乾燥機 |
| 収納 | 収納スペース、ウォークインクローゼット、シューズインクローク |
| セキュリティ | モニタ付インターホン |
| 室内設備 | 洗面所、シャンプードレッサ、床暖房、衣類乾燥機 |
| 建物設備 | バルコニー、都市ガス、ルーフバルコニー、2面バルコニー |
| 駐車場・駐輪場 | 駐車場2台分 |
| その他 | 上水道、本下水 |
備考
<物件名>東2(恵比寿駅) 3億9800万円/<駐車場>車庫/<土地権利>所有権/<間取り>3LDK+S(納戸)/<特徴>オーナーチェンジ美麗中古戸建 渋谷区東2丁目 並列車庫2台、駐車2台可・2沿線以上利用可・LDK20畳以上・スーパー 徒歩10分以内・市街地が近い
販売戸数:1戸
続きを見る
販売戸数:1戸
特記事項
日当り良好・閑静な住宅街・駐車場2台分・整形地・浴室1坪以上
省エネ性能
| エネルギー消費性能 | - |
|---|---|
| 断熱性能 | - |
| 目安光熱費 | - |
- お問い合わせ先
- (株)マーベラス
不動産会社情報
お問い合わせ先
| 商号 | (株)マーベラス |
|---|---|
| 免許番号 | 東京都知事(3)第094444号 |
| 所在地 | 東京都渋谷区富ヶ谷2-14-5 |
| TEL | 03-5790-5411 |
| 取引態様 | 一般媒介 |
| 管理コード | - |
| 所属協会など | - |
この地域の暮らしデータ
渋谷区の人口などの統計情報
| 世帯数 | 149856世帯 |
|---|---|
| 人口総数 | 230609人 |
| 転入者数 |
24064人 転入率(人口1000人当たり) 104.35人 |
| 転出者数 |
22282人 転出率(人口1000人当たり) 96.62人 |
| 土地平均価格 |
住宅地 1394400円/m2 商業地 6619444円/m2 |
渋谷区の結婚・育児の助成金
| 出産・子育て | |
|---|---|
| 子育て関連の独自の取り組み | (1)待機児解消のため区立保育室を2ヶ所設置。(2)認可外保育施設に待機児専用の受入枠を23名分確保。(3)スマートフォンアプリ「LINE」を活用した子育て情報の配信サービス。(4)渋谷区子育てネウボラ事業。妊娠から出産そして子育てまでの切れ目のない支援を行う、フィンランド発祥の出産・子育て支援の場「ネウボラ」にならい、それらの支援機能を担う関係所管を「渋谷区子育てネウボラ」に集約。保健師をはじめとするさまざまな専門職員や関係職員が連携して、妊娠、出産、子育て期のさまざまな悩み、不安等の相談に応じたり、健診を行ったり、地域のみんなで子育てをする場として設けている。 |
| 出産祝い |
あり
|
| 公立保育所数 |
18ヶ所 0歳児保育を実施 13ヶ所 |
| 私立保育所数 |
39ヶ所 0歳児保育を実施 30ヶ所 |
| 保育所入所待機児童数 | 0人 |
| 認定こども園数 | 11園 |
| 預かり保育実施園数-公立 | 5園 |
| 預かり保育実施園数-私立 | 13園 |
| 学校給食 | 【小学校】完全給食【中学校】完全給食 |
| 公立中学校の学校選択制 | 実施(選択希望制) |
| 子ども・学生等医療費助成<通院>対象年齢 | 18歳3月末まで |
| 子ども・学生等医療費助成<入院>対象年齢 | 18歳3月末まで |
渋谷区の治安・ごみ収集情報
| 公共料金・インフラ | |
|---|---|
| ガス料金(22m3使用した場合の月額) | 東京瓦斯株式会社(東京地区等)3926円 |
| 水道料金(口径20mmで20m3の月額) | 東京都水道局2816円 |
| 下水道料金(20m3を使用した場合の月額) | 東京都下水道局2068円 |
| 下水道普及率 | 100.0% |
| 安心・安全 | |
| 建物火災出火件数 |
110件 人口10000人当たり 4.51件 |
| 刑法犯認知件数 |
3388件 人口1000人当たり 13.89件 |
| ハザード・防災マップ | あり |
| 医療 | |
| 一般病院総数 | 15ヶ所 |
| 一般診療所総数 | 722ヶ所 |
| 小児科医師数 |
70人 小児人口10000人当たり 29.57人 |
| 産婦人科医師数 |
68人 15~49歳女性人口1万人当たり 11.68人 |
| 介護保険料基準額(月額) | 6170円 |
| ごみ | |
| 家庭ごみ収集(可燃ごみ) |
無料
|
| 家庭ごみの分別方式 | 3分別13種〔可燃ごみ 不燃ごみ(金属類、割れ物・刃物などの危険物、ライター) 資源(新聞、雑誌、段ボール、びん、缶、ペットボトル、スプレー缶・カセットボンベ、蛍光管、プラスチック)〕 拠点回収:小型家電 衣類 紙パック 食品用発泡スチロールトレイ 食用油 おもちゃ 食器・調理器具 集団回収:新聞 雑誌 段ボール 紙パック 布類 びん 缶 ペットボトル |
| 家庭ごみの戸別収集 | 一部実施 |
| 粗大ごみ収集 |
あり
|
| 生ごみ処理機助成金制度 |
あり 上限金額 20000円 上限比率 50.0% |
渋谷区の住まいの給付金
暮らしデータ提供元:生活ガイド.com
※行政機関により公表していない地域及びデータがございます。東京23区以外の政令指定都市は、市全体のデータとして表示しています。
※提供データには細心の注意を払っておりますが、調査後に変更がある場合があります。 最新の情報につきましては各市区役所までお問い合わせいただくか、自治体HPなどをご確認ください。
※提供データには細心の注意を払っておりますが、調査後に変更がある場合があります。 最新の情報につきましては各市区役所までお問い合わせいただくか、自治体HPなどをご確認ください。
住宅ローンシミュレーション
月々の返済額からの購入額の計算と、購入額からの返済額の計算ができます。
住宅ローンをお考えの方へ
最もおトクであなたにぴったりな
住宅ローンをみてみよう!
お気に入りの物件を見逃さない!
プッシュ通知で最新の物件情報が届く






