神奈川県横浜市瀬谷区東野台 三ツ境駅 中古一戸建て・中古住宅
4LDK / 三ツ境駅
- 情報提供元
- SUUMO
価格3680万円
-
外観
-
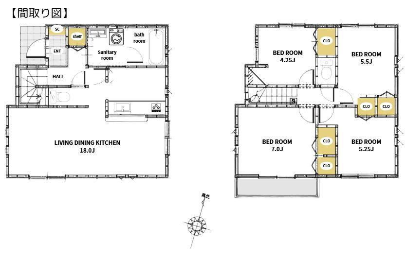
3680万円、4LDK、土地面積128.08m2、建物面積101.62m2
-
画像
-
画像
-
市立二つ橋小学校まで470m
-
画像
-
市立東野中学校まで320m
-
あずまの幼稚園まで240m
-
聖マリアンナ医科大学西部病院まで900m
-
オーケー三ツ境店(Eモール内)まで1250m
-
ローソン瀬谷二つ橋町店まで460m
-
クリエイトエスディー横浜三ツ境店まで1350m
-
この物件が気になりましたか? 物件や周辺施設などの詳しい情報は
問合せをすることで確認できます
- お問い合わせ先
- 相鉄不動産販売(株)三ツ境店
■緑豊かな閑静な住宅地♪■幼稚園・保育園・小学校・中学校が徒歩10分以内でお子様も無理なく通えます♪■前面道路は約6m以上で交通量も少なく、車庫の出し入れもラクラクです♪■季節物の収納に便利なロフトあり♪■全居室6帖以上で各部屋収納スペースあり♪
-
価格返済シミュレーション 3680万円
-
土地面積128.08m2(登記)
-
建物面積101.62m2
-
間取り4LDK
-
建物構造・規模木造2階建
-
築年月1998年1月
(築27年11ヶ月) -
駐車場-
-
物件
タイプ中古住宅 -
住所神奈川県横浜市瀬谷区東野台 地図
-
交通相鉄本線 三ツ境駅 徒歩17分
相鉄本線 瀬谷駅 徒歩25分
| 私道面積 | - |
|---|---|
| 接道状況 | 北8.6m接面12m 西5m接面8.5m 二方道路 |
| 用途地域 | 1種低層 |
| 建ぺい率 / 容積率 | 40% / 80% |
| 地目 | - |
| 土地権利 | 所有権 |
| 借地期間・地代 | - |
| 都市計画 | - |
| 現況 | - |
| 引渡可能時期 | 相談 |
| 情報提供元 | SUUMO [030Z78537381] |
| 情報公開日 | |
| 情報更新日 | |
| 次回更新予定日 | 随時 |
地図
設備など
設備
| バス・トイレ | トイレ、温水洗浄便座、風呂、トイレ2ヶ所 |
|---|---|
| キッチン | システムキッチン、対面K、浄水器 |
| 収納 | 収納スペース、床下収納 |
| セキュリティ | モニタ付インターホン |
| 室内設備 | ロフト |
| 建物設備 | LPガス |
| その他 | 上水道 |
備考
<物件名>東野台(三ツ境駅) 3680万円/<土地権利>所有権/<間取り>4LDK/<特徴>■北西角地・南側はひな壇になっており、陽当たり・通風面が良好です!、システムキッチン・陽当り良好・全居室収納・閑静な住宅地・LDK15畳以上
販売戸数:1戸
法令等制限:景観法、高度地区、敷地面積最低限度有
続きを見る
販売戸数:1戸
法令等制限:景観法、高度地区、敷地面積最低限度有
特記事項
日当り良好・閑静な住宅街・角地
省エネ性能
| エネルギー消費性能 | - |
|---|---|
| 断熱性能 | - |
| 目安光熱費 | - |
- お問い合わせ先
- 相鉄不動産販売(株)三ツ境店
不動産会社情報
お問い合わせ先
商号: 相鉄不動産販売(株)三ツ境店
免許番号:神奈川県知事(2)第030260号
所在地:神奈川県横浜市瀬谷区三ツ境4-14
TEL:0120-340367
取引態様:専任媒介
管理コード:SRE15837 この会社の他の物件情報を見る この不動産会社に相談したい
免許番号:神奈川県知事(2)第030260号
所在地:神奈川県横浜市瀬谷区三ツ境4-14
TEL:0120-340367
取引態様:専任媒介
管理コード:SRE15837 この会社の他の物件情報を見る この不動産会社に相談したい
この地域の暮らしデータ
横浜市の人口などの統計情報
| 世帯数 | 1744208世帯 |
|---|---|
| 人口総数 | 3752969人 |
| 転入者数 |
217258人 転入率(人口1000人当たり) 57.89人 |
| 転出者数 |
201570人 転出率(人口1000人当たり) 53.71人 |
| 土地平均価格 |
住宅地 254434円/m2 商業地 1043863円/m2 |
横浜市の結婚・育児の助成金
| 出産・子育て | |
|---|---|
| 子育て関連の独自の取り組み | 横浜市私立幼稚園等預かり保育事業(横浜市が定めた基準(実施日、時間、職員配置等)を満たし、横浜市の認定を受けた幼稚園・認定こども園が実施する事業。市内在住の園児の保護者が就労や病気等で、園の正規教育時間の前後に家庭で保育ができない場合に、利用可能。3歳児~5歳児は無料、満3歳児は(a)私学助成を受ける幼稚園の場合、月額9,000円、(b)新制度に移行した園の場合、0円~9,000円)。 |
| 出産祝い |
あり
|
| 公立保育所数 |
56ヶ所 0歳児保育を実施 41ヶ所 |
| 私立保育所数 |
813ヶ所 0歳児保育を実施 716ヶ所 |
| 保育所入所待機児童数 | 5人 |
| 認定こども園数 | 70園 |
| 預かり保育実施園数-公立 | - |
| 預かり保育実施園数-私立 | 213園 |
| 学校給食 | 【小学校】完全給食【中学校】家庭弁当等・業者弁当との選択制/デリバリー形式[運搬:ランチボックス、内容:完全給食] |
| 公立中学校の学校選択制 | 一部実施(特定地域選択制[特別調整通学区域]) |
| 子ども・学生等医療費助成<通院>対象年齢 | 中学校卒業まで |
| 子ども・学生等医療費助成<入院>対象年齢 | 中学校卒業まで |
横浜市の治安・ごみ収集情報
| 公共料金・インフラ | |
|---|---|
| ガス料金(22m3使用した場合の月額) | 東京瓦斯株式会社(東京地区等)3926円 |
| 水道料金(口径20mmで20m3の月額) | 横浜市3017円 |
| 下水道料金(20m3を使用した場合の月額) | 横浜市2035円 |
| 下水道普及率 | 100.0% |
| 安心・安全 | |
| 建物火災出火件数 |
438件 人口10000人当たり 1.16件 |
| 刑法犯認知件数 |
16059件 人口1000人当たり 4.25件 |
| ハザード・防災マップ | あり |
| 医療 | |
| 一般病院総数 | 113ヶ所 |
| 一般診療所総数 | 3201ヶ所 |
| 小児科医師数 |
682人 小児人口10000人当たり 15.98人 |
| 産婦人科医師数 |
346人 15~49歳女性人口1万人当たり 4.58人 |
| 介護保険料基準額(月額) | 6620円 |
| ごみ | |
| 家庭ごみ収集(可燃ごみ) |
無料
|
| 家庭ごみの分別方式 | 7分別9種〔燃やすごみ 燃えないごみ スプレー缶 乾電池 プラスチック製容器包装 缶・びん・ペットボトル(缶、びん、ペットボトル) 小さな金属類〕 |
| 家庭ごみの戸別収集 | 一部実施(【ふれあい収集】家庭ごみ・粗大ごみを集積場所まで持ち出すことができない高齢者や障害のある方などを対象にごみ出しの支援を実施。【狭あい道路収集】道路が狭く収集車が通行することができないため、集積場所が自宅近くに設けられない地域において、軽四輪車でごみを収集) |
| 粗大ごみ収集 |
あり
|
| 生ごみ処理機助成金制度 |
なし 上限金額 - 上限比率 - |
横浜市の住まいの給付金
暮らしデータ提供元:生活ガイド.com
※行政機関により公表していない地域及びデータがございます。東京23区以外の政令指定都市は、市全体のデータとして表示しています。
※提供データには細心の注意を払っておりますが、調査後に変更がある場合があります。 最新の情報につきましては各市区役所までお問い合わせいただくか、自治体HPなどをご確認ください。
※提供データには細心の注意を払っておりますが、調査後に変更がある場合があります。 最新の情報につきましては各市区役所までお問い合わせいただくか、自治体HPなどをご確認ください。
この物件を見た人はこんな物件も
見ています
住宅ローンシミュレーション
月々の返済額からの購入額の計算と、購入額からの返済額の計算ができます。
住宅ローンをお考えの方へ
最もおトクであなたにぴったりな
住宅ローンをみてみよう!
お気に入りの物件を見逃さない!
プッシュ通知で最新の物件情報が届く






