東京都北区岩淵町 赤羽岩淵駅 中古一戸建て・中古住宅
2SLDK / 赤羽岩淵駅
- 情報提供元
- SUUMO
価格6780万円
-
一日の中で多くの時間を過ごすことになるリビングダイニング、だからこそ穏やかな空間に整えるため、気持ちのいい採光と通風を感じられる間取りを実現させました。
-
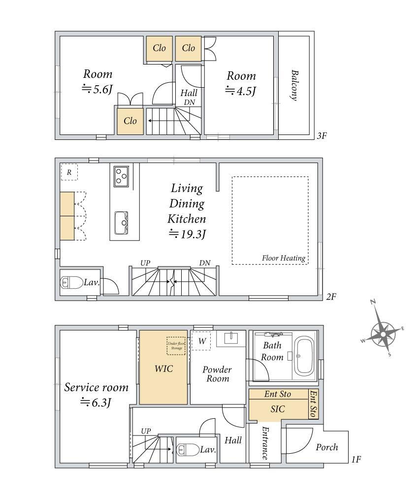
6780万円、2LDK+S(納戸)、土地面積81.18m2、建物面積92.58m2 3LDK+P
-
明るく開放的な空間が広がるリビングダイニング。室内には豊かな陽光が注ぎ込み、爽やかな住空間を演出してくれます。ご家族様やご友人と一緒に料理を楽しんだりと想像がいろいろ膨らみますね♪
-
向かい合い、顔を合わせることの多いカウンターキッチン。料理や家事をしながらお子様の様子を見守れる安心感もございます。
-
一日の疲れを癒すための心地よいバスタイムを演出する浴室はゆとりあるサイズを採用。
-
お子様の成長に合わせてレイアウトも変わりますよね。成長に合わせて机やベットを配置したり、思春期のプライバシーを重視したり、そう考えてる時間も楽しくなってくるお部屋です♪
-
JR赤羽駅まで960m
-
赤羽岩淵駅まで400m
-
まいばすけっと赤羽岩淵駅前店まで342m
-
セブンイレブン北区岩淵北本通り店まで179m
-
サンドラッグ赤羽店まで680m
-
十分な大きさの洗面台は収納もさる事ながら、身だしなみチェックや歯磨きなど、朝の慌ただしい時間でも余裕とゆとりを感じられる仕様です。
-
WICやシューズクローゼットなど収納豊富な間取りです。
-
赤羽駅まで960m
-
社団埴原会赤羽病院まで785m
-
北区立岩淵小学校まで260m
-
北区立赤羽岩淵中学校まで594m
-
この物件が気になりましたか? 物件や周辺施設などの詳しい情報は
問合せをすることで確認できます
- お問い合わせ先
- (株)アドキャスト池袋支店
☆━━━…‥・ 物件の特徴 ・‥…━━━☆◇通勤・通学に便利な東京メトロ南北線「赤羽岩淵」駅♪ JR「赤羽」駅徒歩圏内♪◆プライバシーに配慮した2階リビング♪ ゆとりの19帖LDK♪◇全居室収納に加え WIC&土間収納など豊富な収納スペース♪◆床暖房が標準装備♪ 充実の設備仕様♪ぜひ、現地をご確認下さい♪☆━━━…‥・ ━☆━ ・‥…━━━☆【豊富な未公開物件情報】板橋区大山にお店がございます。豊島区・板橋区・北区の物件情報はアドキャストまで!都内に13店舗展開!毎月約100件以上の仲介をしているため未公開物件が集まりやすいアドキャストへ是非お越し下さい。
-
価格返済シミュレーション 6780万円
-
土地面積81.18m2
-
建物面積92.58m2
-
間取り2SLDK
-
建物構造・規模木造3階建
-
築年月2021年12月
(築4年1ヶ月) -
駐車場有
-
物件
タイプ中古住宅 -
住所東京都北区岩淵町 地図
-
交通東京メトロ南北線 赤羽岩淵駅 徒歩5分
JR京浜東北線 赤羽駅 徒歩12分
JR埼京線 赤羽駅 徒歩12分
| 私道面積 | - |
|---|---|
| 接道状況 | 南東4m |
| 用途地域 | 1種中高 |
| 建ぺい率 / 容積率 | 60% / 200% |
| 地目 | - |
| 土地権利 | 所有権 |
| 借地期間・地代 | - |
| 都市計画 | - |
| 現況 | - |
| 引渡可能時期 | 相談 |
| 情報提供元 | SUUMO [030Z78266571] |
| 情報公開日 | |
| 情報更新日 | |
| 次回更新予定日 | 随時 |
地図
設備など
設備
| バス・トイレ | トイレ、浴室乾燥機、温水洗浄便座、風呂、トイレ2ヶ所 |
|---|---|
| 収納 | 収納スペース、ウォークインクローゼット、シューズインクローク |
| 室内設備 | フローリング、床暖房、衣類乾燥機 |
| 建物設備 | 都市ガス |
| その他 | 上水道、本下水 |
備考
<物件名>北区岩淵町 中古戸建/<駐車場>カースペース/<土地権利>所有権/<間取り>2LDK+S(納戸)/<特徴>◆◇19帖LDK新邸◆人気の赤羽エリア◇◇荒川桜堤緑地が近く住環境良好◇、地盤調査済・2沿線以上利用可・LDK18畳以上・市街地が近い・浴室乾燥機
販売戸数:1戸
法令等制限:文化財保護法による規制有、景観法による規制有、航空法による規制有、準防火地域
続きを見る
販売戸数:1戸
法令等制限:文化財保護法による規制有、景観法による規制有、航空法による規制有、準防火地域
特記事項
日当り良好
省エネ性能
| エネルギー消費性能 | - |
|---|---|
| 断熱性能 | - |
| 目安光熱費 | - |
- お問い合わせ先
- (株)アドキャスト池袋支店
不動産会社情報
お問い合わせ先
| 商号 | (株)アドキャスト池袋支店 |
|---|---|
| 免許番号 | 東京都知事(4)第086581号 |
| 所在地 | 東京都板橋区大山町12-2 DT大山1階 |
| TEL | 0120-974162 |
| 取引態様 | 媒介 |
| 管理コード | - |
| 所属協会など | - |
この地域の暮らしデータ
北区の人口などの統計情報
| 世帯数 | 189579世帯 |
|---|---|
| 人口総数 | 357701人 |
| 転入者数 |
34161人 転入率(人口1000人当たり) 95.50人 |
| 転出者数 |
27589人 転出率(人口1000人当たり) 77.13人 |
| 土地平均価格 |
住宅地 588417円/m2 商業地 1236700円/m2 |
北区の結婚・育児の助成金
| 出産・子育て | |
|---|---|
| 子育て関連の独自の取り組み | (1)子育て福袋事業(安心ママパパヘルパー事業等の案内)。(2)みんなでお祝い輝きバースデー事業。(3)子どもかがやき顕彰。(4)ひとり親家庭等相談支援事業。(5)子どもの居場所づくり(子ども食堂)支援事業。(6)生活困窮世帯・ひとり親世帯等の小学生、中学生への学習支援。(7)区立学校給食費補助金制度(給食費無償化)。 |
| 出産祝い |
なし
|
| 公立保育所数 |
42ヶ所 0歳児保育を実施 36ヶ所 |
| 私立保育所数 |
55ヶ所 0歳児保育を実施 45ヶ所 |
| 保育所入所待機児童数 | 8人 |
| 認定こども園数 | 3園 |
| 預かり保育実施園数-公立 | 0園 |
| 預かり保育実施園数-私立 | 21園 |
| 学校給食 | 【小学校】完全給食【中学校】完全給食 |
| 公立中学校の学校選択制 | 未実施 |
| 子ども・学生等医療費助成<通院>対象年齢 | 18歳3月末まで |
| 子ども・学生等医療費助成<入院>対象年齢 | 18歳3月末まで |
北区の治安・ごみ収集情報
| 公共料金・インフラ | |
|---|---|
| ガス料金(22m3使用した場合の月額) | 東京瓦斯株式会社(東京地区等)3926円 |
| 水道料金(口径20mmで20m3の月額) | 東京都水道局2816円 |
| 下水道料金(20m3を使用した場合の月額) | 東京都下水道局2068円 |
| 下水道普及率 | 100.0% |
| 安心・安全 | |
| 建物火災出火件数 |
58件 人口10000人当たり 1.63件 |
| 刑法犯認知件数 |
2052件 人口1000人当たり 5.78件 |
| ハザード・防災マップ | あり |
| 医療 | |
| 一般病院総数 | 17ヶ所 |
| 一般診療所総数 | 294ヶ所 |
| 小児科医師数 |
97人 小児人口10000人当たり 26.35人 |
| 産婦人科医師数 |
23人 15~49歳女性人口1万人当たり 2.82人 |
| 介護保険料基準額(月額) | 6290円 |
| ごみ | |
| 家庭ごみ収集(可燃ごみ) |
無料
|
| 家庭ごみの分別方式 | 5分別10種〔可燃ごみ 不燃ごみ 古紙(新聞、雑誌、ダンボール、雑紙) 資源物(ビン、カン、ペットボトル) プラスチック〕 拠点回収:紙パック 発泡トレイ 古布 廃食油 水銀入り乾電池 |
| 家庭ごみの戸別収集 | 一部実施(北区内一部地域と、ご自身で集積所までごみを運び出すことが困難であり、身近な人の協力を得ることができない65歳以上又は障害のある方で、北区清掃事務所に申し出のあった方が対象) |
| 粗大ごみ収集 |
あり
|
| 生ごみ処理機助成金制度 |
あり 上限金額 20000円 上限比率 50.0% |
北区の住まいの給付金
暮らしデータ提供元:生活ガイド.com
※行政機関により公表していない地域及びデータがございます。東京23区以外の政令指定都市は、市全体のデータとして表示しています。
※提供データには細心の注意を払っておりますが、調査後に変更がある場合があります。 最新の情報につきましては各市区役所までお問い合わせいただくか、自治体HPなどをご確認ください。
※提供データには細心の注意を払っておりますが、調査後に変更がある場合があります。 最新の情報につきましては各市区役所までお問い合わせいただくか、自治体HPなどをご確認ください。
住宅ローンシミュレーション
月々の返済額からの購入額の計算と、購入額からの返済額の計算ができます。
住宅ローンをお考えの方へ
最もおトクであなたにぴったりな
住宅ローンをみてみよう!
お気に入りの物件を見逃さない!
プッシュ通知で最新の物件情報が届く






