神奈川県川崎市多摩区菅北浦4 京王稲田堤駅 中古一戸建て・中古住宅
3LDK / 京王稲田堤駅
- 情報提供元
- SUUMO
価格5980万円
-
敷地面積158.78平米のゆとりある敷地です。
-
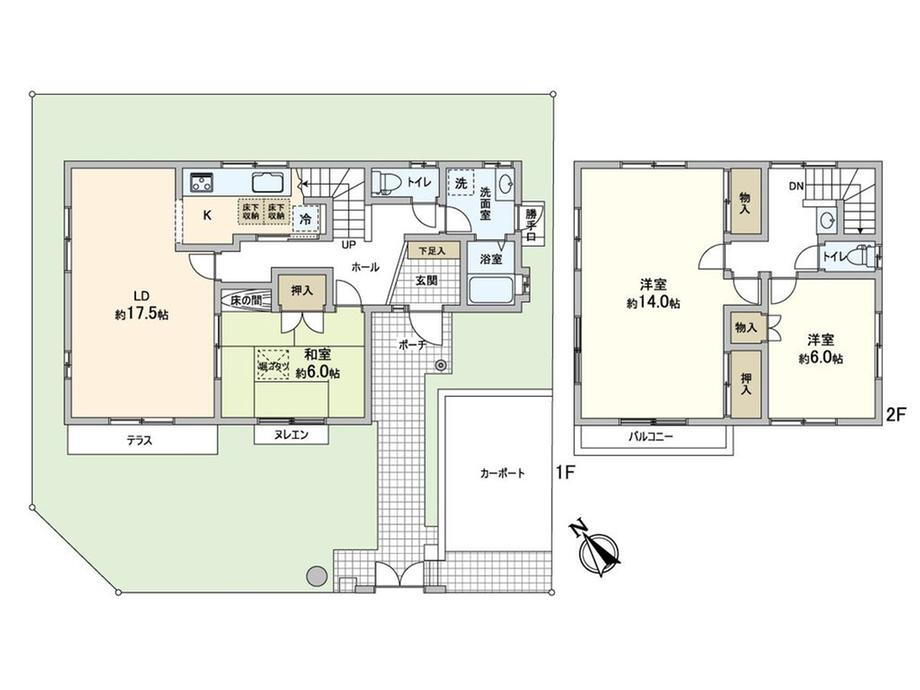
5980万円、3LDK、土地面積158.78m2、建物面積108.62m2 建物面積約108.62平米の3LDK。
-
三方道路で開放感ございます。
-
カースペースもございます。
-
約17.5帖の広々LDK
-
画像
-
画像
-
【2階洗面台】各階に洗面がございます。
-
【1階洗面台】各階に洗面がございます。
-
【1階トイレ】各階にトイレがございます。
-
画像
-
画像
-
【洋室 約14.0帖】
-
【洋室 約6.0帖】
-
【和室 約6.0帖】
-
画像
-
画像
-
この物件が気になりましたか? 物件や周辺施設などの詳しい情報は
問合せをすることで確認できます
- お問い合わせ先
- 三井のリハウス登戸センター三井不動産リアルティ(株)
-物件のおすすめポイント-▼立地・京王電鉄相模原線「京王稲田堤」駅 徒歩15分・JR南武線「稲田堤」駅 徒歩16分・開発分譲地内▼特徴・ご家族が集うLDKは約17.5帖の広さ・キッチンは2WAY仕様にて家事動線良好・1階和室は掘りごたつ有・各洋室・和室に収納スペースを確保・各階に洗面台・トイレを設置・南西側にバルコニー・庭有・屋根付駐車スペース有(車種による)▼周辺環境・南菅小学校 徒歩6分(約430m)・西菅公園 徒歩3分(約180m)■ ご希望の住まい探しをお手伝いします ━━━━━・・・物件の詳細・ご相談はお気軽にお問い合わせください。
-
価格返済シミュレーション 5980万円
-
土地面積158.78m2(48.03坪)(登記)
-
建物面積108.62m2(32.85坪)(登記)
-
間取り3LDK
-
建物構造・規模軽量鉄骨2階建
-
築年月1988年3月
(築37年9ヶ月) -
駐車場有
-
物件
タイプ中古住宅 -
住所神奈川県川崎市多摩区菅北浦4 地図
-
交通京王相模原線 京王稲田堤駅 徒歩15分
JR南武線 稲田堤駅 徒歩16分
| 私道面積 | - |
|---|---|
| 接道状況 | 南西6m接面10.6m 北西4m接面10.4m 北東10m接面12.7m 二方道路 |
| 用途地域 | 1種中高 |
| 建ぺい率 / 容積率 | 60% / 200% |
| 地目 | - |
| 土地権利 | 所有権 |
| 借地期間・地代 | - |
| 都市計画 | - |
| 現況 | - |
| 引渡可能時期 | 相談 |
| 情報提供元 | SUUMO [030Z77342651] |
| 情報公開日 | |
| 情報更新日 | |
| 次回更新予定日 | 随時 |
地図
設備など
設備
| バス・トイレ | 風呂、トイレ2ヶ所 |
|---|---|
| 収納 | 収納スペース、床下収納 |
| 建物設備 | バルコニー、都市ガス、テラス、庭 |
| その他 | 上水道、本下水 |
備考
<物件名>菅北浦4(京王稲田堤駅) 5980万円/<駐車場>カースペース/<土地権利>所有権/<間取り>3LDK/<特徴>■三井のリハウス■3方角地につき陽当り・通風良好全居室6帖以上の広さ、2沿線以上利用可・山が見える・陽当り良好・全居室収納・閑静な住宅地
販売戸数:1戸
続きを見る
販売戸数:1戸
特記事項
日当り良好・閑静な住宅街・角地・整形地
省エネ性能
| エネルギー消費性能 | - |
|---|---|
| 断熱性能 | - |
| 目安光熱費 | - |
- お問い合わせ先
- 三井のリハウス登戸センター三井不動産リアルティ(株)
不動産会社情報
お問い合わせ先
商号: 三井のリハウス登戸センター三井不動産リアルティ(株)
免許番号:国土交通大臣(15)第000777号
所在地:神奈川県川崎市多摩区登戸2423-1 maruei7 2階
TEL:00786-01793891
取引態様:一般媒介
管理コード:F39ACA0D この会社の他の物件情報を見る この不動産会社に相談したい
免許番号:国土交通大臣(15)第000777号
所在地:神奈川県川崎市多摩区登戸2423-1 maruei7 2階
TEL:00786-01793891
取引態様:一般媒介
管理コード:F39ACA0D この会社の他の物件情報を見る この不動産会社に相談したい
この地域の暮らしデータ
川崎市の人口などの統計情報
| 世帯数 | 745988世帯 |
|---|---|
| 人口総数 | 1529136人 |
| 転入者数 |
105162人 転入率(人口1000人当たり) 68.77人 |
| 転出者数 |
96761人 転出率(人口1000人当たり) 63.28人 |
| 土地平均価格 |
住宅地 302136円/m2 商業地 894684円/m2 |
川崎市の結婚・育児の助成金
| 出産・子育て | |
|---|---|
| 子育て関連の独自の取り組み | (1)産後ケアや妊娠期サポート事業、妊娠・出産SOS電話相談事業等(妊娠・出産包括支援事業として実施)。(2)産前・産後家庭支援ヘルパー派遣事業(妊娠中または産後6ヶ月[多胎の方は1年]までで、母親が体調不良等により育児や家事が困難かつ、日中ほかに育児や家事を行う者がいない家庭に、20回[多胎の方は60回]までヘルパーを派遣し、育児や家事のお手伝いを行う)。 |
| 出産祝い |
なし
|
| 公立保育所数 |
21ヶ所 0歳児保育を実施 20ヶ所 |
| 私立保育所数 |
429ヶ所 0歳児保育を実施 320ヶ所 |
| 保育所入所待機児童数 | 0人 |
| 認定こども園数 | 24園 |
| 預かり保育実施園数-公立 | - |
| 預かり保育実施園数-私立 | 56園 |
| 学校給食 | 【小学校】完全給食【中学校】完全給食 |
| 公立中学校の学校選択制 | 未実施 |
| 子ども・学生等医療費助成<通院>対象年齢 | 中学校卒業まで |
| 子ども・学生等医療費助成<入院>対象年齢 | 中学校卒業まで |
川崎市の治安・ごみ収集情報
| 公共料金・インフラ | |
|---|---|
| ガス料金(22m3使用した場合の月額) | 東京瓦斯株式会社(東京地区等)3926円 |
| 水道料金(口径20mmで20m3の月額) | 川崎市2321円 |
| 下水道料金(20m3を使用した場合の月額) | 川崎市2156円 |
| 下水道普及率 | 99.6% |
| 安心・安全 | |
| 建物火災出火件数 |
270件 人口10000人当たり 1.76件 |
| 刑法犯認知件数 |
7645件 人口1000人当たり 4.97件 |
| ハザード・防災マップ | あり |
| 医療 | |
| 一般病院総数 | 33ヶ所 |
| 一般診療所総数 | 1060ヶ所 |
| 小児科医師数 |
310人 小児人口10000人当たり 16.99人 |
| 産婦人科医師数 |
139人 15~49歳女性人口1万人当たり 4.04人 |
| 介護保険料基準額(月額) | 6591円 |
| ごみ | |
| 家庭ごみ収集(可燃ごみ) |
無料
|
| 家庭ごみの分別方式 | 7分別〔普通ごみ 空きびん 使用済み乾電池 ミックスペーパー プラスチック製容器包装 空き缶・ペットボトル 小物金属〕※プラスチック製容器包装については一部地域(川崎区)でプラスチック資源を実施 |
| 家庭ごみの戸別収集 | 一部実施(ふれあい収集[一部地域のみ実施]) |
| 粗大ごみ収集 |
あり
|
| 生ごみ処理機助成金制度 |
あり 上限金額 10000円 上限比率 50.0% |
川崎市の住まいの給付金
暮らしデータ提供元:生活ガイド.com
※行政機関により公表していない地域及びデータがございます。東京23区以外の政令指定都市は、市全体のデータとして表示しています。
※提供データには細心の注意を払っておりますが、調査後に変更がある場合があります。 最新の情報につきましては各市区役所までお問い合わせいただくか、自治体HPなどをご確認ください。
※提供データには細心の注意を払っておりますが、調査後に変更がある場合があります。 最新の情報につきましては各市区役所までお問い合わせいただくか、自治体HPなどをご確認ください。
この物件を見た人はこんな物件も
見ています
住宅ローンシミュレーション
月々の返済額からの購入額の計算と、購入額からの返済額の計算ができます。
住宅ローンをお考えの方へ
最もおトクであなたにぴったりな
住宅ローンをみてみよう!
お気に入りの物件を見逃さない!
プッシュ通知で最新の物件情報が届く






