山形県酒田市一番町 酒田駅 中古一戸建て・中古住宅
5LDK / 酒田駅
- 情報提供元
- SUUMO
価格2500万円
-
重厚感のあるレンガ調の外観
-
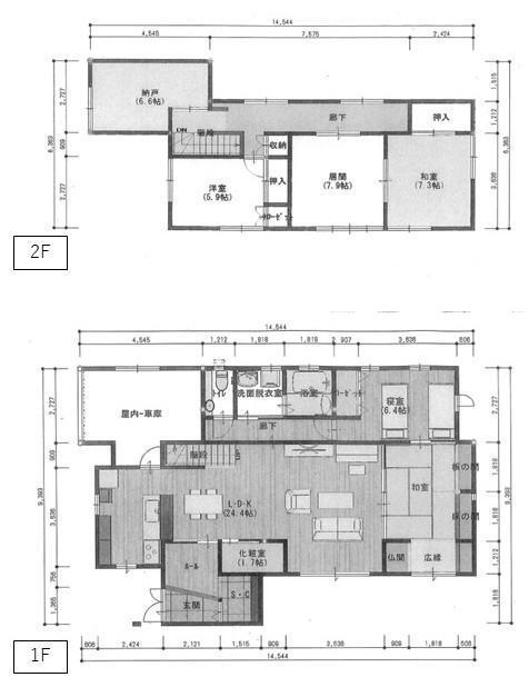
2500万円、5LDK、土地面積211.37m2、建物面積177.6m2
-
大容量のシューズクローゼットを備えた玄関ホール
-
ウォールナット調の床材39.52m2(24.4帖)のLDK
-
追い焚き可能
-
対面キッチンから見た風景
-
リビングに続く和室 床の間と、窓には飾彫りがあります
-
大容量のシューズクローゼットを備えた玄関ホール
-
シャワー付き3面鏡洗面化粧台
-
”泡”で自動洗浄機能付きトイレ
-
玄関へ続く石畳と屋外水栓
-
コープなかのくちまで551m
-
ひとりだけの空間が叶うパウダールーム
-
続きの和室の襖を開ければ、更に広々とした印象に
-
キッチン背面にはパンドリーを備えています
-
リビングに続く和室 床の間と、窓には飾彫りがあります
-
大容量のシューズクローゼットを備えた玄関ホール
-
ツルハドラッグ酒田本町店まで1030m
-
壁面にポイント壁を使用
-
3口のIHクッキングヒーター、グリル、食器洗乾燥機付き
-
大容量のシューズクローゼットを備えた玄関ホール
-
この物件が気になりましたか? 物件や周辺施設などの詳しい情報は
問合せをすることで確認できます
- お問い合わせ先
- (株)第一不動産
酒田市中心部へアクセス良好の好立地、酒田市役所へ車で3分!新しくオープンした「いろは蔵パーク」も徒歩圏内!
-
価格返済シミュレーション 2500万円
-
土地面積211.37m2(63.93坪)(登記)
-
建物面積177.6m2(53.72坪)
-
間取り5LDK
-
建物構造・規模木造2階建
-
築年月1978年3月
(築47年10ヶ月) -
駐車場-
-
物件
タイプ中古住宅 -
住所山形県酒田市一番町 地図
-
交通JR羽越本線 酒田駅 徒歩15分
| 私道面積 | - |
|---|---|
| 接道状況 | - |
| 用途地域 | 1種住居 |
| 建ぺい率 / 容積率 | 60% / 200% |
| 地目 | - |
| 土地権利 | 所有権 |
| 借地期間・地代 | - |
| 都市計画 | - |
| 現況 | - |
| 引渡可能時期 | 相談 |
| 情報提供元 | SUUMO [020Z77894492] |
| 情報公開日 | |
| 情報更新日 | |
| 次回更新予定日 | 随時 |
地図
設備など
設備
| バス・トイレ | トイレ、温水洗浄便座、風呂 |
|---|---|
| キッチン | システムキッチン、対面K、IHクッキングヒータ、食器洗浄乾燥機 |
| 収納 | 収納スペース、ウォークインクローゼット、シューズインクローク |
| 室内設備 | 洗面所、シャンプードレッサ |
| 建物設備 | 庭、複層ガラス |
| 特徴 | リフォーム |
| その他 | 上水道、本下水 |
リフォーム履歴
2017年8月完了
水回り設備交換:キッチン・浴室・トイレ
内装リフォーム:床・全室
2017年8月完了
その他リフォーム:外壁
※年月は一番古いリフォーム箇所を表します
続きを見る
水回り設備交換:キッチン・浴室・トイレ
内装リフォーム:床・全室
2017年8月完了
その他リフォーム:外壁
※年月は一番古いリフォーム箇所を表します
備考
<物件名>一番町(酒田駅) 2500万円/<土地権利>所有権/<間取り>5LDK/<リフォーム>●リフォーム:2017年8月完了(水回り設備交換:キッチン・浴室・トイレ、内装リフォーム:床・全室)、2017年8月完了(その他リフォーム:外壁)※年月は一番古いリフォーム箇所を表します/<特徴>広いリビングでゆとりある生活!大規模リフォーム済み!、LDK20畳以上・土地50坪以上・スーパー 徒歩10分以内・内外装リフォーム・内装リフォーム
販売戸数:1戸
法令等制限:準防火地域
続きを見る
販売戸数:1戸
法令等制限:準防火地域
特記事項
閑静な住宅街
省エネ性能
| エネルギー消費性能 | - |
|---|---|
| 断熱性能 | - |
| 目安光熱費 | - |
- お問い合わせ先
- (株)第一不動産
不動産会社情報
お問い合わせ先
| 商号 | (株)第一不動産 |
|---|---|
| 免許番号 | 山形県知事(5)第002119号 |
| 所在地 | 山形県酒田市御成町11-21 |
| TEL | 0234-24-0555 |
| 取引態様 | 一般媒介 |
| 管理コード | - |
| 所属協会など | - |
この地域の暮らしデータ
酒田市の人口などの統計情報
| 世帯数 | 39263世帯 |
|---|---|
| 人口総数 | 95789人 |
| 転入者数 |
2285人 転入率(人口1000人当たり) 23.85人 |
| 転出者数 |
2464人 転出率(人口1000人当たり) 25.72人 |
| 土地平均価格 |
住宅地 19048円/m2 商業地 25200円/m2 |
酒田市の結婚・育児の助成金
| 出産・子育て | |
|---|---|
| 子育て関連の独自の取り組み | (1)多子世帯を対象に保育所等の副食費無料、保育料の補助(他要件あり)。(2)こども家庭センター「ぎゅっと」の運営(妊娠、出産、子育て相談窓口。母子保健コーディネーター[保健師・助産師]等が子育てをサポート)。(3)ファミリー・サポート・センターの運営(安心して仕事と育児の両立ができるよう「子育ての援助をして欲しい人」と「手助けをしてくれる人」がそれぞれ会員となり育児支援を行う)。(4)子育てタクシー事業。(5)大学等受験生支援補助金、高校・大学等模擬試験受験料支援補助金(経済的理由により大学等の受験が困難な方に対する支援)。 |
| 出産祝い |
あり
|
| 公立保育所数 |
5ヶ所 0歳児保育を実施 5ヶ所 |
| 私立保育所数 |
19ヶ所 0歳児保育を実施 19ヶ所 |
| 保育所入所待機児童数 | 0人 |
| 認定こども園数 | 11園 |
| 預かり保育実施園数-公立 | - |
| 預かり保育実施園数-私立 | - |
| 学校給食 | 【小学校】完全給食【中学校】完全給食 |
| 公立中学校の学校選択制 | 未実施 |
| 子ども・学生等医療費助成<通院>対象年齢 | 18歳3月末まで |
| 子ども・学生等医療費助成<入院>対象年齢 | 18歳3月末まで |
酒田市の治安・ごみ収集情報
| 公共料金・インフラ | |
|---|---|
| ガス料金(22m3使用した場合の月額) | 酒田天然瓦斯株式会社5844円 庄内町3719円 |
| 水道料金(口径20mmで20m3の月額) | 酒田市4323円 |
| 下水道料金(20m3を使用した場合の月額) | 酒田市4125円 |
| 下水道普及率 | 80.3% |
| 安心・安全 | |
| 建物火災出火件数 |
21件 人口10000人当たり 2.09件 |
| 刑法犯認知件数 |
211件 人口1000人当たり 2.10件 |
| ハザード・防災マップ | あり |
| 医療 | |
| 一般病院総数 | 3ヶ所 |
| 一般診療所総数 | 92ヶ所 |
| 小児科医師数 |
12人 小児人口10000人当たり 13.11人 |
| 産婦人科医師数 |
6人 15~49歳女性人口1万人当たり 4.04人 |
| 介護保険料基準額(月額) | 6280円 |
| ごみ | |
| 家庭ごみ収集(可燃ごみ) |
無料
|
| 家庭ごみの分別方式 | 6分別10種〔もやすごみ 資源物 ペットボトル 埋立ごみ 紙類資源(新聞紙、段ボール、雑誌、紙パック、雑紙) 廃食用油〕 |
| 家庭ごみの戸別収集 | 一部実施(軽度生活援助事業) |
| 粗大ごみ収集 |
あり
|
| 生ごみ処理機助成金制度 |
あり 上限金額 20000円 上限比率 33.3% |
酒田市の住まいの給付金
暮らしデータ提供元:生活ガイド.com
※行政機関により公表していない地域及びデータがございます。東京23区以外の政令指定都市は、市全体のデータとして表示しています。
※提供データには細心の注意を払っておりますが、調査後に変更がある場合があります。 最新の情報につきましては各市区役所までお問い合わせいただくか、自治体HPなどをご確認ください。
※提供データには細心の注意を払っておりますが、調査後に変更がある場合があります。 最新の情報につきましては各市区役所までお問い合わせいただくか、自治体HPなどをご確認ください。
住宅ローンシミュレーション
月々の返済額からの購入額の計算と、購入額からの返済額の計算ができます。
住宅ローンをお考えの方へ
最もおトクであなたにぴったりな
住宅ローンをみてみよう!
お気に入りの物件を見逃さない!
プッシュ通知で最新の物件情報が届く






