京都府京都市伏見区桃山町島津 丹波橋駅 3LDK 賃貸(賃貸マンション・アパート)
3LDK / 丹波橋駅
- 情報提供元
- LIFULL HOME'S
賃料18.5万円 / 管理費等-
-
桃山で高級物件をお探しの方へ。
-
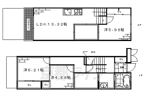
間取
-
高級感溢れる佇まい
-
京都信用金庫 桃山支店まで286m 国道24号線沿いです。丹波橋が最寄です。
-
玄関にはシューズクローゼット。ブーツも余裕ではいる収納力
-
メインカラーは清潔感あるホワイトですっきりとした雰囲気です
-
採光面が大きく開放的な雰囲気です。
-
各部屋に収納がつくられていますよ
-
書斎に寝室に、使い勝手の良い洋室
-
ベランダに面したお部屋です
-
仕切りを開けるとまた違った印象
-
ワイドサイズのシステムキッチンが入っています
-
サッとひと拭きでいつもピカピカを保てます
-
機能性とデザイン性を兼ね備えたキッチン
-
大きめシンクが使いやすい
-
一日の疲れを癒すバスルーム
-
トイレスペース。正面のクロスがポイントです
-
窓付きの洗面所。大きめ鏡がスタイリッシュ
-
洗濯機はこちらへどうぞ
-
クローゼットは横に広く、見渡しやすいつくり。
-
不審者は鍵を開けずにココでシャットアウト
-
セコムのセキュリティに守られたお部屋です。
-
床暖房で寒い季節は足元から幸せです
-
嬉しいエアコン付き
-
バルコニー。ウッドデッキです。
-
バルコニーの様子です。
-
バルコニーの様子です。
-
玄関からの眺望。デザイン性が高く玄関だけでもおしゃれな印象です
-
2階へあがる階段です。
-
2階からの眺望です。小高い丘にあり、見晴らしもグッド
-
この物件が気になりましたか? 最新の空室状況は
問合せをすることで確認できます
- お問い合わせ先
- 株式会社京都ライフ 京都ライフ西大路店
高級ハイツ登場です。 京阪・近鉄・JRの3WAY可能な立地
-
交通京阪電気鉄道京阪線 丹波橋駅 徒歩7分
近鉄京都線 近鉄丹波橋駅 徒歩7分
| 敷引・償却 | - |
|---|---|
| 更新料 | 新賃料の1ヶ月分 |
| 契約期間 | 2年 |
| カード決済 | - |
| 建物名 | |
| 建物構造 | 木造 |
| 駐車場 | 有 13,200円 |
| 現況 | 空 |
| 入居可能時期 | 即時 |
| 住宅保険 | 要 |
| 情報提供元 | LIFULL HOME'S[1508280073224] |
| 情報公開日 | |
| 情報更新日 | |
| 次回更新予定日 | 2025年12月12日 |
地図
設備など
- バス・トイレ別
- 2階以上
- ペット相談可
-
駐車場
(近隣含) -
室内洗濯機
置き場 - エアコン
- 洗面所独立
- 追焚機能
- オートロック
設備
| バス・トイレ | バス・トイレ別、シャワー、追焚機能、温水洗浄便座 |
|---|---|
| キッチン | システムキッチン、IHクッキングヒータ、コンロ2口以上 |
| 収納 | シューズボックス |
| セキュリティ | オートロック、モニタ付インターホン |
| 室内設備 | エアコン、フローリング、シャンプードレッサ、床暖房、洗面所独立、室内洗濯機置き場 |
| 建物設備 | 給湯、バルコニー、都市ガス、専用庭 |
| 駐車場・駐輪場 | 駐輪場、バイク置き場 |
| テレビ・通信 | BS端子 |
| その他 | 上水道、本下水 |
備考
2016年11月完成3LDKです。京阪丹波橋駅まで徒歩7分。JR、京阪、近鉄のトリプルアクセス。嬉しい3点セパレートに追い焚き機能付浴室、システムキッチン、ウォシュレットトイレなど充実の設備。オートロック、警備保障、TVホンでセキュリティも安心です。コンビニ、スーパーなど近くにあって便利ですよ。ペットも相談可能です。 物件情報はもちろん京都のエリア情報まで幅広く対応させていただきます! 【設備・特記事項備考】専用バス・専用トイレ/自転車登録料 3300円/原付登録料 11000円/賃貸戸数:8戸/保証会社の利用:加入要/保証会社名:オリコフォレント/保証会社費用:初回:月額賃料等の50%、月額:システム利用料330円、更新時:1万円/1年/室内清掃費用:66000円
続きを見る
特記事項
見学予約可・二人入居可・ペット相談可・保証人不要/代行 ・メゾネット
省エネ性能
| エネルギー消費性能 | - |
|---|---|
| 断熱性能 | - |
| 目安光熱費 | - |
- お問い合わせ先
- 株式会社京都ライフ 京都ライフ西大路店
※0037で始まる電話番号に携帯電話からお問合せいただいた方には、ショートメッセージ(SMS)によるお問合せ完了通知をお届けする場合があります。
不動産会社情報
お問い合わせ先
| 商号 | 株式会社京都ライフ 京都ライフ西大路店 |
|---|---|
| 免許番号 | 京都府知事(11)第006353号 |
| 所在地 | 京都府京都市南区唐橋西平垣町38-1 ルミエール唐橋1階 |
| TEL | 075-585-6501 |
| 取引態様 | 仲介 |
| 管理コード | 73224 |
| 所属協会など | 所属団体未加入 |
この地域の暮らしデータ
京都市の人口などの統計情報
| 世帯数 | 728744世帯 |
|---|---|
| 人口総数 | 1379529人 |
| 転入者数 |
85315人 転入率(人口1000人当たり) 61.84人 |
| 転出者数 |
80567人 転出率(人口1000人当たり) 58.40人 |
| 土地平均価格 |
住宅地 220880円/m2 商業地 1290411円/m2 |
京都市の結婚・育児の助成金
| 出産・子育て | |
|---|---|
| 子育て関連の独自の取り組み | (1)乳幼児の子育て支援機能や学童クラブ機能等を有する児童館設置。(2)こんにちはプレママ事業。(3)児童虐待未然防止に係る医療機関と子どもはぐくみ室及び京北出張所の連携。(4)子ども保健医療相談・事故防止センター設置。(5)京都はぐくみアプリ配信。(6)子育て支援コンシェルジュ育成。(7)骨髄移植手術等により免疫を喪失した子どもへのワクチン再接種費用助成制度。(8)子どもを共に育む京都市民憲章の制定、憲章の実践・普及の促進。(9)【京都安心すまい応援金】未就学の子どもがいる世帯を対象に、自己居住用として既存住宅を購入し、リフォームを行う場合に、最大200万円の応援金を交付。 |
| 出産祝い |
あり
|
| 公立保育所数 |
14ヶ所 0歳児保育を実施 13ヶ所 |
| 私立保育所数 |
196ヶ所 0歳児保育を実施 188ヶ所 |
| 保育所入所待機児童数 | 0人 |
| 認定こども園数 | 83園 |
| 預かり保育実施園数-公立 | 15園 |
| 預かり保育実施園数-私立 | 81園 |
| 学校給食 | 【小学校】完全給食【中学校】完全給食 家庭弁当等との選択制/デリバリー形式[運搬:ランチボックス、内容:完全給食] 給食なし |
| 公立中学校の学校選択制 | 未実施 |
| 子ども・学生等医療費助成<通院>対象年齢 | 中学校卒業まで |
| 子ども・学生等医療費助成<入院>対象年齢 | 中学校卒業まで |
京都市の治安・ごみ収集情報
| 公共料金・インフラ | |
|---|---|
| ガス料金(22m3使用した場合の月額) | 大阪瓦斯株式会社4544円 |
| 水道料金(口径20mmで20m3の月額) | 京都市3014円 |
| 下水道料金(20m3を使用した場合の月額) | 京都市2013円 |
| 下水道普及率 | 99.5% |
| 安心・安全 | |
| 建物火災出火件数 |
158件 人口10000人当たり 1.08件 |
| 刑法犯認知件数 |
8104件 人口1000人当たり 5.54件 |
| ハザード・防災マップ | あり |
| 医療 | |
| 一般病院総数 | 89ヶ所 |
| 一般診療所総数 | 1622ヶ所 |
| 小児科医師数 |
397人 小児人口10000人当たり 27.26人 |
| 産婦人科医師数 |
201人 15~49歳女性人口1万人当たり 7.16人 |
| 介護保険料基準額(月額) | 7160円 |
| ごみ | |
| 家庭ごみ収集(可燃ごみ) |
有料
|
| 家庭ごみの分別方式 | 5分別8種〔燃やすごみ 缶・びん・ペットボトル プラスチック類 小型金属類・スプレー缶 雑がみ〕 拠点回収:移動式拠点回収):古紙(新聞・ダンボール) 雑がみ 紙パック 使用済てんぷら油 古着類 乾電池 ボタン電池 充電式電池 蛍光管 水銀体温計・水銀血圧計 小型家電 磁気テープ類 インクカートリッジ リユースびん 刃物類 使い捨てライター 陶磁器製の食器 せん定枝木の枝 石油類 医薬品・農薬 化学薬品・塗料・ワックス・絵の具 洗浄剤 |
| 家庭ごみの戸別収集 | 一部実施(原則定点としているが、一部地域で狭路等やむを得ない事情がある場合のみ実施。また、ごみ出しが困難な高齢者や障害のある方などの生活支援の一つとして、御自宅の玄関先までごみの収集に伺う「ごみ収集福祉サービス[まごころ収集]」を実施) |
| 粗大ごみ収集 |
あり
|
| 生ごみ処理機助成金制度 |
なし 上限金額 - 上限比率 - |
暮らしデータ提供元:生活ガイド.com
※行政機関により公表していない地域及びデータがございます。東京23区以外の政令指定都市は、市全体のデータとして表示しています。
※提供データには細心の注意を払っておりますが、調査後に変更がある場合があります。 最新の情報につきましては各市区役所までお問い合わせいただくか、自治体HPなどをご確認ください。
※提供データには細心の注意を払っておりますが、調査後に変更がある場合があります。 最新の情報につきましては各市区役所までお問い合わせいただくか、自治体HPなどをご確認ください。
お気に入りの物件を見逃さない!
プッシュ通知で最新の物件情報が届く




