Alivis福島海老江 海老江駅 1K 賃貸(賃貸マンション・アパート)
1K / 海老江駅
- 情報提供元
- SUUMO
賃料7.3万円 / 管理費等10000円
-
外観
-
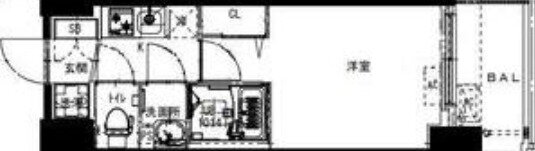
間取り
-
室内
-
室内
-
室内
-
室内
-
室内
-
室内
-
室内
-
室内
-
室内
-
室内
-
ファミリーマート 阪神野田店(コンビニ)まで535m
-
大阪大開郵便局(郵便局)まで696m
-
ミスタードーナツ イオンスタイル海老江ショップ(飲食店)まで638m
-
オリックスレンタカー 野田阪神駅前店(その他)まで590m
-
画像
-
画像
-
この物件が気になりましたか? 最新の空室状況は
問合せをすることで確認できます
- お問い合わせ先
- ACE HOME (株)H&C長堀橋店
お電話番号ご入力でご予約優先!仲介手数料割引!! 次の『お問い合わせ』画面でお電話番号をご入力ください! 対象物件仲介手数料を割引!ご見学の手配もスムーズです!
-
交通JR東西線 海老江駅 徒歩7分
阪神本線 淀川駅 徒歩10分
地下鉄千日前線 野田阪神駅 徒歩10分
| 敷引・償却 | - |
|---|---|
| 更新料 | - |
| 契約期間 | |
| カード決済 | 初期費用カード決済可 |
| 建物名 | Alivis福島海老江 |
| 建物構造 | RC |
| 駐車場 | 無 |
| 現況 | |
| 入居可能時期 | 即時 |
| 住宅保険 | あり |
| 情報提供元 | SUUMO[060H100474951276] |
| 情報公開日 | |
| 情報更新日 | |
| 次回更新予定日 | 随時 |
地図
設備など
- バス・トイレ別
- 2階以上
- ペット相談可
-
駐車場
(近隣含) -
室内洗濯機
置き場 - エアコン
- 洗面所独立
- 追焚機能
- オートロック
設備
| バス・トイレ | バス・トイレ別、トイレ、浴室乾燥機、温水洗浄便座、浴トイレ別 |
|---|---|
| キッチン | ガスコンロ可、システムキッチン、コンロ2口以上 |
| 収納 | 収納スペース、クローゼット、シューズボックス |
| セキュリティ | オートロック、防犯カメラ |
| 室内設備 | 冷房、暖房、エアコン、洗濯機置場、洗面所、フローリング、シャンプードレッサ、衣類乾燥機、洗面所独立、室内洗濯機置き場 |
| 建物設備 | バルコニー、エレベーター、都市ガス、宅配BOX |
| 駐車場・駐輪場 | 駐輪場、バイク置き場 |
| テレビ・通信 | インターネット無料、インターネット対応 |
備考
損保要/鍵交換代2.75万円/室内清掃費用 33000円/保証会社利用必:※詳細お問い合わせください。/普通借家02年0ヶ月/二人入居可/ペット相談/バストイレ別/バルコニー/エアコン/ガスコンロ対応/クロゼット/フローリング/シャワー付洗面台/浴室乾燥機/オートロック/室内洗濯置/シューズボックス/システムキッチン/温水洗浄便座/脱衣所/エレベーター/洗面所独立/2口コンロ/駐輪場/宅配ボックス/即入居可/礼金不要/敷金不要/防犯カメラ/ペット相談/全居室洋室/バイク置場/全居室フローリング/2沿線利用可/ネット使用料不要/築2年以内/築3年以内/浴室未使用/トイレ未使用/2駅利用可/3駅以上利用可/3沿線以上利用可/駅徒歩10分以内/敷地内ごみ置き場/築5年以内/全居室6畳以上/キッチン未使用/都市ガス/洗面所にドア/敷金・礼金不要/初期費用カード決済可/ファミリーマート 阪神野田店(コンビニ)まで535m/オリックスレンタカー 野田阪神駅前店(その他)まで590m/ミスタードーナツ イオンスタイル海老江ショップ(飲食店)まで638m/大阪大開郵便局(郵便局)まで696m/イオンスタイル海老江(スーパー)まで599m/スターバックスコーヒー そよら海老江店(飲食店)まで765m
続きを見る
特記事項
ペット相談可・二人入居可・初期費用カード決済可
省エネ性能
| エネルギー消費性能 | - |
|---|---|
| 断熱性能 | - |
| 目安光熱費 | - |
- お問い合わせ先
- ACE HOME (株)H&C長堀橋店
不動産会社情報
お問い合わせ先
| 商号 | ACE HOME (株)H&C長堀橋店 |
|---|---|
| 免許番号 | 大阪府知事(3)第56116号 |
| 所在地 | 大阪府大阪市中央区島之内1-19-13 山金ビル1階 |
| TEL | 06-6243-7724 |
| 取引態様 | 仲介 |
| 管理コード | 1000700 |
| 所属協会など | (公社)近畿地区不動産公正取引協議会加盟、(一社)大阪府宅地建物取引業協会会員 |
この地域の暮らしデータ
大阪市の人口などの統計情報
| 世帯数 | 1464615世帯 |
|---|---|
| 人口総数 | 2757642人 |
| 転入者数 |
225000人 転入率(人口1000人当たり) 81.59人 |
| 転出者数 |
188180人 転出率(人口1000人当たり) 68.24人 |
| 土地平均価格 |
住宅地 270839円/m2 商業地 1966607円/m2 |
大阪市の結婚・育児の助成金
| 出産・子育て | |
|---|---|
| 子育て関連の独自の取り組み | (1)子ども・子育てプラザ(在宅での子育て家庭や地域での子育て活動を支援し、また乳幼児期の親子や子育て支援者、就学期の子どもが集い交流する機会を提供する等、地域福祉活動の推進を図る)。(2)習い事・塾代助成事業(学習塾や家庭教師、文化・スポーツ教室等学校外教育にかかる費用を、1人当たり月額1万円まで助成。所得制限あり)。 |
| 出産祝い |
なし
|
| 公立保育所数 |
53ヶ所 0歳児保育を実施 52ヶ所 |
| 私立保育所数 |
395ヶ所 0歳児保育を実施 385ヶ所 |
| 保育所入所待機児童数 | 2人 |
| 認定こども園数 | 117園 |
| 預かり保育実施園数-公立 | 52園 |
| 預かり保育実施園数-私立 | - |
| 学校給食 | 【小学校】完全給食【中学校】完全給食 |
| 公立中学校の学校選択制 | 実施 |
| 子ども・学生等医療費助成<通院>対象年齢 | 18歳3月末まで |
| 子ども・学生等医療費助成<入院>対象年齢 | 18歳3月末まで |
大阪市の治安・ごみ収集情報
| 公共料金・インフラ | |
|---|---|
| ガス料金(22m3使用した場合の月額) | 大阪瓦斯株式会社4544円 |
| 水道料金(口径20mmで20m3の月額) | 大阪市2112円 |
| 下水道料金(20m3を使用した場合の月額) | 大阪市1276円 |
| 下水道普及率 | 100.0% |
| 安心・安全 | |
| 建物火災出火件数 |
553件 人口10000人当たり 2.01件 |
| 刑法犯認知件数 |
39408件 人口1000人当たり 14.32件 |
| ハザード・防災マップ | あり |
| 医療 | |
| 一般病院総数 | 170ヶ所 |
| 一般診療所総数 | 3734ヶ所 |
| 小児科医師数 |
659人 小児人口10000人当たり 22.80人 |
| 産婦人科医師数 |
380人 15~49歳女性人口1万人当たり 6.15人 |
| 介護保険料基準額(月額) | 9249円 |
| ごみ | |
| 家庭ごみ収集(可燃ごみ) |
無料
|
| 家庭ごみの分別方式 | 4分別11種〔普通ごみ(普通ごみ、危険ごみ[竹串、ガラス片、カミソリの刃]) 資源ごみ(空き缶・空きびん・金属製の生活用品・ペットボトル、スプレー缶・カセットボンベ) 容器包装プラスチック 古紙・衣類(新聞紙・折込チラシ、段ボール、紙パック、雑誌、衣類、その他の紙類)〕 |
| 家庭ごみの戸別収集 | 一部実施(【ふれあい収集】65歳以上の一人暮らしの高齢者または高齢者だけの世帯、障がいがある方が居住される家庭で、ごみ出しが困難な人が対象) |
| 粗大ごみ収集 |
あり
|
| 生ごみ処理機助成金制度 |
なし 上限金額 - 上限比率 - |
暮らしデータ提供元:生活ガイド.com
※行政機関により公表していない地域及びデータがございます。東京23区以外の政令指定都市は、市全体のデータとして表示しています。
※提供データには細心の注意を払っておりますが、調査後に変更がある場合があります。 最新の情報につきましては各市区役所までお問い合わせいただくか、自治体HPなどをご確認ください。
※提供データには細心の注意を払っておりますが、調査後に変更がある場合があります。 最新の情報につきましては各市区役所までお問い合わせいただくか、自治体HPなどをご確認ください。
お気に入りの物件を見逃さない!
プッシュ通知で最新の物件情報が届く




