レオネクストひだまりⅡ 光が丘駅 ワンルーム 賃貸(賃貸マンション・アパート)
ワンルーム / 光が丘駅
- 情報提供元
- アットホーム
賃料9.7万円 / 管理費等5500円
-
外観
-
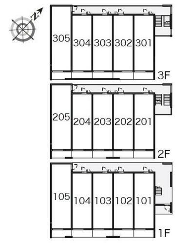
間取り
-
画像
-
画像
-
画像
-
画像
-
画像
-
画像
-
画像
-
画像
-
画像
-
画像
-
画像
-
画像
-
画像
-
この物件が気になりましたか? 最新の空室状況は
問合せをすることで確認できます
- お問い合わせ先
- アエラス練馬店 (株)アエラス.ER
-
交通都営大江戸線 光が丘駅 徒歩18分
東京メトロ有楽町線 地下鉄赤塚駅 徒歩14分
東武東上線 下赤塚駅 徒歩15分
| 敷引・償却 | - |
|---|---|
| 更新料 | - |
| 契約期間 | 2年 |
| カード決済 | 初期費用カード決済可 |
| 建物名 | レオネクストひだまりⅡ |
| 建物構造 | 鉄骨 |
| 駐車場 | 近有 15,000円 |
| 現況 | 空 |
| 入居可能時期 | 即時 |
| 住宅保険 | あり |
| 情報提供元 | アットホーム[1101113620] |
| 情報公開日 | |
| 情報更新日 | - |
| 次回更新予定日 | 随時 |
地図
設備など
- バス・トイレ別
- 2階以上
- ペット相談可
-
駐車場
(近隣含) -
室内洗濯機
置き場 - エアコン
- 洗面所独立
- 追焚機能
- オートロック
設備
| バス・トイレ | バス・トイレ別、トイレ、浴室乾燥機、温水洗浄便座 |
|---|---|
| セキュリティ | オートロック、モニタ付インターホン、防犯カメラ |
| 室内設備 | エアコン、洗濯機置場、洗面台、家具付き、洗面所独立、室内洗濯機置き場 |
| 建物設備 | 給湯、バルコニー |
| 駐車場・駐輪場 | 駐輪場 |
| テレビ・通信 | 光ファイバー(ブロードバンド)、インターネット対応 |
備考
火災保険加入要2年13130円26680円/退去時清掃費¥41800/駐輪場代借主負担(使用時)/環境維持費1ヶ月550円/引落手数料524円/短期解約違約金(1年未満の解約は賃料の1ヶ月分)・賃貸保証等:加入要(月額賃料等の100%(初回保証料)、2年目以降は1万円/年)・鍵交換代:あり16,500円~・オンラインで申込から契約手続き、LINEでのご相談も可能です/当物件は初期費用分割払い可(クレジットカード決済も可)/お客様のご希望に合わせた方法(店頭、オンライン等)で物件をご提案いたします・駐輪場:有/室内清掃費用 41800円
続きを見る
特記事項
外観タイル張り・初期費用カード決済可
省エネ性能
| エネルギー消費性能 | - |
|---|---|
| 断熱性能 | - |
| 目安光熱費 | - |
- お問い合わせ先
- アエラス練馬店 (株)アエラス.ER
アピールポイント
☆当店の強みをお伝えします☆①クレジットカードの初期費用分割払いを、喜んでお受けいたします(クレジットカード以外もOK)②他社様がネットに掲載されている物件は、全てお調べし、【好条件】でご紹介いたします他社様で「お申込み」された物件でも、【好条件】でご紹介できる場合がございます③「審査が不安…」「保証人がいない…」「値段交渉をして欲しい…」などなど、どのようなご条件でも、遠慮なくご相談いただけます④ご検討されている「エリア」「沿線」が「広範囲」「複数」でも、一度で漏れなくお探しいただけますポータルサイトや他社サイトで気になるお部屋がございましたらお気軽にご相談くださいお客様のご来店を心よりお待ちしております
不動産会社情報
お問い合わせ先
| 商号 | アエラス練馬店 (株)アエラス.ER |
|---|---|
| 免許番号 | 国土交通大臣免許(1)第10724号 |
| 所在地 | 練馬区練馬1丁目26-2エーゲアンフロント・ビル 2階 |
| TEL | 03-5912-0620 |
| 取引態様 | 仲介 |
| 管理コード | 68922718-1 |
| 所属協会など | (公社)全日本不動産協会会員、(公社)首都圏不動産公正取引協議会加盟 |
この地域の暮らしデータ
練馬区の人口などの統計情報
| 世帯数 | 374485世帯 |
|---|---|
| 人口総数 | 741540人 |
| 転入者数 |
49591人 転入率(人口1000人当たり) 66.88人 |
| 転出者数 |
44239人 転出率(人口1000人当たり) 59.66人 |
| 土地平均価格 |
住宅地 413757円/m2 商業地 816167円/m2 |
練馬区の結婚・育児の助成金
| 出産・子育て | |
|---|---|
| 子育て関連の独自の取り組み | (1)第3子誕生祝金。(2)子育てスタート応援券。(3)外遊び型子育てのひろば(おひさまぴよぴよ)。(4)ねりますくすくアプリ(ねりすく)。(5)ねりま子育て応援ハンドブック。(6)父親の育児応援DVD。(7)1年保育(1歳児・2歳児)。(8)発達に不安がある親子を対象にしたひろば事業(のびのびひろば)。(9)産後ケア事業。(10)移動型外遊びの場提供事業「おひさま てくてく」。(11)2019年度から、練馬こどもカフェ(民間カフェ等と協働し、保護者が交流したり子どもと一緒にリラックスできる場を提供し、私立幼稚園や保育事業者の協力を得て子育て講座等を実施)を開始。(12)ねりま子育て応援アプリ。 |
| 出産祝い |
あり
|
| 公立保育所数 |
60ヶ所 0歳児保育を実施 50ヶ所 |
| 私立保育所数 |
141ヶ所 0歳児保育を実施 136ヶ所 |
| 保育所入所待機児童数 | 0人 |
| 認定こども園数 | 3園 |
| 預かり保育実施園数-公立 | 3園 |
| 預かり保育実施園数-私立 | 35園 |
| 学校給食 | 【小学校】完全給食【中学校】完全給食 |
| 公立中学校の学校選択制 | 実施(新入学時のみ) |
| 子ども・学生等医療費助成<通院>対象年齢 | 18歳3月末まで |
| 子ども・学生等医療費助成<入院>対象年齢 | 18歳3月末まで |
練馬区の治安・ごみ収集情報
| 公共料金・インフラ | |
|---|---|
| ガス料金(22m3使用した場合の月額) | 東京瓦斯株式会社(東京地区等)3926円 |
| 水道料金(口径20mmで20m3の月額) | 東京都水道局2816円 |
| 下水道料金(20m3を使用した場合の月額) | 東京都下水道局2068円 |
| 下水道普及率 | 100.0% |
| 安心・安全 | |
| 建物火災出火件数 |
88件 人口10000人当たり 1.17件 |
| 刑法犯認知件数 |
3480件 人口1000人当たり 4.62件 |
| ハザード・防災マップ | あり |
| 医療 | |
| 一般病院総数 | 17ヶ所 |
| 一般診療所総数 | 593ヶ所 |
| 小児科医師数 |
125人 小児人口10000人当たり 14.71人 |
| 産婦人科医師数 |
40人 15~49歳女性人口1万人当たり 2.35人 |
| 介護保険料基準額(月額) | 6670円 |
| ごみ | |
| 家庭ごみ収集(可燃ごみ) |
無料
|
| 家庭ごみの分別方式 | 3分別10種〔可燃ごみ 不燃ごみ 資源(古紙[新聞、雑誌・雑紙、ダンボール、紙パック]、びん、缶、ペットボトル、容器包装プラスチック)〕 拠点回収:古布 廃食用油 乾電池 小型家電(13品目) |
| 家庭ごみの戸別収集 | 一部実施(【練馬区戸別訪問収集実施要綱】65歳以上の方のみの世帯または障害のある方のみの世帯で、世帯員自らごみを集積所へ持ち出すことが困難で、身近な人の協力が得られない世帯が対象) |
| 粗大ごみ収集 |
あり
|
| 生ごみ処理機助成金制度 |
なし 上限金額 - 上限比率 - |
暮らしデータ提供元:生活ガイド.com
※行政機関により公表していない地域及びデータがございます。東京23区以外の政令指定都市は、市全体のデータとして表示しています。
※提供データには細心の注意を払っておりますが、調査後に変更がある場合があります。 最新の情報につきましては各市区役所までお問い合わせいただくか、自治体HPなどをご確認ください。
※提供データには細心の注意を払っておりますが、調査後に変更がある場合があります。 最新の情報につきましては各市区役所までお問い合わせいただくか、自治体HPなどをご確認ください。
お気に入りの物件を見逃さない!
プッシュ通知で最新の物件情報が届く



