アプリで簡単 物件探し 通知 共有 アプリならではの機能を使ってみる
RSS

臼杵駅(大分県)の賃貸物件(賃貸マンション・アパート) 物件一覧

臼杵駅(大分県)の賃貸マンション、アパート、賃貸一戸建て、借家などの賃貸物件をご紹介します。賃貸マンション・賃貸アパートなどの賃貸物件情報を探すならgoo住宅・不動産。賃料・専有面積・間取り・写真・人気のこだわり条件から物件を簡単検索。理想の部屋探しをgoo住宅・不動産がサポートします。

探したい物件の路線・検索条件を変更して再検索

路線
検索条件 間取り:3LDK(+S) 物件タイプ:一戸建て
2 並び替え
チェックした物件を一括で
エトウハウス祇園洲D棟

エトウハウス祇園洲D棟

大分県臼杵市大字臼杵祇園西

JR日豊本線 臼杵駅 徒歩17分賃貸一戸建て築18年8ヶ月
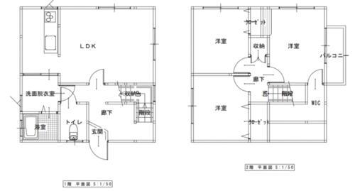
  間取り図賃料管理費等敷/礼/保証/敷引・償却間取り/広さ  
間取り図6.9万円3,500円なし / 1ヶ月
なし / -
3LDK
75.34m2
  • 敷金なし
  • ファミリー
  • バス・トイレ別
  • 駐車場(近隣含)
  • ペット相談可
  • 南向き
  • 収納スペース
  • ウォークインクローゼット
おすすめポイント
ペット相談可・閑静な住宅街・駐車場2台分
新地貸戸建住宅

新地貸戸建住宅

大分県臼杵市大字市浜新地

JR日豊本線 臼杵駅 徒歩23分賃貸一戸建て築1年5ヶ月
  間取り図賃料管理費等敷/礼/保証/敷引・償却間取り/広さ  
間取り図7万円5,000円2ヶ月 / なし
なし / -
3LDK
83.22m2
  • 礼金なし
  • ファミリー
  • バス・トイレ別
  • 駐車場(近隣含)
  • 収納スペース
  • エアコン付き
  • 温水洗浄便座
  • 即入居可
おすすめポイント
駐車場3台分以上
チェックした物件を一括で
  • チェックした物件をまとめて
2
表示建物数
OCN×ドコモ光新規お申込みで合計最大137,280円相当おトク!特典の内訳・適用条件など詳細はこちら

条件を指定する

賃料

    

          

専有面積
築年数
駅徒歩
間取り
物件タイプ
人気のこだわり条件

さらに詳しくこだわり条件を指定する

建物構造
位置
セキュリティ
バス・トイレ
キッチン
収納
室内設備
建物設備
駐車場・駐輪場
入居条件
契約条件
特徴
テレビ・通信
お得な条件
フリーワード
画像・動画
情報の新しさ
オンライン予約

臼杵市の暮らしデータ

人口などの統計情報

世帯数 14697世帯
人口総数 35620人
転入者数 1009人
転入率(人口1000人当たり)
28.33人
転出者数 989人
転出率(人口1000人当たり)
27.77人
土地平均価格
住宅地
20466円/m2
商業地
30300円/m2

結婚・育児の助成金

子育て関連の独自の取り組み (1)子育て世帯の家賃補助。中学生以下のお子様がいる世帯、共益費等を除いた家賃の月額1/2を補助。月額1.5万円以内、最長36ヶ月(3年)補助。(2)インフルエンザ予防接種費用の一部助成。(3)流行性耳下腺炎(おたふくかぜ)、ロタウイルスワクチン接種費用の全額助成(市内の委託医療機関のみ)。(4)不妊治療(人工授精)、不妊検査費用の助成。(5)妊産婦(母子手帳交付を受けた翌月1日から出産した日の属する月の翌月末日まで)の医療費助成(償還払い)。(6)母子手帳アプリ「母子も」の臼杵市版「ちあほっと」による情報配信。さらに、うすき石仏ねっとと繋がると、乳幼児健診の身体計測値や、予防接種履歴が受け取れる。(7)幼児教育・保育の無償化に伴う、副食費の一部助成。(8)一時預かり事業の利用料一部助成。
出産祝い あり
公立保育所数 0所(うち0歳児保育を実施している保育所:-)
私立保育所数 1所(うち0歳児保育を実施している保育所:1所)
保育所入所待機児童数 0人
認定こども園数 10園 預かり保育実施園数 公立:- 私立:-
学校給食 【小学校】完全給食【中学校】完全給食
公立中学校の学校選択制 実施(特認校制[南中学校])
子ども・学生等医療費助成<通院>対象年齢 18歳3月末まで 子ども・学生等医療費助成<入院>対象年齢 18歳3月末まで

臼杵市の治安・ごみ収集情報

公共料金・インフラ

ガス料金(22m3使用した場合の月額) -
水道料金(口径20mmで20m3の月額) 臼杵市2990円
下水道料金(20m3を使用した場合の月額) 臼杵市(臼杵地域)2920円
臼杵市(野津地域)3410円
下水道普及率 49.1%

安心・安全

建物火災出火件数 2件
人口10000人当たり
0.55件
刑法犯認知件数 84件
人口1000人当たり
2.32件
ハザード・防災マップ あり

医療

一般病院総数 4ヶ所
一般診療所総数 31ヶ所
小児科医師数 10人
小児人口10000人当たり
29.58人
産婦人科医師数 1人
15~49歳女性人口1万人当たり
1.98人
介護保険料基準額(月額) 5300円

ごみ

家庭ごみ収集(可燃ごみ) 有料
備考
指定ごみ袋有料。
家庭ごみの分別方式 13分別〔可燃ごみ 不燃ごみ プラスチック製容器包装 ペットボトル ビン カン 蛍光管・電球 乾電池 その他金属 新聞紙 段ボール 紙パック その他紙類〕
家庭ごみの戸別収集 未実施
粗大ごみ収集 あり
備考
希望日により収集。
生ごみ処理機助成金制度 あり
上限金額
20000円
上限比率
50.0%
暮らしデータ提供元:生活ガイド.com
※行政機関により公表していない地域及びデータがございます。東京23区以外の政令指定都市は、市全体のデータとして表示しています。
※提供データには細心の注意を払っておりますが、調査後に変更がある場合があります。 最新の情報につきましては各市区役所までお問い合わせいただくか、自治体HPなどをご確認ください。

家賃相場

更新日:2025年12月01日

臼杵駅の家賃相場

  ワンルーム 1K・1DK 1LDK・2K・2DK 2LDK・3K・3DK 3LDK・4K・4DK
マンション - - - - -
アパート - 4.3万円 5.3万円 5.2万円 -
一戸建て - - - - -

周辺駅の家賃相場

  上臼杵 津久見 熊崎 日代 下ノ江
マンション - - - - -
アパート - - - - -
一戸建て - - - - -
※このデータはgoo住宅・不動産に掲載されている賃貸の平均賃料(管理費・駐車場代などを除く)を算出したものです。ただし10戸以上の掲載があるものについてのみ対象とします。
※周辺駅の家賃相場はワンルームの平均賃料(管理費・駐車場代などを除く)を算出したものです。

大分県の人気の街アクセスランキング(賃貸)

路線別ランキング

1位
日豊本線
2位
豊肥本線
3位
久大本線

駅別ランキング

1位
大分
2位
賀来
3位
大在
4位
南大分
5位
鶴崎
6位
豊後国分
7位
中津
8位
豊前善光寺
9位
下ノ江
10位
光岡

エリア別ランキング

1位
大分市
2位
佐伯市
3位
別府市
4位
豊後大野市
5位
臼杵市
6位
杵築市
7位
由布市
8位
竹田市
9位
宇佐市
10位
日田市
※このランキングは2025年11月01日~30日における各ページのアクセス数から算出しています。

臼杵駅(日豊本線)で他のジャンルから探す

アプリで簡単 物件探し 大手不動産サイトの情報から一括検!プッシュ通知で物件を見逃さない
App Storeからダウンロード Google Playで手に入れよう QRコード