貸店舗(建物一部)
大阪府大阪市福島区福島5丁目 新福島駅 貸店舗(建物一部)
| 賃料 |
32.89万円 (管理費等:-) |
| 礼金・敷金 |
3ヶ月 / 2ヶ月 |
保証金/敷引・償却 |
- / - |
| 交通 |
|
| 所在地 |
大阪府大阪市福島区福島5丁目周辺地図
|
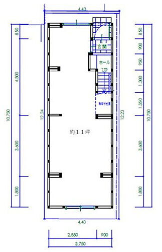
| 使用部分面積 |
36.36m2 |
土地面積 |
- |
| 築年月 |
2025年10月 |
築年数 |
- |
- おすすめポイント
- 飲食店も可能の人気エリアの路面テナント! 各線福島5分圏内の好立地です♪
| 賃料 |
32.89万円 |
管理費等 |
- |
| 敷金 |
2ヶ月 |
礼金 |
3ヶ月 |
| 保証金 |
- |
敷引・償却 |
- |
| 所在地 |
大阪府大阪市福島区福島5丁目周辺地図
|
| 交通 |
|
| 使用部分面積 |
36.36m2 |
土地面積 |
|
| 坪単価 |
2.99万円 |
その他一時金 |
|
| 権利金 |
- |
その他費用 |
保険等:あり |
| 維持費等 |
|
都市計画 |
|
| 用途地域 |
|
接道状況 |
|
| 地目 |
|
建物構造・所在階/階数 |
木造 1階/2階建 |
| 建物名 |
|
築年月(築年数) |
2025年10月新築 |
| 条件等 |
定期借家 |
契約期間 |
2年 |
| 現況 |
空 |
引渡可能時期 |
即時 |
| 情報提供元 |
LIFULL HOME'S [1402490152665] |
情報公開日 |
|
| 情報更新日 |
|
次回更新予定日 |
随時 |
設備など
| 24時間セキュリティ |
- |
1階 |
○ |
2階以上 |
- |
| 即引渡し可 |
○ |
飲食店可 |
- |
エレベーター |
- |
| 駐車場(近隣含) |
○ |
|
|
|
|
| 設備 |
|
| 備考 |
物件より徒歩圏内に当店がございます。 事務所物件をはじめ、飲食・美容・物販などの様々な業種のニーズに応じて店舗物件をご紹介しております。 尚、弊社ではおとり広告は一切おこなっておりません。現地での内覧お待ち合わせ等も可能です。 お問い合わせ頂いた物件は勿論のこと、インターネットに掲載していないオススメ物件多数ございます。 ご相談も含めお気軽にお申し付け下さいませ。 【設備・特記事項備考】専用バス・専用トイレ 駐車場:近有 27500円 物件からの距離200m 築年月:2025/10新築 管理人勤務形態:無 管理形態:全部委託 管理組合有無:無 |
| 特記事項 |
事務所使用可・初期費用カード決済可 |
大阪府大阪市福島区福島5丁目 周辺地図情報
※地図上に表示される物件の位置は付近住所に所在することを表すものであり、実際の物件所在地とは異なる場合がございます。
正確な物件所在地は、取扱い不動産会社にお問い合わせください。
不動産会社情報
| お問い合わせ先 |
商号:株式会社アフロ AFLO肥後橋店 免許番号:大阪府知事免許(3)第058557号 所在地:大阪府大阪市西区江戸堀1丁目10-1 301号 TEL:06-6479-3388 取引態様:仲介 管理コード:152665 所属協会など:(公社)近畿圏不動産流通機構、(公社)近畿地区不動産公正取引協議会、(公社)全日本不動産協会大阪府本部 |
共有する |
|

人口などの統計情報
| 世帯数 |
1464615世帯 |
| 人口総数 |
2757642人 |
| 転入者数 |
225000人
- 転入率(人口1000人当たり)
- 81.59人
|
| 転出者数 |
188180人
- 転出率(人口1000人当たり)
- 68.24人
|
| 土地平均価格 |
- 住宅地
- 270839円/m2
- 商業地
- 1966607円/m2
|
大阪市福島区の治安・ごみ収集情報
公共料金・インフラ
| ガス料金(22m3使用した場合の月額) |
大阪瓦斯株式会社4544円 |
| 水道料金(口径20mmで20m3の月額) |
大阪市2112円 |
| 下水道料金(20m3を使用した場合の月額) |
大阪市1276円 |
| 下水道普及率 |
100.0% |
安心・安全
| 建物火災出火件数 |
553件
- 人口10000人当たり
- 2.01件
|
| 刑法犯認知件数 |
39408件
- 人口1000人当たり
- 14.32件
|
| ハザード・防災マップ |
あり |
医療
| 一般病院総数 |
170ヶ所 |
| 一般診療所総数 |
3734ヶ所 |
| 小児科医師数 |
659人
- 小児人口10000人当たり
- 22.80人
|
| 産婦人科医師数 |
380人
- 15~49歳女性人口1万人当たり
- 6.15人
|
| 介護保険料基準額(月額) |
9249円 |
ごみ
| 家庭ごみ収集(可燃ごみ) |
無料
|
| 家庭ごみの分別方式 |
4分別11種〔普通ごみ(普通ごみ、危険ごみ[竹串、ガラス片、カミソリの刃]) 資源ごみ(空き缶・空きびん・金属製の生活用品・ペットボトル、スプレー缶・カセットボンベ) 容器包装プラスチック 古紙・衣類(新聞紙・折込チラシ、段ボール、紙パック、雑誌、衣類、その他の紙類)〕 |
| 家庭ごみの戸別収集 |
一部実施(【ふれあい収集】65歳以上の一人暮らしの高齢者または高齢者だけの世帯、障がいがある方が居住される家庭で、ごみ出しが困難な人が対象) |
| 粗大ごみ収集 |
あり
|
| 生ごみ処理機助成金制度 |
なし
- 上限金額
- -
- 上限比率
- -
|
※行政機関により公表していない地域及びデータがございます。東京23区以外の政令指定都市は、市全体のデータとして表示しています。
※提供データには細心の注意を払っておりますが、調査後に変更がある場合があります。 最新の情報につきましては各市区役所までお問い合わせいただくか、自治体HPなどをご確認ください。
大阪市福島区の暮らしデータをもっと見る
-
- 貸事務所
-
- 賃料
- 126.8万円
- 住所
- 大阪府大阪市北区梅田1丁目
-
- 貸店舗・事務所
-
- 賃料
- 110.76万円
- 住所
- 大阪府大阪市北区曾根崎1丁目
-
- 貸店舗・事務所
-
- 賃料
- 102.29万円
- 住所
- 大阪府大阪市北区曾根崎1丁目
-
- 貸店舗・事務所
-
- 賃料
- 102.22万円
- 住所
- 大阪府大阪市北区曾根崎1丁目
-
- 貸店舗・事務所
-
- 賃料
- 102.22万円
- 住所
- 大阪府大阪市北区曾根崎1丁目
-
- 貸店舗・事務所
-
- 賃料
- 102.22万円
- 住所
- 大阪府大阪市北区曾根崎1丁目
-
- 貸事務所
-
- 賃料
- 98.62万円
- 住所
- 大阪府大阪市西区江戸堀1丁目
-
- 貸事務所
-
- 賃料
- 91.9万円
- 住所
- 大阪府大阪市西区土佐堀1丁目
-
- 貸店舗・事務所
-
- 賃料
- 91.78万円
- 住所
- 大阪府大阪市西区江戸堀1丁目
-
- 貸事務所
-
- 賃料
- 82.28万円
- 住所
- 大阪府大阪市北区東天満2丁目