貸店舗・事務所
Cesio Daimyo 西鉄福岡(天神)駅 貸店舗・事務所
| 賃料 |
182.35万円 (管理費等:-) |
| 礼金・敷金 |
なし / 10ヶ月 |
保証金/敷引・償却 |
なし / 実費 |
| 交通 |
|
| 所在地 |
福岡県福岡市中央区大名1丁目周辺地図
|
| 使用部分面積 |
249.1m2 |
土地面積 |
- |
| 築年月 |
2007年2月 |
築年数 |
築18年10ヶ月 |
- おすすめポイント
- 24時間セキュリティ・飲食店可
| 賃料 |
182.35万円 |
管理費等 |
- |
| 敷金 |
10ヶ月 |
礼金 |
なし |
| 保証金 |
なし |
敷引・償却 |
実費 |
| 所在地 |
福岡県福岡市中央区大名1丁目周辺地図
|
| 交通 |
- 西鉄天神大牟田線 西鉄福岡(天神)駅 徒歩6分乗換案内
|
| 使用部分面積 |
249.1m2 |
土地面積 |
|
| 坪単価 |
2.42万円 |
その他一時金 |
|
| 権利金 |
- |
その他費用 |
|
| 維持費等 |
|
都市計画 |
|
| 用途地域 |
|
接道状況 |
|
| 地目 |
|
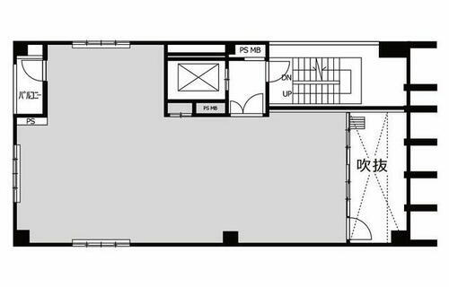
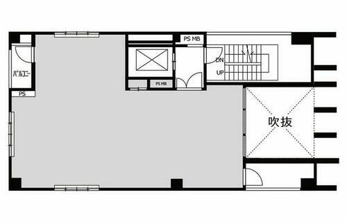
建物構造・所在階/階数 |
鉄骨 3階/6階建 |
| 建物名 |
Cesio Daimyo |
築年月(築年数) |
2007年2月(築18年10ヶ月) |
| 条件等 |
定期借家 |
契約期間 |
3年 |
| 現況 |
空 |
引渡可能時期 |
相談 |
| 情報提供元 |
アットホーム [9540097701] |
情報公開日 |
|
| 情報更新日 |
- |
次回更新予定日 |
随時 |
設備など
| 24時間セキュリティ |
○ |
1階 |
- |
2階以上 |
○ |
| 即引渡し可 |
- |
飲食店可 |
○ |
エレベーター |
○ |
| 駐車場(近隣含) |
- |
|
|
|
|
| 設備 |
エレベーター |
| 備考 |
※表示金額は税込表示となります。 ※敷金は税別価格を基準に計算ください。 ※契約期間は要相談 ※3Fトイレ:面積が変わる可能性あり(ビル利用者使用の可能性が有るため) ※図面・写真等現況と異なる場合は現況を優先いたします。・保険等:要 駐車場:無 築年月:2007/02築 |
| 特記事項 |
24時間セキュリティ・飲食店可 |
福岡県福岡市中央区大名1丁目 周辺地図情報
※地図上に表示される物件の位置は付近住所に所在することを表すものであり、実際の物件所在地とは異なる場合がございます。
正確な物件所在地は、取扱い不動産会社にお問い合わせください。
不動産会社情報
| お問い合わせ先 |
商号:(株)大央 テナント営業部 免許番号:福岡県知事免許(14)第3389号 所在地:福岡市 中央区大名2丁目6-1福岡国際ビル1F TEL:092-712-2303 取引態様:仲介 管理コード:02073598 所属協会など:(公社)福岡県宅地建物取引業協会会員、(一社)九州不動産公正取引協議会加盟 |
共有する |
|
人口などの統計情報
| 世帯数 |
830051世帯 |
| 人口総数 |
1593919人 |
| 転入者数 |
127071人
- 転入率(人口1000人当たり)
- 79.72人
|
| 転出者数 |
110617人
- 転出率(人口1000人当たり)
- 69.40人
|
| 土地平均価格 |
- 住宅地
- 202878円/m2
- 商業地
- 1465381円/m2
|
福岡市中央区の治安・ごみ収集情報
公共料金・インフラ
| ガス料金(22m3使用した場合の月額) |
西部瓦斯株式会社(福岡・北九州)6239円 |
| 水道料金(口径20mmで20m3の月額) |
福岡市3355円 福岡市(簡易水道)3355円 |
| 下水道料金(20m3を使用した場合の月額) |
福岡市2651円 |
| 下水道普及率 |
99.7% |
安心・安全
| 建物火災出火件数 |
207件
- 人口10000人当たり
- 1.28件
|
| 刑法犯認知件数 |
12681件
- 人口1000人当たり
- 7.86件
|
| ハザード・防災マップ |
あり |
医療
| 一般病院総数 |
102ヶ所 |
| 一般診療所総数 |
1693ヶ所 |
| 小児科医師数 |
349人
- 小児人口10000人当たり
- 17.02人
|
| 産婦人科医師数 |
172人
- 15~49歳女性人口1万人当たり
- 4.60人
|
| 介護保険料基準額(月額) |
6899円 |
ごみ
| 家庭ごみ収集(可燃ごみ) |
有料
|
| 家庭ごみの分別方式 |
3分別〔可燃ごみ 不燃ごみ 空きびん・ペットボトル〕 |
| 家庭ごみの戸別収集 |
実施 |
| 粗大ごみ収集 |
あり
|
| 生ごみ処理機助成金制度 |
あり
- 上限金額
- 20000円
- 上限比率
- 50.0%
|
※行政機関により公表していない地域及びデータがございます。東京23区以外の政令指定都市は、市全体のデータとして表示しています。
※提供データには細心の注意を払っておりますが、調査後に変更がある場合があります。 最新の情報につきましては各市区役所までお問い合わせいただくか、自治体HPなどをご確認ください。
福岡市中央区の暮らしデータをもっと見る
-
- 貸店舗(建物一部)
-
- 賃料
- 342.68万円
- 住所
- 福岡県福岡市中央区天神2丁目
-
- 貸店舗・事務所
-
- 賃料
- 188.28万円
- 住所
- 福岡県福岡市中央区天神2丁目
-
- 貸店舗・事務所
-
- 賃料
- 182.35万円
- 住所
- 福岡県福岡市中央区大名1丁目
-
- 貸店舗・事務所
-
- 賃料
- 176.44万円
- 住所
- 福岡県福岡市中央区大名1丁目
-
- 貸店舗・事務所
-
- 賃料
- 164.03万円
- 住所
- 福岡県福岡市中央区天神2丁目