貸店舗・事務所

いわみビル 宮内駅 貸店舗・事務所

情報提供元
アットホーム
いわみビル
賃料 33万円  (管理費等:なし)
礼金・敷金 30万円 / 6ヶ月 保証金/敷引・償却 なし / -
交通
所在地 広島県廿日市市串戸2丁目周辺地図
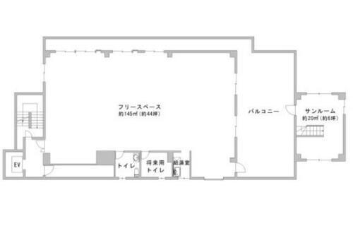
使用部分面積 211m2 土地面積 -
築年月 1989年5月 築年数 築36年7ヶ月
お問い合わせ先
(株)良和ハウス 廿日市店
お問い合わせ先
(株)良和ハウス 廿日市店

詳細情報

賃料 33万円  管理費等 なし 
敷金 6ヶ月  礼金 30万円 
保証金 なし  敷引・償却
所在地 広島県廿日市市串戸2丁目周辺地図
交通
  • 広島電鉄宮島線 宮内駅 徒歩4分乗換案内
  • JR山陽本線 宮内串戸駅 徒歩8分乗換案内
  • 広島電鉄宮島線 JA広島病院前駅 徒歩8分乗換案内
使用部分面積 211m2  土地面積  
坪単価 0.52万円  その他一時金  
権利金 その他費用  
維持費等   都市計画  
用途地域   接道状況  
地目   建物構造・所在階/階数 鉄骨 4階/5階建 
建物名 いわみビル  築年月(築年数) 1989年5月(築36年7ヶ月) 
条件等   契約期間 2年 
現況 空  引渡可能時期 相談 
情報提供元 アットホーム [1026756947] 情報公開日
情報更新日 - 次回更新予定日 随時

設備など

24時間セキュリティ - 1階 - 2階以上
即引渡し可 - 飲食店可 - エレベーター -
駐車場(近隣含) -        
設備  
備考 ★中四国管理戸数No.1の【良和ハウス】国道2号線沿いの1フロア貸し!サンルーム付♪・賃貸保証等:加入要(要確認)・宮島街道沿いで視認性の良い立地です♪路面電車駅徒歩4分♪1フロア貸し!サンルーム付♪業種等詳しいお問合せは良和ハウスまでお気軽にお問合せください♪・仲介手数料:不要 駐車場:無 築年月:1989/05築 
特記事項  

広島県廿日市市串戸2丁目 周辺地図情報

地図
※地図上に表示される物件の位置は付近住所に所在することを表すものであり、実際の物件所在地とは異なる場合がございます。
   正確な物件所在地は、取扱い不動産会社にお問い合わせください。
お問い合わせ先
(株)良和ハウス 廿日市店

不動産会社情報

お問い合わせ先 商号:(株)良和ハウス 廿日市店
免許番号:国土交通大臣免許(2)第9113号
所在地:廿日市市新宮1丁目14-2
TEL:0829-70-9004
取引態様:仲介
管理コード:13401213094819300001
所属協会など:(公社)広島県宅地建物取引業協会会員、中国地区不動産公正取引協議会加盟
共有する
QRコード
お問い合わせ先
(株)良和ハウス 廿日市店

廿日市市の暮らしデータ

人口などの統計情報

世帯数 47722世帯
人口総数 116025人
転入者数 4241人
転入率(人口1000人当たり)
36.55人
転出者数 3637人
転出率(人口1000人当たり)
31.35人
土地平均価格
住宅地
75733円/m2
商業地
99470円/m2

廿日市市の治安・ごみ収集情報

公共料金・インフラ

ガス料金(22m3使用した場合の月額) 広島ガス株式会社5505円
水道料金(口径20mmで20m3の月額) 広島県水道広域連合企業団(廿日市事務所)3316円
下水道料金(20m3を使用した場合の月額) 廿日市市2882円
下水道普及率 65.6%

安心・安全

建物火災出火件数 15件
人口10000人当たり
1.31件
刑法犯認知件数 387件
人口1000人当たり
3.39件
ハザード・防災マップ あり

医療

一般病院総数 9ヶ所
一般診療所総数 95ヶ所
小児科医師数 24人
小児人口10000人当たり
16.00人
産婦人科医師数 9人
15~49歳女性人口1万人当たり
4.29人
介護保険料基準額(月額) 5498円

ごみ

家庭ごみ収集(可燃ごみ) 有料
備考
可燃ごみ(燃やせるごみ)は1リットルあたり1円を処分手数料として加算。その他のごみ袋(埋立ごみ/資源ごみ/有害ごみ/小型複雑ごみ)は指定袋はあるが、処分手数料の加算はなし。
家庭ごみの分別方式 5分別12種〔燃やせるごみ 埋立ごみ 資源ごみ(びん・かん、ペットプラ等7品目、新聞チラシ、雑誌・雑がみ類、段ボール、紙パック、布類、剪定枝) 小型及び複雑ごみ 有害ごみ〕
家庭ごみの戸別収集 一部実施(高齢や障害がある方などごみ出しが困難な世帯に対し、戸別収集を実施)
粗大ごみ収集 あり
備考
有料。大型ごみ処分手数料納付券(200円/枚)必要。30cm以上1m未満は1枚、1m以上2m未満は2枚、2m以上は3枚貼付。
生ごみ処理機助成金制度 あり
上限金額
30000円
上限比率
50.0%
暮らしデータ提供元:生活ガイド.com
※行政機関により公表していない地域及びデータがございます。東京23区以外の政令指定都市は、市全体のデータとして表示しています。
※提供データには細心の注意を払っておりますが、調査後に変更がある場合があります。 最新の情報につきましては各市区役所までお問い合わせいただくか、自治体HPなどをご確認ください。
OCN×ドコモ光新規お申込みで合計最大137,280円相当おトク!特典の内訳・適用条件など詳細はこちら
掲載情報の著作権は提供元企業等に帰属します。
Copyright:(C) 2025 At Home Co.,Ltd
アプリで簡単 物件探し 大手不動産サイトの情報から一括検!プッシュ通知で物件を見逃さない
App Storeからダウンロード Google Playで手に入れよう QRコード