貸倉庫

高井田本通2丁目倉庫・事務所 JR河内永和駅 貸倉庫

情報提供元
アットホーム
高井田本通2丁目倉庫・事務所
賃料 44万円  (管理費等:なし)
礼金・敷金 2ヶ月 / 1ヶ月 保証金/敷引・償却 なし / -
交通
所在地 大阪府東大阪市高井田本通2丁目周辺地図
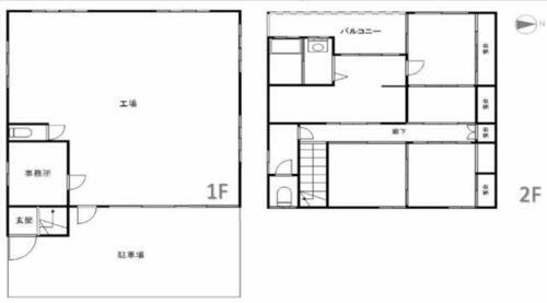
使用部分面積 189.22m2 土地面積 -
築年月 1980年1月 築年数 築45年11ヶ月
おすすめポイント
最上階・メゾネット
お問い合わせ先
LIXIL不動産ショップ リノベスト不動産 (株)ナワショウ
お問い合わせ先
LIXIL不動産ショップ リノベスト不動産 (株)ナワショウ

詳細情報

賃料 44万円  管理費等 なし 
敷金 1ヶ月  礼金 2ヶ月 
保証金 なし  敷引・償却
所在地 大阪府東大阪市高井田本通2丁目周辺地図
交通
  • おおさか東線 JR河内永和駅 徒歩12分乗換案内
  • 近鉄難波・奈良線 河内永和駅 徒歩13分乗換案内
  • 近鉄大阪線 布施駅 徒歩13分乗換案内
使用部分面積 189.22m2  土地面積  
坪単価 0.77万円  その他一時金  
権利金 その他費用  
維持費等   都市計画  
用途地域   接道状況  
地目   建物構造・所在階/階数 鉄骨 1階/2階建 
建物名 高井田本通2丁目倉庫・事務所  築年月(築年数) 1980年1月(築45年11ヶ月) 
条件等   契約期間 2年 
現況 居住中  引渡可能時期 相談 
情報提供元 アットホーム [1100062902] 情報公開日
情報更新日 - 次回更新予定日 随時

設備など

24時間セキュリティ - 1階 2階以上 -
即引渡し可 - 飲食店可 - エレベーター -
駐車場(近隣含) -        
設備 トイレ・収納スペース・トイレ2ヶ所 
備考 ※現在賃貸中。2025年10月末より空き予定。※築年数不詳の為、1980年で仮登録しております。【設備】◎トイレ2か所 ◎給湯器 【費用】◎保証会社利用必須:全保連・日本セーフティー・JID◎火災保険要加入◎鍵交換費用:不要【特約】◎短期解約違約金:1年未満の解約の場合総賃料の2カ月分、2年未満の解約の場合総賃料の1カ月分要。・賃貸保証等:加入要(日本セーフティー 保証会社:全保連・JID)・【LIXIL不動産ショップ】事務所・倉庫・工場など多様な使用方法可能です!駐車スペース有◎業種等お気軽にお問合せください♪・所属階:1~2階 築年月:1980/01築 
特記事項 最上階・メゾネット 

大阪府東大阪市高井田本通2丁目 周辺地図情報

地図
※地図上に表示される物件の位置は付近住所に所在することを表すものであり、実際の物件所在地とは異なる場合がございます。
   正確な物件所在地は、取扱い不動産会社にお問い合わせください。
お問い合わせ先
LIXIL不動産ショップ リノベスト不動産 (株)ナワショウ
アピールポイント
■リノベスト不動産■□リフォーム・リノベーションのご相談も承ります!□店舗の内装工事もぜひご相談下さい。□特殊な業種様も大歓迎♪□土日祝営業中□地元密着!□女性スタッフ対応□他社では紹介できない物件もご紹介可能お気軽にお問い合わせください♪

不動産会社情報

お問い合わせ先 商号:LIXIL不動産ショップ リノベスト不動産 (株)ナワショウ
免許番号:大阪府知事免許(1)第63875号
所在地:東大阪市長堂1丁目2-3布施駅前ナワショウビル2階
TEL:06-4307-3173
取引態様:仲介
管理コード:535490001154802
所属協会など:(公社)全日本不動産協会会員、(一社)全国不動産協会会員、(公社)近畿地区不動産公正取引協議会加盟
共有する
QRコード
お問い合わせ先
LIXIL不動産ショップ リノベスト不動産 (株)ナワショウ

東大阪市の暮らしデータ

人口などの統計情報

世帯数 231950世帯
人口総数 478539人
転入者数 19570人
転入率(人口1000人当たり)
40.90人
転出者数 17459人
転出率(人口1000人当たり)
36.48人
土地平均価格
住宅地
149705円/m2
商業地
243909円/m2

東大阪市の治安・ごみ収集情報

公共料金・インフラ

ガス料金(22m3使用した場合の月額) 大阪瓦斯株式会社4544円
水道料金(口径20mmで20m3の月額) 東大阪市2598円
下水道料金(20m3を使用した場合の月額) 東大阪市2087円
下水道普及率 99.1%

安心・安全

建物火災出火件数 107件
人口10000人当たり
2.17件
刑法犯認知件数 4642件
人口1000人当たり
9.40件
ハザード・防災マップ あり

医療

一般病院総数 19ヶ所
一般診療所総数 397ヶ所
小児科医師数 62人
小児人口10000人当たり
12.25人
産婦人科医師数 41人
15~49歳女性人口1万人当たり
4.48人
介護保険料基準額(月額) 7093円

ごみ

家庭ごみ収集(可燃ごみ) 無料
備考
一時多量ごみ(引越し時に発生したごみ等)は東大阪都市清掃施設組合に直接持ち込む場合のみ処分が可能であり、有料となる。料金は10kgにつき90円(税込み)。
家庭ごみの分別方式 5分別5種〔家庭ごみ あきかん・あきびん 不燃の小物 プラスチック製容器包装 ペットボトル〕拠点回収:乾電池 蛍光管 水銀体温計 使用済小型家電 水銀血圧計 古紙類 小型充電式電池 集団回収:新聞 雑誌 雑がみ ダンボール 古布 紙パック アルミ缶 リターナブルびん 廃食油
家庭ごみの戸別収集 一部実施(一部地域のみ実施)
粗大ごみ収集 あり
備考
有料。戸別収集。事前申込制。電話で10点/回まで受付。1辺の長さが30cm以上で、3辺(高さ・幅・奥行)の長さの合計が3m以下の場合は400円、3mを超える場合は800円となる。
生ごみ処理機助成金制度 なし
上限金額
-
上限比率
-
暮らしデータ提供元:生活ガイド.com
※行政機関により公表していない地域及びデータがございます。東京23区以外の政令指定都市は、市全体のデータとして表示しています。
※提供データには細心の注意を払っておりますが、調査後に変更がある場合があります。 最新の情報につきましては各市区役所までお問い合わせいただくか、自治体HPなどをご確認ください。
OCN×ドコモ光新規お申込みで合計最大137,280円相当おトク!特典の内訳・適用条件など詳細はこちら

東大阪市内の各駅の住みやすさ

他のエリアから探す

東大阪市の詳細地域から店舗・事業用物件を探す

旭町足代足代北足代新町足代南荒川荒本荒本北荒本新町池島町稲田上町稲田新町稲田本町稲葉今米岩田町瓜生堂永和近江堂大蓮北大蓮東大蓮南柏田西柏田東町金岡加納上石切町上四条町川田河内町川中川俣神田町岸田堂北町岸田堂西岸田堂南町衣摺北石切町喜里川町日下町楠根鴻池町鴻池本町鴻池元町小阪小阪本町寿町古箕輪小若江新喜多渋川町島之内下小阪下六万寺町俊徳町昭和町新池島町新家新家中町新家西町新庄新庄西新庄南新町末広町善根寺町太平寺高井田高井田中高井田西高井田本通高井田元町鷹殿町宝町立花町玉串町東玉串元町長栄寺長堂寺前町徳庵本町友井鳥居町中石切町中鴻池町中小阪中新開中野南長瀬町長田長田中長田西長田東南荘町西石切町西岩田西上小阪西鴻池町西堤西堤学園町西堤西西堤本通西西堤本通東布市町箱殿町花園西町花園東町花園本町東石切町東鴻池町東山町菱江菱屋西菱屋東瓢箪山町藤戸新田宝持本庄本庄中本庄西本町御厨御厨栄町御厨中御厨西ノ町御厨東御厨南三島水走南上小阪南鴻池町御幸町森河内西森河内東弥生町横小路町横沼町横枕吉田吉田本町吉原吉松六万寺町若江北町若江西新町若江東町若江本町若草町

近辺の市区から探す

大阪市都島区大阪市福島区大阪市西区大阪市港区大阪市大正区大阪市天王寺区大阪市浪速区大阪市東淀川区大阪市東成区大阪市生野区大阪市旭区大阪市城東区大阪市阿倍野区大阪市住吉区大阪市東住吉区大阪市西成区大阪市淀川区大阪市鶴見区大阪市平野区大阪市北区大阪市中央区吹田市守口市八尾市寝屋川市松原市大東市柏原市摂津市四條畷市

周辺の駅から探す

おおさか東線
JR野江鴫野放出高井田中央JR河内永和JR俊徳道JR長瀬衣摺加美北新加美
近鉄難波・奈良線
大阪上本町鶴橋今里布施河内永和河内小阪八戸ノ里若江岩田河内花園
近鉄大阪線
大阪上本町鶴橋今里布施俊徳道長瀬弥刀久宝寺口
掲載情報の著作権は提供元企業等に帰属します。
Copyright:(C) 2025 At Home Co.,Ltd
アプリで簡単 物件探し 大手不動産サイトの情報から一括検!プッシュ通知で物件を見逃さない
App Storeからダウンロード Google Playで手に入れよう QRコード