貸事務所

事務所 牧野駅 貸事務所

情報提供元
アットホーム
事務所
賃料 8.8万円  (管理費等:5,500円)
礼金・敷金 22万円 / なし 保証金/敷引・償却 なし / -
交通
所在地 大阪府枚方市養父東町周辺地図
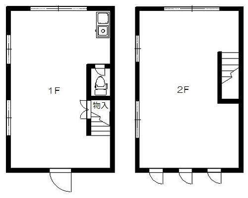
使用部分面積 56.16m2 土地面積 -
築年月 2007年2月 築年数 築18年11ヶ月
おすすめポイント
メゾネット

詳細情報

賃料 8.8万円  管理費等 5,500円 
敷金 なし  礼金 22万円 
保証金 なし  敷引・償却
所在地 大阪府枚方市養父東町周辺地図
交通
使用部分面積 56.16m2  土地面積  
坪単価 0.52万円  その他一時金  
権利金 その他費用  
維持費等   都市計画  
用途地域   接道状況  
地目   建物構造・所在階/階数 鉄骨 1階/2階建 
建物名 事務所  築年月(築年数) 2007年2月(築18年11ヶ月) 
条件等   契約期間 2年 
現況 空  引渡可能時期 相談 
情報提供元 アットホーム [6943955901] 情報公開日
情報更新日 - 次回更新予定日 随時

設備など

24時間セキュリティ - 1階 2階以上 -
即引渡し可 - 飲食店可 - エレベーター -
駐車場(近隣含)        
設備 エアコン・給湯・トイレ 
備考 賃貸保証等:加入要(総賃料の100パーセント初回要)・保険等:要・エアコン2台・キッチン・トイレあり。以前事務所として使用していたためそのまま使えます。綺麗です。・所属階:1~2階 駐車場:有 10000円 築年月:2007/02築 
特記事項 メゾネット 

大阪府枚方市養父東町 周辺地図情報

地図
※地図上に表示される物件の位置は付近住所に所在することを表すものであり、実際の物件所在地とは異なる場合がございます。
   正確な物件所在地は、取扱い不動産会社にお問い合わせください。

不動産会社情報

お問い合わせ先 商号:(株)プラスワン
免許番号:大阪府知事免許(3)第56460号
所在地:枚方市高田2丁目22-2-205号室
TEL:072-391-4704
取引態様:仲介
管理コード:
所属協会など:(公社)全日本不動産協会会員、(公社)近畿地区不動産公正取引協議会加盟
共有する
QRコード

枚方市の暮らしデータ

人口などの統計情報

世帯数 172035世帯
人口総数 394221人
転入者数 14080人
転入率(人口1000人当たり)
35.72人
転出者数 13784人
転出率(人口1000人当たり)
34.97人
土地平均価格
住宅地
138487円/m2
商業地
370500円/m2

枚方市の治安・ごみ収集情報

公共料金・インフラ

ガス料金(22m3使用した場合の月額) 大阪瓦斯株式会社4544円
水道料金(口径20mmで20m3の月額) 枚方市2290円
下水道料金(20m3を使用した場合の月額) 枚方市2618円
下水道普及率 97.8%

安心・安全

建物火災出火件数 67件
人口10000人当たり
1.69件
刑法犯認知件数 1708件
人口1000人当たり
4.30件
ハザード・防災マップ あり

医療

一般病院総数 22ヶ所
一般診療所総数 284ヶ所
小児科医師数 83人
小児人口10000人当たり
17.79人
産婦人科医師数 37人
15~49歳女性人口1万人当たり
4.92人
介護保険料基準額(月額) 6276円

ごみ

家庭ごみ収集(可燃ごみ) 無料
備考
-
家庭ごみの分別方式 4分別6種〔一般ごみ 空き缶・びん・ガラス類 ペットボトル・プラスチック製容器包装、紙類(新聞紙、段ボール、雑誌・雑がみ)〕 拠点回収:使用済小型家電 水銀使用廃製品 紙類
家庭ごみの戸別収集 一部実施(【ふれあいサポート収集】一般ごみ、空き缶・びん・ガラス類、ペットボトル・プラスチック類容器包装、紙類)
粗大ごみ収集 あり
備考
粗ごみは6点まで無料。大型ごみ・臨時ごみは有料。いずれも事前申込制(電話・インターネット)。戸別収集。月1回。
生ごみ処理機助成金制度 なし
上限金額
-
上限比率
-
暮らしデータ提供元:生活ガイド.com
※行政機関により公表していない地域及びデータがございます。東京23区以外の政令指定都市は、市全体のデータとして表示しています。
※提供データには細心の注意を払っておりますが、調査後に変更がある場合があります。 最新の情報につきましては各市区役所までお問い合わせいただくか、自治体HPなどをご確認ください。
OCN×ドコモ光新規お申込みで合計最大137,280円相当おトク!特典の内訳・適用条件など詳細はこちら

枚方市内の各駅の住みやすさ

他のエリアから探す

枚方市の詳細地域から店舗・事業用物件を探す

伊加賀北町伊加賀西町伊加賀東町池之宮磯島北町宇山町大字穂谷大垣内町大峰南町大峰元町岡東町岡本町小倉町甲斐田町春日野春日東町春日元町上島町上島東町川原町北中振北山禁野本町楠葉朝日楠葉丘楠葉中之芝楠葉中町楠葉並木楠葉野田楠葉花園町高田交北高野道香里園町香里園山之手町香里ケ丘御殿山町桜丘町招提大谷招提東町招提南町招提元町新町翠香園町杉北町須山町宗谷尊延寺田口津田駅前津田北町津田西町津田東町津田元町堤町出口藤田町堂山中宮北町中宮西之町中宮本町中宮山戸町長尾荒阪長尾家具町長尾峠町長尾元町渚西渚東町渚南町茄子作北町西禁野西牧野野村中町走谷東香里東香里新町東田宮東船橋東山藤阪中町藤阪東町藤阪南町藤阪元町船橋本町星丘牧野北町牧野阪牧野下島町牧野本町町楠葉三矢町南楠葉南中振都丘町宮之阪宮之下町村野東町三栗養父丘養父西町養父東町養父元町山田池東町山之上山之上北町

近辺の市区から探す

城陽市八幡市京田辺市乙訓郡大山崎町久世郡久御山町高槻市守口市茨木市寝屋川市大東市門真市摂津市四條畷市交野市三島郡島本町

周辺の駅から探す

京阪電気鉄道京阪線
石清水八幡宮橋本樟葉牧野御殿山枚方市枚方公園光善寺
掲載情報の著作権は提供元企業等に帰属します。
Copyright:(C) 2025 At Home Co.,Ltd
アプリで簡単 物件探し 大手不動産サイトの情報から一括検!プッシュ通知で物件を見逃さない
App Storeからダウンロード Google Playで手に入れよう QRコード