貸事務所

大阪府大阪市北区豊崎3丁目 中津駅 貸事務所

情報提供元
アットホーム
賃料 37.82万円  (管理費等:189,090円)
礼金・敷金 なし / 206.28万円 保証金/敷引・償却 なし / -
交通
所在地 大阪府大阪市北区豊崎3丁目周辺地図
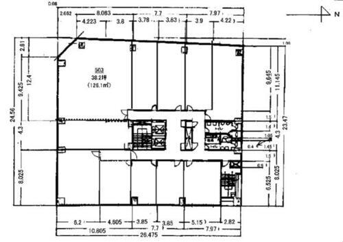
使用部分面積 126.28m2 土地面積 -
築年月 1974年9月 築年数 築51年3ヶ月
お問い合わせ先
(株)エステートエージェンシー
お問い合わせ先
(株)エステートエージェンシー

詳細情報

賃料 37.82万円  管理費等 189,090円 
敷金 206.28万円  礼金 なし 
保証金 なし  敷引・償却
所在地 大阪府大阪市北区豊崎3丁目周辺地図
交通
使用部分面積 126.28m2  土地面積  
坪単価 1万円  その他一時金  
権利金 その他費用  
維持費等   都市計画  
用途地域   接道状況  
地目   建物構造・所在階/階数 SRC 7階/地上11階地下1階建 
建物名   築年月(築年数) 1974年9月(築51年3ヶ月) 
条件等 定期借家  契約期間 2年 
現況 空  引渡可能時期 即時 
情報提供元 アットホーム [1148187313] 情報公開日
情報更新日 - 次回更新予定日 随時

設備など

24時間セキュリティ - 1階 - 2階以上
即引渡し可 飲食店可 - エレベーター
駐車場(近隣含) -        
設備 エレベーター・光ファイバー(ブロードバンド)・インターネット対応・男女別トイレ 
備考 当社掲載の物件は原則事務所用途となっております【飲食・トランクルーム・貸会議室・レンタルオフィス・福祉サービス等の業種不可となります】⇒それ以外の店舗用途の物件のご相談についてはお問い合わせください また、オフィス街の主要な物件は全て網羅しておりますので掲載物件以外に非公開物件からもご紹介可能です。・こちらの物件は【飲食・トランクルーム・貸会議室・福祉サービス等は不可となっております】・バイク置場:なし・駐輪場:なし・仲介手数料:1.1ヶ月 駐車場:空無 築年月:1974/09築 
特記事項  

大阪府大阪市北区豊崎3丁目 周辺地図情報

地図
※地図上に表示される物件の位置は付近住所に所在することを表すものであり、実際の物件所在地とは異なる場合がございます。
   正確な物件所在地は、取扱い不動産会社にお問い合わせください。
お問い合わせ先
(株)エステートエージェンシー

不動産会社情報

お問い合わせ先 商号:(株)エステートエージェンシー
免許番号:国土交通大臣免許(1)第9977号
所在地:大阪市中央区南本町4丁目5-7東亜ビル5階
TEL:06-6226-8411
取引態様:仲介
管理コード:00000066030_001
所属協会など:(一社)大阪府宅地建物取引業協会会員、(公社)近畿地区不動産公正取引協議会加盟
共有する
QRコード
お問い合わせ先
(株)エステートエージェンシー

大阪市北区の暮らしデータ

人口などの統計情報

世帯数 1464615世帯
人口総数 2757642人
転入者数 225000人
転入率(人口1000人当たり)
81.59人
転出者数 188180人
転出率(人口1000人当たり)
68.24人
土地平均価格
住宅地
270839円/m2
商業地
1966607円/m2

大阪市北区の治安・ごみ収集情報

公共料金・インフラ

ガス料金(22m3使用した場合の月額) 大阪瓦斯株式会社4544円
水道料金(口径20mmで20m3の月額) 大阪市2112円
下水道料金(20m3を使用した場合の月額) 大阪市1276円
下水道普及率 100.0%

安心・安全

建物火災出火件数 553件
人口10000人当たり
2.01件
刑法犯認知件数 39408件
人口1000人当たり
14.32件
ハザード・防災マップ あり

医療

一般病院総数 170ヶ所
一般診療所総数 3734ヶ所
小児科医師数 659人
小児人口10000人当たり
22.80人
産婦人科医師数 380人
15~49歳女性人口1万人当たり
6.15人
介護保険料基準額(月額) 9249円

ごみ

家庭ごみ収集(可燃ごみ) 無料
備考
-
家庭ごみの分別方式 4分別11種〔普通ごみ(普通ごみ、危険ごみ[竹串、ガラス片、カミソリの刃]) 資源ごみ(空き缶・空きびん・金属製の生活用品・ペットボトル、スプレー缶・カセットボンベ) 容器包装プラスチック 古紙・衣類(新聞紙・折込チラシ、段ボール、紙パック、雑誌、衣類、その他の紙類)〕
家庭ごみの戸別収集 一部実施(【ふれあい収集】65歳以上の一人暮らしの高齢者または高齢者だけの世帯、障がいがある方が居住される家庭で、ごみ出しが困難な人が対象)
粗大ごみ収集 あり
備考
有料。戸別収集。事前申込制。申込時に収集日を決定。
生ごみ処理機助成金制度 なし
上限金額
-
上限比率
-
暮らしデータ提供元:生活ガイド.com
※行政機関により公表していない地域及びデータがございます。東京23区以外の政令指定都市は、市全体のデータとして表示しています。
※提供データには細心の注意を払っておりますが、調査後に変更がある場合があります。 最新の情報につきましては各市区役所までお問い合わせいただくか、自治体HPなどをご確認ください。
OCN×ドコモ光新規お申込みで合計最大137,280円相当おトク!特典の内訳・適用条件など詳細はこちら

大阪市北区内の各駅の住みやすさ

他のエリアから探す

大阪市北区の詳細地域から店舗・事業用物件を探す

池田町浮田梅田大深町大淀北大淀中大淀南角田町神山町菅栄町黒崎町紅梅町国分寺小松原町芝田末広町菅原町曾根崎曾根崎新地太融寺町茶屋町鶴野町天神西町天神橋天満天満橋兎我野町豊崎同心堂島堂島浜堂山町中崎中崎西中津中之島長柄中長柄西長柄東浪花町西天満野崎町万歳町東天満樋之口町本庄西本庄東松ケ枝町南扇町南森町山崎町与力町

近辺の市区から探す

大阪市都島区大阪市福島区大阪市此花区大阪市西区大阪市港区大阪市大正区大阪市天王寺区大阪市浪速区大阪市西淀川区大阪市東淀川区大阪市東成区大阪市生野区大阪市旭区大阪市城東区大阪市阿倍野区大阪市住吉区大阪市東住吉区大阪市西成区大阪市淀川区大阪市鶴見区大阪市住之江区大阪市平野区大阪市中央区吹田市守口市八尾市寝屋川市大東市摂津市四條畷市

周辺の駅から探す

大阪市御堂筋線
江坂東三国新大阪西中島南方中津梅田淀屋橋本町心斎橋
阪急電鉄宝塚線
大阪梅田中津十三三国庄内服部天神
阪急電鉄神戸線
大阪梅田中津十三神崎川園田塚口
掲載情報の著作権は提供元企業等に帰属します。
Copyright:(C) 2025 At Home Co.,Ltd
アプリで簡単 物件探し 大手不動産サイトの情報から一括検!プッシュ通知で物件を見逃さない
App Storeからダウンロード Google Playで手に入れよう QRコード