貸店舗・事務所

中野町4丁目 桜ノ宮駅 貸店舗・事務所

情報提供元
アットホーム
中野町4丁目
賃料 16.5万円  (管理費等:-)
礼金・敷金 1ヶ月 / なし 保証金/敷引・償却 なし / -
交通
所在地 大阪府大阪市都島区中野町4丁目周辺地図
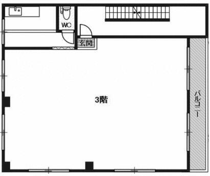
使用部分面積 70.95m2 土地面積 -
築年月 1985年9月 築年数 築40年3ヶ月
おすすめポイント
飲食店不可・耐震構造(新耐震基準)

詳細情報

賃料 16.5万円  管理費等
敷金 なし  礼金 1ヶ月 
保証金 なし  敷引・償却
所在地 大阪府大阪市都島区中野町4丁目周辺地図
交通
使用部分面積 70.95m2  土地面積  
坪単価 0.77万円  その他一時金  
権利金 その他費用  
維持費等   都市計画  
用途地域   接道状況  
地目   建物構造・所在階/階数 鉄骨 3階/4階建 
建物名 中野町4丁目  築年月(築年数) 1985年9月(築40年3ヶ月) 
条件等   契約期間 2年 
現況 空  引渡可能時期 即時 
情報提供元 アットホーム [6988259062] 情報公開日
情報更新日 - 次回更新予定日 随時

設備など

24時間セキュリティ - 1階 - 2階以上
即引渡し可 飲食店可 - エレベーター -
駐車場(近隣含) -        
設備 トイレ・インターネット対応 
備考 水道代3,000円(税込)【短期解約違約金有】1年以内の場合総賃料2ヶ月分・2年以内の場合総賃料1ヶ月分【退去時精算】原状回復費要退去時HC代:50,000円(税別) ・賃貸保証等:加入要(日本セーフティー(初回100%/1年毎総賃料10%))・保険等:要(火災)・大阪環状線『桜ノ宮』駅より徒歩1分 駅近物件のご紹介です! 新規事業の開業や事務所の設立にもオススメ こちらで新しいビジネスを始めてみませんか? お問い合わせお待ちしております! 築年月:1985/09築 
特記事項 飲食店不可・耐震構造(新耐震基準) 

大阪府大阪市都島区中野町4丁目 周辺地図情報

地図
※地図上に表示される物件の位置は付近住所に所在することを表すものであり、実際の物件所在地とは異なる場合がございます。
   正確な物件所在地は、取扱い不動産会社にお問い合わせください。
アピールポイント
大阪環状線『桜ノ宮』駅より徒歩1分 駅近物件のご紹介です! 新規事業の開業や事務所の設立にもオススメ こちらで新しいビジネスを始めてみませんか? お問い合わせお待ちしております!

不動産会社情報

お問い合わせ先 商号:(株)TFC 大阪営業所
免許番号:国土交通大臣免許(1)第10868号
所在地:大阪市中央区久太郎町2丁目5-31関電不動産船場ビル12階
TEL:06-4256-1755
取引態様:仲介
管理コード:
所属協会など:(一社)大阪府宅地建物取引業協会会員、(公社)近畿地区不動産公正取引協議会加盟
共有する
QRコード

大阪市都島区の暮らしデータ

人口などの統計情報

世帯数 1464615世帯
人口総数 2757642人
転入者数 225000人
転入率(人口1000人当たり)
81.59人
転出者数 188180人
転出率(人口1000人当たり)
68.24人
土地平均価格
住宅地
270839円/m2
商業地
1966607円/m2

大阪市都島区の治安・ごみ収集情報

公共料金・インフラ

ガス料金(22m3使用した場合の月額) 大阪瓦斯株式会社4544円
水道料金(口径20mmで20m3の月額) 大阪市2112円
下水道料金(20m3を使用した場合の月額) 大阪市1276円
下水道普及率 100.0%

安心・安全

建物火災出火件数 553件
人口10000人当たり
2.01件
刑法犯認知件数 39408件
人口1000人当たり
14.32件
ハザード・防災マップ あり

医療

一般病院総数 170ヶ所
一般診療所総数 3734ヶ所
小児科医師数 659人
小児人口10000人当たり
22.80人
産婦人科医師数 380人
15~49歳女性人口1万人当たり
6.15人
介護保険料基準額(月額) 9249円

ごみ

家庭ごみ収集(可燃ごみ) 無料
備考
-
家庭ごみの分別方式 4分別11種〔普通ごみ(普通ごみ、危険ごみ[竹串、ガラス片、カミソリの刃]) 資源ごみ(空き缶・空きびん・金属製の生活用品・ペットボトル、スプレー缶・カセットボンベ) 容器包装プラスチック 古紙・衣類(新聞紙・折込チラシ、段ボール、紙パック、雑誌、衣類、その他の紙類)〕
家庭ごみの戸別収集 一部実施(【ふれあい収集】65歳以上の一人暮らしの高齢者または高齢者だけの世帯、障がいがある方が居住される家庭で、ごみ出しが困難な人が対象)
粗大ごみ収集 あり
備考
有料。戸別収集。事前申込制。申込時に収集日を決定。
生ごみ処理機助成金制度 なし
上限金額
-
上限比率
-
暮らしデータ提供元:生活ガイド.com
※行政機関により公表していない地域及びデータがございます。東京23区以外の政令指定都市は、市全体のデータとして表示しています。
※提供データには細心の注意を払っておりますが、調査後に変更がある場合があります。 最新の情報につきましては各市区役所までお問い合わせいただくか、自治体HPなどをご確認ください。
OCN×ドコモ光新規お申込みで合計最大137,280円相当おトク!特典の内訳・適用条件など詳細はこちら

大阪市都島区内の各駅の住みやすさ

掲載情報の著作権は提供元企業等に帰属します。
Copyright:(C) 2025 At Home Co.,Ltd
アプリで簡単 物件探し 大手不動産サイトの情報から一括検!プッシュ通知で物件を見逃さない
App Storeからダウンロード Google Playで手に入れよう QRコード