貸店舗

三重県津市柳山津興 津新町駅 貸店舗

情報提供元
アットホーム
賃料 17.6万円  (管理費等:-)
礼金・敷金 1ヶ月 / 3ヶ月 保証金/敷引・償却 なし / -
交通
所在地 三重県津市柳山津興周辺地図
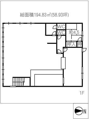
使用部分面積 194.83m2 土地面積 -
築年月 1981年7月 築年数 築44年6ヶ月

詳細情報

賃料 17.6万円  管理費等
敷金 3ヶ月  礼金 1ヶ月 
保証金 なし  敷引・償却
所在地 三重県津市柳山津興周辺地図
交通
使用部分面積 194.83m2  土地面積  
坪単価 0.3万円  その他一時金  
権利金 その他費用  
維持費等   都市計画  
用途地域   接道状況  
地目   建物構造・所在階/階数 鉄骨 2階建 
建物名   築年月(築年数) 1981年7月(築44年6ヶ月) 
条件等   契約期間 3年 
現況 空  引渡可能時期 相談 
情報提供元 アットホーム [6988260123] 情報公開日
情報更新日 - 次回更新予定日 随時

設備など

24時間セキュリティ - 1階 - 2階以上 -
即引渡し可 - 飲食店可 - エレベーター -
駐車場(近隣含)        
設備  
備考 賃貸保証等:加入要(初回保証料:総賃料100% 更新保証料:総賃料10% 決済手数料550円/月)・保険等:要・仲介手数料:1.1ヶ月 駐車場:有 無料 築年月:1981/07築 
特記事項  

三重県津市柳山津興 周辺地図情報

地図
※地図上に表示される物件の位置は付近住所に所在することを表すものであり、実際の物件所在地とは異なる場合がございます。
   正確な物件所在地は、取扱い不動産会社にお問い合わせください。

不動産会社情報

お問い合わせ先 商号:(株)ニッショー 津支店
免許番号:国土交通大臣免許(14)第2018号
所在地:津市栄町3丁目150-1
TEL:059-229-0311
取引態様:仲介
管理コード:
共有する
QRコード

津市の暮らしデータ

人口などの統計情報

世帯数 117385世帯
人口総数 271000人
転入者数 10839人
転入率(人口1000人当たり)
40.00人
転出者数 10194人
転出率(人口1000人当たり)
37.62人
土地平均価格
住宅地
36653円/m2
商業地
81515円/m2

津市の治安・ごみ収集情報

公共料金・インフラ

ガス料金(22m3使用した場合の月額) 東邦瓦斯株式会社5307円
水道料金(口径20mmで20m3の月額) 津市3707円
下水道料金(20m3を使用した場合の月額) 津市2519円
下水道普及率 56.1%

安心・安全

建物火災出火件数 45件
人口10000人当たり
1.64件
刑法犯認知件数 1995件
人口1000人当たり
7.27件
ハザード・防災マップ あり

医療

一般病院総数 19ヶ所
一般診療所総数 270ヶ所
小児科医師数 103人
小児人口10000人当たり
32.63人
産婦人科医師数 43人
15~49歳女性人口1万人当たり
8.63人
介護保険料基準額(月額) 6456円

ごみ

家庭ごみ収集(可燃ごみ) 無料
備考
-
家庭ごみの分別方式 13分別17種〔燃やせるごみ 燃やせないごみ 容器包装プラスチック その他プラスチック 金属 新聞 雑誌・雑紙 ダンボール 飲料用紙パック 衣類・布類 ペットボトル びん 危険ごみ(蛍光管、乾電池、スプレー缶・卓上カセットボンベ等、使い捨てライター、水銀式体温計)〕
家庭ごみの戸別収集 一部実施(高齢者世帯や障がい者世帯で、日常のごみ出しが困難な状況がある世帯を対象に戸別回収を実施している。対象世帯の要件としては、「要介護2から5までの要介護認定を受けている」「肢体不自由または視覚障害により身体障害者手帳1級または2級の交付を受けている」などがある。 また、大型家具等をごみ一時集積所まで出すことが困難な世帯に対しても戸別回収を実施している。対象世帯の要件としては、要支援認定者、要介護認定者、障がい者または75歳以上高齢者のみで構成される世帯。対象品目はタンス、書棚、食器棚、鏡台、マットレス、マッサージチェアなど)
粗大ごみ収集 なし
備考
-
生ごみ処理機助成金制度 あり
上限金額
25000円
上限比率
50.0%
暮らしデータ提供元:生活ガイド.com
※行政機関により公表していない地域及びデータがございます。東京23区以外の政令指定都市は、市全体のデータとして表示しています。
※提供データには細心の注意を払っておりますが、調査後に変更がある場合があります。 最新の情報につきましては各市区役所までお問い合わせいただくか、自治体HPなどをご確認ください。
OCN×ドコモ光新規お申込みで合計最大137,280円相当おトク!特典の内訳・適用条件など詳細はこちら

他のエリアから探す

津市の詳細地域から店舗・事業用物件を探す

安濃町内多安濃町清水あのつ台一志町其村一志町田尻一志町八太一志町みのりヶ丘一身田上津部田一身田町一身田豊野一身田中野一身田平野岩田江戸橋大里窪田町大谷町乙部片田志袋町上浜町上弁財町上弁財町津興香良洲町川方町河芸町上野河芸町高佐河芸町中瀬河芸町中別保河芸町東千里北丸之内雲出長常町雲出本郷町栗真小川町栗真中山町栗真町屋町芸濃町椋本広明町寿町幸町栄町桜橋渋見町島崎町下弁財町津興白塚町城山新東町塔世新町末広町住吉町船頭町津興高茶屋高茶屋小森上野町高茶屋小森町垂水大門中央津興豊が丘鳥居町中河原長岡町西阿漕町岩田西古河町西丸之内博多町白山町上ノ村白山町二本木八町羽所町半田東古河町東丸之内久居相川町久居井戸山町久居北口町久居幸町久居新町久居中町久居二ノ町久居野口町久居野村町久居本町久居明神町久居元町藤方本町丸之内丸之内養正町三重町津興南新町南中央南丸之内森町柳山津興八幡町津興万町津

周辺の駅から探す

近鉄名古屋線
伊勢中川桃園久居南が丘津新町江戸橋高田本山白塚
掲載情報の著作権は提供元企業等に帰属します。
Copyright:(C) 2025 At Home Co.,Ltd
アプリで簡単 物件探し 大手不動産サイトの情報から一括検!プッシュ通知で物件を見逃さない
App Storeからダウンロード Google Playで手に入れよう QRコード