| 賃料 |
55万円 (管理費等:-) |
| 礼金・敷金 |
なし / なし |
保証金/敷引・償却 |
3ヶ月 / 解約時100.00%償却 |
| 交通 |
|
| 所在地 |
愛知県津島市橘町1丁目周辺地図
|
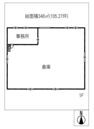
| 使用部分面積 |
348m2 |
土地面積 |
348m2 |
| 築年月 |
1973年1月 |
築年数 |
築52年11ヶ月 |
- おすすめポイント
- 飲食店可
| 賃料 |
55万円 |
管理費等 |
- |
| 敷金 |
なし |
礼金 |
なし |
| 保証金 |
3ヶ月 |
敷引・償却 |
解約時100.00%償却 |
| 所在地 |
愛知県津島市橘町1丁目周辺地図
|
| 交通 |
|
| 使用部分面積 |
348m2 |
土地面積 |
348m2 |
| 坪単価 |
0.53万円 |
その他一時金 |
|
| 権利金 |
- |
その他費用 |
|
| 維持費等 |
|
都市計画 |
|
| 用途地域 |
準工業 |
接道状況 |
北5.5m公道接面25.0m |
| 地目 |
|
建物構造・所在階/階数 |
鉄骨 平屋建て |
| 建物名 |
|
築年月(築年数) |
1973年1月(築52年11ヶ月) |
| 条件等 |
|
契約期間 |
2年 |
| 現況 |
空 |
引渡可能時期 |
即時 |
| 情報提供元 |
アットホーム [6981803132] |
情報公開日 |
|
| 情報更新日 |
- |
次回更新予定日 |
随時 |
設備など
| 24時間セキュリティ |
- |
1階 |
○ |
2階以上 |
- |
| 即引渡し可 |
○ |
飲食店可 |
○ |
エレベーター |
- |
| 駐車場(近隣含) |
○ |
|
|
|
|
| 設備 |
トイレ |
| 備考 |
土地面積計測:公簿・仲介手数料:1ヶ月 駐車場:有 無料 築年月:1973/01築 |
| 特記事項 |
飲食店可 |
愛知県津島市橘町1丁目 周辺地図情報
※地図上に表示される物件の位置は付近住所に所在することを表すものであり、実際の物件所在地とは異なる場合がございます。
正確な物件所在地は、取扱い不動産会社にお問い合わせください。
アピールポイント
賃料、初期費用、業種等諸条件ご相談ください
不動産会社情報
| お問い合わせ先 |
商号:(株)fons 免許番号:愛知県知事免許(2)第24474号 所在地:名古屋市東区泉3丁目24-7 TEL:052-931-8888 取引態様:仲介 管理コード: 所属協会など:(公社)全日本不動産協会会員、不動産公正取引協議会加盟 |
共有する |
|
人口などの統計情報
| 世帯数 |
24212世帯 |
| 人口総数 |
60129人 |
| 転入者数 |
2532人
- 転入率(人口1000人当たり)
- 42.11人
|
| 転出者数 |
2478人
- 転出率(人口1000人当たり)
- 41.21人
|
| 土地平均価格 |
- 住宅地
- 61317円/m2
- 商業地
- 87800円/m2
|
津島市の治安・ごみ収集情報
公共料金・インフラ
| ガス料金(22m3使用した場合の月額) |
東邦瓦斯株式会社5307円 津島瓦斯株式会社5674円 |
| 水道料金(口径20mmで20m3の月額) |
津島市4175円 |
| 下水道料金(20m3を使用した場合の月額) |
津島市2821円 |
| 下水道普及率 |
43.8% |
安心・安全
| 建物火災出火件数 |
4件
- 人口10000人当たり
- 0.66件
|
| 刑法犯認知件数 |
324件
- 人口1000人当たり
- 5.32件
|
| ハザード・防災マップ |
あり |
医療
| 一般病院総数 |
4ヶ所 |
| 一般診療所総数 |
55ヶ所 |
| 小児科医師数 |
14人
- 小児人口10000人当たり
- 23.52人
|
| 産婦人科医師数 |
3人
- 15~49歳女性人口1万人当たり
- 2.77人
|
| 介護保険料基準額(月額) |
5800円 |
ごみ
| 家庭ごみ収集(可燃ごみ) |
有料
|
| 家庭ごみの分別方式 |
3分別15種〔ごみ(可燃、不燃) 資源(プラスチック製容器包装、空きびん、空き缶、ペットボトル、古紙・古着[新聞、雑誌、ダンボール、雑がみ、古着類]) 有害ごみ(乾電池・体温計類、蛍光管類、スプレー缶・カセット式ガスボンベ、使い捨てライター)〕 |
| 家庭ごみの戸別収集 |
一部実施(【ふれあい収集】要介護認定者・障害者手帳保持者等対象者のみ実施) |
| 粗大ごみ収集 |
あり
|
| 生ごみ処理機助成金制度 |
なし
- 上限金額
- -
- 上限比率
- -
|
※行政機関により公表していない地域及びデータがございます。東京23区以外の政令指定都市は、市全体のデータとして表示しています。
※提供データには細心の注意を払っておりますが、調査後に変更がある場合があります。 最新の情報につきましては各市区役所までお問い合わせいただくか、自治体HPなどをご確認ください。
津島市の暮らしデータをもっと見る