貸店舗・事務所
新潟県上越市藤巻 高田駅 貸店舗・事務所
| 賃料 |
38.5万円 (管理費等:-) |
| 礼金・敷金 |
なし / 4ヶ月 |
保証金/敷引・償却 |
なし / - |
| 交通 |
|
| 所在地 |
新潟県上越市藤巻周辺地図
|
| 使用部分面積 |
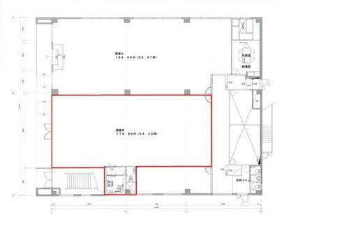
216.23m2 |
土地面積 |
- |
| 築年月 |
1988年6月 |
築年数 |
築37年6ヶ月 |
| 賃料 |
38.5万円 |
管理費等 |
- |
| 敷金 |
4ヶ月 |
礼金 |
なし |
| 保証金 |
なし |
敷引・償却 |
- |
| 所在地 |
新潟県上越市藤巻周辺地図
|
| 交通 |
- 妙高はねうまライン 高田駅 徒歩34分乗換案内
- 妙高はねうまライン 春日山駅 徒歩25分乗換案内
|
| 使用部分面積 |
216.23m2 |
土地面積 |
|
| 坪単価 |
0.59万円 |
その他一時金 |
|
| 権利金 |
- |
その他費用 |
|
| 維持費等 |
|
都市計画 |
|
| 用途地域 |
|
接道状況 |
|
| 地目 |
|
建物構造・所在階/階数 |
鉄骨 1階/2階建 |
| 建物名 |
|
築年月(築年数) |
1988年6月(築37年6ヶ月) |
| 条件等 |
|
契約期間 |
5年 |
| 現況 |
空 |
引渡可能時期 |
相談 |
| 情報提供元 |
アットホーム [6986171692] |
情報公開日 |
|
| 情報更新日 |
- |
次回更新予定日 |
随時 |
設備など
| 24時間セキュリティ |
- |
1階 |
○ |
2階以上 |
- |
| 即引渡し可 |
- |
飲食店可 |
- |
エレベーター |
- |
| 駐車場(近隣含) |
○ |
|
|
|
|
| 設備 |
エアコン・トイレ・プロパンガス・トイレ2ヶ所 |
| 備考 |
共益費・駐車料(12台分)は賃料に含むその他敷地周辺に駐車場あり(応相談)、冬期間除雪費の負担あり共用部(休憩室、更衣室、会議室)の使用は要相談間仕切壁設置工事後の引渡し(業種により要相談)・賃貸保証等:加入要(346,500円+事務手数料)・幹線道路(上越大通り)沿いで視認性と集客率は良好です。賃料には共益費・駐車料(12台分)が含まれています。・仲介手数料:1.1ヶ月 駐車場:有 無料 築年月:1988/06築 |
| 特記事項 |
|
新潟県上越市藤巻 周辺地図情報
※地図上に表示される物件の位置は付近住所に所在することを表すものであり、実際の物件所在地とは異なる場合がございます。
正確な物件所在地は、取扱い不動産会社にお問い合わせください。
アピールポイント
幹線道路(上越大通り)沿いで視認性と集客率は良好です。周辺には多くの商業施設や事業所が立ち並んでいます。
不動産会社情報
| お問い合わせ先 |
商号:(株)マルケー不動産 免許番号:新潟県知事免許(11)第2765号 所在地:上越市西本町2丁目3-21 TEL:025-544-2724 取引態様:仲介 管理コード: 所属協会など:(公社)新潟県宅地建物取引業協会会員、(公社)首都圏不動産公正取引協議会加盟 |
共有する |
|
人口などの統計情報
| 世帯数 |
72655世帯 |
| 人口総数 |
182911人 |
| 転入者数 |
4284人
- 転入率(人口1000人当たり)
- 23.42人
|
| 転出者数 |
4550人
- 転出率(人口1000人当たり)
- 24.88人
|
| 土地平均価格 |
- 住宅地
- 16097円/m2
- 商業地
- 35711円/m2
|
上越市の治安・ごみ収集情報
公共料金・インフラ
| ガス料金(22m3使用した場合の月額) |
上越市3069円 |
| 水道料金(口径20mmで20m3の月額) |
上越市4284円 |
| 下水道料金(20m3を使用した場合の月額) |
上越市4205円 |
| 下水道普及率 |
66.8% |
安心・安全
| 建物火災出火件数 |
24件
- 人口10000人当たり
- 1.28件
|
| 刑法犯認知件数 |
731件
- 人口1000人当たり
- 3.89件
|
| ハザード・防災マップ |
あり |
医療
| 一般病院総数 |
7ヶ所 |
| 一般診療所総数 |
140ヶ所 |
| 小児科医師数 |
29人
- 小児人口10000人当たり
- 14.46人
|
| 産婦人科医師数 |
14人
- 15~49歳女性人口1万人当たり
- 4.53人
|
| 介護保険料基準額(月額) |
6450円 |
ごみ
| 家庭ごみ収集(可燃ごみ) |
有料
|
| 家庭ごみの分別方式 |
3分別13種〔可燃ごみ 不燃ごみ 資源ごみ(缶、びん、ペットボトル、新聞紙、雑誌類、段ボール、プラスチック製容器包装、紙製容器包装、生ごみ、乾電池・ライター類、蛍光灯)〕 拠点回収:廃食用油 |
| 家庭ごみの戸別収集 |
未実施 |
| 粗大ごみ収集 |
なし
|
| 生ごみ処理機助成金制度 |
なし
- 上限金額
- -
- 上限比率
- -
|
※行政機関により公表していない地域及びデータがございます。東京23区以外の政令指定都市は、市全体のデータとして表示しています。
※提供データには細心の注意を払っておりますが、調査後に変更がある場合があります。 最新の情報につきましては各市区役所までお問い合わせいただくか、自治体HPなどをご確認ください。
上越市の暮らしデータをもっと見る
-
- 貸店舗・事務所
-
- 賃料
- 29.7万円
- 住所
- 新潟県上越市大豆1丁目
-
- 貸店舗(建物一部)
-
- 賃料
- 22万円
- 住所
- 新潟県上越市本町4丁目
-
- 貸店舗・事務所
-
- 賃料
- 16.5万円
- 住所
- 新潟県上越市仲町4丁目
-
- 貸事務所
-
- 賃料
- 15.4万円
- 住所
- 新潟県上越市石橋2丁目
-
- 貸地
-
- 賃料
- 12万円
- 住所
- 新潟県上越市大字下新町