貸倉庫
吉岡東5丁目倉庫付事務所 高座渋谷駅 貸倉庫
| 賃料 |
30.36万円 (管理費等:4,510円) |
| 礼金・敷金 |
1ヶ月 / 3ヶ月 |
保証金/敷引・償却 |
なし / - |
| 交通 |
|
| 所在地 |
神奈川県綾瀬市吉岡東5丁目周辺地図
|
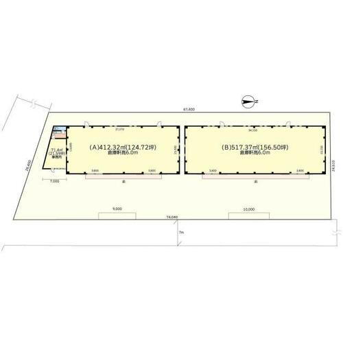
| 使用部分面積 |
129.04m2 |
土地面積 |
- |
| 築年月 |
2011年2月 |
築年数 |
築14年10ヶ月 |
| 賃料 |
30.36万円 |
管理費等 |
4,510円 |
| 敷金 |
3ヶ月 |
礼金 |
1ヶ月 |
| 保証金 |
なし |
敷引・償却 |
- |
| 所在地 |
神奈川県綾瀬市吉岡東5丁目周辺地図
|
| 交通 |
- 小田急江ノ島線 高座渋谷駅 徒歩4.8km乗換案内
|
| 使用部分面積 |
129.04m2 |
土地面積 |
|
| 坪単価 |
0.78万円 |
その他一時金 |
|
| 権利金 |
- |
その他費用 |
|
| 維持費等 |
|
都市計画 |
|
| 用途地域 |
1種住居 |
接道状況 |
|
| 地目 |
|
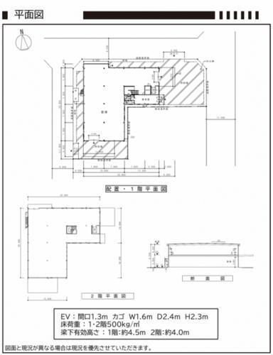
建物構造・所在階/階数 |
鉄骨 平屋建て |
| 建物名 |
吉岡東5丁目倉庫付事務所 |
築年月(築年数) |
2011年2月(築14年10ヶ月) |
| 条件等 |
|
契約期間 |
3年 |
| 現況 |
居住中 |
引渡可能時期 |
2025年11月上旬 |
| 情報提供元 |
アットホーム [6987351296] |
情報公開日 |
|
| 情報更新日 |
- |
次回更新予定日 |
随時 |
設備など
| 24時間セキュリティ |
- |
1階 |
- |
2階以上 |
- |
| 即引渡し可 |
- |
飲食店可 |
- |
エレベーター |
- |
| 駐車場(近隣含) |
○ |
|
|
|
|
| 設備 |
エアコン・トイレ・プロパンガス・駐輪場・バイク置き場 |
| 備考 |
・現況優先・保証会社:原則要加入・業種:要相談・【担当店】事業用不動産専門店 海老名事務所【電話番号】03-6820-6462 / 046-212-2988※担当店直通電話です。見学、ご質問等お気軽にお電話ください。・バイク置場:有(無料)・駐輪場:有(無料)・仲介手数料:1.1ヶ月 駐車場:有 無料 築年月:2011/02築 |
| 特記事項 |
|
神奈川県綾瀬市吉岡東5丁目 周辺地図情報
※地図上に表示される物件の位置は付近住所に所在することを表すものであり、実際の物件所在地とは異なる場合がございます。
正確な物件所在地は、取扱い不動産会社にお問い合わせください。
アピールポイント
綾瀬市の事務所付き倉庫です。エアコン、トイレ、洗面所、キッチン付きです。★見学希望お気軽にご相談ください★(電話、ライン、メール問い合わせをご用意しております)空き確認や見学希望、各種お問合せ、物件探しの依頼は電話でも承っております。お電話の場合は03-6820-6462または046-212-2988(担当直通)までお気軽にご連絡ください。当社は事業用不動産専門店として、関東全域と静岡県の物件を取り扱っております。物件のお探しもご相談ください。ご条件をお伺いして、物件情報をご提供させていただきます。丁寧に一生懸命対応させていただきます。是非、なんでもお気軽にご相談ください。
不動産会社情報
| お問い合わせ先 |
商号:(有)インテリアプランニング 免許番号:東京都知事免許(2)第102028号 所在地:中央区日本橋人形町3丁目3-5 TEL:03-6820-6462 取引態様:仲介 管理コード: 所属協会など:(公社)全日本不動産協会会員、(公社)首都圏不動産公正取引協議会加盟 |
共有する |
|
人口などの統計情報
| 世帯数 |
34760世帯 |
| 人口総数 |
84100人 |
| 転入者数 |
3969人
- 転入率(人口1000人当たり)
- 47.19人
|
| 転出者数 |
3627人
- 転出率(人口1000人当たり)
- 43.13人
|
| 土地平均価格 |
- 住宅地
- 117417円/m2
- 商業地
- 158000円/m2
|
綾瀬市の治安・ごみ収集情報
公共料金・インフラ
| ガス料金(22m3使用した場合の月額) |
東京瓦斯株式会社(東京地区等)3926円 |
| 水道料金(口径20mmで20m3の月額) |
神奈川県営水道2509円 |
| 下水道料金(20m3を使用した場合の月額) |
綾瀬市2470円 |
| 下水道普及率 |
94.5% |
安心・安全
| 建物火災出火件数 |
11件
- 人口10000人当たり
- 1.31件
|
| 刑法犯認知件数 |
430件
- 人口1000人当たり
- 5.12件
|
| ハザード・防災マップ |
あり |
医療
| 一般病院総数 |
1ヶ所 |
| 一般診療所総数 |
30ヶ所 |
| 小児科医師数 |
9人
- 小児人口10000人当たり
- 8.67人
|
| 産婦人科医師数 |
3人
- 15~49歳女性人口1万人当たり
- 1.91人
|
| 介護保険料基準額(月額) |
5693円 |
ごみ
| 家庭ごみ収集(可燃ごみ) |
無料
|
| 家庭ごみの分別方式 |
4分別21種〔可燃ごみ 資源物(資源となる紙、新聞、雑誌、ダンボール、廃食用油、アルミ、スチール缶、小型家電・金属類、生きびん、透明のびん、茶のびん、その他のびん、牛乳パック、スプレー缶、布類、ペットボトル、蛍光灯、電池) 無価物 プラスチック〕 |
| 家庭ごみの戸別収集 |
一部実施(高齢者や障がい者でごみ出しの困難な世帯が対象) |
| 粗大ごみ収集 |
あり
|
| 生ごみ処理機助成金制度 |
あり
- 上限金額
- 50000円
- 上限比率
- 90.0%
|
※行政機関により公表していない地域及びデータがございます。東京23区以外の政令指定都市は、市全体のデータとして表示しています。
※提供データには細心の注意を払っておりますが、調査後に変更がある場合があります。 最新の情報につきましては各市区役所までお問い合わせいただくか、自治体HPなどをご確認ください。
綾瀬市の暮らしデータをもっと見る
-
- 貸倉庫
-
- 賃料
- 664.4万円
- 住所
- 神奈川県綾瀬市早川城山5丁目
-
- 貸倉庫
-
- 賃料
- 247.5万円
- 住所
- 埼玉県鴻巣市上生出塚
-
- 貸倉庫
-
- 賃料
- 243.08万円
- 住所
- 埼玉県加須市南篠崎2丁目
-
- 貸倉庫
-
- 賃料
- 210.81万円
- 住所
- 東京都東村山市恩多町5丁目
-
- 貸倉庫
-
- 賃料
- 210.1万円
- 住所
- 神奈川県厚木市酒井
-
- 貸倉庫
-
- 賃料
- 198万円
- 住所
- 神奈川県厚木市戸室1丁目
-
- 貸倉庫
-
- 賃料
- 194.7万円
- 住所
- 埼玉県鴻巣市上谷
-
- 貸地
-
- 賃料
- 165万円
- 住所
- 千葉県流山市青田
-
- 貸倉庫
-
- 賃料
- 163.35万円
- 住所
- 神奈川県茅ヶ崎市今宿
-
- 貸倉庫
-
- 賃料
- 159.5万円
- 住所
- 埼玉県草加市青柳3丁目