貸店舗(建物一部)

小泉ビル 梅ヶ丘駅 貸店舗(建物一部)

情報提供元
アットホーム
小泉ビル
賃料 77万円  (管理費等:なし)
礼金・敷金 2ヶ月 / なし 保証金/敷引・償却 10ヶ月 / 解約時2.00ヶ月償却
交通
所在地 東京都世田谷区梅丘1丁目周辺地図
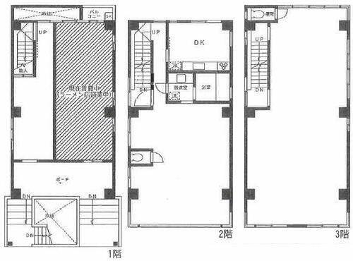
使用部分面積 172.47m2 土地面積 -
築年月 1988年3月 築年数 築37年10ヶ月
おすすめポイント
角部屋

詳細情報

賃料 77万円  管理費等 なし 
敷金 なし  礼金 2ヶ月 
保証金 10ヶ月  敷引・償却 解約時2.00ヶ月償却 
所在地 東京都世田谷区梅丘1丁目周辺地図
交通
使用部分面積 172.47m2  土地面積  
坪単価 1.48万円  その他一時金  
権利金 その他費用  
維持費等   都市計画  
用途地域 近隣商業  接道状況  
地目   建物構造・所在階/階数 RC 地上3階地下1階建 
建物名 小泉ビル  築年月(築年数) 1988年3月(築37年10ヶ月) 
条件等 定期借家  契約期間 5年 
現況 空  引渡可能時期 相談 
情報提供元 アットホーム [1127539005] 情報公開日
情報更新日 - 次回更新予定日 随時

設備など

24時間セキュリティ - 1階 - 2階以上 -
即引渡し可 - 飲食店可 - エレベーター -
駐車場(近隣含) -        
設備 トイレ・シャワー・都市ガス 
備考 ※定期借家契約5年間(再契約相談型)※再契約時事務手数料有:新賃料の25%(税別)※屋上に約25m2の専用倉庫あり※検査済証なしその他費用コメント:退去時原状費用は借主負担となります・賃貸保証等:加入要(初回保証料:総賃料の100% 年間保証料:総賃料の7% 口座引落手数料:330円/月)・梅ヶ丘駅より徒歩1分、商店街沿いに佇む好立地! 内装については貸主との協議で変更のご相談を承ります。 1階を営業スペース、2階から3階を居住スペースとしてお住まいになりながらご利用頂くことも可能です!・仲介手数料:1ヶ月 築年月:1988/03築 
特記事項 角部屋 

東京都世田谷区梅丘1丁目 周辺地図情報

地図
※地図上に表示される物件の位置は付近住所に所在することを表すものであり、実際の物件所在地とは異なる場合がございます。
   正確な物件所在地は、取扱い不動産会社にお問い合わせください。
アピールポイント
駅徒歩1分&商店街沿いの好立地物件です♪

不動産会社情報

お問い合わせ先 商号:(株)ハウジングプラザ
免許番号:東京都知事免許(8)第62780号
所在地:世田谷区梅丘1丁目21-7梅ケ丘駅前ビル1F
TEL:03-5799-6633
取引態様:仲介
管理コード:1101154012540000022185
所属協会など:(公社)全日本不動産協会会員、(公社)首都圏不動産公正取引協議会加盟
共有する
QRコード

世田谷区の暮らしデータ

人口などの統計情報

世帯数 491717世帯
人口総数 918141人
転入者数 64326人
転入率(人口1000人当たり)
70.06人
転出者数 59597人
転出率(人口1000人当たり)
64.91人
土地平均価格
住宅地
676200円/m2
商業地
1209125円/m2

世田谷区の治安・ごみ収集情報

公共料金・インフラ

ガス料金(22m3使用した場合の月額) 東京瓦斯株式会社(東京地区等)3926円
水道料金(口径20mmで20m3の月額) 東京都水道局2816円
下水道料金(20m3を使用した場合の月額) 東京都下水道局2068円
下水道普及率 99.9%

安心・安全

建物火災出火件数 141件
人口10000人当たり
1.49件
刑法犯認知件数 4084件
人口1000人当たり
4.33件
ハザード・防災マップ あり

医療

一般病院総数 27ヶ所
一般診療所総数 952ヶ所
小児科医師数 349人
小児人口10000人当たり
33.26人
産婦人科医師数 66人
15~49歳女性人口1万人当たり
3.00人
介護保険料基準額(月額) 6280円

ごみ

家庭ごみ収集(可燃ごみ) 無料
備考
-
家庭ごみの分別方式 3分別14種〔可燃ごみ 不燃ごみ(小型家電製品・金属類、ガラス陶磁器類、乾電池・白熱電球・LED電球類・割れた蛍光管、ライター) 資源ごみ(古紙[新聞、雑誌類、紙パック、ダンボール]、ガラスびん、缶、ペットボトル、蛍光管、スプレー缶・カセットボンベ)〕
家庭ごみの戸別収集 一部実施(65歳以上のひとり暮らし高齢者または高齢者のみの世帯で、世帯全員が介護保険法の要介護2または2程度、ひとり暮らしの障害者または障害者のみの世帯)
粗大ごみ収集 あり
備考
有料。戸別収集。事前申込制。粗大ごみ処理券を購入し、添付。持ち込みも可能。
生ごみ処理機助成金制度 なし
上限金額
-
上限比率
-
暮らしデータ提供元:生活ガイド.com
※行政機関により公表していない地域及びデータがございます。東京23区以外の政令指定都市は、市全体のデータとして表示しています。
※提供データには細心の注意を払っておりますが、調査後に変更がある場合があります。 最新の情報につきましては各市区役所までお問い合わせいただくか、自治体HPなどをご確認ください。
OCN×ドコモ光新規お申込みで合計最大137,280円相当おトク!特典の内訳・適用条件など詳細はこちら
掲載情報の著作権は提供元企業等に帰属します。
Copyright:(C) 2025 At Home Co.,Ltd
アプリで簡単 物件探し 大手不動産サイトの情報から一括検!プッシュ通知で物件を見逃さない
App Storeからダウンロード Google Playで手に入れよう QRコード