貸事務所

新宿御苑ビル 新宿三丁目駅 貸事務所

情報提供元
アットホーム
新宿御苑ビル 新宿通り沿い 角地の分かり易い立地 新宿御苑もすぐ近くです
賃料 218.9万円  (管理費等:486,464円)
礼金・敷金 なし / 10ヶ月 保証金/敷引・償却 なし / -
交通
所在地 東京都新宿区新宿2丁目周辺地図
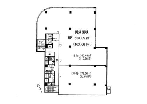
使用部分面積 365.49m2 土地面積 -
築年月 1989年6月 築年数 築36年7ヶ月
おすすめポイント
角部屋・24時間セキュリティ・OAフロア

詳細情報

賃料 218.9万円  管理費等 486,464円 
敷金 10ヶ月  礼金 なし 
保証金 なし  敷引・償却
所在地 東京都新宿区新宿2丁目周辺地図
交通
  • 東京メトロ丸ノ内線 新宿三丁目駅 徒歩3分乗換案内
  • JR山手線 新宿駅 徒歩8分乗換案内
  • 東京メトロ副都心線 新宿三丁目駅 徒歩3分乗換案内
使用部分面積 365.49m2  土地面積  
坪単価 1.98万円  その他一時金  
権利金 その他費用  
維持費等   都市計画  
用途地域   接道状況  
地目   建物構造・所在階/階数 SRC 6階/地上10階地下2階建 
建物名 新宿御苑ビル  築年月(築年数) 1989年6月(築36年7ヶ月) 
条件等   契約期間 2年 
現況 空  引渡可能時期 即時 
情報提供元 アットホーム [6985673726] 情報公開日
情報更新日 - 次回更新予定日 随時

設備など

24時間セキュリティ 1階 - 2階以上
即引渡し可 飲食店可 - エレベーター
駐車場(近隣含)        
設備 エアコン・給湯・トイレ・エレベーター・防犯カメラ・光ファイバー(ブロードバンド)・男女別トイレ 
備考 JR新宿駅徒歩圏 NET面積契約 新宿通沿い 機械警備 管理良好 ウォシュレット 諸条件交渉可・保険等:要・新宿三丁目駅徒歩3分、JR新宿駅も徒歩圏。角部屋・ワンフロアの事務所空間で、24時間利用可。諸条件相談可能です。 駐車場:有 55000円 築年月:1989/06築 
特記事項 角部屋・24時間セキュリティ・OAフロア 

東京都新宿区新宿2丁目 周辺地図情報

地図
※地図上に表示される物件の位置は付近住所に所在することを表すものであり、実際の物件所在地とは異なる場合がございます。
   正確な物件所在地は、取扱い不動産会社にお問い合わせください。
アピールポイント
本物件は、東京メトロ丸ノ内線「新宿三丁目」駅から徒歩3分、JR「新宿」駅も徒歩8分という利便性の高い立地に位置するオフィスビルです。新宿通りに面した視認性の良い建物で、6階ワンフロアの専有面積は365.49㎡。角部屋のため採光性も良好です。エレベーターは2基、共用部には男女別トイレを備え、機械警備や防犯カメラによる24時間セキュリティー体制も整っています。さらに、個別空調・光ファイバー・OAフロア・ウォシュレット完備など、快適なビジネス環境をサポートする設備が充実。24時間・土日祝日も利用可能で、様々なワークスタイルに対応可能です。建物管理も行き届いており、長期的な拠点としても安心感があります。周辺にはコンビニ・カフェ・郵便局・銀行など、ビジネスに必要な施設も豊富にそろっており、従業員の利便性も高いエリアです。条件交渉も可能ですので、ぜひお気軽にご相談ください。

不動産会社情報

お問い合わせ先 商号:(株)南柏リビング
免許番号:千葉県知事免許(3)第16513号
所在地:流山市加5丁目1700-1
TEL:04-7197-4519
取引態様:仲介
管理コード:
所属協会など:(一社)千葉県宅地建物取引業協会会員、(公社)首都圏不動産公正取引協議会加盟
共有する
QRコード

新宿区の暮らしデータ

人口などの統計情報

世帯数 222461世帯
人口総数 349226人
転入者数 46749人
転入率(人口1000人当たり)
133.86人
転出者数 41291人
転出率(人口1000人当たり)
118.24人
土地平均価格
住宅地
875917円/m2
商業地
5390517円/m2

新宿区の治安・ごみ収集情報

公共料金・インフラ

ガス料金(22m3使用した場合の月額) 東京瓦斯株式会社(東京地区等)3926円
水道料金(口径20mmで20m3の月額) 東京都水道局2816円
下水道料金(20m3を使用した場合の月額) 東京都下水道局2068円
下水道普及率 100.0%

安心・安全

建物火災出火件数 168件
人口10000人当たり
4.81件
刑法犯認知件数 5537件
人口1000人当たり
15.85件
ハザード・防災マップ あり

医療

一般病院総数 13ヶ所
一般診療所総数 766ヶ所
小児科医師数 237人
小児人口10000人当たり
78.56人
産婦人科医師数 153人
15~49歳女性人口1万人当たり
17.39人
介護保険料基準額(月額) 6600円

ごみ

家庭ごみ収集(可燃ごみ) 無料
備考
日量10kgを超える臨時のごみは有料。
家庭ごみの分別方式 3分別14種〔燃やすごみ 金属・陶器・ガラスごみ(陶器・刃物・ガラス類、蛍光ランプ・水銀体温計・水銀血圧計、ライター) 資源(資源プラスチック[製品プラスチック・容器包装プラスチック]、古紙[新聞、チラシ・雑誌・本、紙パック、段ボール]、びん、缶、ペットボトル、スプレー缶・カセットボンベ、乾電池)〕 拠点回収:使用済小型電子機器等 紙パック 白色トレイ 乾電池
家庭ごみの戸別収集 一部実施(高齢者・障害者世帯等のごみ出しを支援)
粗大ごみ収集 あり
備考
有料。事前申込制。家庭から排出される粗大ごみに限る。大きさにより400~3,200円。
生ごみ処理機助成金制度 なし
上限金額
-
上限比率
-
暮らしデータ提供元:生活ガイド.com
※行政機関により公表していない地域及びデータがございます。東京23区以外の政令指定都市は、市全体のデータとして表示しています。
※提供データには細心の注意を払っておりますが、調査後に変更がある場合があります。 最新の情報につきましては各市区役所までお問い合わせいただくか、自治体HPなどをご確認ください。
OCN×ドコモ光新規お申込みで合計最大137,280円相当おトク!特典の内訳・適用条件など詳細はこちら

他のエリアから探す

新宿区の詳細地域から店舗・事業用物件を探す

愛住町赤城下町揚場町荒木町市谷加賀町市谷甲良町市谷砂土原町市谷左内町市谷田町市谷台町市谷仲之町市谷八幡町市谷本村町市谷薬王寺町市谷柳町榎町大久保改代町神楽坂歌舞伎町上落合河田町喜久井町北新宿細工町左門町三栄町信濃町下落合下宮比町新小川町新宿水道町須賀町住吉町高田馬場箪笥町大京町築地町津久戸町筑土八幡町天神町戸塚町富久町戸山内藤町中井中落合中里町納戸町西落合西五軒町西新宿西早稲田原町馬場下町東五軒町百人町袋町舟町弁天町南町南元町南山伏町山吹町矢来町余丁町四谷四谷坂町四谷三栄町四谷本塩町若葉若松町若宮町早稲田鶴巻町早稲田町

近辺の市区から探す

川口市千代田区中央区港区文京区台東区墨田区江東区品川区目黒区世田谷区渋谷区中野区杉並区豊島区北区荒川区板橋区練馬区足立区武蔵野市

周辺の駅から探す

山手線
恵比寿渋谷原宿代々木新宿新大久保高田馬場目白池袋
東京メトロ丸ノ内線
赤坂見附四ツ谷四谷三丁目新宿御苑前新宿三丁目新宿西新宿中野坂上新中野
東京メトロ副都心線
池袋雑司が谷西早稲田東新宿新宿三丁目北参道明治神宮前渋谷
掲載情報の著作権は提供元企業等に帰属します。
Copyright:(C) 2025 At Home Co.,Ltd
アプリで簡単 物件探し 大手不動産サイトの情報から一括検!プッシュ通知で物件を見逃さない
App Storeからダウンロード Google Playで手に入れよう QRコード