貸事務所
東京都港区虎ノ門1丁目 虎ノ門駅 貸事務所
| 賃料 |
211.75万円 (管理費等:629,956円) |
| 礼金・敷金 |
なし / なし |
保証金/敷引・償却 |
15ヶ月 / - |
| 交通 |
|
| 所在地 |
東京都港区虎ノ門1丁目周辺地図
|
| 使用部分面積 |
318.18m2 |
土地面積 |
- |
| 築年月 |
1965年6月 |
築年数 |
築60年7ヶ月 |
| 賃料 |
211.75万円 |
管理費等 |
629,956円 |
| 敷金 |
なし |
礼金 |
なし |
| 保証金 |
15ヶ月 |
敷引・償却 |
- |
| 所在地 |
東京都港区虎ノ門1丁目周辺地図
|
| 交通 |
|
| 使用部分面積 |
318.18m2 |
土地面積 |
|
| 坪単価 |
2.21万円 |
その他一時金 |
|
| 権利金 |
- |
その他費用 |
|
| 維持費等 |
|
都市計画 |
|
| 用途地域 |
|
接道状況 |
|
| 地目 |
|
建物構造・所在階/階数 |
SRC 8階/地上9階地下3階建 |
| 建物名 |
|
築年月(築年数) |
1965年6月(築60年7ヶ月) |
| 条件等 |
定期借家 |
契約期間 |
5年 |
| 現況 |
空 |
引渡可能時期 |
即時 |
| 情報提供元 |
アットホーム [6985673728] |
情報公開日 |
|
| 情報更新日 |
- |
次回更新予定日 |
随時 |
設備など
| 24時間セキュリティ |
- |
1階 |
- |
2階以上 |
○ |
| 即引渡し可 |
○ |
飲食店可 |
- |
エレベーター |
○ |
| 駐車場(近隣含) |
- |
|
|
|
|
| 設備 |
冷房・暖房・エレベーター・セントラル・光ファイバー(ブロードバンド) |
| 備考 |
共益費:坪@¥6,545(税込)・東京メトロ銀座線「虎ノ門」駅徒歩1分の好立地。318㎡超の広々空間。光ファイバー・EV2基完備、即入居可能です。 築年月:1965/06築 |
| 特記事項 |
|
東京都港区虎ノ門1丁目 周辺地図情報
※地図上に表示される物件の位置は付近住所に所在することを表すものであり、実際の物件所在地とは異なる場合がございます。
正確な物件所在地は、取扱い不動産会社にお問い合わせください。
アピールポイント
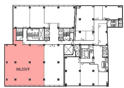
東京メトロ銀座線「虎ノ門」駅から徒歩1分という交通利便性に優れた立地にある、定期借家契約の貸事務所です。使用面積は約318㎡(96.25坪)とゆとりある広さで、複数部署のオフィス集約や、会議室・執務スペースをバランスよく確保したい企業に最適です。セントラル空調と光ファイバー対応により、快適かつ効率的なオフィス環境を実現。エレベーター2基を備え、社員や来訪者の移動もスムーズです。周辺には行政機関や大手企業が集まり、ビジネスシーンにふさわしいエリアでの展開が可能です。入居は即時対応可能。5年間の契約期間を活用して、腰を据えた事業運営をお考えの企業様におすすめいたします。共益費は坪あたり6,545円(税込)。詳細条件のご相談も承りますので、お気軽にお問合せください。
不動産会社情報
| お問い合わせ先 |
商号:(株)南柏リビング 免許番号:千葉県知事免許(3)第16513号 所在地:流山市加5丁目1700-1 TEL:04-7197-4519 取引態様:仲介 管理コード: 所属協会など:(一社)千葉県宅地建物取引業協会会員、(公社)首都圏不動産公正取引協議会加盟 |
共有する |
|
人口などの統計情報
| 世帯数 |
146084世帯 |
| 人口総数 |
266306人 |
| 転入者数 |
29747人
- 転入率(人口1000人当たり)
- 111.70人
|
| 転出者数 |
25086人
- 転出率(人口1000人当たり)
- 94.20人
|
| 土地平均価格 |
- 住宅地
- 2313000円/m2
- 商業地
- 6411852円/m2
|
港区の治安・ごみ収集情報
公共料金・インフラ
| ガス料金(22m3使用した場合の月額) |
東京瓦斯株式会社(東京地区等)3926円 |
| 水道料金(口径20mmで20m3の月額) |
東京都水道局2816円 |
| 下水道料金(20m3を使用した場合の月額) |
東京都下水道局2068円 |
| 下水道普及率 |
100.0% |
安心・安全
| 建物火災出火件数 |
225件
- 人口10000人当たり
- 8.64件
|
| 刑法犯認知件数 |
2980件
- 人口1000人当たり
- 11.44件
|
| ハザード・防災マップ |
あり |
医療
| 一般病院総数 |
13ヶ所 |
| 一般診療所総数 |
953ヶ所 |
| 小児科医師数 |
144人
- 小児人口10000人当たり
- 39.84人
|
| 産婦人科医師数 |
191人
- 15~49歳女性人口1万人当たり
- 28.68人
|
| 介護保険料基準額(月額) |
6400円 |
ごみ
| 家庭ごみ収集(可燃ごみ) |
無料
|
| 家庭ごみの分別方式 |
4分別7種〔可燃ごみ 不燃ごみ 資源プラスチック 資源(ペットボトル、びん、かん、古紙[新聞、ダンボール、紙パック、雑誌、その他再生可能紙])〕 |
| 家庭ごみの戸別収集 |
一部実施(65歳以上の高齢者、介護保険法[1997年法律第123号]に規定する要介護認定を受けている方、身体障害者手帳、愛の手帳又は精神障害者保健福祉手帳の交付を受けている方、難病の患者に対する医療等に関する法律[2014年法律第50号]第5条第1項に規定する指定難病又は東京都難病患者等に係る医療費等の助成に関する規則[2000年東京都規則第94号]別表第1の第2類に定める特殊疾病に罹患している方、母子健康手帳の交付を受けた妊婦の方、産後1年を経過する月の前月末日までの子どもを養育する者ひとり親世帯の方) |
| 粗大ごみ収集 |
あり
|
| 生ごみ処理機助成金制度 |
あり
- 上限金額
- 20000円
- 上限比率
- 50.0%
|
※行政機関により公表していない地域及びデータがございます。東京23区以外の政令指定都市は、市全体のデータとして表示しています。
※提供データには細心の注意を払っておりますが、調査後に変更がある場合があります。 最新の情報につきましては各市区役所までお問い合わせいただくか、自治体HPなどをご確認ください。
港区の暮らしデータをもっと見る
-
- 貸店舗・事務所
-
- 賃料
- 509.99万円
- 住所
- 東京都豊島区南池袋1丁目
-
- 貸事務所
-
- 賃料
- 314.25万円
- 住所
- 東京都中央区八丁堀4丁目
-
- 貸事務所
-
- 賃料
- 280.65万円
- 住所
- 東京都渋谷区恵比寿西1丁目
-
- 貸店舗(建物一部)
-
- 賃料
- 233.92万円
- 住所
- 東京都中央区銀座8丁目
-
- 貸店舗(建物一部)
-
- 賃料
- 233.92万円
- 住所
- 東京都中央区銀座8丁目
-
- 貸店舗(建物一部)
-
- 賃料
- 220万円
- 住所
- 千葉県市川市市川1丁目
-
- 貸事務所
-
- 賃料
- 218.9万円
- 住所
- 東京都新宿区新宿2丁目
-
- 貸店舗(建物一部)
-
- 賃料
- 200万円
- 住所
- 千葉県船橋市本町4丁目
-
- 貸店舗・事務所
-
- 賃料
- 198万円
- 住所
- 東京都杉並区和泉4丁目
-
- 貸事務所
-
- 賃料
- 189.63万円
- 住所
- 東京都千代田区神田司町2丁目