貸事務所

東京都中央区築地1丁目 築地駅 貸事務所

情報提供元
アットホーム
賃料 46.49万円  (管理費等:125,162円)
礼金・敷金 なし / 422.64万円 保証金/敷引・償却 なし / -
交通
所在地 東京都中央区築地1丁目周辺地図
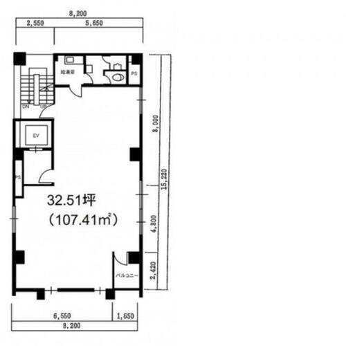
使用部分面積 107.47m2 土地面積 -
築年月 1978年5月 築年数 築47年7ヶ月
お問い合わせ先
(株)エステートエージェンシー 東京支店
お問い合わせ先
(株)エステートエージェンシー 東京支店

詳細情報

賃料 46.49万円  管理費等 125,162円 
敷金 422.64万円  礼金 なし 
保証金 なし  敷引・償却
所在地 東京都中央区築地1丁目周辺地図
交通
使用部分面積 107.47m2  土地面積  
坪単価 1.44万円  その他一時金  
権利金 その他費用  
維持費等   都市計画  
用途地域   接道状況  
地目   建物構造・所在階/階数 RC 4階/9階建 
建物名   築年月(築年数) 1978年5月(築47年7ヶ月) 
条件等   契約期間 2年 
現況 空  引渡可能時期 即時 
情報提供元 アットホーム [1148163613] 情報公開日
情報更新日 - 次回更新予定日 随時

設備など

24時間セキュリティ - 1階 - 2階以上
即引渡し可 飲食店可 - エレベーター
駐車場(近隣含) -        
設備 エレベーター・光ファイバー(ブロードバンド)・インターネット対応 
備考 当社掲載の物件は原則事務所用途となっております【飲食・トランクルーム・貸会議室・レンタルオフィス・福祉サービス等の業種不可となります】⇒それ以外の店舗用途の物件のご相談についてはお問い合わせください また、オフィス街の主要な物件は全て網羅しておりますので掲載物件以外に非公開物件からもご紹介可能です。・こちらの物件は【飲食・トランクルーム・貸会議室・福祉サービス等は不可となっております】・バイク置場:なし・駐輪場:なし・仲介手数料:1.1ヶ月 駐車場:空無 築年月:1978/05築 
特記事項  

東京都中央区築地1丁目 周辺地図情報

地図
※地図上に表示される物件の位置は付近住所に所在することを表すものであり、実際の物件所在地とは異なる場合がございます。
   正確な物件所在地は、取扱い不動産会社にお問い合わせください。
お問い合わせ先
(株)エステートエージェンシー 東京支店

不動産会社情報

お問い合わせ先 商号:(株)エステートエージェンシー 東京支店
免許番号:国土交通大臣免許(1)第9977号
所在地:千代田区神田鍛冶町3丁目3-9喜助新千代田ビル 3階
TEL:03-4400-6636
取引態様:仲介
管理コード:00000012068_003
所属協会など:(公社)東京都宅地建物取引業協会会員、(公社)首都圏不動産公正取引協議会加盟
共有する
QRコード
お問い合わせ先
(株)エステートエージェンシー 東京支店

中央区の暮らしデータ

人口などの統計情報

世帯数 92487世帯
人口総数 176835人
転入者数 18608人
転入率(人口1000人当たり)
105.23人
転出者数 16381人
転出率(人口1000人当たり)
92.63人
土地平均価格
住宅地
1480000円/m2
商業地
6484815円/m2

中央区の治安・ごみ収集情報

公共料金・インフラ

ガス料金(22m3使用した場合の月額) 東京瓦斯株式会社(東京地区等)3926円
水道料金(口径20mmで20m3の月額) 東京都水道局2816円
下水道料金(20m3を使用した場合の月額) 東京都下水道局2068円
下水道普及率 100.0%

安心・安全

建物火災出火件数 106件
人口10000人当たり
6.27件
刑法犯認知件数 1828件
人口1000人当たり
10.81件
ハザード・防災マップ あり

医療

一般病院総数 4ヶ所
一般診療所総数 778ヶ所
小児科医師数 59人
小児人口10000人当たり
24.65人
産婦人科医師数 68人
15~49歳女性人口1万人当たり
14.62人
介護保険料基準額(月額) 6300円

ごみ

家庭ごみ収集(可燃ごみ) 無料
備考
引越し等で、臨時に大量のごみを排出する場合は有料。
家庭ごみの分別方式 4分別10種〔燃やすごみ 燃やさないごみ プラマーク 資源(紙類[新聞、雑誌、ダンボール、雑紙]、びん、ペットボトル、缶類)〕
家庭ごみの戸別収集 一部実施(ふれあい収集)
粗大ごみ収集 あり
備考
有料。戸別収集。事前申込制。
生ごみ処理機助成金制度 なし
上限金額
-
上限比率
-
暮らしデータ提供元:生活ガイド.com
※行政機関により公表していない地域及びデータがございます。東京23区以外の政令指定都市は、市全体のデータとして表示しています。
※提供データには細心の注意を払っておりますが、調査後に変更がある場合があります。 最新の情報につきましては各市区役所までお問い合わせいただくか、自治体HPなどをご確認ください。
OCN×ドコモ光新規お申込みで合計最大137,280円相当おトク!特典の内訳・適用条件など詳細はこちら

中央区内の各駅の住みやすさ

掲載情報の著作権は提供元企業等に帰属します。
Copyright:(C) 2025 At Home Co.,Ltd
アプリで簡単 物件探し 大手不動産サイトの情報から一括検!プッシュ通知で物件を見逃さない
App Storeからダウンロード Google Playで手に入れよう QRコード