貸事務所

東京都千代田区西神田2丁目 九段下駅 貸事務所

情報提供元
アットホーム
賃料 76.45万円  (管理費等:なし)
礼金・敷金 なし / 278万円 保証金/敷引・償却 なし / -
交通
所在地 東京都千代田区西神田2丁目周辺地図
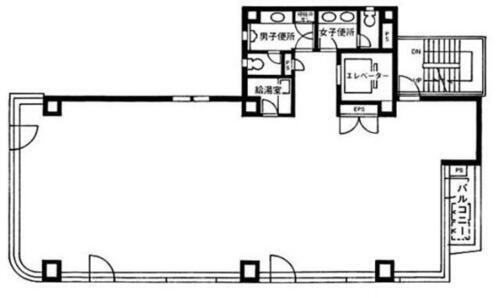
使用部分面積 147.53m2 土地面積 -
築年月 1991年11月 築年数 築34年1ヶ月
おすすめポイント
OAフロア
お問い合わせ先
(株)エステートエージェンシー 東京支店
お問い合わせ先
(株)エステートエージェンシー 東京支店

詳細情報

賃料 76.45万円  管理費等 なし 
敷金 278万円  礼金 なし 
保証金 なし  敷引・償却
所在地 東京都千代田区西神田2丁目周辺地図
交通
使用部分面積 147.53m2  土地面積  
坪単価 1.72万円  その他一時金  
権利金 その他費用  
維持費等   都市計画  
用途地域   接道状況  
地目   建物構造・所在階/階数 鉄骨 3階/8階建 
建物名   築年月(築年数) 1991年11月(築34年1ヶ月) 
条件等   契約期間 2年 
現況 空  引渡可能時期 即時 
情報提供元 アットホーム [1148254613] 情報公開日
情報更新日 - 次回更新予定日 随時

設備など

24時間セキュリティ - 1階 - 2階以上
即引渡し可 飲食店可 - エレベーター
駐車場(近隣含) -        
設備 エレベーター・光ファイバー(ブロードバンド)・インターネット対応・男女別トイレ 
備考 当社掲載の物件は原則事務所用途となっております【飲食・トランクルーム・貸会議室・レンタルオフィス・福祉サービス等の業種不可となります】⇒それ以外の店舗用途の物件のご相談についてはお問い合わせください また、オフィス街の主要な物件は全て網羅しておりますので掲載物件以外に非公開物件からもご紹介可能です。・こちらの物件は【飲食・トランクルーム・貸会議室・福祉サービス等は不可となっております】・バイク置場:なし・駐輪場:なし・仲介手数料:1.1ヶ月 駐車場:空無 築年月:1991/11築 
特記事項 OAフロア 

東京都千代田区西神田2丁目 周辺地図情報

地図
※地図上に表示される物件の位置は付近住所に所在することを表すものであり、実際の物件所在地とは異なる場合がございます。
   正確な物件所在地は、取扱い不動産会社にお問い合わせください。
お問い合わせ先
(株)エステートエージェンシー 東京支店

不動産会社情報

お問い合わせ先 商号:(株)エステートエージェンシー 東京支店
免許番号:国土交通大臣免許(1)第9977号
所在地:千代田区神田鍛冶町3丁目3-9喜助新千代田ビル 3階
TEL:03-4400-6636
取引態様:仲介
管理コード:00000000451_003
所属協会など:(公社)東京都宅地建物取引業協会会員、(公社)首都圏不動産公正取引協議会加盟
共有する
QRコード
お問い合わせ先
(株)エステートエージェンシー 東京支店

千代田区の暮らしデータ

人口などの統計情報

世帯数 36963世帯
人口総数 68755人
転入者数 8663人
転入率(人口1000人当たり)
126.00人
転出者数 7904人
転出率(人口1000人当たり)
114.96人
土地平均価格
住宅地
3460000円/m2
商業地
5812393円/m2

千代田区の治安・ごみ収集情報

公共料金・インフラ

ガス料金(22m3使用した場合の月額) 東京瓦斯株式会社(東京地区等)3926円
水道料金(口径20mmで20m3の月額) 東京都水道局2816円
下水道料金(20m3を使用した場合の月額) 東京都下水道局2068円
下水道普及率 100.0%

安心・安全

建物火災出火件数 133件
人口10000人当たり
19.95件
刑法犯認知件数 2376件
人口1000人当たり
35.63件
ハザード・防災マップ あり

医療

一般病院総数 15ヶ所
一般診療所総数 555ヶ所
小児科医師数 44人
小児人口10000人当たり
47.85人
産婦人科医師数 33人
15~49歳女性人口1万人当たり
19.79人
介護保険料基準額(月額) 5600円

ごみ

家庭ごみ収集(可燃ごみ) 一部有料
備考
10kg以上有料。45リットル1袋200円。
家庭ごみの分別方式 5分別13種〔燃やすごみ 燃やさないごみ 資源(新聞、雑誌、段ボール、紙パック、その他の紙類、びん、かん、ペットボトル) プラスチック 蛍光管等(乾電池・スプレー缶)〕 拠点回収:資源(使用済小型家電 古布 廃食料油)
家庭ごみの戸別収集 一部実施(新規集積所・共同集積所を廃止、分散した際に戸別収集となる)
粗大ごみ収集 あり
備考
有料。事前申込制。
生ごみ処理機助成金制度 あり
上限金額
30000円
上限比率
66.7%
暮らしデータ提供元:生活ガイド.com
※行政機関により公表していない地域及びデータがございます。東京23区以外の政令指定都市は、市全体のデータとして表示しています。
※提供データには細心の注意を払っておりますが、調査後に変更がある場合があります。 最新の情報につきましては各市区役所までお問い合わせいただくか、自治体HPなどをご確認ください。
OCN×ドコモ光新規お申込みで合計最大137,280円相当おトク!特典の内訳・適用条件など詳細はこちら

千代田区内の各駅の住みやすさ

他のエリアから探す

千代田区の詳細地域から店舗・事業用物件を探す

飯田橋一番町岩本町内神田内幸町大手町鍛冶町霞が関神田相生町神田淡路町神田和泉町神田岩本町神田小川町神田鍛冶町神田北乗物町神田紺屋町神田佐久間河岸神田佐久間町神田猿楽町神田神保町神田須田町神田駿河台神田多町神田司町神田富山町神田錦町神田西福田町神田練塀町神田東紺屋町神田東松下町神田平河町神田松永町神田美倉町神田三崎町神田美土代町紀尾井町九段北九段南麹町五番町三番町外神田永田町西神田二番町隼町東神田一ツ橋日比谷公園平河町富士見丸の内有楽町四番町六番町

近辺の市区から探す

川口市中央区港区新宿区文京区台東区墨田区江東区品川区目黒区世田谷区渋谷区中野区杉並区豊島区北区荒川区板橋区練馬区足立区葛飾区江戸川区

周辺の駅から探す

東京メトロ半蔵門線
表参道青山一丁目永田町半蔵門九段下神保町大手町三越前水天宮前
都営地下鉄三田線
巣鴨千石白山春日水道橋神保町大手町日比谷内幸町
都営地下鉄新宿線
新宿三丁目曙橋市ヶ谷九段下神保町小川町岩本町馬喰横山浜町
掲載情報の著作権は提供元企業等に帰属します。
Copyright:(C) 2025 At Home Co.,Ltd
アプリで簡単 物件探し 大手不動産サイトの情報から一括検!プッシュ通知で物件を見逃さない
App Storeからダウンロード Google Playで手に入れよう QRコード