貸駐車場
埼玉県狭山市大字堀兼 新狭山駅 貸駐車場
| 賃料 |
20万円 (管理費等:-) |
| 礼金・敷金 |
1ヶ月 / 2ヶ月 |
保証金/敷引・償却 |
なし / - |
| 交通 |
|
| 所在地 |
埼玉県狭山市大字堀兼周辺地図
|
| 使用部分面積 |
- |
土地面積 |
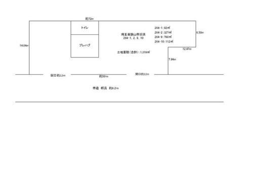
1319m2 |
| 築年月 |
- |
築年数 |
- |
- おすすめポイント
- 保証人不要/代行 ・都道府県道道沿いに面する
- お問い合わせ先
- いずみアクト(同) いずみアクト不動産部
- お問い合わせ先
- いずみアクト(同) いずみアクト不動産部
| 賃料 |
20万円 |
管理費等 |
- |
| 敷金 |
2ヶ月 |
礼金 |
1ヶ月 |
| 保証金 |
なし |
敷引・償却 |
- |
| 所在地 |
埼玉県狭山市大字堀兼周辺地図
|
| 交通 |
|
| 使用部分面積 |
|
土地面積 |
1319m2 |
| 坪単価 |
- |
その他一時金 |
|
| 権利金 |
- |
その他費用 |
|
| 維持費等 |
|
都市計画 |
|
| 用途地域 |
|
接道状況 |
南西9.2m公道接面50.0m |
| 地目 |
|
建物構造・所在階/階数 |
- |
| 建物名 |
|
築年月(築年数) |
- |
| 条件等 |
|
契約期間 |
2年 |
| 現況 |
空 |
引渡可能時期 |
即時 |
| 情報提供元 |
アットホーム [6988656811] |
情報公開日 |
|
| 情報更新日 |
- |
次回更新予定日 |
随時 |
設備など
| 24時間セキュリティ |
- |
1階 |
- |
2階以上 |
- |
| 即引渡し可 |
○ |
飲食店可 |
- |
エレベーター |
- |
| 駐車場(近隣含) |
- |
|
|
|
|
| 設備 |
|
| 備考 |
プレハブ付きの駐車場となります。1,319㎡と広いスペースがあります。運送会社様・資材置き場としての使用など様々な用途の相談可能です。・土地面積計測:公簿・常時200件以上の登録!借りたい物件を逃しません!来店不要※だから借りるまでのお手間は取らせません!※管理会社により来店をお願いする場合があります。・仲介手数料:1ヶ月 |
| 特記事項 |
保証人不要/代行 ・都道府県道道沿いに面する |
埼玉県狭山市大字堀兼 周辺地図情報
※地図上に表示される物件の位置は付近住所に所在することを表すものであり、実際の物件所在地とは異なる場合がございます。
正確な物件所在地は、取扱い不動産会社にお問い合わせください。
- お問い合わせ先
- いずみアクト(同) いずみアクト不動産部
不動産会社情報
| お問い合わせ先 |
商号:いずみアクト(同) いずみアクト不動産部 免許番号:神奈川県知事免許(1)第31933号 所在地:横浜市泉区和泉中央南4丁目10-20Oasis one 1階B TEL:045-443-9882 取引態様:仲介 管理コード: 所属協会など:(公社)神奈川県宅地建物取引業協会会員、(公社)首都圏不動産公正取引協議会加盟 |
共有する |
|
- お問い合わせ先
- いずみアクト(同) いずみアクト不動産部
人口などの統計情報
| 世帯数 |
63702世帯 |
| 人口総数 |
148872人 |
| 転入者数 |
6457人
- 転入率(人口1000人当たり)
- 43.37人
|
| 転出者数 |
5822人
- 転出率(人口1000人当たり)
- 39.11人
|
| 土地平均価格 |
- 住宅地
- 117127円/m2
- 商業地
- 246000円/m2
|
狭山市の治安・ごみ収集情報
公共料金・インフラ
| ガス料金(22m3使用した場合の月額) |
武州瓦斯株式会社4281円 入間ガス株式会社4384円 |
| 水道料金(口径20mmで20m3の月額) |
狭山市2420円 |
| 下水道料金(20m3を使用した場合の月額) |
狭山市1727円 |
| 下水道普及率 |
97.0% |
安心・安全
| 建物火災出火件数 |
15件
- 人口10000人当たり
- 1.01件
|
| 刑法犯認知件数 |
724件
- 人口1000人当たり
- 4.87件
|
| ハザード・防災マップ |
あり |
医療
| 一般病院総数 |
9ヶ所 |
| 一般診療所総数 |
77ヶ所 |
| 小児科医師数 |
18人
- 小児人口10000人当たり
- 12.07人
|
| 産婦人科医師数 |
3人
- 15~49歳女性人口1万人当たり
- 1.15人
|
| 介護保険料基準額(月額) |
5625円 |
ごみ
| 家庭ごみ収集(可燃ごみ) |
無料
|
| 家庭ごみの分別方式 |
4分別16種〔もやすごみ もやさないごみ 資源ごみ(古紙[新聞紙、ダンボール、雑誌・雑紙、牛乳パック]、古布、びん・缶、スプレー缶、プラスチック、ペットボトル、生ごみ) 有害ごみ(乾電池、ライター、水銀体温計・温度計、蛍光管等)〕 |
| 家庭ごみの戸別収集 |
一部実施(高齢者のみの世帯及び、身体障害者手帳1級または2級の交付を受けているひとり暮らし世帯で、自ら家庭ごみを集積所まで搬出することが困難で、身近な人などの協力も得られない世帯) |
| 粗大ごみ収集 |
あり
|
| 生ごみ処理機助成金制度 |
あり
- 上限金額
- 10000円
- 上限比率
- 50.0%
|
※行政機関により公表していない地域及びデータがございます。東京23区以外の政令指定都市は、市全体のデータとして表示しています。
※提供データには細心の注意を払っておりますが、調査後に変更がある場合があります。 最新の情報につきましては各市区役所までお問い合わせいただくか、自治体HPなどをご確認ください。
狭山市の暮らしデータをもっと見る
-
- 貸駐車場
-
- 賃料
- 99万円
- 住所
- 千葉県柏市藤ケ谷
-
- 貸駐車場
-
- 賃料
- 66万円
- 住所
- 千葉県柏市藤ケ谷
-
- 貸駐車場
-
- 賃料
- 66万円
- 住所
- 千葉県印西市高西新田
-
- 貸駐車場
-
- 賃料
- 48.4万円
- 住所
- 神奈川県厚木市船子
-
- 貸駐車場
-
- 賃料
- 29万円
- 住所
- 千葉県我孫子市中峠
-
- 貸駐車場
-
- 賃料
- 28万円
- 住所
- 千葉県白井市富塚
-
- 貸駐車場
-
- 賃料
- 22万円
- 住所
- 千葉県富里市御料
-
- 貸駐車場
-
- 賃料
- 15万円
- 住所
- 千葉県市原市海士有木
-
- 貸駐車場
-
- 賃料
- 12万円
- 住所
- 千葉県市原市菊間
-
- 貸駐車場
-
- 賃料
- 11万円
- 住所
- 埼玉県狭山市大字下奥富