貸倉庫

埼玉県加須市南篠崎2丁目 花崎駅 貸倉庫

情報提供元
アットホーム
賃料 243.08万円  (管理費等:24,750円)
礼金・敷金 1ヶ月 / 4ヶ月 保証金/敷引・償却 なし / -
交通
所在地 埼玉県加須市南篠崎2丁目周辺地図
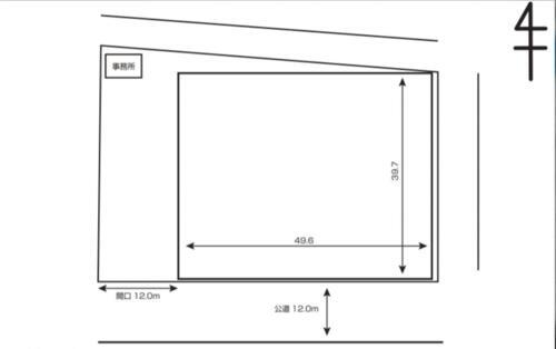
使用部分面積 2029.15m2 土地面積 2909.62m2
築年月 1991年3月 築年数 築34年10ヶ月
お問い合わせ先
(有)インテリアプランニング
お問い合わせ先
(有)インテリアプランニング

詳細情報

賃料 243.08万円  管理費等 24,750円 
敷金 4ヶ月  礼金 1ヶ月 
保証金 なし  敷引・償却
所在地 埼玉県加須市南篠崎2丁目周辺地図
交通
  • 東武伊勢崎・大師線 花崎駅 徒歩20分乗換案内
使用部分面積 2029.15m2  土地面積 2909.62m2 
坪単価 0.4万円  その他一時金  
権利金 その他費用  
維持費等   都市計画  
用途地域 1種住居  接道状況  
地目   建物構造・所在階/階数 鉄骨 平屋建て 
建物名   築年月(築年数) 1991年3月(築34年10ヶ月) 
条件等 定期借家  契約期間 5年 
現況 居住中  引渡可能時期 2026年1月1日 
情報提供元 アットホーム [6987697368] 情報公開日
情報更新日 - 次回更新予定日 随時

設備など

24時間セキュリティ - 1階 - 2階以上 -
即引渡し可 - 飲食店可 - エレベーター -
駐車場(近隣含)        
設備 トイレ・駐輪場・バイク置き場 
備考 ・現況優先・敷金(保証金)償却:1ヶ月・保証会社:原則要加入・業種:要相談・土地面積計測:公簿・★弊社は事業用不動産専門店です★見学希望お気軽にご相談ください★大型車両進入可能な大型平屋倉庫です。事務所付きも嬉しいポイントです。その他、ご質問や物件探しもお気軽にご相談下さい。・バイク置場:有(無料)・駐輪場:有(無料)・仲介手数料:1.1ヶ月 駐車場:有 無料 築年月:1991/03築 
特記事項  

埼玉県加須市南篠崎2丁目 周辺地図情報

地図
※地図上に表示される物件の位置は付近住所に所在することを表すものであり、実際の物件所在地とは異なる場合がございます。
   正確な物件所在地は、取扱い不動産会社にお問い合わせください。
お問い合わせ先
(有)インテリアプランニング
アピールポイント
加須市の大型車両進入可能な大型平屋貸倉庫です。事務所付きも嬉しいポイントです。倉庫内に柱がないため、使い勝手良好ですよ。★見学希望お気軽にご相談ください★(電話、ライン、メール問い合わせをご用意しております)空き確認や見学希望、各種お問合せ、物件探しの依頼は電話でも承っております。お電話の場合は03-6820-6462または046-212-2988(担当直通)までお気軽にご連絡ください。当社は事業用不動産専門店として、関東全域と静岡県の物件を取り扱っております。物件のお探しもご相談ください。ご条件をお伺いして、物件情報をご提供させていただきます。丁寧に一生懸命対応させていただきます。是非、なんでもお気軽にご相談ください。

不動産会社情報

お問い合わせ先 商号:(有)インテリアプランニング
免許番号:東京都知事免許(2)第102028号
所在地:中央区日本橋人形町3丁目3-5
TEL:03-6820-6462
取引態様:仲介
管理コード:
所属協会など:(公社)全日本不動産協会会員、(公社)首都圏不動産公正取引協議会加盟
共有する
QRコード
お問い合わせ先
(有)インテリアプランニング

加須市の暮らしデータ

人口などの統計情報

世帯数 44204世帯
人口総数 112163人
転入者数 4837人
転入率(人口1000人当たり)
43.12人
転出者数 3905人
転出率(人口1000人当たり)
34.82人
土地平均価格
住宅地
31677円/m2
商業地
59250円/m2

加須市の治安・ごみ収集情報

公共料金・インフラ

ガス料金(22m3使用した場合の月額) 東彩ガス株式会社(越谷・春日部地区)4893円
東彩ガス株式会社(北本・桶川地区)4609円
鷲宮ガス株式会社5094円
水道料金(口径20mmで20m3の月額) 加須市3027円
下水道料金(20m3を使用した場合の月額) 加須市1952円
下水道普及率 52.8%

安心・安全

建物火災出火件数 32件
人口10000人当たり
2.87件
刑法犯認知件数 642件
人口1000人当たり
5.75件
ハザード・防災マップ あり

医療

一般病院総数 5ヶ所
一般診療所総数 49ヶ所
小児科医師数 20人
小児人口10000人当たり
16.80人
産婦人科医師数 1人
15~49歳女性人口1万人当たり
0.50人
介護保険料基準額(月額) 6031円

ごみ

家庭ごみ収集(可燃ごみ) 有料
備考
指定ごみ袋有料(燃えるごみ・燃えないごみ)。その他の収集ごみは無料(集積所のコンテナ、透明・半透明の袋)。
家庭ごみの分別方式 4分別17種〔燃やすごみ 資源ごみ(新聞紙・チラシ、雑誌・その他の紙、ダンボール、飲料用紙パック、布、スチール缶、アルミ缶、飲食用びん、ペットボトル、プラスチック類・ゴム製品) 危険ごみ(スプレー缶・ガス缶、蛍光管、ライター、乾電池、水銀体温計) 燃やさないごみ〕
家庭ごみの戸別収集 未実施
粗大ごみ収集 あり
備考
有料。戸別収集。事前申込制。500円/品。
生ごみ処理機助成金制度 あり
上限金額
40000円
上限比率
100.0%
暮らしデータ提供元:生活ガイド.com
※行政機関により公表していない地域及びデータがございます。東京23区以外の政令指定都市は、市全体のデータとして表示しています。
※提供データには細心の注意を払っておりますが、調査後に変更がある場合があります。 最新の情報につきましては各市区役所までお問い合わせいただくか、自治体HPなどをご確認ください。
OCN×ドコモ光新規お申込みで合計最大137,280円相当おトク!特典の内訳・適用条件など詳細はこちら

加須市内の各駅の住みやすさ

他のエリアから探す

加須市の詳細地域から店舗・事業用物件を探す

上崎上種足上三俣川口騎西北小浜北下新井久下下高柳下三俣中央道地根古屋旗井花崎花崎北富士見町不動岡間口南篠崎南町

近辺の市区から探す

邑楽郡板倉町邑楽郡明和町羽生市鴻巣市久喜市幸手市

周辺の駅から探す

東武伊勢崎・大師線
東武動物公園和戸久喜鷲宮花崎加須南羽生羽生川俣
掲載情報の著作権は提供元企業等に帰属します。
Copyright:(C) 2025 At Home Co.,Ltd
アプリで簡単 物件探し 大手不動産サイトの情報から一括検!プッシュ通知で物件を見逃さない
App Storeからダウンロード Google Playで手に入れよう QRコード