貸店舗・事務所
埼玉県さいたま市南区南浦和2丁目 南浦和駅 貸店舗・事務所
| 賃料 |
97.09万円 (管理費等:138,688円) |
| 礼金・敷金 |
1ヶ月 / なし |
保証金/敷引・償却 |
6ヶ月 / - |
| 交通 |
|
| 所在地 |
埼玉県さいたま市南区南浦和2丁目周辺地図
|
| 使用部分面積 |
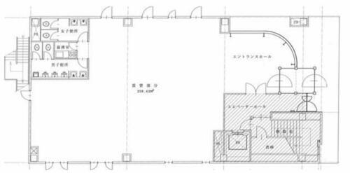
208.42m2 |
土地面積 |
- |
| 築年月 |
1990年2月 |
築年数 |
築35年11ヶ月 |
- おすすめポイント
- 角部屋・飲食店不可・24時間セキュリティ・耐震構造(新耐震基準)・都道府県道道沿いに面する
| 賃料 |
97.09万円 |
管理費等 |
138,688円 |
| 敷金 |
なし |
礼金 |
1ヶ月 |
| 保証金 |
6ヶ月 |
敷引・償却 |
- |
| 所在地 |
埼玉県さいたま市南区南浦和2丁目周辺地図
|
| 交通 |
- JR京浜東北・根岸線 南浦和駅 徒歩3分乗換案内
- JR武蔵野線 南浦和駅 徒歩3分乗換案内
- JR京浜東北・根岸線 浦和駅 徒歩26分乗換案内
|
| 使用部分面積 |
208.42m2 |
土地面積 |
|
| 坪単価 |
1.54万円 |
その他一時金 |
|
| 権利金 |
- |
その他費用 |
|
| 維持費等 |
一般ごみ処分費/月6600円 |
都市計画 |
|
| 用途地域 |
商業地域 |
接道状況 |
|
| 地目 |
|
建物構造・所在階/階数 |
RC 1階/6階建 |
| 建物名 |
|
築年月(築年数) |
1990年2月(築35年11ヶ月) |
| 条件等 |
|
契約期間 |
3年 |
| 現況 |
空 |
引渡可能時期 |
相談 |
| 情報提供元 |
アットホーム [6982568052] |
情報公開日 |
|
| 情報更新日 |
- |
次回更新予定日 |
随時 |
設備など
| 24時間セキュリティ |
○ |
1階 |
○ |
2階以上 |
- |
| 即引渡し可 |
- |
飲食店可 |
- |
エレベーター |
○ |
| 駐車場(近隣含) |
- |
|
|
|
|
| 設備 |
エアコン・給湯・トイレ・エレベーター・トイレ2ヶ所・防犯カメラ・男女別トイレ |
| 備考 |
現況渡し。使用用途業種要相談(飲食業は出店不可)普通借3年、更新料:新賃料の1ヵ月、更新事務手数料:新賃料の0.25ヵ月分・賃貸保証等:加入要(指定保証会社加入のこと。初回保証料、年間又は月額保証料など借主負担有。連帯保証人1名など。)・保険等:要(事業用火災)・維持費等:一般ごみ処分費6,600円/月・看板使用料77,000円/月・1階部分のテナントの募集です。広さは、約63.04坪!1フロア1テナント!事前予約の上、現地にて内見可能です。・バイク置場:なし・駐輪場:なし 駐車場:無 築年月:1990/02築 |
| 特記事項 |
角部屋・飲食店不可・24時間セキュリティ・耐震構造(新耐震基準)・都道府県道道沿いに面する |
埼玉県さいたま市南区南浦和2丁目 周辺地図情報
※地図上に表示される物件の位置は付近住所に所在することを表すものであり、実際の物件所在地とは異なる場合がございます。
正確な物件所在地は、取扱い不動産会社にお問い合わせください。
アピールポイント
いつもご覧いただきましてありがとうございます!【オノテナ】こと株式会社オノデラ不動産です!弊社、テナント物件を中心にネットや現地調査で情報を集めております!『あなたの物件探し終わらせましょう!』をスローガンとしておりまして今回ご覧いただきましたアットホームだけでなく、自社HPやインスタグラムで物件をご紹介しております!特にインスタグラムは、グラマーばりの投稿頻度です!フォローして頂ければ新着情報をたくさんお届けできるかと思います!投稿が多すぎて鬱陶しくなる時期があるかもしれませんが、、、(笑)お付き合いください!(笑)ご不明な点等御座いましたらお気軽にお問い合わせください!今後とも【オノテナ】を宜しくお願い致します!
不動産会社情報
| お問い合わせ先 |
商号:(株)オノデラ不動産 免許番号:埼玉県知事免許(2)第23726号 所在地:さいたま市浦和区高砂3丁目7-4日建第二県庁前ビル1F TEL:048-767-4710 取引態様:仲介 管理コード: 所属協会など:(公社)埼玉県宅地建物取引業協会会員、(公社)首都圏不動産公正取引協議会加盟 |
共有する |
|
人口などの統計情報
| 世帯数 |
581501世帯 |
| 人口総数 |
1345012人 |
| 転入者数 |
83362人
- 転入率(人口1000人当たり)
- 61.98人
|
| 転出者数 |
73089人
- 転出率(人口1000人当たり)
- 54.34人
|
| 土地平均価格 |
- 住宅地
- 205305円/m2
- 商業地
- 715276円/m2
|
さいたま市南区の治安・ごみ収集情報
公共料金・インフラ
| ガス料金(22m3使用した場合の月額) |
東京瓦斯株式会社(東京地区等)3926円 東彩ガス株式会社(越谷・春日部地区)4893円 |
| 水道料金(口径20mmで20m3の月額) |
さいたま市3498円 |
| 下水道料金(20m3を使用した場合の月額) |
さいたま市2459円 |
| 下水道普及率 |
95.1% |
安心・安全
| 建物火災出火件数 |
176件
- 人口10000人当たり
- 1.33件
|
| 刑法犯認知件数 |
8745件
- 人口1000人当たり
- 6.60件
|
| ハザード・防災マップ |
あり |
医療
| 一般病院総数 |
35ヶ所 |
| 一般診療所総数 |
1028ヶ所 |
| 小児科医師数 |
318人
- 小児人口10000人当たり
- 18.64人
|
| 産婦人科医師数 |
80人
- 15~49歳女性人口1万人当たり
- 2.82人
|
| 介護保険料基準額(月額) |
6406円 |
ごみ
| 家庭ごみ収集(可燃ごみ) |
無料
|
| 家庭ごみの分別方式 |
5分別17種〔資源物1類(びん、かん、ペットボトル、容器包装プラスチック) 資源物2類(新聞、ダンボール、牛乳パック、雑誌類、その他の紙、繊維) 有害危険ごみ(蛍光管、乾電池、スプレーかん・カートリッジ式ボンベ、水銀体温計、ライター) もえないごみ もえるごみ〕 拠点回収:使用済小型家電 |
| 家庭ごみの戸別収集 |
一部実施(ふれあい収集) |
| 粗大ごみ収集 |
あり
|
| 生ごみ処理機助成金制度 |
あり
- 上限金額
- 20000円
- 上限比率
- 50.0%
|
※行政機関により公表していない地域及びデータがございます。東京23区以外の政令指定都市は、市全体のデータとして表示しています。
※提供データには細心の注意を払っておりますが、調査後に変更がある場合があります。 最新の情報につきましては各市区役所までお問い合わせいただくか、自治体HPなどをご確認ください。
さいたま市南区の暮らしデータをもっと見る
-
- 貸事務所
-
- 賃料
- 1543.01万円
- 住所
- 埼玉県さいたま市中央区上落合8丁目
-
- 貸店舗・事務所
-
- 賃料
- 257.46万円
- 住所
- 埼玉県さいたま市中央区上落合2丁目
-
- 貸店舗・事務所
-
- 賃料
- 170.68万円
- 住所
- 埼玉県さいたま市浦和区高砂2丁目
-
- 貸店舗・事務所
-
- 賃料
- 151.52万円
- 住所
- 埼玉県さいたま市大宮区大門町2丁目
-
- 貸店舗・事務所
-
- 賃料
- 142.33万円
- 住所
- 埼玉県さいたま市大宮区大門町2丁目
-
- 貸店舗・事務所
-
- 賃料
- 115.92万円
- 住所
- 埼玉県さいたま市浦和区高砂2丁目
-
- 貸店舗・事務所
-
- 賃料
- 93.5万円
- 住所
- 埼玉県さいたま市見沼区東大宮4丁目
-
- 貸店舗・事務所
-
- 賃料
- 90.23万円
- 住所
- 埼玉県さいたま市大宮区宮町4丁目
-
- 貸倉庫
-
- 賃料
- 88万円
- 住所
- 埼玉県蕨市南町4丁目
-
- 貸倉庫
-
- 賃料
- 84.98万円
- 住所
- 埼玉県吉川市大字川藤