貸店舗(建物一部)

AWANOビル 宇都宮駅東口駅 貸店舗(建物一部)

情報提供元
アットホーム
AWANOビル
賃料 27.5万円  (管理費等:-)
礼金・敷金 なし / なし 保証金/敷引・償却 なし / -
交通
所在地 栃木県宇都宮市宿郷1丁目周辺地図
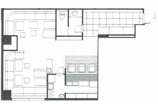
使用部分面積 64.3m2 土地面積 -
築年月 2009年3月 築年数 築16年9ヶ月
おすすめポイント
飲食店可・居抜き

詳細情報

賃料 27.5万円  管理費等
敷金 なし  礼金 なし 
保証金 なし  敷引・償却
所在地 栃木県宇都宮市宿郷1丁目周辺地図
交通
  • 宇都宮芳賀ライトレール線 宇都宮駅東口駅 徒歩6分乗換案内
  • JR東北本線 宇都宮駅 徒歩8分乗換案内
  • 東武宇都宮線 東武宇都宮駅 徒歩29分乗換案内
使用部分面積 64.3m2  土地面積  
坪単価 1.42万円  その他一時金  
権利金 その他費用  
維持費等   都市計画  
用途地域   接道状況  
地目   建物構造・所在階/階数 RC 2階/5階建 
建物名 AWANOビル  築年月(築年数) 2009年3月(築16年9ヶ月) 
条件等   契約期間 2年 
現況 空  引渡可能時期 相談 
情報提供元 アットホーム [6988259429] 情報公開日
情報更新日 - 次回更新予定日 随時

設備など

24時間セキュリティ - 1階 - 2階以上
即引渡し可 - 飲食店可 エレベーター -
駐車場(近隣含) -        
設備 冷房・エアコン・給湯・トイレ 
備考 退去時清算金¥500,000 ゴミ処分費込み リース店舗 カラオケ指定有(第一興商)・賃貸保証等:加入要(総賃料総額×100%)・保険等:要2年・東口の繁華街の中心の立地で綺麗な居抜き店舗です★ 駐車場:無 築年月:2009/03築 
特記事項 飲食店可・居抜き 

栃木県宇都宮市宿郷1丁目 周辺地図情報

地図
※地図上に表示される物件の位置は付近住所に所在することを表すものであり、実際の物件所在地とは異なる場合がございます。
   正確な物件所在地は、取扱い不動産会社にお問い合わせください。

不動産会社情報

お問い合わせ先 商号:(株)明成興産
免許番号:栃木県知事免許(13)第1795号
所在地:宇都宮市材木町5-3
TEL:028-639-2103
取引態様:仲介
管理コード:
所属協会など:(公社)栃木県宅地建物取引業協会会員、(公社)首都圏不動産公正取引協議会加盟
共有する
QRコード

宇都宮市の暮らしデータ

人口などの統計情報

世帯数 230546世帯
人口総数 515831人
転入者数 20141人
転入率(人口1000人当たり)
39.05人
転出者数 19049人
転出率(人口1000人当たり)
36.93人
土地平均価格
住宅地
62324円/m2
商業地
148642円/m2

宇都宮市の治安・ごみ収集情報

公共料金・インフラ

ガス料金(22m3使用した場合の月額) 東京瓦斯株式会社(東京地区等)3926円
堀川産業株式会社(宇都宮南部地区)5235円
水道料金(口径20mmで20m3の月額) 宇都宮市3278円
下水道料金(20m3を使用した場合の月額) 宇都宮市2695円
下水道普及率 91.3%

安心・安全

建物火災出火件数 61件
人口10000人当たり
1.18件
刑法犯認知件数 3181件
人口1000人当たり
6.13件
ハザード・防災マップ あり

医療

一般病院総数 27ヶ所
一般診療所総数 438ヶ所
小児科医師数 113人
小児人口10000人当たり
17.90人
産婦人科医師数 25人
15~49歳女性人口1万人当たり
2.49人
介護保険料基準額(月額) 5735円

ごみ

家庭ごみ収集(可燃ごみ) 無料
備考
-
家庭ごみの分別方式 4分別14種〔資源物(新聞、ダンボール、雑誌、その他の紙、紙パック、布類、びん缶類、ペットボトル、白色トレイ、プラスチック製容器包装) 焼却ごみ 不燃ごみ その他危険ごみ 電池類〕 拠点回収:剪定枝 廃食用油 使用済小型家電 インクカートリッジ
家庭ごみの戸別収集 一部実施(【ふれあい収集】一部地域のみ実施。高齢者や障がい者のうち、親族や近所などから支援を受けられず、自力でごみを出すことが困難な方を対象に実施)
粗大ごみ収集 あり
備考
有料。戸別収集。事前申込制。840円/点。清掃センターに持ち込める場合は無料。
生ごみ処理機助成金制度 あり
上限金額
40000円
上限比率
50.0%
暮らしデータ提供元:生活ガイド.com
※行政機関により公表していない地域及びデータがございます。東京23区以外の政令指定都市は、市全体のデータとして表示しています。
※提供データには細心の注意を払っておりますが、調査後に変更がある場合があります。 最新の情報につきましては各市区役所までお問い合わせいただくか、自治体HPなどをご確認ください。
OCN×ドコモ光新規お申込みで合計最大137,280円相当おトク!特典の内訳・適用条件など詳細はこちら

他のエリアから探す

宇都宮市の詳細地域から店舗・事業用物件を探す

明保野町池上町石井町石那田町泉が丘泉町一条一の沢一番町今泉今泉新町今泉町今宮岩曽町インターパーク駅前通り江曽島江曽島町江野町大曽大塚町大通り大谷町小幡海道町上大曽町上欠町上籠谷町上田原町上戸祭上戸祭町川田町川俣町河原町菊水町北一の沢町京町清住清原工業団地清原台越戸越戸町鐺山町駒生駒生町五代幸町栄町さつきさるやま町三番町材木町下荒針町下岡本町下河原下栗下栗町下田原町下戸祭下平出町宿郷昭和白沢町新富町新町城東城南末広雀の宮砂田町千波町高砂町宝木町宝木本町滝谷町竹林町田野町大寛台新田中央中央本町鶴田鶴田町天神伝馬町東谷町砥上町徳次郎町戸祭戸祭元町問屋町中一の沢町中今泉中岡本町中河原町中久保中里町中戸祭中戸祭町仲町西西一の沢町西刑部町西川田西川田本町西川田町西川田南西大寛西原町新里町二番町野高谷町野沢町花園町花房塙田針ケ谷針ヶ谷町馬場通り東今泉東宿郷東宝木町東塙田東町東峰町東簗瀬東横田町日の出氷室町兵庫塚兵庫塚町平出工業団地平出町平松町平松本町富士見が丘二荒町双葉不動前星が丘細谷町本町本丸町曲師町松が峰松原操町瑞穂みどり野町南一の沢町南大通り南高砂町峰町宮園町宮町宮みらい御幸ケ原町御幸町御幸本町元今泉八千代簗瀬簗瀬町大和山本弥生ゆいの杜陽東陽南横田新町若草若松原

近辺の市区から探す

鹿沼市塩谷郡高根沢町

周辺の駅から探す

東北本線
小金井自治医大石橋雀宮宇都宮岡本宝積寺氏家|蒲須坂
東武鉄道宇都宮線
安塚西川田江曽島南宇都宮東武宇都宮
宇都宮芳賀ライト線
宇都宮駅東口東宿郷駅東公園前陽東3丁目
掲載情報の著作権は提供元企業等に帰属します。
Copyright:(C) 2025 At Home Co.,Ltd
アプリで簡単 物件探し 大手不動産サイトの情報から一括検!プッシュ通知で物件を見逃さない
App Storeからダウンロード Google Playで手に入れよう QRコード