貸工場

貸工場、天井クレーンつき 貸工場

情報提供元
アットホーム
貸工場、天井クレーンつき
賃料 39.6万円  (管理費等:-)
礼金・敷金 なし / 1ヶ月 保証金/敷引・償却 なし / -
交通
  • JR常磐線鹿島駅徒歩3000m
所在地 福島県南相馬市鹿島区塩崎字房田周辺地図
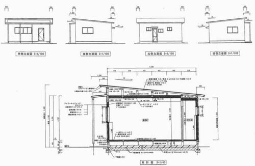
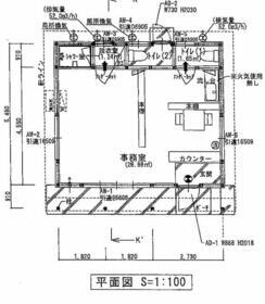
使用部分面積 427.79m2 土地面積 2233.61m2
築年月 1991年4月 築年数 築34年9ヶ月
おすすめポイント
都道府県道道沿いに面する

詳細情報

賃料 39.6万円  管理費等
敷金 1ヶ月  礼金 なし 
保証金 なし  敷引・償却
所在地 福島県南相馬市鹿島区塩崎字房田周辺地図
交通
  • JR常磐線鹿島駅徒歩3000m
使用部分面積 427.79m2  土地面積 2233.61m2 
坪単価 0.31万円  その他一時金  
権利金 その他費用  
維持費等   都市計画  
用途地域 無指定  接道状況  
地目   建物構造・所在階/階数 鉄骨 平屋建て 
建物名 貸工場、天井クレーンつき  築年月(築年数) 1991年4月(築34年9ヶ月) 
条件等   契約期間 2年 
現況 空  引渡可能時期 即時 
情報提供元 アットホーム [6982041874] 情報公開日
情報更新日 - 次回更新予定日 随時

設備など

24時間セキュリティ - 1階 2階以上 -
即引渡し可 飲食店可 - エレベーター -
駐車場(近隣含) -        
設備  
備考 令和8年2月中旬 事務所新設予定天井クレーン(2.9トン×2台)稼働できます。低圧電力で使用可、天井高7m・賃貸保証等:利用可(保証会社初回保証料 賃料の100%)・土地面積計測:公簿・天井クレーン(2.9トン×2台)稼働できます。低圧電力で使用可    天井高7m 築年月:1991/04築 
特記事項 都道府県道道沿いに面する 

福島県南相馬市鹿島区塩崎字房田 周辺地図情報

地図
※地図上に表示される物件の位置は付近住所に所在することを表すものであり、実際の物件所在地とは異なる場合がございます。
   正確な物件所在地は、取扱い不動産会社にお問い合わせください。
アピールポイント
原町区と鹿島区の間の場所に位置し、国道6号線までのアクセスは車で約5分程度

不動産会社情報

お問い合わせ先 商号:(有)サン・ホーム
免許番号:福島県知事免許(4)第2868号
所在地:南相馬市原町区本陣前3丁目142
TEL:0244-24-3462
取引態様:仲介
管理コード:
所属協会など:(公社)全日本不動産協会会員、東北地区不動産公正取引協議会加盟
共有する
QRコード

南相馬市の暮らしデータ

人口などの統計情報

世帯数 25177世帯
人口総数 56618人
転入者数 1854人
転入率(人口1000人当たり)
32.75人
転出者数 2082人
転出率(人口1000人当たり)
36.77人
土地平均価格
住宅地
19751円/m2
商業地
41200円/m2

南相馬市の治安・ごみ収集情報

公共料金・インフラ

ガス料金(22m3使用した場合の月額) 相馬ガス株式会社4649円
水道料金(口径20mmで20m3の月額) 相馬地方広域水道企業団4284円
南相馬市(原町)4581円
南相馬市(小高)4616円
南相馬市(小高北部・西部 簡易水道)4510円
下水道料金(20m3を使用した場合の月額) 南相馬市(原町処理区)2722円
南相馬市(小高処理区)2970円
南相馬市(鹿島処理区)3107円
下水道普及率 55.8%

安心・安全

建物火災出火件数 8件
人口10000人当たり
1.36件
刑法犯認知件数 249件
人口1000人当たり
4.22件
ハザード・防災マップ あり

医療

一般病院総数 4ヶ所
一般診療所総数 39ヶ所
小児科医師数 14人
小児人口10000人当たり
28.16人
産婦人科医師数 4人
15~49歳女性人口1万人当たり
4.59人
介護保険料基準額(月額) 5900円

ごみ

家庭ごみ収集(可燃ごみ) 無料
備考
-
家庭ごみの分別方式 3分別17種〔燃えるごみ 燃えないごみ(不燃物[せともの類・ガラス類・家電製品・刃物・油びん及び缶・金属類、かさの骨等]、危険ごみ[カセットボンベ・スプレー缶、ライター]、有害ごみ[乾電池・水銀体温計、蛍光管・蛍光ボール]) 資源ごみ(紙類[新聞紙・折込チラシ、雑誌類、段ボール、紙パック、その他紙]、びん類、缶類、プラスチック製容器包装、【小高区及び鹿島区のみ】ペットボトル、白色トレイ〕 拠点回収:小型家電 【原町区のみ】ペットボトル 白色トレイ)
家庭ごみの戸別収集 一部実施(家庭ごみをごみ集積所に持ち出すことが困難な高齢者及び障がい者に対し、戸別に訪問して家庭ごみを収集)
粗大ごみ収集 なし
備考
自己搬入。もしくは許可業者へ処理を依頼。有料。
生ごみ処理機助成金制度 あり
上限金額
30000円
上限比率
50.0%
暮らしデータ提供元:生活ガイド.com
※行政機関により公表していない地域及びデータがございます。東京23区以外の政令指定都市は、市全体のデータとして表示しています。
※提供データには細心の注意を払っておりますが、調査後に変更がある場合があります。 最新の情報につきましては各市区役所までお問い合わせいただくか、自治体HPなどをご確認ください。
OCN×ドコモ光新規お申込みで合計最大137,280円相当おトク!特典の内訳・適用条件など詳細はこちら

南相馬市内の各駅の住みやすさ

福島県南相馬市で他のジャンルから探す

掲載情報の著作権は提供元企業等に帰属します。
Copyright:(C) 2025 At Home Co.,Ltd
アプリで簡単 物件探し 大手不動産サイトの情報から一括検!プッシュ通知で物件を見逃さない
App Storeからダウンロード Google Playで手に入れよう QRコード