貸店舗・事務所

イマス六丁の目北町事務所 荒井駅 貸店舗・事務所

情報提供元
アットホーム
イマス六丁の目北町事務所
賃料 49.5万円  (管理費等:-)
礼金・敷金 2ヶ月 / 8ヶ月 保証金/敷引・償却 なし / -
交通
所在地 宮城県仙台市若林区六丁の目北町周辺地図
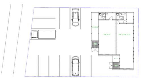
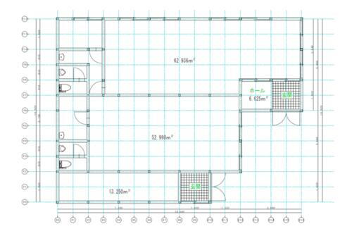
使用部分面積 135.8m2 土地面積 490.21m2
築年月 1985年9月 築年数 築40年4ヶ月
おすすめポイント
駐車場3台分以上・飲食店可
お問い合わせ先
(株)イマス 復興事業部仙台営業所
お問い合わせ先
(株)イマス 復興事業部仙台営業所

詳細情報

賃料 49.5万円  管理費等
敷金 8ヶ月  礼金 2ヶ月 
保証金 なし  敷引・償却
所在地 宮城県仙台市若林区六丁の目北町周辺地図
交通
  • 仙台市地下鉄東西線 荒井駅 徒歩15分乗換案内
  • 仙台市地下鉄東西線 六丁の目駅 徒歩20分乗換案内
使用部分面積 135.8m2  土地面積 490.21m2 
坪単価 1.21万円  その他一時金  
権利金 その他費用  
維持費等   都市計画  
用途地域 準工業  接道状況 西  
地目   建物構造・所在階/階数 木造 平屋建て 
建物名 イマス六丁の目北町事務所  築年月(築年数) 1985年9月(築40年4ヶ月) 
条件等   契約期間 3年 
現況 空  引渡可能時期 即時 
情報提供元 アットホーム [6988179213] 情報公開日
情報更新日 - 次回更新予定日 随時

設備など

24時間セキュリティ - 1階 2階以上 -
即引渡し可 飲食店可 エレベーター -
駐車場(近隣含)        
設備 エアコン・トイレ・収納スペース・プロパンガス・駐輪場・トイレ2ヶ所・バイク置き場・男女別トイレ 
備考 問い合わせは(株)イマス仙台営業所TEL:022-281-8591までお気軽にご連絡ください。・土地面積計測:公簿・六丁の目の事務所物件★無料駐車場10台分あり!仙台東ICまで1分の好立地*事務所や物流倉庫の軽作業にぴったりの物件です!・バイク置場:有(無料)・駐輪場:有(無料)・仲介手数料:不要 駐車場:有 無料 築年月:1985/09築 
特記事項 駐車場3台分以上・飲食店可 

宮城県仙台市若林区六丁の目北町 周辺地図情報

地図
※地図上に表示される物件の位置は付近住所に所在することを表すものであり、実際の物件所在地とは異なる場合がございます。
   正確な物件所在地は、取扱い不動産会社にお問い合わせください。
お問い合わせ先
(株)イマス 復興事業部仙台営業所
アピールポイント
敷地内駐車場10台(無料)地下鉄でも車でもアクセスしやすい立地!倉庫スペース有り*賃料・初期費用・内装仕様変更等のご相談もお気軽にご相談ください。

不動産会社情報

お問い合わせ先 商号:(株)イマス 復興事業部仙台営業所
免許番号:国土交通大臣免許(6)第5566号
所在地:仙台市若林区舟丁16小林ビル2階F号室
TEL:022-281-8591
取引態様:貸主
管理コード:
所属協会など:(公社)全日本不動産協会会員、東北地区不動産公正取引協議会加盟
共有する
QRコード
お問い合わせ先
(株)イマス 復興事業部仙台営業所

仙台市若林区の暮らしデータ

人口などの統計情報

世帯数 524651世帯
人口総数 1066362人
転入者数 65750人
転入率(人口1000人当たり)
61.66人
転出者数 62390人
転出率(人口1000人当たり)
58.51人
土地平均価格
住宅地
139213円/m2
商業地
638309円/m2

仙台市若林区の治安・ごみ収集情報

公共料金・インフラ

ガス料金(22m3使用した場合の月額) 仙台市4867円
水道料金(口径20mmで20m3の月額) 仙台市4290円
下水道料金(20m3を使用した場合の月額) 仙台市1917円
下水道普及率 98.7%

安心・安全

建物火災出火件数 153件
人口10000人当たり
1.40件
刑法犯認知件数 6087件
人口1000人当たり
5.55件
ハザード・防災マップ あり

医療

一般病院総数 47ヶ所
一般診療所総数 950ヶ所
小児科医師数 289人
小児人口10000人当たり
23.24人
産婦人科医師数 115人
15~49歳女性人口1万人当たり
5.01人
介護保険料基準額(月額) 6079円

ごみ

家庭ごみ収集(可燃ごみ) 有料
備考
指定ごみ袋有料。一般廃棄物処理手数料として徴収。
家庭ごみの分別方式 4分別8種〔家庭ごみ 紙類(新聞・折込チラシ、段ボール、紙パック、雑誌・雑がみ) プラスチック資源 缶・びん・ペットボトル・廃乾電池類等〕 拠点回収:使用済小型家電 使用済食用油 布類
家庭ごみの戸別収集 未実施
粗大ごみ収集 あり
備考
有料。戸別収集。事前申込制。
生ごみ処理機助成金制度 あり
上限金額
30000円
上限比率
60.0%
暮らしデータ提供元:生活ガイド.com
※行政機関により公表していない地域及びデータがございます。東京23区以外の政令指定都市は、市全体のデータとして表示しています。
※提供データには細心の注意を払っておりますが、調査後に変更がある場合があります。 最新の情報につきましては各市区役所までお問い合わせいただくか、自治体HPなどをご確認ください。
OCN×ドコモ光新規お申込みで合計最大137,280円相当おトク!特典の内訳・適用条件など詳細はこちら

仙台市若林区内の各駅の住みやすさ

掲載情報の著作権は提供元企業等に帰属します。
Copyright:(C) 2025 At Home Co.,Ltd
アプリで簡単 物件探し 大手不動産サイトの情報から一括検!プッシュ通知で物件を見逃さない
App Storeからダウンロード Google Playで手に入れよう QRコード