アプリで簡単 物件探し 通知 共有 アプリならではの機能を使ってみる
賃貸マンション

プレサンス塚本グランゲート 塚本駅 1K 賃貸(賃貸マンション・アパート)

情報提供元
LIFULL HOME'S
プレサンス塚本グランゲート
賃料 6.83万円  (管理費等:8740円)
礼金・敷金 5万円 / なし 保証金/敷引・償却 なし / -
交通
所在地 大阪府大阪市淀川区塚本2丁目27番16号周辺地図
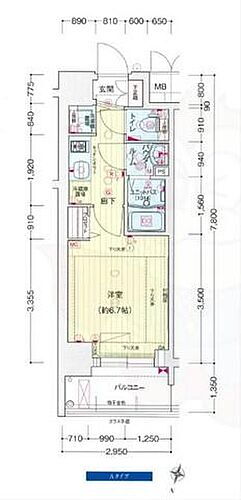
間取り 1K 専有面積 23.01m2
築年月 2017年9月 築年数 築8年3ヶ月
おすすめポイント
夏は涼しく冬は暖かく、エアコン付きの物件です。高い利便性のあるエレベーター付きの物件です。
お問い合わせ先
賃貸大阪株式会社 西中島店
お問い合わせ先
賃貸大阪株式会社 西中島店

詳細情報

賃料 6.83万円 管理費等 8740円
敷金 なし 礼金 5万円
保証金 なし 敷引・償却 -
更新料 11000円 契約期間 2年
カード決済 -
所在地 大阪府大阪市淀川区塚本2丁目27番16号周辺地図
交通
建物名 プレサンス塚本グランゲート 
間取り 1K(洋 6.7) 築年月(築年数) 2017年9月(築8年3ヶ月)
専有面積 23.01㎡ 所在階/階数 9階/10階建
建物構造 RC  方位 北 
現況 空  駐車場 近有 18,000円 物件からの距離80m
入居可能時期 相談 住宅保険
情報提供元 LIFULL HOME'S[1216480123454] 情報公開日
情報更新日 次回更新予定日 2025年12月12日

設備など

2階以上 最上階 - 角部屋
駐車場(近隣含) エアコン付き バス・トイレ別
室内洗濯機置き場 追焚機能 - オートロック付き
モニタ付インターホン フローリング バルコニー
ガスコンロ可 浴室乾燥機 24時間セキュリティ -
宅配ボックス ペット相談可 - 二人入居可 -
設備 上水道・都市ガス・本下水・バス・トイレ別・シャワー・ガスコンロ可・コンロ2口以上・システムキッチン・給湯・シャンプードレッサ・エアコン・室内洗濯機置き場・CATV・CS・BS端子・オートロック・エレベーター・バルコニー・フローリング・宅配BOX・駐輪場・バイク置き場・インターネット対応・モニタ付インターホン・温水洗浄便座・浴室乾燥機・洗面所独立・防犯カメラ・クローゼット・シューズボックス 
リフォーム履歴 -
リノベーション履歴 -
備考 補償付帯費/月990円 カギ交換費用29700円 法人可  【設備・特記事項備考】二人入居不可・ペット不可・専用バス・専用トイレ/退去時ハウスクリーニング代(税込) 38500円/自転車置場 330円/バイク置場 2200円/賃貸戸数:72戸/保証会社の利用:加入要/保証会社費用: プレサンスギャランティ(初回:総賃料50%、最低2万円、月額:総賃料の1.5%)または、日本セーフティ(初回:総賃料50%、最低2万円、更新:1万円/年、引落手数料:440円)/管理人勤務形態:巡回 
特記事項 保証人必要・角部屋・24時間ゴミ出し可

省エネ性能

エネルギー消費性能 -
断熱性能 -
目安光熱費 -

大阪府大阪市淀川区塚本2丁目27番16号 周辺地図情報

地図
※地図上に表示される物件の位置は付近住所に所在することを表すものであり、実際の物件所在地とは異なる場合がございます。
   正確な物件所在地は、取扱い不動産会社にお問い合わせください。
お問い合わせ先
賃貸大阪株式会社 西中島店

不動産会社情報

お問い合わせ先 商号:賃貸大阪株式会社 西中島店
免許番号:国土交通大臣(3)第8688号
所在地:大阪府大阪市淀川区西中島3丁目19番13号
TEL:06-6301-4446
取引態様:仲介
管理コード:123454
所属協会など:(公社)近畿圏不動産流通機構
共有する
QRコード

お電話でのお問い合わせ

電話をかける(携帯・PHS可)
お問い合わせダイヤル
通話無料0037-634-56937
営業時間 10:00~19:00 (定休日:年末年始)
音声案内に従って数字を入力
お問い合わせ番号
86506-2979
不動産会社につながります
不動産会社のスタッフと
直接電話で話せます。
※不動産会社がお電話に出られなかった場合、株式会社LIFULLは電話会社が提供するサービスを介してお客様の発信者番号を受領後、折り返し専用の電話番号を発番してお問合せの不動産会社に通知します(お客様の発信者番号がお問合せの不動産会社に通知されることはございません)
※光IP電話、及びIP電話からはご利用になれません
※0037で始まる電話番号に携帯電話からお問合せいただいた方には、ショートメッセージ(SMS)によるお問合せ完了通知をお届けする場合があります
お問い合わせ先
賃貸大阪株式会社 西中島店

    大阪市淀川区の暮らしデータ

    人口などの統計情報

    世帯数 1464615世帯
    人口総数 2757642人
    転入者数 225000人
    転入率(人口1000人当たり)
    81.59人
    転出者数 188180人
    転出率(人口1000人当たり)
    68.24人
    土地平均価格
    住宅地
    270839円/m2
    商業地
    1966607円/m2

    結婚・育児の助成金

    子育て関連の独自の取り組み (1)子ども・子育てプラザ(在宅での子育て家庭や地域での子育て活動を支援し、また乳幼児期の親子や子育て支援者、就学期の子どもが集い交流する機会を提供する等、地域福祉活動の推進を図る)。(2)習い事・塾代助成事業(学習塾や家庭教師、文化・スポーツ教室等学校外教育にかかる費用を、1人当たり月額1万円まで助成。所得制限あり)。
    出産祝い なし
    公立保育所数 53所(うち0歳児保育を実施している保育所:52所)
    私立保育所数 395所(うち0歳児保育を実施している保育所:385所)
    保育所入所待機児童数 2人
    認定こども園数 117園 預かり保育実施園数 公立:52園 私立:-
    学校給食 【小学校】完全給食【中学校】完全給食
    公立中学校の学校選択制 実施
    子ども・学生等医療費助成<通院>対象年齢 18歳3月末まで 子ども・学生等医療費助成<入院>対象年齢 18歳3月末まで

    大阪市淀川区の治安・ごみ収集情報

    公共料金・インフラ

    ガス料金(22m3使用した場合の月額) 大阪瓦斯株式会社4544円
    水道料金(口径20mmで20m3の月額) 大阪市2112円
    下水道料金(20m3を使用した場合の月額) 大阪市1276円
    下水道普及率 100.0%

    安心・安全

    建物火災出火件数 553件
    人口10000人当たり
    2.01件
    刑法犯認知件数 39408件
    人口1000人当たり
    14.32件
    ハザード・防災マップ あり

    医療

    一般病院総数 170ヶ所
    一般診療所総数 3734ヶ所
    小児科医師数 659人
    小児人口10000人当たり
    22.80人
    産婦人科医師数 380人
    15~49歳女性人口1万人当たり
    6.15人
    介護保険料基準額(月額) 9249円

    ごみ

    家庭ごみ収集(可燃ごみ) 無料
    備考
    -
    家庭ごみの分別方式 4分別11種〔普通ごみ(普通ごみ、危険ごみ[竹串、ガラス片、カミソリの刃]) 資源ごみ(空き缶・空きびん・金属製の生活用品・ペットボトル、スプレー缶・カセットボンベ) 容器包装プラスチック 古紙・衣類(新聞紙・折込チラシ、段ボール、紙パック、雑誌、衣類、その他の紙類)〕
    家庭ごみの戸別収集 一部実施(【ふれあい収集】65歳以上の一人暮らしの高齢者または高齢者だけの世帯、障がいがある方が居住される家庭で、ごみ出しが困難な人が対象)
    粗大ごみ収集 あり
    備考
    有料。戸別収集。事前申込制。申込時に収集日を決定。
    生ごみ処理機助成金制度 なし
    上限金額
    -
    上限比率
    -
    暮らしデータ提供元:生活ガイド.com
    ※行政機関により公表していない地域及びデータがございます。東京23区以外の政令指定都市は、市全体のデータとして表示しています。
    ※提供データには細心の注意を払っておりますが、調査後に変更がある場合があります。 最新の情報につきましては各市区役所までお問い合わせいただくか、自治体HPなどをご確認ください。
    OCN×ドコモ光新規お申込みで合計最大137,280円相当おトク!特典の内訳・適用条件など詳細はこちら

    大阪市淀川区内の各駅の住みやすさ

    他のエリアから探す

    大阪市淀川区の詳細地域から賃貸物件を探す

    加島木川西木川東新北野十三東十三本町十三元今里十八条田川田川北塚本新高西中島西三国西宮原野中北野中南東三国三国本町三津屋北三津屋中三津屋南宮原

    近辺の市区から探す

    大阪市都島区大阪市福島区大阪市此花区大阪市西区大阪市港区大阪市大正区大阪市天王寺区大阪市浪速区大阪市西淀川区大阪市東淀川区大阪市東成区大阪市生野区大阪市旭区大阪市城東区大阪市阿倍野区大阪市東住吉区大阪市西成区大阪市鶴見区大阪市住之江区大阪市平野区大阪市北区大阪市中央区池田市吹田市守口市茨木市大東市箕面市摂津市東大阪市

    周辺の駅から探す

    東海道本線
    吹田東淀川新大阪大阪塚本尼崎立花甲子園口西宮
    JR東西線
    大阪天満宮北新地新福島海老江御幣島加島尼崎

    マンションライブラリーを見る

    プレサンス塚本グランゲート

    大阪府大阪市淀川区で他のジャンルから探す


    掲載情報の著作権は提供元企業等に帰属します。
    Copyright:(C) 2025 LIFULL Co.,Ltd.
    アプリで簡単 物件探し 大手不動産サイトの情報から一括検!プッシュ通知で物件を見逃さない
    App Storeからダウンロード Google Playで手に入れよう QRコード