アプリで簡単 物件探し 通知 共有 アプリならではの機能を使ってみる
賃貸マンション

レジデンス向陽 西向日駅 3DK 賃貸(賃貸マンション・アパート)

情報提供元
LIFULL HOME'S
レジデンス向陽
賃料 8万円  (管理費等:3000円)
礼金・敷金 8万円 / なし 保証金/敷引・償却 - / -
交通
所在地 京都府向日市上植野町馬立周辺地図
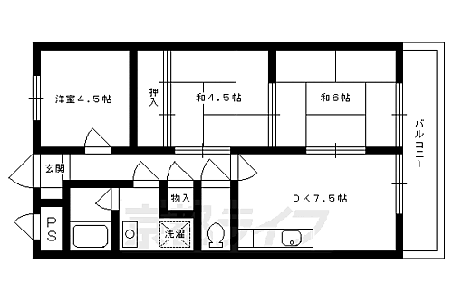
間取り 3DK 専有面積 58.57m2
築年月 1988年4月 築年数 築37年9ヶ月
おすすめポイント
ペット相談可 ペット可、駐車場あり、独立洗面台、室内洗濯機置場
お問い合わせ先
株式会社京都ライフ 長岡店
お問い合わせ先
株式会社京都ライフ 長岡店

詳細情報

賃料 8万円 管理費等 3000円
敷金 なし 礼金 8万円
保証金 - 敷引・償却 -
更新料 新賃料の1ヶ月分 契約期間 2年
カード決済 -
所在地 京都府向日市上植野町馬立周辺地図
交通
建物名 レジデンス向陽 
間取り 3DK 築年月(築年数) 1988年4月(築37年9ヶ月)
専有面積 58.57㎡ 所在階/階数 1階/地上3階地下1階建
建物構造 RC  方位 北 
現況 居住中  駐車場 有 11,000円
入居可能時期 2026年1月下旬 住宅保険
情報提供元 LIFULL HOME'S[1008610211946] 情報公開日
情報更新日 次回更新予定日 2025年12月15日

設備など

2階以上 - 最上階 - 角部屋 -
駐車場(近隣含) エアコン付き - バス・トイレ別
室内洗濯機置き場 追焚機能 - オートロック付き -
モニタ付インターホン - フローリング バルコニー -
ガスコンロ可 - 浴室乾燥機 - 24時間セキュリティ -
宅配ボックス - ペット相談可 二人入居可
設備 上水道・都市ガス・本下水・バス・トイレ別・シャワー・給湯・室内洗濯機置き場・フローリング・駐輪場・バイク置き場・光ファイバー(ブロードバンド)・洗面所独立・シューズボックス 
リフォーム履歴 -
リノベーション履歴 -
備考 ペットと住めるマンションです 徒歩5分圏内にスーパー2件、コンビニ2件。ドラッグストアまで徒歩4分。あなたの毎日のお買い物をサポート。駅までも徒歩5分ととっても近い 桜の綺麗な西向日です。また条件面のご相談などドシドシお気軽にお問い合わせ下さい。 物件情報はもちろん京都のエリア情報まで幅広く対応させていただきます! 【設備・特記事項備考】専用バス・専用トイレ 【駐車場備考】駐車料金:11000円〜14300円/書類代 11000円/入居者サポート 880円/賃貸戸数:16戸/保証会社の利用:加入要/保証会社名:全保連/保証会社費用:初回:月額賃料等の50%、月額:支払い手数料550円、更新時:1.3万円/1年/鍵交換費用:16500円/室内清掃費用:55000円 
特記事項 二人入居可・ペット相談可・外観タイル張り

省エネ性能

エネルギー消費性能 -
断熱性能 -
目安光熱費 -

京都府向日市上植野町馬立 周辺地図情報

地図
※地図上に表示される物件の位置は付近住所に所在することを表すものであり、実際の物件所在地とは異なる場合がございます。
   正確な物件所在地は、取扱い不動産会社にお問い合わせください。
お問い合わせ先
株式会社京都ライフ 長岡店

不動産会社情報

お問い合わせ先 商号:株式会社京都ライフ 長岡店
免許番号:京都府知事(11)第6353号
所在地:京都府長岡京市開田3丁目1−24
TEL:075-957-4800
取引態様:仲介
管理コード:211946
所属協会など:(公社)近畿圏不動産流通機構、(公社)近畿地区不動産公正取引協議会、(公社)京都府宅地建物取引業協会
共有する
QRコード

お電話でのお問い合わせ

電話をかける(携帯・PHS可)
お問い合わせダイヤル
通話無料0037-634-05461
営業時間 09:30~19:00 (定休日:年中無休(盆正月を除く))
音声案内に従って数字を入力
お問い合わせ番号
47459-2974
不動産会社につながります
不動産会社のスタッフと
直接電話で話せます。
※不動産会社がお電話に出られなかった場合、株式会社LIFULLは電話会社が提供するサービスを介してお客様の発信者番号を受領後、折り返し専用の電話番号を発番してお問合せの不動産会社に通知します(お客様の発信者番号がお問合せの不動産会社に通知されることはございません)
※光IP電話、及びIP電話からはご利用になれません
※0037で始まる電話番号に携帯電話からお問合せいただいた方には、ショートメッセージ(SMS)によるお問合せ完了通知をお届けする場合があります
お問い合わせ先
株式会社京都ライフ 長岡店

    向日市の暮らしデータ

    人口などの統計情報

    世帯数 23510世帯
    人口総数 56571人
    転入者数 2163人
    転入率(人口1000人当たり)
    38.24人
    転出者数 2204人
    転出率(人口1000人当たり)
    38.96人
    土地平均価格
    住宅地
    207000円/m2
    商業地
    427000円/m2

    結婚・育児の助成金

    子育て関連の独自の取り組み 向日市児童福祉手当支給制度。
    出産祝い なし
    公立保育所数 3所(うち0歳児保育を実施している保育所:3所)
    私立保育所数 5所(うち0歳児保育を実施している保育所:5所)
    保育所入所待機児童数 0人
    認定こども園数 2園 預かり保育実施園数 公立:- 私立:3園
    学校給食 【小学校】完全給食【中学校】完全給食
    公立中学校の学校選択制 実施(希望校制度。新入学時又は他市区町村からの転入時のみ)
    子ども・学生等医療費助成<通院>対象年齢 中学校卒業まで 子ども・学生等医療費助成<入院>対象年齢 18歳3月末まで

    向日市の治安・ごみ収集情報

    公共料金・インフラ

    ガス料金(22m3使用した場合の月額) 大阪瓦斯株式会社4544円
    水道料金(口径20mmで20m3の月額) 向日市3096円
    下水道料金(20m3を使用した場合の月額) 向日市2266円
    下水道普及率 100.0%

    安心・安全

    建物火災出火件数 4件
    人口10000人当たり
    0.70件
    刑法犯認知件数 242件
    人口1000人当たり
    4.26件
    ハザード・防災マップ あり

    医療

    一般病院総数 1ヶ所
    一般診療所総数 48ヶ所
    小児科医師数 8人
    小児人口10000人当たり
    10.62人
    産婦人科医師数 6人
    15~49歳女性人口1万人当たり
    5.42人
    介護保険料基準額(月額) 6125円

    ごみ

    家庭ごみ収集(可燃ごみ) 無料
    備考
    指定ごみ袋は有料だが、袋代にごみ収集・処理料金等を含まず。
    家庭ごみの分別方式 2分別11種〔もやすごみ 資源ごみ(空缶、スプレー缶、空ビン、ペットボトル、その他不燃物、その他プラスチック、有害ごみ)〕拠点回収:資源ごみ(空缶、空ビン、ペットボトル、紙類[新聞、雑紙、段ボール、布類])
    家庭ごみの戸別収集 実施(基本的に戸別回収を行っているが、塵芥車が入れない一部地域で集団回収を実施)
    粗大ごみ収集 あり
    備考
    有料。事前申込制。手数料処理券が必要(500円~3,000円/点)。
    生ごみ処理機助成金制度 あり
    上限金額
    10000円
    上限比率
    50.0%
    暮らしデータ提供元:生活ガイド.com
    ※行政機関により公表していない地域及びデータがございます。東京23区以外の政令指定都市は、市全体のデータとして表示しています。
    ※提供データには細心の注意を払っておりますが、調査後に変更がある場合があります。 最新の情報につきましては各市区役所までお問い合わせいただくか、自治体HPなどをご確認ください。
    OCN×ドコモ光新規お申込みで合計最大137,280円相当おトク!特典の内訳・適用条件など詳細はこちら

    向日市内の各駅の住みやすさ

    他のエリアから探す

    向日市の詳細地域から賃貸物件を探す

    鶏冠井町上植野町寺戸町向日町物集女町森本町

    近辺の市区から探す

    京都市北区京都市上京区京都市中京区京都市東山区京都市下京区京都市南区京都市右京区京都市伏見区京都市山科区京都市西京区宇治市城陽市長岡京市八幡市乙訓郡大山崎町久世郡久御山町三島郡島本町

    周辺の駅から探す

    東海道本線
    京都西大路桂川向日町長岡京山崎島本高槻摂津富田
    阪急電鉄京都線
    西京極洛西口東向日西向日長岡天神西山天王山大山崎水無瀬

    京都府向日市で他のジャンルから探す


    掲載情報の著作権は提供元企業等に帰属します。
    Copyright:(C) 2025 LIFULL Co.,Ltd.
    アプリで簡単 物件探し 大手不動産サイトの情報から一括検!プッシュ通知で物件を見逃さない
    App Storeからダウンロード Google Playで手に入れよう QRコード